+ Lisa oma töö      

Otsid ehitajat "Üldehitus" valdkonnast?

Parima pakkumise ja teostaja leidmiseks lisa oma töö.

Korteri kapitaalremont

ID 96511

627 vaatamist

Prindi

  • check Pakkumiste tegemine
    kuni 16.05.2024
  • check Võitja valik kuni
    23.05.2024
  • 3 Töö teostamine
    ja hinnang
Hanke lõpp: N, 16. mai, 2024
Maakond: Põlvamaa
Linn: Põlva
Tööde lõpp: Kokkuleppel
Ehitusmaterjalid: Töö tegija poolt
Soovin pakkumisi: Tüki- või ühikuhinda

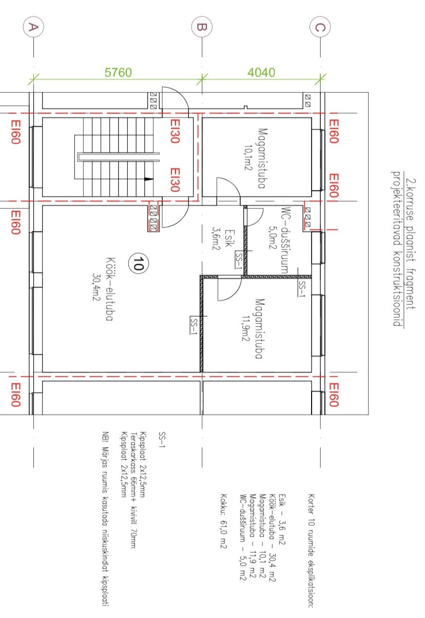
Töö sisu

Soovin saada hinnapakkumisi korteri täieliku renoveerimise jaoks (otsast lõpuni). Korter on 3-toaline, 60m2. Hetkel on korter puhas ja tolmuvabaks tehtud, peaks kõik lammutustööd tehtud olema.

Eesolevad tööd:

•elektriprojekt, elektrikaablite vedamine põranda sisse, põrandaküte esikusse ja vannituppa
•kipsivalu ~60m2
•kipskarkass seinad, naabritega ühenduses seinad helikindlaks teha
•krohvimine
• uus välisuks tuleohutusnõuete kohane
•~60m2 kips ripplagi
•siseviimistlus ja värvimine
•plaatimistööd
•torutööd
Parema ülevaate saamiseks peaks kohapeal korteriga tutvuma.
Hinnad ja töörahad eraldi välja tuua ning lõpuks kogu summa orjenteeruvalt

Pildid, video ja failid

Hanke korraldaja: eraisik ID78573

Pakkumised

Pakkumisi kokku: 5

Ettevõte Summa Käibemaks Lisatud Vestlus
Kasutaja ikoon ID81593
Pakkuja profiil Väike nool paremale
34 000€ Sisaldab KM Sisaldab KM 14.05.2024 Vestlus (0)
Kasutaja ikoon ID79833
Pakkuja profiil Väike nool paremale
24 400€ Sisaldab KM Sisaldab KM 14.05.2024 Vestlus (0)
Kasutaja ikoon ID9397
Pakkuja profiil Väike nool paremale
22 000€ Sisaldab KM Sisaldab KM 14.05.2024 Vestlus (5)

Pakkumise kirjeldus:

Materjal ja tööraha kõik sees ja garantii 2 aastat

Kasutaja ikoon ID72729
Pakkuja profiil Väike nool paremale
25 000€ Sisaldab KM Sisaldab KM 14.05.2024 Vestlus (0)
Kasutaja ikoon ID4459
Pakkuja profiil Väike nool paremale
9 800€ Ei ole KMKR Ei ole KMKR 15.05.2024 Vestlus (3)

Pakkumise kirjeldus:

Hinnapakkumine tehtud olemasoleva hanke info põhjal töödele. Üldehitusmaterjalid olemasoleva info põhjal 8000€. kokku koos töödega umbes 17800€. Detailsema ja täpsema hinna hinna saab öelda peale kohapealset olukorda nähes ja tellijaga arutades. Hinnakõikumine võib olla 25%. Viimistlusmaterjalid ja santehnika tellijalt.

Küsimused hanke korraldajale

Hanke korraldajale ei ole veel küsimusi esitatud.

Lisa küsimus

Lisa küsimus

Minu pakkumine

Reeglid

Pakkumise kirjelduse väli on mõeldud pakkumise detailsemaks lahti kirjutamiseks. Pikema teksti mugavaks sisestamiseks klikkige kasti paremal ülaservas oleval ikoonil.
Pakkumist tehes on keelatud postitada enda kontaktandmeid (nimi, telefon, aadress jne). Me jälgime ja analüüsime pakkumisi, et vältida pettuseid ja reeglite rikkumisi.
Rikkumise puhul kasutajakonto blokeeritakse.

 

Teisi töid samas valdkonnas

Valdkonnas "Üldehitus" on 27 aktiivset tööd

Terassi õlitamine, 13,7 ruutu

Asukoht: Harjumaa, Saue
Aega jäänud: 5p 14h
Tehtud pakkumisi: 4

Eramaja ehitus

Asukoht: Harjumaa, Suurupi
Aega jäänud: 4p 14h
Tehtud pakkumisi: 4

Vanemad teated:

Vaata kõiki

Sellel veebilehel kasutatakse küpsiseid. Kasutamist jätkates nõustute küpsiste kasutamisega.

Sulge
 
Minu pakkumine

Reeglid

Pakkumise kirjelduse väli on mõeldud pakkumise detailsemaks lahti kirjutamiseks. Pikema teksti mugavaks sisestamiseks klikkige kasti paremal ülaservas oleval ikoonil.
Pakkumist tehes on keelatud postitada enda kontaktandmeid (nimi, telefon, aadress jne). Me jälgime ja analüüsime pakkumisi, et vältida pettuseid ja reeglite rikkumisi.
Rikkumise puhul kasutajakonto blokeeritakse.