+ Lisa oma töö      

Otsid ehitajat "Siseviimistlustööd" valdkonnast?

Parima pakkumise ja teostaja leidmiseks lisa oma töö.

Hange on lõppenud!

Võitjaks osutus kasutaja ID 52783

Maalritööde ettevalmistus ja viimistlus

ID 95871

479 vaatamist

Prindi

  • check Pakkumiste tegemine
    kuni 13.05.2024
  • check Võitja valik kuni
    13.05.2024
  • 3 Töö teostamine
    ja hinnang
Hanke lõpp: E, 13. mai, 2024
Maakond: Harjumaa
Linn: Tallinn
Tööde lõpp: N, 30. mai, 2024
Ehitusmaterjalid: Töö tegija poolt
Soovin pakkumisi: Summa kogu projektile

Töö sisu

Soovin hinnapäringut maalritööde ettevalmistusele ja maalritöödele. Seinad on betoonini puhtad aga kehvas seisus. Ilmselt vaja krohvida, pahteldada vms ja vähemalt 2 kihti värvi viimistluseks.
oluline:
- korteri m2 kokku 44m2,
- lakke tuleb kipsplaat
- aknapaled vaja teha (3 akent)
- 2 ava kuhu uksi ette ei tule (esiku- elutoa vahel ja köögi-elutoa vahel), ääred korda teha
- töö algus orienteeruvalt 4 nädala pärast
- 2 korrus, saab vaatama tulla
- maksmine arvega

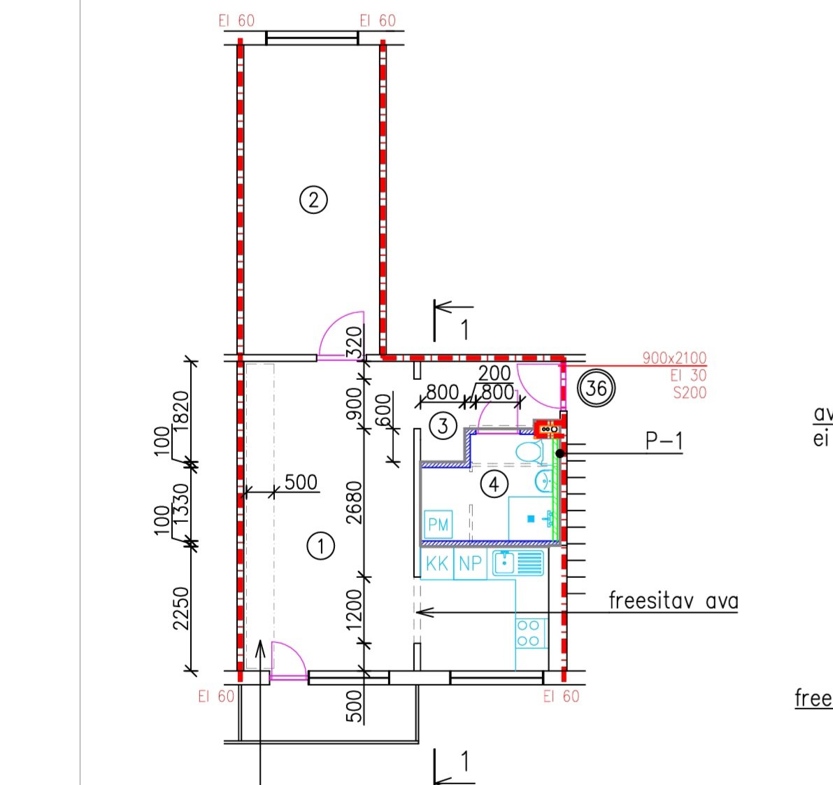
Pildid, video ja failid

Hanke korraldaja: ettevõte ID79177

Pakkumised

Pakkumisi kokku: 5

Ettevõte Summa Käibemaks Lisatud Vestlus
Kasutaja ikoon ID52293
Pakkuja profiil Väike nool paremale
15 000€ Sisaldab KM Sisaldab KM 01.05.2024 Vestlus (0)

Pakkumise kirjeldus:

Tere
Juhul kui soovite meid valida hanke võitjaks peaks eelnevalt kokku leppima makse tingimustes
Tänud

Kasutaja ikoon ID52783
Pakkuja profiil Väike nool paremale
3 300€ Sisaldab KM Sisaldab KM 02.05.2024 Vestlus (13)

Pakkumise kirjeldus:

Tere.
Ehk umbes 175 m2 kokku.
Selle hind oleks orjenteeruvalt 3300-3500 raha
Seda, siis koos materjalidega.

Lp.Joel

Kasutaja ikoon ID49497
Pakkuja profiil Väike nool paremale
2 800€ Ei ole KMKR Ei ole KMKR 06.05.2024 Vestlus (0)
Kasutaja ikoon ID77006
Pakkuja profiil Väike nool paremale
3 400€ Sisaldab KM Sisaldab KM 06.05.2024 Vestlus (4)

Pakkumise kirjeldus:

Tere päevast. Hind sisaldab sellist tööd. seinte krohvimine ühes kihis, seinte ja lagede krohvimine kahes kihis, seinte ja lagede lihvimine ning värvimine. Kokkuleppel võin osta kõik vajalikud materjalid, k-rautis 40-50% töödele garantii 2 aastat. Hinnale lisandub hange.ee tasu 5%.

Kasutaja ikoon ID51140
Pakkuja profiil Väike nool paremale
8 500€ Ei ole KMKR Ei ole KMKR 06.05.2024 Vestlus (0)

Küsimused hanke korraldajale

Küsimus: private ID80902   01.05.2024 14:57
Tere! Kui palju on maalerdatavat pinda?

Teavita reeglite rikkumisest

Korraldaja vastus:
Hanke korraldaja ei ole küsimusele veel vastanud

Lisa küsimus

Lisa küsimus

Minu pakkumine

Reeglid

Pakkumise kirjelduse väli on mõeldud pakkumise detailsemaks lahti kirjutamiseks. Pikema teksti mugavaks sisestamiseks klikkige kasti paremal ülaservas oleval ikoonil.
Pakkumist tehes on keelatud postitada enda kontaktandmeid (nimi, telefon, aadress jne). Me jälgime ja analüüsime pakkumisi, et vältida pettuseid ja reeglite rikkumisi.
Rikkumise puhul kasutajakonto blokeeritakse.

 

Teisi töid samas valdkonnas

Valdkonnas "Siseviimistlustööd" on 20 aktiivset tööd

Seinte pahteldus ja värvimine

Asukoht: Harjumaa, Türisalu
Aega jäänud: 2p 23h
Tehtud pakkumisi: 7

Korteri seinte ja lagede värvimine, osaline pahteldamine

Asukoht: Harjumaa, Tallinn
Aega jäänud: 23h 55 min
Tehtud pakkumisi: 3

Vanemad teated:

Vaata kõiki

Sellel veebilehel kasutatakse küpsiseid. Kasutamist jätkates nõustute küpsiste kasutamisega.

Sulge
 
Minu pakkumine

Reeglid

Pakkumise kirjelduse väli on mõeldud pakkumise detailsemaks lahti kirjutamiseks. Pikema teksti mugavaks sisestamiseks klikkige kasti paremal ülaservas oleval ikoonil.
Pakkumist tehes on keelatud postitada enda kontaktandmeid (nimi, telefon, aadress jne). Me jälgime ja analüüsime pakkumisi, et vältida pettuseid ja reeglite rikkumisi.
Rikkumise puhul kasutajakonto blokeeritakse.