+ Lisa oma töö      

Otsid ehitajat "Siseviimistlustööd" valdkonnast?

Parima pakkumise ja teostaja leidmiseks lisa oma töö.

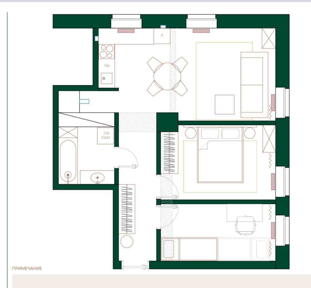
Kahetoalisest korterist teha kolmetoaline. Korter vajab täielikku renoveerimist.

ID 95800

728 vaatamist

Prindi

  • check Pakkumiste tegemine
    kuni 03.05.2024
  • check Võitja valik kuni
    10.05.2024
  • 3 Töö teostamine
    ja hinnang
Hanke lõpp: R, 3. mai, 2024
Maakond: Harjumaa
Linn: Tallinn
Tööde lõpp: Kokkuleppel
Ehitusmaterjalid: Töö tellija poolt
Soovin pakkumisi: Summa kogu projektile

Töö sisu

Soovin renoveerida kahetoalist korterit 53,8m2 Põhja-Tallinnas (2 korrus). Kahetoalisest korterist soovime teha kolmetoalist. Tööd, mida on vaja teha: lammutustööd, ehitusprahi äravedu, uued seinad ehitada, põrandad vahetada, laed tasandada ja värvida, seinad krohvida ja värvida, WC, vannituba plaatida, torutööd, valamu ja vanni paigaldus, elektritööd, pistikud vedada uude kohta. Toad ja köök viimistleda.

Pildid, video ja failid

Hanke korraldaja: eraisik ID81732

Pakkumised

Pakkumisi kokku: 9

Ettevõte Summa Käibemaks Lisatud Vestlus
Kasutaja ikoon ID81661
Pakkuja profiil Väike nool paremale
17 500€ KM lisandub KM lisandub 01.05.2024 Vestlus (0)
Kasutaja ikoon ID71300
Pakkuja profiil Väike nool paremale
29 000€ Sisaldab KM Sisaldab KM 01.05.2024 Vestlus (0)
Kasutaja ikoon ID50594
Pakkuja profiil Väike nool paremale
43 800€ KM lisandub KM lisandub 01.05.2024 Vestlus (0)

Pakkumise kirjeldus:

Tere,

Pakkumine vastavalt hanke sisule. Kui korter üle vaadatud, mahud teada. Saab koostada eelarvestuses detailse pakkumise.

Lgp. Taivo

Kasutaja ikoon ID65044
Pakkuja profiil Väike nool paremale
35 700€ Sisaldab KM Sisaldab KM 03.05.2024 Vestlus (0)
Kasutaja ikoon ID64032
Pakkuja profiil Väike nool paremale
37 800€ KM lisandub KM lisandub 03.05.2024 Vestlus (0)

Pakkumise kirjeldus:

Tere!

Pakkumine täielikule renoveerimisele.
Hind sisaldab üldehitus materjale.
Koostame ka detailse pakkumise, kui olen objektiga kohapeal tutvunud.
Meie poolt leping, tähtajast kinnipidamine, kvaliteet.
Küsimustele vastan meeleldi.

Parimate soovidega,
Kristjan

Kasutaja ikoon ID51140
Pakkuja profiil Väike nool paremale
18 500€ Ei ole KMKR Ei ole KMKR 03.05.2024 Vestlus (0)
Kasutaja ikoon ID81742
Pakkuja profiil Väike nool paremale
69 021€ Ikoon kell KM lisandub KM lisandub 03.05.2024 Vestlus (0)

Pakkumise kirjeldus:

Tere

Meie esijalgne hinnapakkumine on 69021+km
Hind sisaldab:
- lammutustöid
- prügivedu
- seinte/lagede krohvimine ja pahteldamine ja värvimine
- wc ja vannitoa renoveerimine plaadi või mikrotsemendiga, ( soovitan Teie ruumide puhul soojalt mikrotsementi plaadi asemel. Lihtsam hooldada, ilusam avaram ja elegantsem üldmulje aastateks. Plaadi pa ... Rohkem

Kasutaja ikoon ID31957
Pakkuja profiil Väike nool paremale
26 250€ Sisaldab KM Sisaldab KM 03.05.2024 Vestlus (0)

Pakkumise kirjeldus:

Tere,

Pakkumine vastavalt hanke tingimustele.

Lugupidamisega

Kasutaja ikoon ID79944
Pakkuja profiil Väike nool paremale
18 000€ Sisaldab KM Sisaldab KM 03.05.2024 Vestlus (0)

Pakkumise kirjeldus:

Hind sisaldab võtmed kätte tööd, koos ehitusmaterjalidega v.a viimistlusmaterjalid.

Küsimused hanke korraldajale

Küsimus: private ID71075   30.04.2024 15:08
Mitu ruutu antud korter ja mida täpsemalt soovite remontida?

Teavita reeglite rikkumisest

Korraldaja vastus: 30.04.2024 19:29

Tere! Ruutmeetrid on 53.8m2 ja vajab täielikku remonti. Seinte lammutamist ja uuesti üles ehitust, siseviimistlust, elektritööd. Kahetoalisest saab kolmetoaline.

Teavita reeglite rikkumisest

Küsimus: private ID81742   30.04.2024 19:13
Soovin ka lisainformatsiooni, antud objektile on fotode põhjal isegi pakkumist teha.
Kas soovite täisrenoveerimist, teeks korteri seest täiesti korda ja kvalikteetselt ?
Ruutmeetreid on ka vaja :)

Teavita reeglite rikkumisest

Korraldaja vastus: 30.04.2024 19:30

Tere! Ruutmeetrid on 53.8m2 ja vajab täielikku remonti. Seinte lammutamist ja uuesti üles ehitust, siseviimistlust, elektritööd. Kahetoalisest saab kolmetoaline.

Teavita reeglite rikkumisest

Küsimus: private ID81556   01.05.2024 09:04
Kas võimalik teha ka elektritöödele eraldi pakkumine?

Teavita reeglite rikkumisest

Korraldaja vastus: 01.05.2024 10:44

Tere! Jah ikka võib. Aitäh

Teavita reeglite rikkumisest

Lisa küsimus

Lisa küsimus

Minu pakkumine

Reeglid

Pakkumise kirjelduse väli on mõeldud pakkumise detailsemaks lahti kirjutamiseks. Pikema teksti mugavaks sisestamiseks klikkige kasti paremal ülaservas oleval ikoonil.
Pakkumist tehes on keelatud postitada enda kontaktandmeid (nimi, telefon, aadress jne). Me jälgime ja analüüsime pakkumisi, et vältida pettuseid ja reeglite rikkumisi.
Rikkumise puhul kasutajakonto blokeeritakse.

 

Teisi töid samas valdkonnas

Valdkonnas "Siseviimistlustööd" on 24 aktiivset tööd

Korteri remont

Asukoht: Harjumaa, Muraste
Aega jäänud: 2p 17h
Tehtud pakkumisi: 15

no-img Pilt puudub

Laminaatparketi paigaldus

Asukoht: Harjumaa, Tallinn
Aega jäänud: 4p 17h
Tehtud pakkumisi: 7

Vanemad teated:

Vaata kõiki

Sellel veebilehel kasutatakse küpsiseid. Kasutamist jätkates nõustute küpsiste kasutamisega.

Sulge
 
Minu pakkumine

Reeglid

Pakkumise kirjelduse väli on mõeldud pakkumise detailsemaks lahti kirjutamiseks. Pikema teksti mugavaks sisestamiseks klikkige kasti paremal ülaservas oleval ikoonil.
Pakkumist tehes on keelatud postitada enda kontaktandmeid (nimi, telefon, aadress jne). Me jälgime ja analüüsime pakkumisi, et vältida pettuseid ja reeglite rikkumisi.
Rikkumise puhul kasutajakonto blokeeritakse.