+ Lisa oma töö      

Otsid ehitajat "Üldehitus" valdkonnast?

Parima pakkumise ja teostaja leidmiseks lisa oma töö.

Eramu trepikoja ja teise korruse renoveerimine

ID 95517

479 vaatamist

Prindi

  • check Pakkumiste tegemine
    kuni 02.05.2024
  • check Võitja valik kuni
    09.05.2024
  • 3 Töö teostamine
    ja hinnang
Hanke lõpp: N, 2. mai, 2024
Maakond: Tartumaa
Tööde lõpp: Kokkuleppel
Ehitusmaterjalid: Töö tellija poolt
Soovin pakkumisi: Summa kogu projektile

Töö sisu

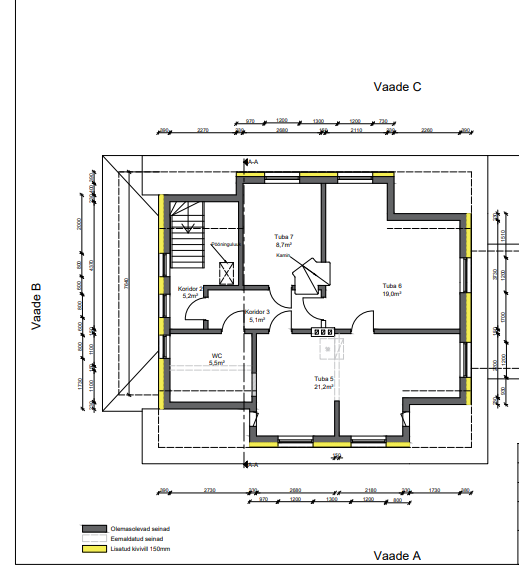
Teisele korrusele viiva trepikoja renoveerimine, keldrisse viiva ukse vahetus, teisel korrusel torutööd ja WC, duširuum, aga vahetada välja ka kanalisatsioonitoru kogu majas. Teisel korrusel põhilised lammutustööd ja soojustus tehtud, aknad vahetatud, tarvis ruumid välja ehitada.

Pildid, video ja failid

Hanke korraldaja: eraisik ID81609

Pakkumised

Pakkumisi kokku: 1

Ettevõte Summa Käibemaks Lisatud Vestlus
Kasutaja ikoon ID80709
Pakkuja profiil Väike nool paremale
100€ Sisaldab KM Sisaldab KM 02.05.2024 Vestlus (0)

Pakkumise kirjeldus:

Antud info põhjal pakkumist keeruline teha
Antud hind on objeti ülevaatamise hind ja pakkumise tegemine siis kõigile soovitud ja vajalikele töödele.

Küsimused hanke korraldajale

Küsimus: private ID79833   26.04.2024 08:45
Tere
Meie oleme nõus tegema, hind kokkuleppel.

Teavita reeglite rikkumisest

Korraldaja vastus: 26.04.2024 10:59

Tere!
Tore, räägime hanke lõppemisel.

Teavita reeglite rikkumisest

Küsimus: private ID79833   26.04.2024 11:18
Ok

Teavita reeglite rikkumisest

Korraldaja vastus:
Hanke korraldaja ei ole küsimusele veel vastanud

Küsimus: private ID43565   26.04.2024 19:22
Täpsemalt sooviks infot?
Parimat

Teavita reeglite rikkumisest

Korraldaja vastus: 27.04.2024 07:14

Tere!
Tegemist on sisetöödega teisel korrusel ja sinna viivas koridoris, renoveerimisega. Lammutustööd on suures osas tehtud, aknad on vahetatud, laepealne soojustus tehtud. Lõppeesmärk on taastada ärklikorrus kahepoolse väljaehitusega eramus.

Teavita reeglite rikkumisest

Lisa küsimus

Lisa küsimus

Minu pakkumine

Reeglid

Pakkumise kirjelduse väli on mõeldud pakkumise detailsemaks lahti kirjutamiseks. Pikema teksti mugavaks sisestamiseks klikkige kasti paremal ülaservas oleval ikoonil.
Pakkumist tehes on keelatud postitada enda kontaktandmeid (nimi, telefon, aadress jne). Me jälgime ja analüüsime pakkumisi, et vältida pettuseid ja reeglite rikkumisi.
Rikkumise puhul kasutajakonto blokeeritakse.

 

Teisi töid samas valdkonnas

Valdkonnas "Üldehitus" on 30 aktiivset tööd

Maja värvimine

Asukoht: Harjumaa, Saue
Aega jäänud: 2p 6h
Tehtud pakkumisi: 5

Terassi õlitamine, 13,7 ruutu

Asukoht: Harjumaa, Saue
Aega jäänud: 5p 6h
Tehtud pakkumisi: 5

Vanemad teated:

Vaata kõiki

Sellel veebilehel kasutatakse küpsiseid. Kasutamist jätkates nõustute küpsiste kasutamisega.

Sulge
 
Minu pakkumine

Reeglid

Pakkumise kirjelduse väli on mõeldud pakkumise detailsemaks lahti kirjutamiseks. Pikema teksti mugavaks sisestamiseks klikkige kasti paremal ülaservas oleval ikoonil.
Pakkumist tehes on keelatud postitada enda kontaktandmeid (nimi, telefon, aadress jne). Me jälgime ja analüüsime pakkumisi, et vältida pettuseid ja reeglite rikkumisi.
Rikkumise puhul kasutajakonto blokeeritakse.