+ Lisa oma töö      

Otsid ehitajat "Ehituse peatöövõtt" valdkonnast?

Parima pakkumise ja teostaja leidmiseks lisa oma töö.

Eramaja ehitus (Laulasmaa)

ID 95444

1167 vaatamist

Prindi

  • check Pakkumiste tegemine
    kuni 24.05.2024
  • check Võitja valik kuni
    31.05.2024
  • 3 Töö teostamine
    ja hinnang
Hanke lõpp: R, 24. mai, 2024
Maakond: Harjumaa
Muu asula: Laulasmaa
Tööde lõpp: Kokkuleppel
Ehitusmaterjalid: Töö tegija poolt
Soovin pakkumisi: Summa kogu projektile

Töö sisu

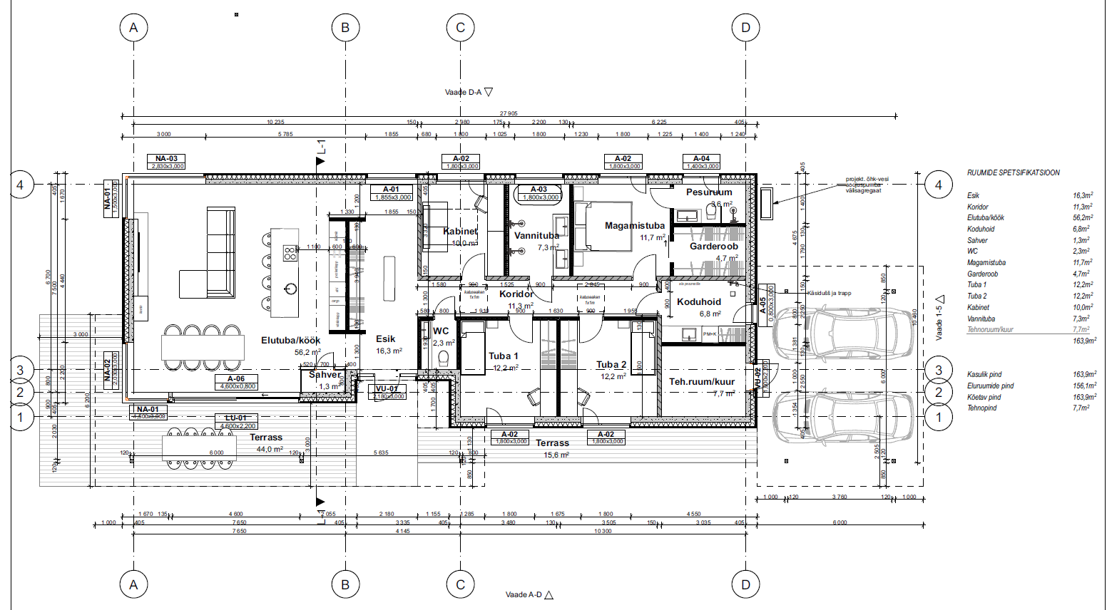
Soovin hinnapakkumist 163m2 netopinnaga eramu ''valge karp, väljast valmis'' (siseseinad kruntvärviga kaetud), sh autode varjualuse ehitusele.

Asukoht: Harjumaa, Meremõisa/Laulasmaa.

Eeldatav ehitustööde algus 2024/2025 (ehitusloa protsess on lõpusirgel).

Tööde maht (peatöövõtt vastavalt joonistele):
1. Lintvundament 190mm sokliplokkidest, kogusügavusega ~1m, sh küttekoldele paksendus
2. Torutööd (sh põrandaküte)
3. Avatäited ja paigaldus (ei ole standardmõõt, vt avatäidete spets)
4. Seinad, katus, talad. Kandvad seinad (columbia kivi), soojustus. Katus (puitsõrestik, SBS/PVC, komposiitplaat), liimpuittalad.
5. Kipsitööd (lagedes topeltkips)
6. Küte, ventilatsioon. Maaküte majasisene ja majaväline (vertikaalne paigaldus, paepinnas) sh puurimine 2-3 puurauku, termostaadid, boiler jne. Soojustagastusega ventagregaat.
7. Elektritööd
8. Drenaaž
9. Vesi, kanal. Biopuhasti ja imbväljak, kommunikatsioonide ühendamine (puurkaev olemas).
10. Terrass, sh vundamendipostid
11. Soemüüriga kamina valmidus
12. Fassaad, aknaplekid, sadeveelahendused jms (topeltroovitus, värvitud poolpunn peensaetud laudis, nt 145mm)
13. Välistrepp ja käiguteed (betoonist)

- Energiamärgis A
- Siseviimistlusel pind RYL 2
- Siseseinad rajatakse osaliselt 150mm Akustik kergplokistplokist, ja osaliselt 95mm puitkarkassist, vahel min.vill 95mm, mõlemal pool 10mm osb plaat ja kipsplaat 13mm.
- Tõenäoliselt tuleb põrandakatteks mikrotsement või LVT/vinüül (arvestada vundamendiplaadil).
- Siseuksed tulevad seinapinnaga tasa

Pildid, video ja failid

Hanke korraldaja: eraisik ID76491

Pakkumised

Pakkumisi kokku: 6

Ettevõte Summa Käibemaks Lisatud Vestlus
Kasutaja ikoon ID52293
Pakkuja profiil Väike nool paremale
400 000€ Sisaldab KM Sisaldab KM 24.04.2024 Vestlus (0)

Pakkumise kirjeldus:

Tere
Juhul kui soovite meid valida hanke võitjaks peaks eelnevalt kokku leppima makse tingimustes
Tänud

Kasutaja ikoon ID58131
Pakkuja profiil Väike nool paremale
270 000€ KM lisandub KM lisandub 25.04.2024 Vestlus (0)

Pakkumise kirjeldus:

Tere!

Pakkumus on arvutatud m2 hinna põhiselt vastavalt kirjeldusele, Kui pakkumine sobib siis võiksime koostada täpsema pakkumise kus hinnad on kuluridadena välja toodud ja jääb aluseks tööde teostamisel ja akteerimisel.

Kasutaja ikoon ID80832
Pakkuja profiil Väike nool paremale
80 000€ KM lisandub KM lisandub 27.04.2024 Vestlus (0)

Pakkumise kirjeldus:

Suur kogemus .
Garantii
Paberimajandus

Kasutaja ikoon ID75151
Pakkuja profiil Väike nool paremale
146 000€ Ei ole KMKR Ei ole KMKR 28.04.2024 Vestlus (0)

Pakkumise kirjeldus:

Töö juhtimine, kvaliteedi kontroll, ning ilma materjalita töö.
Mihkel

Kasutaja ikoon ID2942
Pakkuja profiil Väike nool paremale
260 000€ KM lisandub KM lisandub 16.05.2024 Vestlus (0)

Pakkumise kirjeldus:

Maksed vastavalt teostamis ja maksegraafikule. Ette näidata palju ilusaid referensse. Praegu arvestatud puitakendega. Plasti pealt saab kindlasti alla veel .

Kasutaja ikoon ID43718
Pakkuja profiil Väike nool paremale
257 890€ KM lisandub KM lisandub 24.05.2024 Vestlus (0)

Pakkumise kirjeldus:

Hinnapakkumine vastavalt kirjeldusele.

Küsimused hanke korraldajale

Küsimus: private ID75151   25.04.2024 10:48
Tere.
Kas materjali enda peale ei taha võtta?
Mihkel

Teavita reeglite rikkumisest

Korraldaja vastus: 25.04.2024 10:51

Tere Mihkel! Tehniliselt on kõik võimalik, aga projekti eelarve osas on mul siiski vaja tervikpilti.

Teavita reeglite rikkumisest

Küsimus: private ID58131   25.04.2024 11:47
Tere!

Miks on valitud vertikaalne maaküte, kui kõrgel on paekivi (kui palju on pinnast). Kui asendada õhk-vesi küttega oleks hinnavõit juba väga suur.

Akand on kirjutatud puit või plastik, samuti hinnavahe sisuliselt pool.

Kui lahendused läbi mõelda siis saaks hinna kindlasti sobivaks.

Kas pdf joonistena oleks võimalik failid ülesse laadida

Pakuks välja lae puhul posi talad asendada õõnespaneelidega ja kogu kommunikatsioon jääks lae peale katuse soojustuse sisse (ventilatsioon, elekter) ei tuleks ühtegi kips kasti. V

Olemas üks näidismaja, mida ehitame, soovikorral saame lahendused platsil juba üle vaadata.

Teavita reeglite rikkumisest

Korraldaja vastus: 25.04.2024 15:41

Tere

Tänan sisuliste küsimuste eest:
- Vertikaalne ongi valitud seetõttu, et paas on lähedal ja pinnast on minimaalselt (järeldus tehtud lähedalasuvate puuraukude põhjal).
- Õhk-vesi küte käis ideena läbi, hinnapakkumised on mõlemale olemas ja hetkel on eelistatud siiski maaküte.
- Aknad eelistatult puitaknad, lõuna suunal puit-alumiinium.
- Õõneka lahendus käis ka läbi, aga sellega jäävad vuugid. Täielikult ei välista, aga eelistaks puitu.
- Pdf'ide osas: üritan esimesel võimalusel ära korraldada.

Referentsprojektide olemasolu on suureks boonuseks.

Teavita reeglite rikkumisest

Küsimus: private ID75151   25.04.2024 13:56
Kui tehniliselt võimalik, võin brigaadi töö tasud arvestada ja pakkumise teha ilma materjalita töö aja järgi, ( arvestan sisse ka meeste majutus objektile lähedal. Rendist vajaminevad asjad jne. )

Teavita reeglite rikkumisest

Korraldaja vastus: 25.04.2024 20:34

Sobib.

Teavita reeglite rikkumisest

Küsimus: private ID58131   25.04.2024 15:49
Tere!

Mis on hetke olukord objektil? Kas peab arvestama ka teede ja platside rajamisega, raadamisega, lammutus jne.

Teavita reeglite rikkumisest

Korraldaja vastus: 25.04.2024 20:38

Tere!
Tegemist on vana talukohaga, kus on olemasolev suvila ja kuhu saab mööda kruusateed. Kogu krunt on kandval paepinnal.

Teavita reeglite rikkumisest

Küsimus: private ID58131   25.04.2024 15:51
Tere!

Kas konstrukiivset osa võib pakkuda ka alternatiive?
1) bauroc plokk+ 150mm PIR
2) plaatvundament

Teavita reeglite rikkumisest

Korraldaja vastus: 25.04.2024 20:41

Tere!

Plaatvundament on OK, aga sooviks maja siiski
betoonist, mitte kergplokist.

Teavita reeglite rikkumisest

Küsimus: private ID49330   05.05.2024 15:19
Tere.
Oleme ehitusega tegelenud üle 20 aasta.
Oleksime väga huvitatud teile maja ehitamisest.
Suurim objekt, mille ehitasime, oli tasku Tartus. Kirjutasin Teie naisele Facebookis, palun vastake, kui olete huvitatud ehituspartneri leidmisest oma maja ehitamiseks. Me võime ehitada teile maja, võtmed teie käes. Meie insenerid saavad teid selles aidata.

Teavita reeglite rikkumisest

Korraldaja vastus:
Hanke korraldaja ei ole küsimusele veel vastanud

Küsimus: private ID2942   15.05.2024 10:31
Tervitus .
Hange muidu arusaadav . Aga mis hinna suurusjärgus plaadid arvestada ja mis santehnika ( potid , segistid, valamu)?
Või neid ei arvesta ? toote ise ja me paneme paika? tavaliselt lisan pakkumisse keskimise hinna suurusjärgu ja pärast teeb tasarvelduse kui midagi rohkem maksab. Siin ei saa detailet pakkumist saata. Oleme teinud palju maju nii mere äärde kui sisemaale.
Tervitustega,

Teavita reeglite rikkumisest

Korraldaja vastus: 15.05.2024 10:59

Tere!
Santehnikat ja plaate, põrandakatteid ei ole vaja arvestada. Skoop on kruntvärviga kaetud seinad, aga kui eelarve kannatab, saab selles osas samuti läbi rääkida. Tasaarveldus on praktikas tõesti kõige mõistlikum.
Parimate soovidega,
Maiki

Teavita reeglite rikkumisest

Lisa küsimus

Lisa küsimus

Minu pakkumine

Reeglid

Pakkumise kirjelduse väli on mõeldud pakkumise detailsemaks lahti kirjutamiseks. Pikema teksti mugavaks sisestamiseks klikkige kasti paremal ülaservas oleval ikoonil.
Pakkumist tehes on keelatud postitada enda kontaktandmeid (nimi, telefon, aadress jne). Me jälgime ja analüüsime pakkumisi, et vältida pettuseid ja reeglite rikkumisi.
Rikkumise puhul kasutajakonto blokeeritakse.

 

Vanemad teated:

Vaata kõiki

Sellel veebilehel kasutatakse küpsiseid. Kasutamist jätkates nõustute küpsiste kasutamisega.

Sulge
 
Minu pakkumine

Reeglid

Pakkumise kirjelduse väli on mõeldud pakkumise detailsemaks lahti kirjutamiseks. Pikema teksti mugavaks sisestamiseks klikkige kasti paremal ülaservas oleval ikoonil.
Pakkumist tehes on keelatud postitada enda kontaktandmeid (nimi, telefon, aadress jne). Me jälgime ja analüüsime pakkumisi, et vältida pettuseid ja reeglite rikkumisi.
Rikkumise puhul kasutajakonto blokeeritakse.