+ Lisa oma töö      

Otsid ehitajat "Küttesüsteemid" valdkonnast?

Parima pakkumise ja teostaja leidmiseks lisa oma töö.

Hange on lõppenud!

Võitjaks osutus kasutaja ID 66770

Korraldaja hinnang tehtud tööle

5.0
30.05.2025
Töökiirus: 12345
Kvaliteet: 12345
Hind: 12345

Töö kiire ja korralik! - Kirill K.

Kütte- ja ventilatsiooniprojekt

ID 95174

486 vaatamist

Prindi

  • check Pakkumiste tegemine
    kuni 27.04.2024
  • check Võitja valik kuni
    04.05.2024
  • 3 Töö teostamine
    ja hinnang
Hanke lõpp: L, 27. aprill, 2024
Maakond: Harjumaa
Muu asula: Jüri
Tööde lõpp: Kokkuleppel
Ehitusmaterjalid: Töö tegija poolt
Soovin pakkumisi: Summa kogu projektile

Töö sisu

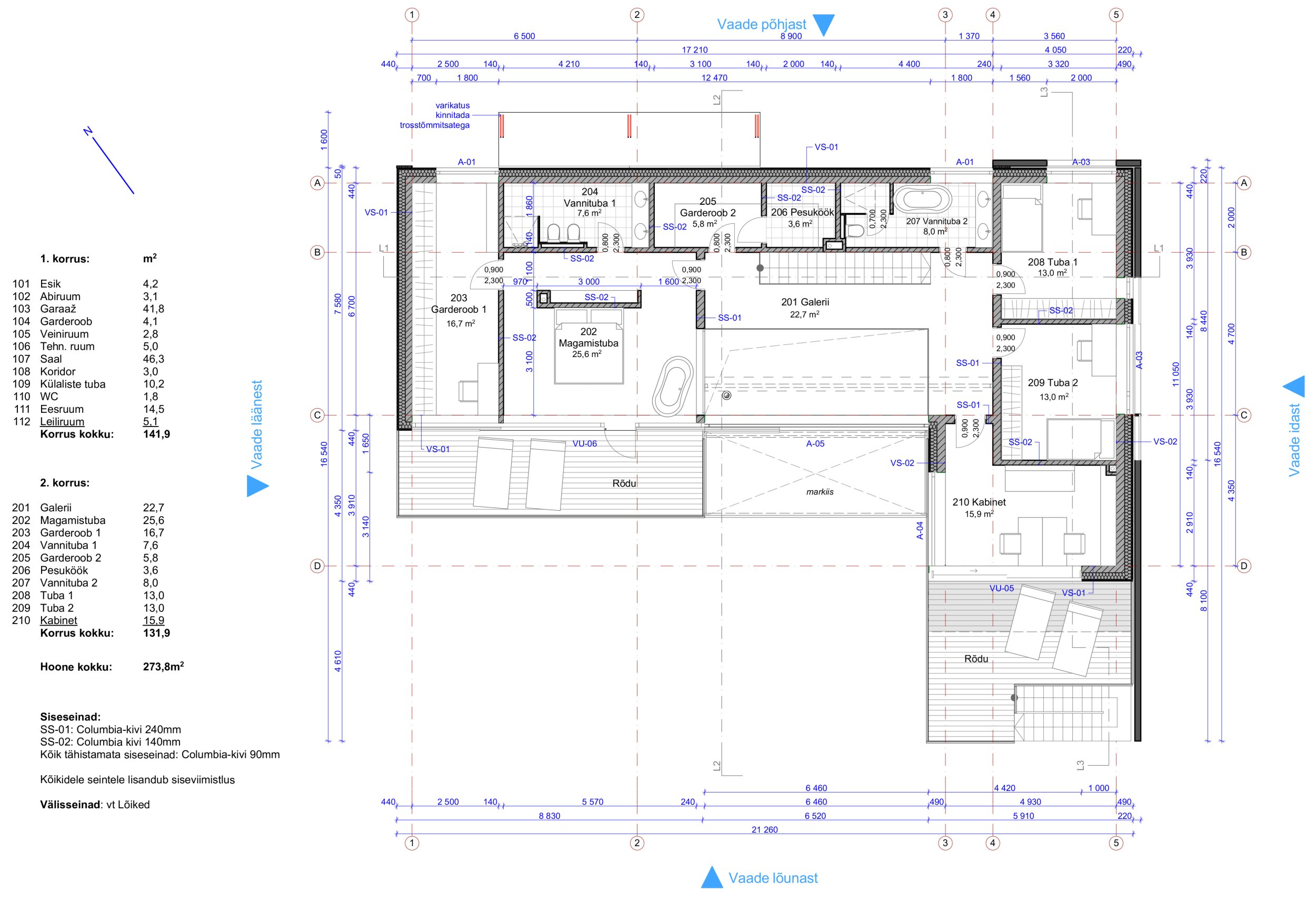
On vaja koostada kütte- ja ventilatsioonisüsteemi projekt eramajale, kogupind on 270 m2. Majas sees on paigaldatud kontuurid 1. ja 2. korrusel ning peamiseks kütteallikaks on maaküte.

Pildid, video ja failid

Hanke korraldaja: eraisik ID76931

Pakkumised

Pakkumisi kokku: 3

Ettevõte Summa Käibemaks Lisatud Vestlus
Kasutaja ikoon ID63115
Pakkuja profiil Väike nool paremale
1 400€ KM lisandub KM lisandub 21.04.2024 Vestlus (0)

Pakkumise kirjeldus:

Tere

Hinnapakkumine sisaldab kütte-, ventilatsioonisüsteemide põhiprojekti.
Ettemaksu ei soovi. Vastutava isiku allkiri on hinna sees.
Kütte pakkumine sisaldab soojuskadude arvutamist dünaamilises tarkvaras, põrandküttetorude projekteerimist, magistraalide jooniseid, soojussõlme projekteerimist, põhiseadmete mahuloetelu ja seletuskirja. (vast ... Rohkem

Kasutaja ikoon ID48870
Pakkuja profiil Väike nool paremale
1 450€ KM lisandub KM lisandub 27.04.2024 Vestlus (0)

Pakkumise kirjeldus:

Olen insener, arhitekt tase 7.
Omame MTR registreeringut, EEP-EEO-EPE-EEK,
EEP: arhitektuuri osa
hoonesisene või selle juurde kuuluv veevarustuse või kanalisatsioonisüsteem
konstruktsioonide osa
sisekliima tagamise süsteem
EEO: hoonesisene või selle juurde kuuluv veevarustuse või kanalisatsioonisüsteem
sisekliima tagamise süsteem
ühisveevär ... Rohkem

Kasutaja ikoon ID66770
Pakkuja profiil Väike nool paremale
1 000€ Sisaldab KM Sisaldab KM 27.04.2024 Vestlus (0)

Pakkumise kirjeldus:

Tere,
Antud hinnapakkumine sisaldab kütte- ja ventilatsioonisüsteemide põhiprojekti eramajale, maht vastavalt standardile EVS 932 "Ehitusprojekt”.
Kütte projektis sisalduvad soojuskadude arvutus, põrandakütte torude projekteerimine, magistraaltorude jooniseid, soojuspumba/kütteallika valimine, põhiseadmete mahtude loetelu ja seletuskiri.
Ventila ... Rohkem

Küsimused hanke korraldajale

Hanke korraldajale ei ole veel küsimusi esitatud.

Lisa küsimus

Lisa küsimus

Minu pakkumine

Reeglid

Pakkumise kirjelduse väli on mõeldud pakkumise detailsemaks lahti kirjutamiseks. Pikema teksti mugavaks sisestamiseks klikkige kasti paremal ülaservas oleval ikoonil.
Pakkumist tehes on keelatud postitada enda kontaktandmeid (nimi, telefon, aadress jne). Me jälgime ja analüüsime pakkumisi, et vältida pettuseid ja reeglite rikkumisi.
Rikkumise puhul kasutajakonto blokeeritakse.

 

Teisi töid samas valdkonnas

Valdkonnas "Küttesüsteemid" on 2 aktiivset tööd

Kütesüsteemi ekspertiis

Asukoht: Harjumaa, Tallinn
Aega jäänud: 23h 0 min
Tehtud pakkumisi: 1

Päikesekütte hooldus

Asukoht: Harjumaa, Laulasmaa
Aega jäänud: 6p 23h
Tehtud pakkumisi: 0

Vanemad teated:

Vaata kõiki

Sellel veebilehel kasutatakse küpsiseid. Kasutamist jätkates nõustute küpsiste kasutamisega.

Sulge
 
Minu pakkumine

Reeglid

Pakkumise kirjelduse väli on mõeldud pakkumise detailsemaks lahti kirjutamiseks. Pikema teksti mugavaks sisestamiseks klikkige kasti paremal ülaservas oleval ikoonil.
Pakkumist tehes on keelatud postitada enda kontaktandmeid (nimi, telefon, aadress jne). Me jälgime ja analüüsime pakkumisi, et vältida pettuseid ja reeglite rikkumisi.
Rikkumise puhul kasutajakonto blokeeritakse.