+ Lisa oma töö      

Otsid ehitajat "Vundamenditööd" valdkonnast?

Parima pakkumise ja teostaja leidmiseks lisa oma töö.

54m2 plaatvundamendi ehitus

ID 95173

543 vaatamist

Prindi

  • check Pakkumiste tegemine
    kuni 27.04.2024
  • check Võitja valik kuni
    04.05.2024
  • 3 Töö teostamine
    ja hinnang
Hanke lõpp: L, 27. aprill, 2024
Maakond: Pärnumaa
Muu asula: Eametsa
Tööde lõpp: Kokkuleppel
Ehitusmaterjalid: Töö tellija poolt
Soovin pakkumisi: Summa kogu projektile

Pildid, video ja failid

Hanke korraldaja: eraisik ID81438

Pakkumised

Pakkumisi kokku: 5

Ettevõte Summa Käibemaks Lisatud Vestlus
Kasutaja ikoon ID72190
Pakkuja profiil Väike nool paremale
14 500€ KM lisandub KM lisandub 24.04.2024 Vestlus (0)
Kasutaja ikoon ID50594
Pakkuja profiil Väike nool paremale
26 800€ KM lisandub KM lisandub 24.04.2024 Vestlus (0)

Pakkumise kirjeldus:

Tere,

Pakkumine vastavalt hanke kirjeldusele.
Töö kaevest kuni müürivöö valamiseni.

Lgp. Taivo

Kasutaja ikoon ID78083
Pakkuja profiil Väike nool paremale
5 400€ Ei ole KMKR Ei ole KMKR 26.04.2024 Vestlus (0)

Pakkumise kirjeldus:

Tere
Teen pakkumise antud rm2
Hind sisaldab ainult tööraha.
Väljakaevest kuni betoneerimiseni.

Kasutaja ikoon ID47802
Pakkuja profiil Väike nool paremale
6 000€ Sisaldab KM Sisaldab KM 27.04.2024 Vestlus (0)

Pakkumise kirjeldus:

Töö, arvestades teie olemasolevaid materjale, Valmis pind lihvitud betoon.
Lgp Marek

Kasutaja ikoon ID79944
Pakkuja profiil Väike nool paremale
14 000€ Sisaldab KM Sisaldab KM 27.04.2024 Vestlus (0)

Küsimused hanke korraldajale

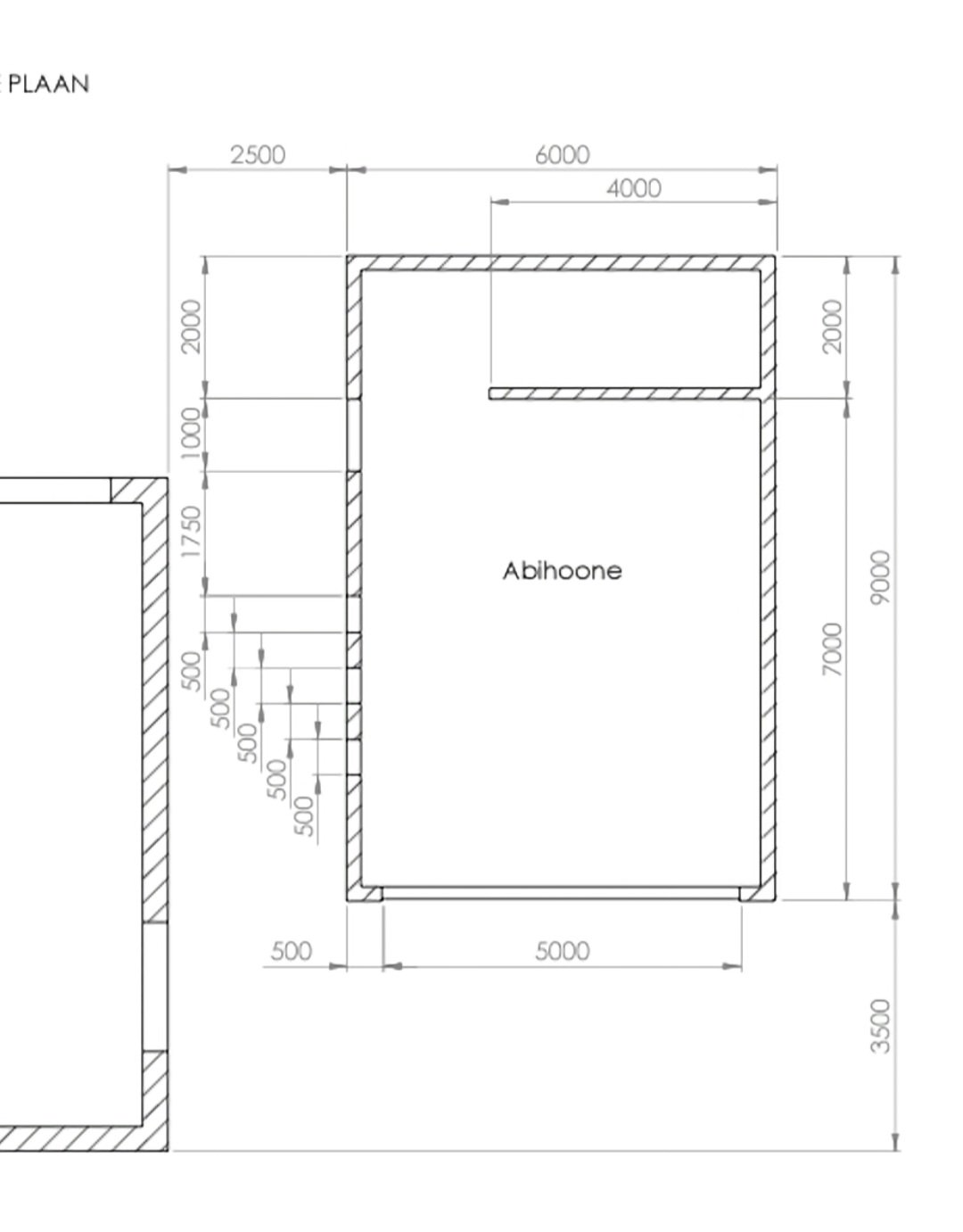
Küsimus: private ID81208   23.04.2024 09:49
Tere
Kas on mingeid muid jooniseid - Lõiked näiteks kahde pidi?

Teavita reeglite rikkumisest

Korraldaja vastus: 23.04.2024 09:58

Tere.

Lisasin ühe pildi juurde, loodetavasti on abiks.

Teavita reeglite rikkumisest

Küsimus: private ID81208   23.04.2024 10:21
Tere
Ei ole abiks kahjuks . vaja lõikeid vundamendist .
sealt näeb põrandaplaadi serva paksused ja põranda enda paksuse , armatuuri jaotus ja spetsifikatsioon .
kui neid ei ole siis kas tahate et mõtleme ise välja ?Kas põranda alla soojustus tuleb ?

Teavita reeglite rikkumisest

Korraldaja vastus: 23.04.2024 10:54

Lisasin ka olemasolevad materjalid pildina. Ise pole pädev ehitusvaldkonnas kahjuks aga saan aru, et EPS koos L-plokkidega on vajalik külmalt kerkimise vastu. Põrandasse kütet ei tule, kui seda mõtlete. Plaanis kasutada abihoonet garaažina.

Teavita reeglite rikkumisest

Lisa küsimus

Lisa küsimus

Minu pakkumine

Reeglid

Pakkumise kirjelduse väli on mõeldud pakkumise detailsemaks lahti kirjutamiseks. Pikema teksti mugavaks sisestamiseks klikkige kasti paremal ülaservas oleval ikoonil.
Pakkumist tehes on keelatud postitada enda kontaktandmeid (nimi, telefon, aadress jne). Me jälgime ja analüüsime pakkumisi, et vältida pettuseid ja reeglite rikkumisi.
Rikkumise puhul kasutajakonto blokeeritakse.

 

Vanemad teated:

Vaata kõiki

Sellel veebilehel kasutatakse küpsiseid. Kasutamist jätkates nõustute küpsiste kasutamisega.

Sulge
 
Minu pakkumine

Reeglid

Pakkumise kirjelduse väli on mõeldud pakkumise detailsemaks lahti kirjutamiseks. Pikema teksti mugavaks sisestamiseks klikkige kasti paremal ülaservas oleval ikoonil.
Pakkumist tehes on keelatud postitada enda kontaktandmeid (nimi, telefon, aadress jne). Me jälgime ja analüüsime pakkumisi, et vältida pettuseid ja reeglite rikkumisi.
Rikkumise puhul kasutajakonto blokeeritakse.