+ Lisa oma töö      

Otsid ehitajat "Renoveerimine" valdkonnast?

Parima pakkumise ja teostaja leidmiseks lisa oma töö.

Eramaja renoveerimine

ID 95145

747 vaatamist

Prindi

  • check Pakkumiste tegemine
    kuni 03.05.2024
  • check Võitja valik kuni
    10.05.2024
  • 3 Töö teostamine
    ja hinnang
Hanke lõpp: R, 3. mai, 2024
Maakond: Viljandimaa
Muu asula: Viiratsi
Tööde lõpp: Kokkuleppel
Ehitusmaterjalid: Töö tellija poolt
Soovin pakkumisi: Summa kogu projektile

Töö sisu

Plaanis renoveerida 1970-ndate lõpus ehitatud ja hetkeseisuga osaliselt remonditud eramu.
Kogu tekkinud prügi ja ehitusprahi utiliseerib töövõtja.
Loetelu lõpus toon välja ka mõned mahukamad lisatööd milleta ei saa mingit tööd alustada või korrektselt lõpetada.

Vajalikud tööd (Palun tuua välja eraldi hind igale tööle ja kellel soov kõik korraga käsile võtta siis hind kokku):
Töö nr 1. Vundament:
>Vana veranda/varjualuse lammutus
>Keldri akende vahetus 5tk (aknad olemas) Vaata pilte!
>Osa vanadest akendest tuleb laduda kinni. Vaata pilte!
>Vundamendi lahtikaevamine
>Kanalisatsiooni viimase lõigu vahetus vundamendi alt kuni kaevuni. Ca 5-6m
>Hüdroisolatsioon
>Soojustamine 100mm Eps
>Keldri osale drenaaži rajamine
>Tagasitäitmine liiva/kruusaga ja tihendamine
>Väljakaevatud pinnas tuleb vedada ära.

Töö nr 2. Hoone madalam pool (põhikorrus): (see hoone osa on seest remonditud.)
>Räästakastide osaline/vajadusel täielik lammutus
>Vana silikaatvoodri lammutus (vana saepuru soojustus on asendatud kivivillaga. )
>Uue karkassi püstitamine 5x150 silikaadi asemele
>Soojustus kivivill
>Tuuletõke kanga paigaldus
>Lõppviimistlus hetkel kahe vahel. Kas laudis või Marmorock

Töö nr 3. Hoone kõrgem pool: Kõrgus harjani ca 5,5m
>Räästakastide osaline lammutus
>Uue silde tegemine (Garaaži ukse pealses silikaadis praod)
>Soojustus Eps 100mm
>Armeerimine
>Krohvimine

Töö nr 4. Katus:
>Vana korstna lammutus ja uue moodulkorstna paigaldamine.
>Vana eterniidi lammutus
>Hingava aluskatte paigaldus
>Uus roovitus
>Uue eterniidi paigaldus.
>Katuseakna paigaldus
>Vihmaveerennide paigaldus
>Harja ja ääreplekkide paigaldus
>Lagede soojustamine. (Teise korruse ühel ruumil puudub lagi. Sellesse ruumi tuleb ka katuseaken ning see tuleb soojustada vahetult katuse alt. Teise korruse pilt ruumi nr 22 )


Töö nr 5. Renoveerimis projekt (peab sisaldama ka küte ja ventilatsiooni osa).
Töö nr 6. Soojustagastusega ventilatsiooni väljaehitamine.
Töö nr 7. Õhk-vesi pumba lisamine olemasolevale süsteemile. Hetkel kütab maja puukatel. Renoveerimisel tuleks välja vahetada/modifitseerida akumulatsioonipaak ning teostada vajalike torutöid. Kütteautomaatika lisamine (vajadusel, hetkel puudub). Põhikorruse põrandaküte on välja ehitatud. Teisel korrusel hetkel kaks radiaatorit. Tulevikus peaks ka seda korrust kütma põrand.

Vajalikud tähtsamad lisatööd:
>Keldri ruumide põrandate lammutus ja uute valamine koos osaliselt põrandaküte paigaldusega.
Lammutamist vajav osa ca 60rm. Üks ruum (pilt „kelder“ ruum nr 4) ja katla alune on juba valatud uued.
>Keldris ühte kandvasse seina ukseava lõikamine (pilt „kelder“ ruumide 1 ja 2 vahele)
>Välistreppide lammutus (vajadusel, vundamendi soojustuse külmasilla vältimiseks)
>Esiku laiendus. Ca 2,5m nurk
>Välistreppide vundamendi valamine (vajadusel)
>Nelja akna vahetus hoone kõrgemas pooles (väiksem aken olemas)
>Uue silde tegemine (Garaaži ukse pealses silikaadis praod)


Parimale koostööle lootes!!
Edu!

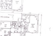
Pildid, video ja failid

Hanke korraldaja: eraisik ID81425

Pakkumised

Pakkumisi kokku: 3

Ettevõte Summa Käibemaks Lisatud Vestlus
Kasutaja ikoon ID78749
Pakkuja profiil Väike nool paremale
31 562€ Sisaldab KM Sisaldab KM 20.04.2024 Vestlus (3)

Pakkumise kirjeldus:

Fassaad kõrgemas osas 114 m2 alustusliistu paigaldus beno kleepimine, Armeerimine, struktuurvärvi peale kandmine.

Tööraha: 68 eur m2 — 7752.

Fassaad madalamas osas 100 m2 arvestan siis tuulutava fassaadiga Kuhu tuleb peale marmoroc, 150 karkassi rihtimine, tuuletökke langs ja villa paigaldus tuulutusliist. Marmoroc karkassi paigaldus ja kivi l ... Rohkem

Kasutaja ikoon ID74673
Pakkuja profiil Väike nool paremale
6 800€ Ei ole KMKR Ei ole KMKR 22.04.2024 Vestlus (2)

Pakkumise kirjeldus:

Tervist. Pakkumine sisaldab ainult tööraha.
* Tuulekastide lammutus+ uute ehitus
* Vana eterniidi eemaldust ja uue paigaldust
*Uus aluskate+tuulutusliist+ roov
* Vihmavee süsteemi paigaldust
* Vana korstna lammutus+ uue moodulkorstna paigaldus
* Harja-,ääre- ning korstnapkekkide paigaldus
Parimat soovides, Taavi

Kasutaja ikoon ID81593
Pakkuja profiil Väike nool paremale
49 700€ Sisaldab KM Sisaldab KM 25.04.2024 Vestlus (8)

Pakkumise kirjeldus:

Fassaad madalamas osas 100 m2 14000.- (Marmoroc)
Fassaad kõrgemas osas 114m2 11850.-
Räästa ehitus lammutus 80jm. 3500.-
Sademeveetorude paigaldus. 350.-
Katuse ehitus 120m2+80m2. 20000.-

Hinnad on koos materjalidega ja võivad muutuda, pakkumine tehtud hankes märgitud info põhjal

Garantii tehtud töödele 2 a ... Rohkem

Küsimused hanke korraldajale

Küsimus: private ID78749   20.04.2024 08:45
Tere kas sobib Kui ma teeksin pakkumise avatäidete paigalduse ja kinniladumise, fassaadi soojustuse ja katusetööde peale ? Veerennid, tuulekastid jms.
Selleks vajan katuse, fassaadipindala, tuulekasti jm. Et teha teile võimalikult täpse pakkumise.
Alustamine kokkuleppel.

Teavita reeglite rikkumisest

Korraldaja vastus: 20.04.2024 09:35

Minu arvutus:
Fassaadi pindala arvutamises ei ole välja arvestatud mõlema poole ühist osa.
1. Fassaad madalamas osas ca 100m2 (aknad välja arvestatud, 4tk)
2. Fassaad kõrgemas osas ca 114m2 (aknad välja arvestatud,6tk )
3. Räästa pikkus ca 80m
4.Vihmaveerennid ca 36 m
5. Katuse pindala: Madalam osa ca120m2 ja kõrgem ca80m2

Teavita reeglite rikkumisest

Küsimus: private ID78749   20.04.2024 13:28
Tere , pakkumine tehtud.

Parimat

Teavita reeglite rikkumisest

Korraldaja vastus:
Hanke korraldaja ei ole küsimusele veel vastanud

Küsimus: private ID67766   20.04.2024 16:44
Tere .Võin teha pakkumise vundamendi soojustus tööle koos kanalisatsiooni ja teiste vundamendiga seotud töödele , ja muidugi lammutus tööle Palju on jm vundamendil, Parimat soovides,

Teavita reeglite rikkumisest

Korraldaja vastus: 20.04.2024 20:53

Tere.
Keldri osa ca 75 m2 ja hoone kõrgemas osas +esik koos laiendusega ca 32 m2 arvestusega ca 70 cm sügavusele. (kõrgemas osas näitab küll 70-ndate projekt sügavuseks 2,15m kuid tuginedes naabrite kogemusele julgen selles kahelda. Kui vanad ehitajad ei ole siiski laisad olnud ja ehitanud projekti järgi siis tuleb kombineerida vertikaal ja horisontaal soojustamist ca 70 cm sügavusele)

Teavita reeglite rikkumisest

Küsimus: private ID74673   22.04.2024 23:16
Tervist. Teeksin pakkumise katusetöödele.
Edu soovides.

Teavita reeglite rikkumisest

Korraldaja vastus:
Hanke korraldaja ei ole küsimusele veel vastanud

Lisa küsimus

Lisa küsimus

Minu pakkumine

Reeglid

Pakkumise kirjelduse väli on mõeldud pakkumise detailsemaks lahti kirjutamiseks. Pikema teksti mugavaks sisestamiseks klikkige kasti paremal ülaservas oleval ikoonil.
Pakkumist tehes on keelatud postitada enda kontaktandmeid (nimi, telefon, aadress jne). Me jälgime ja analüüsime pakkumisi, et vältida pettuseid ja reeglite rikkumisi.
Rikkumise puhul kasutajakonto blokeeritakse.

 

Teisi töid samas valdkonnas

Valdkonnas "Renoveerimine" on 2 aktiivset tööd

Pinkide puitdetailide vahetus

Asukoht: Harjumaa, Tallinn
Aega jäänud: 16p 10h
Tehtud pakkumisi: 14

no-img Pilt puudub

Renoveerimisprojekti koostamine

Asukoht: Läänemaa, Matsalu
Aega jäänud: 24p 10h
Tehtud pakkumisi: 2

Vanemad teated:

Vaata kõiki

Sellel veebilehel kasutatakse küpsiseid. Kasutamist jätkates nõustute küpsiste kasutamisega.

Sulge
 
Minu pakkumine

Reeglid

Pakkumise kirjelduse väli on mõeldud pakkumise detailsemaks lahti kirjutamiseks. Pikema teksti mugavaks sisestamiseks klikkige kasti paremal ülaservas oleval ikoonil.
Pakkumist tehes on keelatud postitada enda kontaktandmeid (nimi, telefon, aadress jne). Me jälgime ja analüüsime pakkumisi, et vältida pettuseid ja reeglite rikkumisi.
Rikkumise puhul kasutajakonto blokeeritakse.