+ Lisa oma töö      

Otsid ehitajat "Üldehitus" valdkonnast?

Parima pakkumise ja teostaja leidmiseks lisa oma töö.

Maja renoveerimine

ID 94859

465 vaatamist

Prindi

  • check Pakkumiste tegemine
    kuni 22.04.2024
  • check Võitja valik kuni
    29.04.2024
  • 3 Töö teostamine
    ja hinnang
Hanke lõpp: E, 22. aprill, 2024
Maakond: Tartumaa
Muu asula: Igavere
Tööde lõpp: T, 30. september, 2025
Ehitusmaterjalid: Töö tegija poolt
Soovin pakkumisi: Summa kogu projektile

Pildid, video ja failid

Hanke korraldaja: eraisik ID81305

Pakkumised

Pakkumisi kokku: 4

Ettevõte Summa Käibemaks Lisatud Vestlus
Kasutaja ikoon ID57450
Pakkuja profiil Väike nool paremale
220 000€ KM lisandub KM lisandub 16.04.2024 Vestlus (0)

Pakkumise kirjeldus:

Hind vastavalt lähteülesandele. Huvi korral võtke ühendust, tuleme läbi ning koostame detailse pakkumise.
Edukat hanget!

Kasutaja ikoon ID50594
Pakkuja profiil Väike nool paremale
250 000€ KM lisandub KM lisandub 21.04.2024 Vestlus (0)

Pakkumise kirjeldus:

Tere,

Esialgne pakkumine. Huvi korral koostame detailse pakkumise.

Lgp. Taivo

Kasutaja ikoon ID54345
Pakkuja profiil Väike nool paremale
1 600€ KM lisandub KM lisandub 22.04.2024 Vestlus (0)

Pakkumise kirjeldus:

Tervist, kogu hinnapakkumist keeruline nendel andmetel teha, samuti ei saa siin keskkonnas pakkuda tunnitöö hinda. Pakun siis hinna akende vahetusele, ei sisalda hind aknaid, akende materjalid vaja kohapeal üle rääkida,Oleme objektist üleni huvitatud, tegeleme vanade majade restaureerimise ja renoveerimisega. Olemas ka osavad mehed ja spetsialistid nii ... Rohkem

Kasutaja ikoon ID53974
Pakkuja profiil Väike nool paremale
208 900€ KM lisandub KM lisandub 22.04.2024 Vestlus (0)

Pakkumise kirjeldus:

Võimas on ta teil igaljuhul väga keeruline kindlat pakkumist teha aga suurusjärk millega peaksite kindlasti arvestama on pakkumises.
Esialgne pakkumine vastavalt hankes olemasolevake informatsioonile.
Kirjutage julgelt kui küsimusi tekib vastame meeleldi.
Kohapeal olukorda ülevaadates ning reaalset pakkumist koostades võib hind muutuda.
Terv

Küsimused hanke korraldajale

Küsimus: private ID65236   15.04.2024 21:52
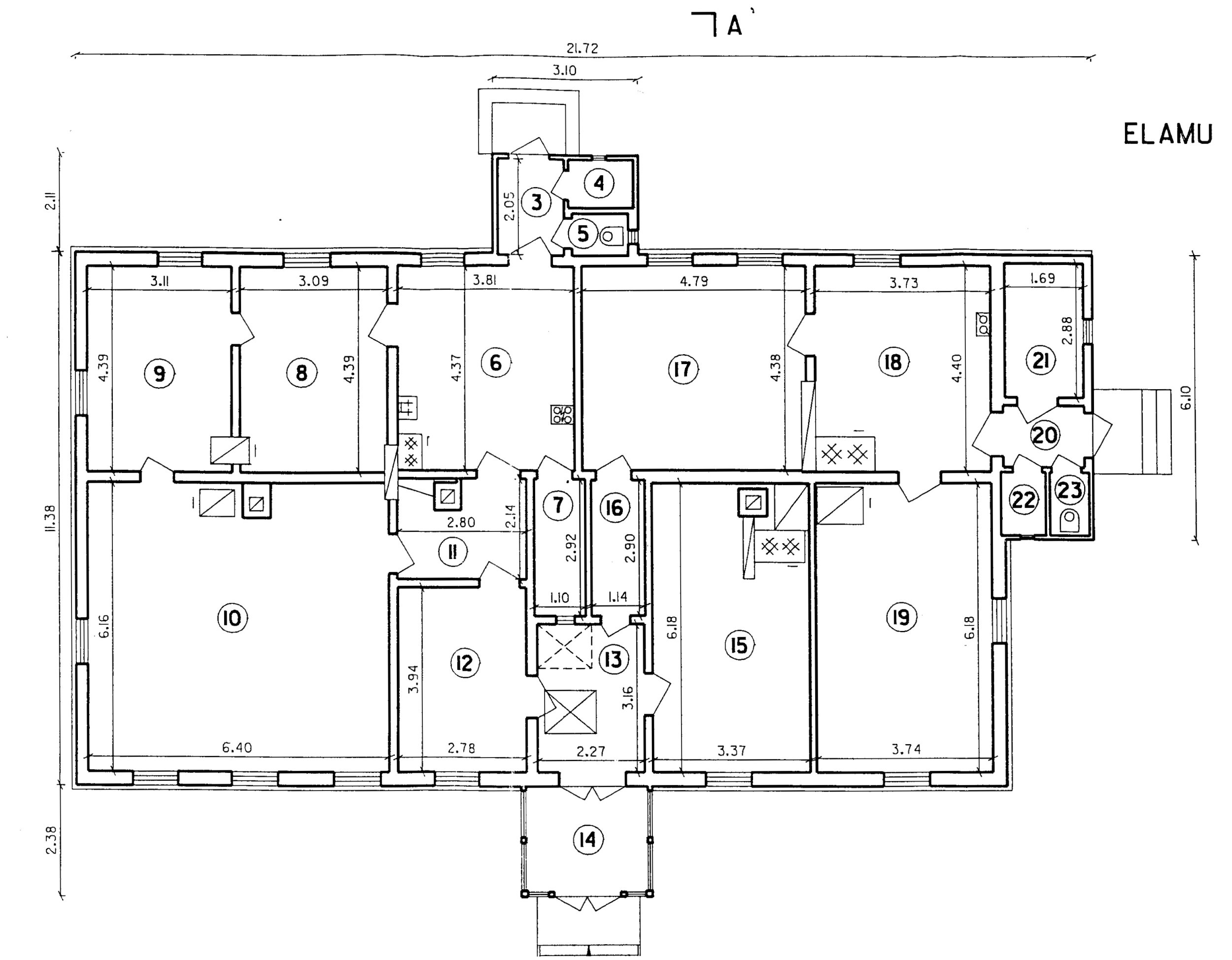
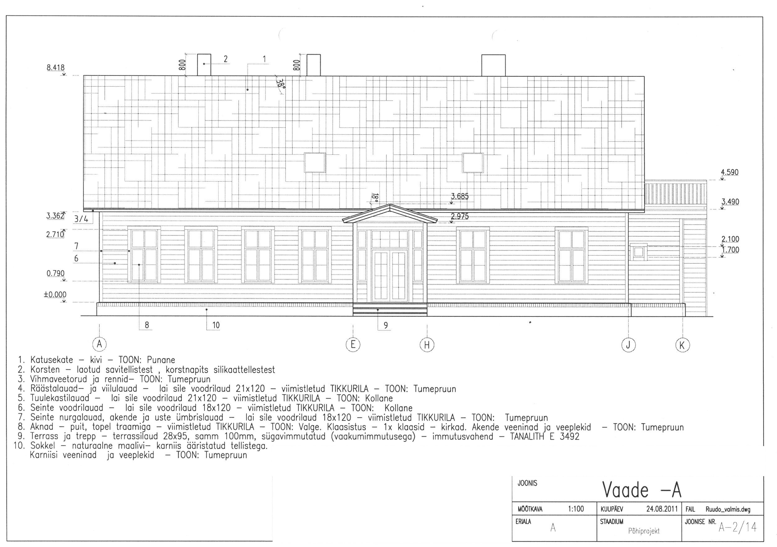
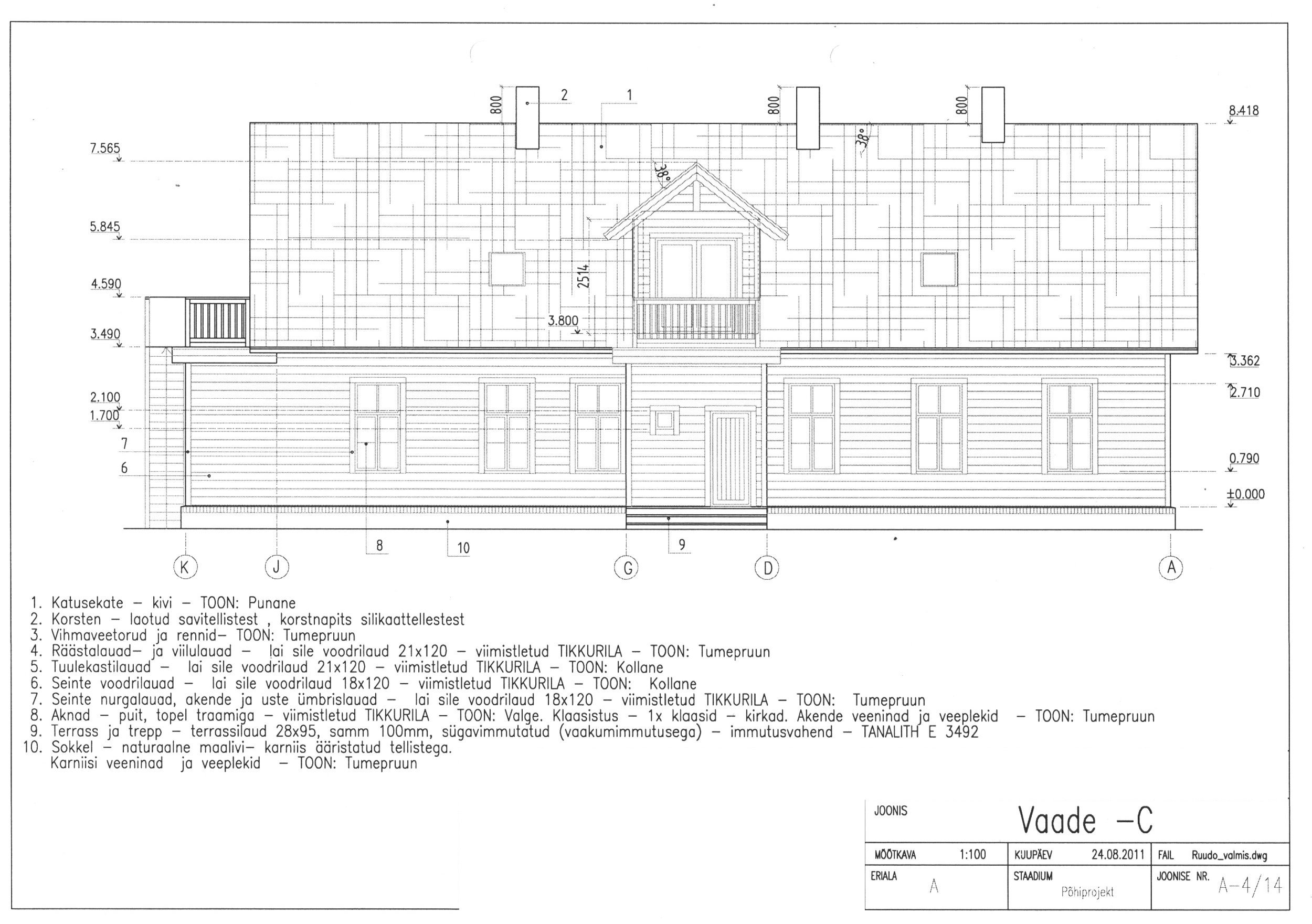
Tervist! Mis töid soovite täpsemalt teostada? Joonistelt loen välja, et katus, terrassid ja fassaad, kas midagi veel?
Parimat!

Teavita reeglite rikkumisest

Korraldaja vastus: 18.04.2024 22:34

Maja katus on vahetatud, lae soojustus vajab korrastamist, mingis etapis ka katusealuse nö väljaehitamine on plaanis. Akende vahetus, maakivist vundamendi korrastus. Esikute ja terrasside uuendamine/lisamine, kõrvalhoonetel katuste uuendus ja päikesepaneelide paigaldus. Õhk-vesi soojuspumba abil radiaatorküttesüsteemi lisamine, kaevust veevarustuse kööki toomine jm.

Teavita reeglite rikkumisest

Küsimus: private ID67766   18.04.2024 17:13
Tere .Peaks alustama vundamendi ja perimeetri soojustamisest .Võime aidata selle tööga ,Parimat soovides

Teavita reeglite rikkumisest

Korraldaja vastus:
Hanke korraldaja ei ole küsimusele veel vastanud

Küsimus: private ID67766   20.04.2024 19:46
Tere ,Oleks huvitatud sellest tööst, Võimalusel vaataks üle ja teeks konkreetse pakkumise. Parimat soovides

Teavita reeglite rikkumisest

Korraldaja vastus: 21.04.2024 11:28

See on 1905.a. maakivist laotud vundamendile rajatud endine külakoolimaja. Soov on vundamenti parandada, aga sellisena säilitada.

Teavita reeglite rikkumisest

Lisa küsimus

Lisa küsimus

Minu pakkumine

Reeglid

Pakkumise kirjelduse väli on mõeldud pakkumise detailsemaks lahti kirjutamiseks. Pikema teksti mugavaks sisestamiseks klikkige kasti paremal ülaservas oleval ikoonil.
Pakkumist tehes on keelatud postitada enda kontaktandmeid (nimi, telefon, aadress jne). Me jälgime ja analüüsime pakkumisi, et vältida pettuseid ja reeglite rikkumisi.
Rikkumise puhul kasutajakonto blokeeritakse.

 

Teisi töid samas valdkonnas

Valdkonnas "Üldehitus" on 35 aktiivset tööd

Kuuri lammutus

Asukoht: Pärnumaa
Aega jäänud: 2p 2h
Tehtud pakkumisi: 9

Põrandakütte torustiku ja kollektori paigaldus.

Asukoht: Harjumaa, Kurkse
Aega jäänud: 15p 2h
Tehtud pakkumisi: 4

Vanemad teated:

Vaata kõiki

Sellel veebilehel kasutatakse küpsiseid. Kasutamist jätkates nõustute küpsiste kasutamisega.

Sulge
 
Minu pakkumine

Reeglid

Pakkumise kirjelduse väli on mõeldud pakkumise detailsemaks lahti kirjutamiseks. Pikema teksti mugavaks sisestamiseks klikkige kasti paremal ülaservas oleval ikoonil.
Pakkumist tehes on keelatud postitada enda kontaktandmeid (nimi, telefon, aadress jne). Me jälgime ja analüüsime pakkumisi, et vältida pettuseid ja reeglite rikkumisi.
Rikkumise puhul kasutajakonto blokeeritakse.