+ Lisa oma töö      

Otsid ehitajat "Üldehitus" valdkonnast?

Parima pakkumise ja teostaja leidmiseks lisa oma töö.

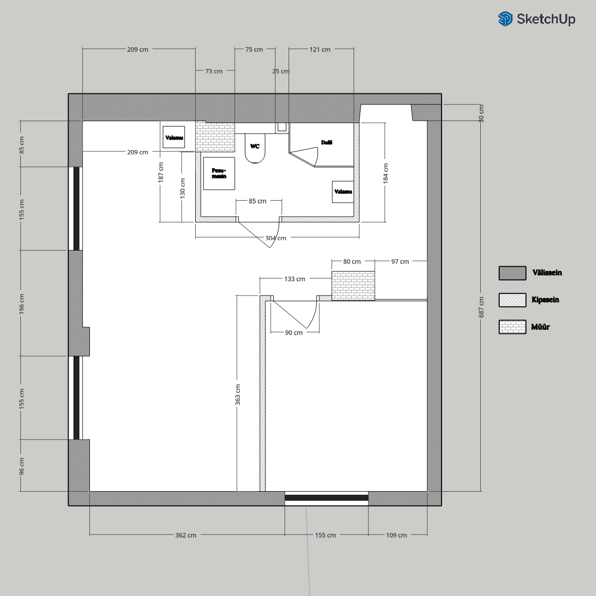
Kahetoalise korteri kapitaalremont

ID 94718

666 vaatamist

Prindi

  • check Pakkumiste tegemine
    kuni 15.05.2024
  • check Võitja valik kuni
    22.05.2024
  • 3 Töö teostamine
    ja hinnang
Hanke lõpp: K, 15. mai, 2024
Maakond: Harjumaa
Linn: Tallinn
Tööde lõpp: N, 01. august, 2024
Ehitusmaterjalid: Töö tegija poolt
Soovin pakkumisi: Summa kogu projektile

Töö sisu

Kahetoalise korteri kapitaalremont (40m2). Asukoht Balti jaama läheduses ja kolmandal korrusel. Korteris on seni olnud vee soojendamiseks gaas, mille asendaks elektriboileriga.

Juba tehtud tööd:
- Vaheseinte lammutus (mittekandvad)
- Akende vahetus

Eeltööd:
- Vaheseina lammutamine (130x290) (mittekandev)
- Olemasoleva põranda ja soojustuse eemaldamine
- Ehitusprahi koristamine sh. olemasoleva sanitaartehnika eemaldamine ja utiliseerimine

Põhitööd:
- Aluspõrandate ehitamine, parketi ja põrandaliistude paigaldus, ca 36m2.
- Vannitoa ehitamine koos vee, elektri, kanalisatsiooni ja ventilatsiooniga. Põrandal plaat ja küte. Seintel osaliselt plaat ca 5m2, osaliselt krohv. Viimistlemine ja elektriboileri, san-tehnika ja valmismööbli paigaldus.
- Kipsseinte ehitus (sh vannituba) ca 12m
- Elektriprojekt ja elektritööd kogu korteri ulatuses, koos uue kaitsmekapiga, sh pistikute, lülitite ja valgustite paigaldusega.
- Radiaatorite puhastamine ja värvimine (radiaatoreid ei vaheta ja ei eemalda).
- Seinte, lagede ja palede krohvimine, pahteldamine, kruntimine ja värvimine.
- Uste paigaldus (vannituba, magamistuba)
- Aknalaudade paigaldus
- Köögis
- Transport ja prügivedu ja teised jooksvad kulud, mis on vajalikud tööde teostamiseks.

Sisustusmaterjalid hangib Tellija (parkett, põrandaliistud, uksed, keraamilised plaadid, sanitaartehnika, valgustid, boiler), kõik ülejäänud (kuluvahendid) hangib töö teostaja.

Eeldame, et töö tellija poolt mõistuse piires teatud muudatuste tegemine korteri plaanis on töö teostajale aktseptseeritav (küsimus magamistoa ja vannitoa ühe nurga osas).

Pildid, video ja failid

Hanke korraldaja: ettevõte ID61834

Pakkumised

Pakkumisi kokku: 7

Ettevõte Summa Käibemaks Lisatud Vestlus
Kasutaja ikoon ID78757
Pakkuja profiil Väike nool paremale
11 500€ Sisaldab KM Sisaldab KM 15.04.2024 Vestlus (0)
Kasutaja ikoon ID72080
Pakkuja profiil Väike nool paremale
15 600€ Ei ole KMKR Ei ole KMKR 15.04.2024 Vestlus (0)

Pakkumise kirjeldus:

pakkumine antud tööle !

Kasutaja ikoon ID77529
Pakkuja profiil Väike nool paremale
24 000€ KM lisandub KM lisandub 16.04.2024 Vestlus (3)

Pakkumise kirjeldus:

Tere

Tegeleme muinsuskaitse ja miljööväärtuslikes piirkondades puit- ja kivi konstruktsioonide renoveerimis ja konserveerimistöödega. Pakume laialdast ümberehitus- ja projekteerimisteenust. Vajadusel oskame soovitada väärt sisearhitektide kontakte. Meie portfooliost võite leida nii mõnegi peenema näidise ja vajadusel saame vastavalt Teie proje ... Rohkem

Kasutaja ikoon ID56387
Pakkuja profiil Väike nool paremale
31 800€ KM lisandub KM lisandub 16.04.2024 Vestlus (0)

Pakkumise kirjeldus:

Tere, pakkumine sisaldab kõiki soovitud töid koos materjalidega. Materjalide alla ei kuulu siis kõik mille valib tellija ehk ka aknalauad. Jooksvalt võib vabalt muudatusi teha vastavalt teie soovidele ja hind ei tohiks sellest muutuda. Hind sisaldab ka köögimööbli monteerimist.

Arvega lisandub hinnale käibemaks. Ettemaks on hange.ee teenustasu u ... Rohkem

Kasutaja ikoon ID77006
Pakkuja profiil Väike nool paremale
12 800€ Sisaldab KM Sisaldab KM 17.04.2024 Vestlus (0)

Pakkumise kirjeldus:

Tere. Näidatud hind kehtib kõigi vajalike tööde ja materjalide eest vastavalt teie soovile. Robotitel on 2-aastane garantii. Meie 3-liikmeline meeskond teeb kõik kiiresti ja täpselt. Hinnale lisandub hange.ee tasu. Aitäh, loodan meeldivale koostööle.

Kasutaja ikoon ID50594
Pakkuja profiil Väike nool paremale
42 800€ KM lisandub KM lisandub 19.04.2024 Vestlus (0)

Pakkumise kirjeldus:

Tere,

Pakkumine vastavalt hanke kirjeldusele.

Lgp. Taivo

Kasutaja ikoon ID47246
Pakkuja profiil Väike nool paremale
2 290€ Ikoon kell KM lisandub KM lisandub 15.05.2024 Vestlus (0)

Pakkumise kirjeldus:

Pakkumine elektritöödele
1.soonte ja tooside lõikamist. (vertikaalsed lõiked) kuni 45 PP ja 6 lülitit
2. tooside paigaldust
3. Jõu ja valguse Kaabeldust.
4. Uue peakaabli vedu korrusekilbist. Uue pinnapealse jaotuskilbi paigaldust ja ühendust 24 moodulit. Uue peakaabli vedu korrusekilbist.
5. Jaotuskarpide paigaldust ja ühendus, ripplaes kuni 2 ... Rohkem

Küsimused hanke korraldajale

Küsimus: private ID56387   16.04.2024 17:30
Tere, oskate öelda kui paks on selle šlaki kiht põranda all? Kas 1. august on täiesti kindel kuupäev millal soovite, et korter oleks valmis?

Parimat,
Marek

Teavita reeglite rikkumisest

Korraldaja vastus: 16.04.2024 20:47

Tere, käisin just vaatamas. Serva alla piiludes tundub, et see ei ole eriti paks, võib-olla 3-4cm, mitte rohkem. 1 Augusti osas annab läbi rääkida, aga oluline on, et projektil oleks kindel lõppaeg, millega töö tellija ja teostaja saavad arvestada.

Tervitades,
Toomas

Teavita reeglite rikkumisest

Lisa küsimus

Lisa küsimus

Minu pakkumine

Reeglid

Pakkumise kirjelduse väli on mõeldud pakkumise detailsemaks lahti kirjutamiseks. Pikema teksti mugavaks sisestamiseks klikkige kasti paremal ülaservas oleval ikoonil.
Pakkumist tehes on keelatud postitada enda kontaktandmeid (nimi, telefon, aadress jne). Me jälgime ja analüüsime pakkumisi, et vältida pettuseid ja reeglite rikkumisi.
Rikkumise puhul kasutajakonto blokeeritakse.

 

Teisi töid samas valdkonnas

Valdkonnas "Üldehitus" on 28 aktiivset tööd

Maja värvimine

Asukoht: Harjumaa, Saue
Aega jäänud: 2p 7h
Tehtud pakkumisi: 5

Terassi õlitamine, 13,7 ruutu

Asukoht: Harjumaa, Saue
Aega jäänud: 5p 7h
Tehtud pakkumisi: 5

Vanemad teated:

Vaata kõiki

Sellel veebilehel kasutatakse küpsiseid. Kasutamist jätkates nõustute küpsiste kasutamisega.

Sulge
 
Minu pakkumine

Reeglid

Pakkumise kirjelduse väli on mõeldud pakkumise detailsemaks lahti kirjutamiseks. Pikema teksti mugavaks sisestamiseks klikkige kasti paremal ülaservas oleval ikoonil.
Pakkumist tehes on keelatud postitada enda kontaktandmeid (nimi, telefon, aadress jne). Me jälgime ja analüüsime pakkumisi, et vältida pettuseid ja reeglite rikkumisi.
Rikkumise puhul kasutajakonto blokeeritakse.