+ Lisa oma töö      

Otsid ehitajat "Siseviimistlustööd" valdkonnast?

Parima pakkumise ja teostaja leidmiseks lisa oma töö.

Hange on lõppenud!

Võitjaks osutus kasutaja ID 80832

Korteri lagede katmine tulekindla plaadiga ning kipsitööd

ID 94479

418 vaatamist

Prindi

  • check Pakkumiste tegemine
    kuni 16.04.2024
  • check Võitja valik kuni
    23.04.2024
  • 3 Töö teostamine
    ja hinnang
Hanke lõpp: T, 16. aprill, 2024
Maakond: Harjumaa
Linn: Tallinn
Tööde lõpp: T, 30. aprill, 2024
Ehitusmaterjalid: Töö tegija poolt
Soovin pakkumisi: Summa kogu projektile

Töö sisu

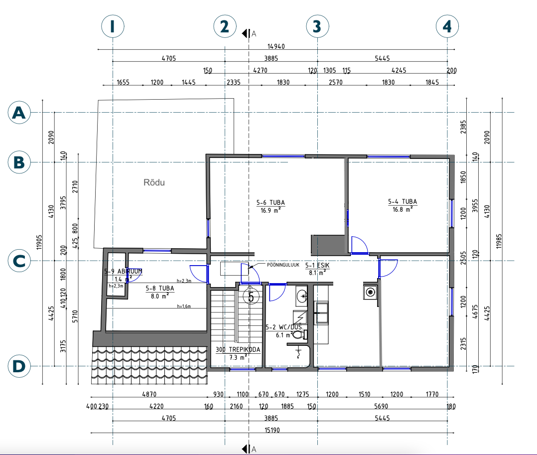
Vaja kogu korteri ulatuses paigaldada lakke kas üks kiht Tempsi Aquafire plaate (https://tempsi.com/et/toode/aquafire/) või siis olemasolev kipsplaat (1x) laest eemdalda ning paigaldada topelt 15mm paksune tulekindel kipsplaat. Lisaks siis lagede ja seinte viimistlemine pahtli ja värviga (valge laevärv). Oluline, et tulekindlusklass vastaks EI60.
Korteris laepinda 84.5m2
Korteri kohal asub tühi pööning ning sinna saab ilusti ligi.

Lisaks vaja siis avada kaks kipsseina, mis on puitsõrestikul ning üks ava ehitada kinni (uus kipssein - minu poolest võib kasutada lammutusest ülejäävat puitsõrestikku). Sein pahteldada ning värvida heleda seinavärviga (värvi eelistust ei ole). Ehitatava seina mõõtmed on 2300x2500. Plaanid lisas.

Lisaks tuleb üks siseuks ümbertõsta (ühest avast teise).

Kõigi tööde kohta on vaja vormistada kaetutööde aktid ning märkida ära kasutatud materjal ning tootja poolt väljastatud paigaldusjuhendid. Võib kasutada www.akt.ee keskkonda aktide loomiseks.

Pildid, video ja failid

Hanke korraldaja: eraisik ID37948

Pakkumised

Pakkumisi kokku: 7

Ettevõte Summa Käibemaks Lisatud Vestlus
Kasutaja ikoon ID72465
Pakkuja profiil Väike nool paremale
8 500€ Ei ole KMKR Ei ole KMKR 10.04.2024 Vestlus (4)

Pakkumise kirjeldus:

Tere!
Pakkumine vastavalt kirjeldusele järgnevalt:
Seinte lammutamine, uute ehitamine, uste eemaldamine.

Laekarkassi ehitamine, ristkarkass, samm 40 cm, ematalakarkass kinnitatud nooniusriputitega
kahes kihis Tulekaitse kipsplaadiga knauf GKF 15mm katmine, vahekihi ühenduskohtade pahteldamine.

Lae pahteldamine, vuugipahtel ja vuugilint, 2x viimis ... Rohkem

Kasutaja ikoon ID70952
Pakkuja profiil Väike nool paremale
7 500€ Sisaldab KM Sisaldab KM 11.04.2024 Vestlus (0)

Pakkumise kirjeldus:

Pakkumine tehud antud kirjedusele.Hinna osas saab natuke läbi rääkida peale objekti ülevaatust.
Töödele garantii

Lugupidamisega

Kasutaja ikoon ID72970
Pakkuja profiil Väike nool paremale
8 750€ Ei ole KMKR Ei ole KMKR 14.04.2024 Vestlus (0)

Pakkumise kirjeldus:

Tere

Hinnapakkumine sisaldab:

Tempsi aquafire paigaldamine (materjaaliga)

Viimistlus

Uus kipssein

Uste ümbertõstmine

Materjalid hinna sees

akt

leping + garantii 5a

alustamine kokkuleppel

Kasutaja ikoon ID79359
Pakkuja profiil Väike nool paremale
9 800€ Ei ole KMKR Ei ole KMKR 16.04.2024 Vestlus (0)
Kasutaja ikoon ID52293
Pakkuja profiil Väike nool paremale
12 000€ Sisaldab KM Sisaldab KM 16.04.2024 Vestlus (0)

Pakkumise kirjeldus:

Tere
Juhul kui soovite meid valida hanke võitjaks peaks eelnevalt kokku leppima makse tingimustes
Tänud

Kasutaja ikoon ID50594
Pakkuja profiil Väike nool paremale
15 800€ KM lisandub KM lisandub 16.04.2024 Vestlus (0)

Pakkumise kirjeldus:

Tere,

Pakkumine vastavalt hanke kirjeldusele.

Lgp. Taivo

Kasutaja ikoon ID80832
Pakkuja profiil Väike nool paremale
3 780€ Sisaldab KM Sisaldab KM 16.04.2024 Vestlus (12)

Pakkumise kirjeldus:

Tempsiplaat ning karkass 45 eur m2
Klarab EI60 standardi.

Seda ei pea värvima .


Aga jättan hinda paigalduseks 2 kihti tulekindla gipsi 15 mm , karkass ,pahtel, 2xkorda värvimine.

Küsimused hanke korraldajale

Hanke korraldajale ei ole veel küsimusi esitatud.

Lisa küsimus

Lisa küsimus

Minu pakkumine

Reeglid

Pakkumise kirjelduse väli on mõeldud pakkumise detailsemaks lahti kirjutamiseks. Pikema teksti mugavaks sisestamiseks klikkige kasti paremal ülaservas oleval ikoonil.
Pakkumist tehes on keelatud postitada enda kontaktandmeid (nimi, telefon, aadress jne). Me jälgime ja analüüsime pakkumisi, et vältida pettuseid ja reeglite rikkumisi.
Rikkumise puhul kasutajakonto blokeeritakse.

 

Teisi töid samas valdkonnas

Valdkonnas "Siseviimistlustööd" on 20 aktiivset tööd

Seinte pahteldus ja värvimine

Asukoht: Harjumaa, Türisalu
Aega jäänud: 2p 23h
Tehtud pakkumisi: 7

Korteri seinte ja lagede värvimine, osaline pahteldamine

Asukoht: Harjumaa, Tallinn
Aega jäänud: 23h 56 min
Tehtud pakkumisi: 3

Vanemad teated:

Vaata kõiki

Sellel veebilehel kasutatakse küpsiseid. Kasutamist jätkates nõustute küpsiste kasutamisega.

Sulge
 
Minu pakkumine

Reeglid

Pakkumise kirjelduse väli on mõeldud pakkumise detailsemaks lahti kirjutamiseks. Pikema teksti mugavaks sisestamiseks klikkige kasti paremal ülaservas oleval ikoonil.
Pakkumist tehes on keelatud postitada enda kontaktandmeid (nimi, telefon, aadress jne). Me jälgime ja analüüsime pakkumisi, et vältida pettuseid ja reeglite rikkumisi.
Rikkumise puhul kasutajakonto blokeeritakse.