+ Lisa oma töö      

Otsid ehitajat "Terrasside ehitus" valdkonnast?

Parima pakkumise ja teostaja leidmiseks lisa oma töö.

Terrassi ehitus

ID 93987

562 vaatamist

Prindi

  • check Pakkumiste tegemine
    kuni 03.04.2024
  • check Võitja valik kuni
    10.04.2024
  • 3 Töö teostamine
    ja hinnang
Hanke lõpp: K, 3. aprill, 2024
Maakond: Harjumaa
Muu asula: Muraste
Tööde lõpp: Kokkuleppel
Ehitusmaterjalid: Töö tellija poolt
Soovin pakkumisi: Summa kogu projektile

Töö sisu

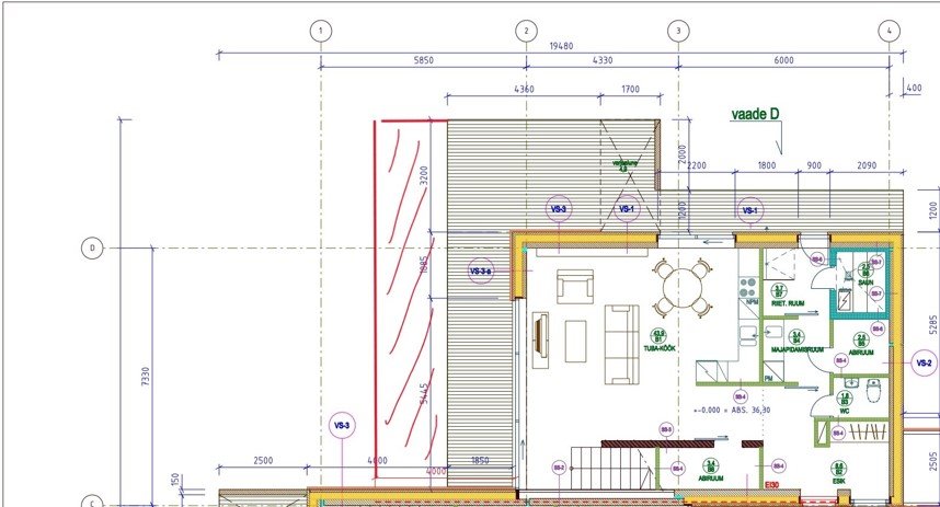
Tööga juba alustatud- pinnas ettevalmistatud, osa poste paigaldatud. Tegemist on esialgse terrassi laiendamisega/ ümberehitamisega. Pildil olemasoleva terrassile tuleb juurde ehitada punasega märgitud osa. Kokku terrassi pind on ca 56m2.

Pildid, video ja failid

Hanke korraldaja: eraisik ID77643

Pakkumised

Pakkumisi kokku: 7

Ettevõte Summa Käibemaks Lisatud Vestlus
Kasutaja ikoon ID80271
Pakkuja profiil Väike nool paremale
12 345€ KM lisandub KM lisandub 02.04.2024 Vestlus (0)

Pakkumise kirjeldus:

Tere kokku ruutmeetri eest 41

Kasutaja ikoon ID50106
Pakkuja profiil Väike nool paremale
3 200€ Ei ole KMKR Ei ole KMKR 02.04.2024 Vestlus (0)
Kasutaja ikoon ID49185
Pakkuja profiil Väike nool paremale
5 000€ Sisaldab KM Sisaldab KM 02.04.2024 Vestlus (0)
Kasutaja ikoon ID48431
Pakkuja profiil Väike nool paremale
1 000€ Sisaldab KM Sisaldab KM 02.04.2024 Vestlus (0)
Kasutaja ikoon ID78749
Pakkuja profiil Väike nool paremale
3 600€ Sisaldab KM Sisaldab KM 03.04.2024 Vestlus (0)
Kasutaja ikoon ID77930
Pakkuja profiil Väike nool paremale
6 720€ Sisaldab KM Sisaldab KM 03.04.2024 Vestlus (0)
Kasutaja ikoon ID73822
Pakkuja profiil Väike nool paremale
2 800€ KM lisandub KM lisandub 03.04.2024 Vestlus (0)

Küsimused hanke korraldajale

Küsimus: private ID49185   02.04.2024 10:42
Tere.
Kas materjal on teie poolt?

Teavita reeglite rikkumisest

Korraldaja vastus: 02.04.2024 10:46

Tere

Jah, materjal meie poolt.

Teavita reeglite rikkumisest

Küsimus: private ID72269   03.04.2024 07:10
Tere,

Palun täpsustada mis oleks soovitud tööde teostamise periood.

Parimat,

Olev

Teavita reeglite rikkumisest

Korraldaja vastus:
Hanke korraldaja ei ole küsimusele veel vastanud

Küsimus: private ID73104   03.04.2024 07:35
Tere,
Piltidel pole näha vana terrassi osa, kas see tuleb ka uus ehitada ja mis materjalist tuleb terrass?
Ette tänades,
Aivo

Teavita reeglite rikkumisest

Korraldaja vastus:
Hanke korraldaja ei ole küsimusele veel vastanud

Lisa küsimus

Lisa küsimus

Minu pakkumine

Reeglid

Pakkumise kirjelduse väli on mõeldud pakkumise detailsemaks lahti kirjutamiseks. Pikema teksti mugavaks sisestamiseks klikkige kasti paremal ülaservas oleval ikoonil.
Pakkumist tehes on keelatud postitada enda kontaktandmeid (nimi, telefon, aadress jne). Me jälgime ja analüüsime pakkumisi, et vältida pettuseid ja reeglite rikkumisi.
Rikkumise puhul kasutajakonto blokeeritakse.

 

Teisi töid samas valdkonnas

Valdkonnas "Terrasside ehitus" on 8 aktiivset tööd

Terrassi ehitus

Asukoht: Harjumaa, Jüri
Aega jäänud: 11p 21h
Tehtud pakkumisi: 8

Olemasoleva terrassi demonteerimine, utiliseerimine, uue ehitus

Asukoht: Harjumaa, Tallinn
Aega jäänud: 21h 48 min
Tehtud pakkumisi: 7

Vanemad teated:

Vaata kõiki

Sellel veebilehel kasutatakse küpsiseid. Kasutamist jätkates nõustute küpsiste kasutamisega.

Sulge
 
Minu pakkumine

Reeglid

Pakkumise kirjelduse väli on mõeldud pakkumise detailsemaks lahti kirjutamiseks. Pikema teksti mugavaks sisestamiseks klikkige kasti paremal ülaservas oleval ikoonil.
Pakkumist tehes on keelatud postitada enda kontaktandmeid (nimi, telefon, aadress jne). Me jälgime ja analüüsime pakkumisi, et vältida pettuseid ja reeglite rikkumisi.
Rikkumise puhul kasutajakonto blokeeritakse.