+ Lisa oma töö      

Otsid ehitajat "Üldehitus" valdkonnast?

Parima pakkumise ja teostaja leidmiseks lisa oma töö.

Müüritöö

ID 93939

693 vaatamist

Prindi

  • check Pakkumiste tegemine
    kuni 08.04.2024
  • check Võitja valik kuni
    15.04.2024
  • 3 Töö teostamine
    ja hinnang
Hanke lõpp: E, 8. aprill, 2024
Maakond: Tartumaa
Tööde lõpp: Kokkuleppel
Ehitusmaterjalid: Töö tellija poolt
Soovin pakkumisi: Summa kogu projektile

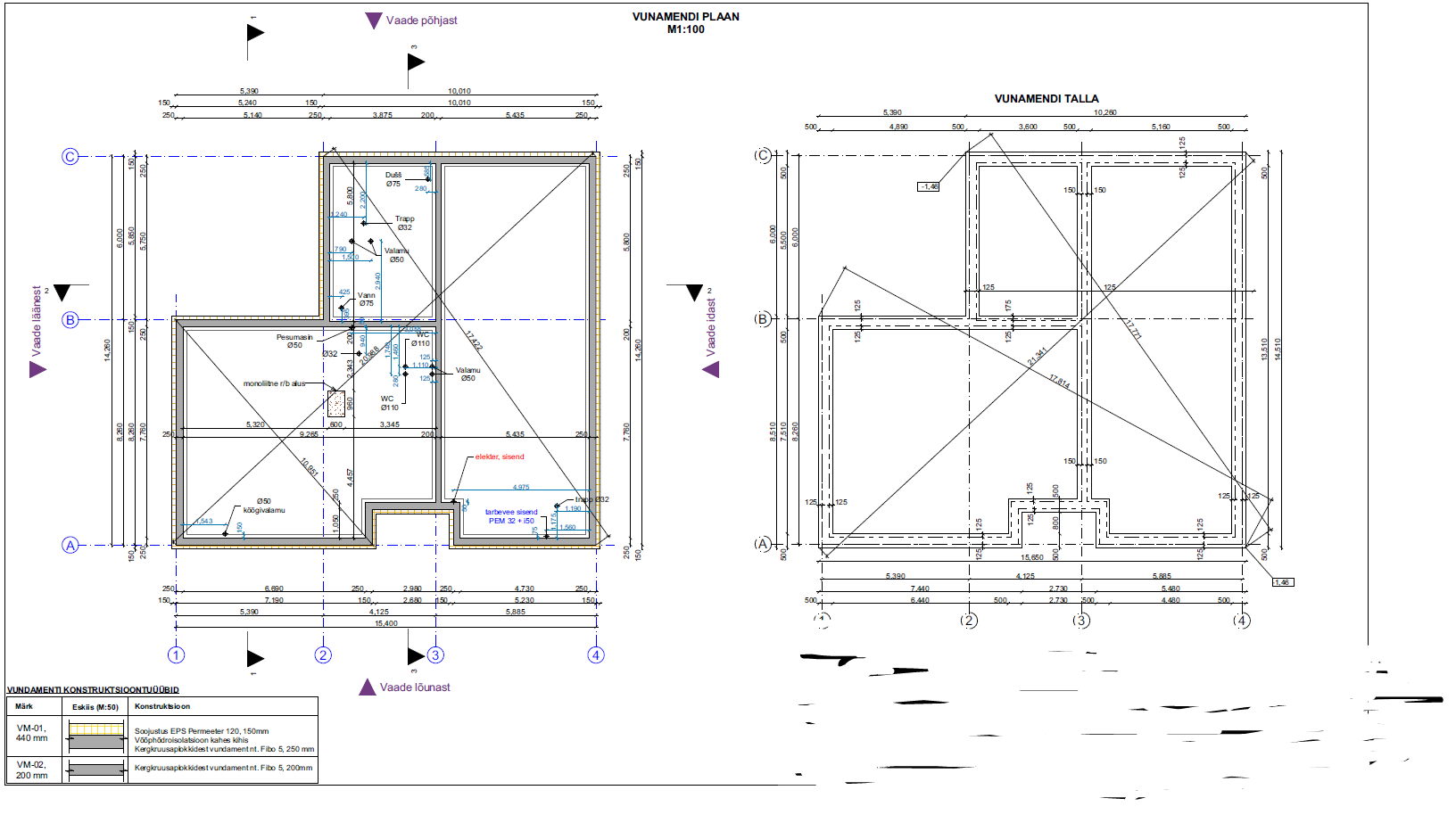
Töö sisu

Bauroc Classic 250 ~145m2
Bauroc Classic 200 ~40m4
Bauroc sillused paigaldatakse tõstuki abil
ülemine rida U plokkidest

Pildid, video ja failid

Hanke korraldaja: eraisik ID56806

Pakkumised

Pakkumisi kokku: 10

Ettevõte Summa Käibemaks Lisatud Vestlus
Kasutaja ikoon ID31132
Pakkuja profiil Väike nool paremale
3 100€ KM lisandub KM lisandub 01.04.2024 Vestlus (0)

Pakkumise kirjeldus:

Pakkumine tervele projektile. Kuna ruutmeetrid ei ole täpselt teada siis 18€\m2. Hind sisaldab ka silluste paigaldust. Ettemaks ei ole oluline, kui töö eest tasutakse iga 100m2 tagant.

Kasutaja ikoon ID69060
Pakkuja profiil Väike nool paremale
3 000€ Ei ole KMKR Ei ole KMKR 01.04.2024 Vestlus (0)

Pakkumise kirjeldus:

Hinna sees tööriistad ja too
Töö kestab 10 p

Lg

Kasutaja ikoon ID59743
Pakkuja profiil Väike nool paremale
2 900€ Ei ole KMKR Ei ole KMKR 02.04.2024 Vestlus (5)

Pakkumise kirjeldus:

Tere.
Pakkumine sisaldab tellinguid ja plokisaage.

Kõike Head!

Kasutaja ikoon ID75573
Pakkuja profiil Väike nool paremale
4 100€ Sisaldab KM Sisaldab KM 02.04.2024 Vestlus (0)
Kasutaja ikoon ID53982
Pakkuja profiil Väike nool paremale
4 618€ KM lisandub KM lisandub 02.04.2024 Vestlus (0)

Pakkumise kirjeldus:

Bauroc Classic 250 ~145m2 - 24€/m2 = 3 480€
Bauroc Classic 200 ~40m2 - 24€/m2 = 960€
Silluste paigaldus Bauroc 250 - 29,6jm = 148€, Bauroc 200 - 6jm = 30€
Hind ei sisalda tehnikat, tellingut.
P.S soovi korral saame ka välja ehitada katust.
Parimat,
Viktorija

Kasutaja ikoon ID80581
Pakkuja profiil Väike nool paremale
15 196,1€ Ikoon kell KM lisandub KM lisandub 02.04.2024 Vestlus (0)

Pakkumise kirjeldus:

Tere,

Hinnapakkumine tehtud ette antud andmetele.

Hind sisaldab:
- Bauroc 200 ja 250 plokke
- Poorbetoonliimi
- Murfor armtuuri
- Silluseid
- Müüri- ja silluste paigalduse tööde hinda

Tellingud on meil endal olemas!

Hinnad detailsemalt:

Materjal - 10,061.7€ +km (See hind muutub kindlasti väiksemaks kui kindel tellimus teha)

... Rohkem

Kasutaja ikoon ID43565
Pakkuja profiil Väike nool paremale
4 730€ KM lisandub KM lisandub 02.04.2024 Vestlus (0)

Pakkumise kirjeldus:

Töö kiire ja korralik.
Parimat

Kasutaja ikoon ID80997
Pakkuja profiil Väike nool paremale
4 000€ Ei ole KMKR Ei ole KMKR 04.04.2024 Vestlus (0)

Pakkumise kirjeldus:

Tere

Minupoolne pakkumine on 4000 euri antud projektile.
Sisaldab plokisae renti tööde ajaks.

Pikkaajamine kogemus müüritöödel ning samuti puitkarkass majade ning katuste ehitusel!
Töid teostab üks mees .

Kõike paremat.

Kasutaja ikoon ID57046
Pakkuja profiil Väike nool paremale
2 850€ KM lisandub KM lisandub 07.04.2024 Vestlus (0)

Pakkumise kirjeldus:

Võimalus ilma km

Kasutaja ikoon ID80709
Pakkuja profiil Väike nool paremale
7 000€ Ei ole KMKR Ei ole KMKR 08.04.2024 Vestlus (0)

Küsimused hanke korraldajale

Küsimus: private ID75573   02.04.2024 07:16
Tere,palju teil sillused kokku?

Teavita reeglite rikkumisest

Korraldaja vastus: 02.04.2024 08:43

Bauroc Sillused 250
3600*400*250 - 1tk
2000*400*250 - 9tk
1600*200*250 - 5tk

Bauroc Sillused 200
2400*400*200 - 1tk
1200*200*200 - 3tk

Teavita reeglite rikkumisest

Küsimus: private ID57046   03.04.2024 21:55
Tere
Kus kandis Tartumaal?

Teavita reeglite rikkumisest

Korraldaja vastus: 04.04.2024 09:34

Kambja vald, Virulase küla

Teavita reeglite rikkumisest

Lisa küsimus

Lisa küsimus

Minu pakkumine

Reeglid

Pakkumise kirjelduse väli on mõeldud pakkumise detailsemaks lahti kirjutamiseks. Pikema teksti mugavaks sisestamiseks klikkige kasti paremal ülaservas oleval ikoonil.
Pakkumist tehes on keelatud postitada enda kontaktandmeid (nimi, telefon, aadress jne). Me jälgime ja analüüsime pakkumisi, et vältida pettuseid ja reeglite rikkumisi.
Rikkumise puhul kasutajakonto blokeeritakse.

 

Teisi töid samas valdkonnas

Valdkonnas "Üldehitus" on 30 aktiivset tööd

Maja värvimine

Asukoht: Harjumaa, Saue
Aega jäänud: 2p 6h
Tehtud pakkumisi: 5

Terassi õlitamine, 13,7 ruutu

Asukoht: Harjumaa, Saue
Aega jäänud: 5p 6h
Tehtud pakkumisi: 5

Vanemad teated:

Vaata kõiki

Sellel veebilehel kasutatakse küpsiseid. Kasutamist jätkates nõustute küpsiste kasutamisega.

Sulge
 
Minu pakkumine

Reeglid

Pakkumise kirjelduse väli on mõeldud pakkumise detailsemaks lahti kirjutamiseks. Pikema teksti mugavaks sisestamiseks klikkige kasti paremal ülaservas oleval ikoonil.
Pakkumist tehes on keelatud postitada enda kontaktandmeid (nimi, telefon, aadress jne). Me jälgime ja analüüsime pakkumisi, et vältida pettuseid ja reeglite rikkumisi.
Rikkumise puhul kasutajakonto blokeeritakse.