+ Lisa oma töö      

Otsid ehitajat "Vundamenditööd" valdkonnast?

Parima pakkumise ja teostaja leidmiseks lisa oma töö.

Plaatvundamendi ehitus

ID 93865

541 vaatamist

Prindi

  • check Pakkumiste tegemine
    kuni 17.05.2024
  • check Võitja valik kuni
    24.05.2024
  • 3 Töö teostamine
    ja hinnang
Hanke lõpp: R, 17. mai, 2024
Maakond: Harjumaa
Muu asula: Aegviidu
Tööde lõpp: R, 14. juuni, 2024
Ehitusmaterjalid: Töö tegija poolt
Soovin pakkumisi: Summa kogu projektile

Töö sisu

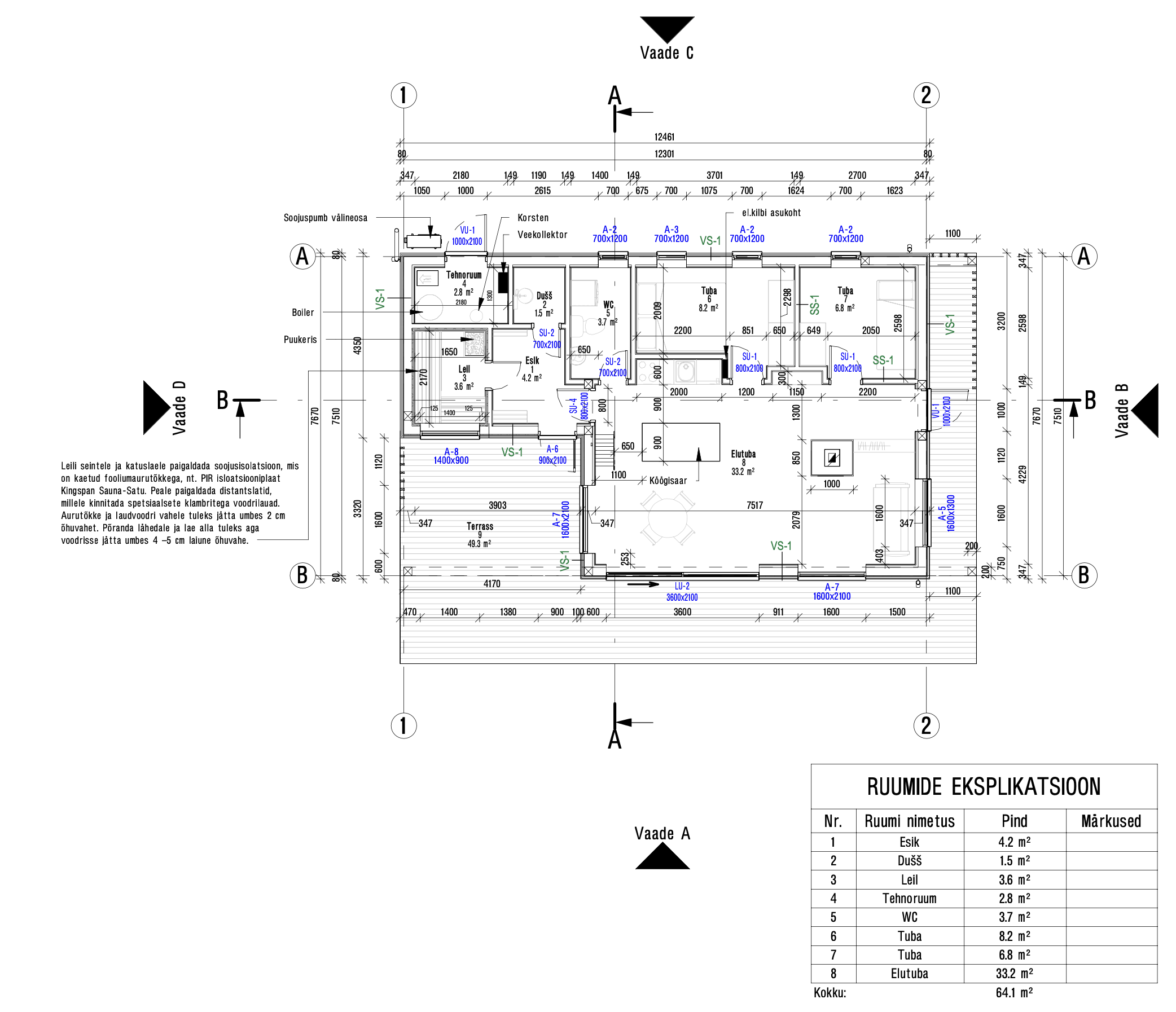
Soovin hinnapakkumist plaatvundamendi, majasiseste vee – ja kanalisatsioonitorustiku teostusjoonistele ning ehitusele, puitkonstruktsiooniga ühekordsele majale.

Hinnapakkumine peab sisaldama eelpool toodud jooniseid ning ehitust koos kommunikatsioonide ja põrandakütte kontuuridega.

Lisatud eelprojekti joonised.

Materjalid ja tehnikaga ehitaja poolt.
Liivane pinnas.
Põranda alune soojustus min. 300mm.
Valmis betoonpinna mõõdutolerantsid kogu konstruktsiooni ulatuses maksimaalselt +/-5mm.
Pind - kopteripind, lihvitud taldrikuga.

Ehitaja poolt ka suvila kasutusloaks vajalik dokumentatsioon.

Pildid, video ja failid

Hanke korraldaja: eraisik ID73288

Pakkumised

Pakkumisi kokku: 6

Ettevõte Summa Käibemaks Lisatud Vestlus
Kasutaja ikoon ID81593
Pakkuja profiil Väike nool paremale
32 000€ Sisaldab KM Sisaldab KM 04.05.2024 Vestlus (0)

Pakkumise kirjeldus:

Arveldamine kolmes osas, 40% kohe tööd teostatud 50% siis tuleb uuesti 40% ja tööde lõppemisel 20%

Parimat

Kasutaja ikoon ID72190
Pakkuja profiil Väike nool paremale
19 600€ KM lisandub KM lisandub 06.05.2024 Vestlus (0)

Pakkumise kirjeldus:

hinnases mullatööd, santehnika, soojustus, armatuur, valamine

Kasutaja ikoon ID2942
Pakkuja profiil Väike nool paremale
18 000€ Ikoon kell KM lisandub KM lisandub 16.05.2024 Vestlus (0)

Pakkumise kirjeldus:

Hind sisaldab kõiki töid ja materjale.

Kasutaja ikoon ID59528
Pakkuja profiil Väike nool paremale
17 500€ KM lisandub KM lisandub 17.05.2024 Vestlus (0)

Pakkumise kirjeldus:

Tere,

Pakkumine tehtud vastavalt Hankes kirjeldatud töödele. Täpsema hinnakalkulatsiooni saame saata vestluses.
Meie profiili alt näete meie poolt tehtud töid ja klientide poolt antud hinnanguid
Ettevōttel olemas MTR registreering!

Parimat,

Erik

Kasutaja ikoon ID8633
Pakkuja profiil Väike nool paremale
18 000€ KM lisandub KM lisandub 17.05.2024 Vestlus (0)
Kasutaja ikoon ID53974
Pakkuja profiil Väike nool paremale
22 690€ KM lisandub KM lisandub 17.05.2024 Vestlus (0)

Pakkumise kirjeldus:

Tere
Esialgne pakkumine vastavalt hankes olemasolevale informatsioonile.
Kirjutage julgelt kui küsimusi tekib vastame meeleldi.
Terv

Küsimused hanke korraldajale

Küsimus: private ID81962   09.05.2024 11:04
Tere,

Kas aluspind on nõuetekohaselt ettevalmistatud? Paks on liivakiht? Kas tihedusmõõtmised on tehtud ning olemas ka selle kohane dokumentatsioon? Kas kanalisatsioon ja vesi tuleb ühendada või lihtsalt tuua välja vundamendi piiri? Kas vaja ka põrandakütte projekti?

Teavita reeglite rikkumisest

Korraldaja vastus: 09.05.2024 11:33

Tere!

Tänan küsimuste eest!

Vastan:

Aluspind on ettevalmistamata, liivakihi täpset paksust ei tea, kindlasti mitmeid meetreid, kuna kinnistul asub liivamaardla ala, tihedusmõõtmised ei ole tehtud, kanalisatsiooni ja vee jaoks vaja välja tuua vundamendi piiril, põrandakütte jaoks on vaja teostusjoonist.

Teavita reeglite rikkumisest

Küsimus: private ID81962   09.05.2024 14:15
Tere jälle,

Tänud vastamast. Uuriks veidi veel lisainfot, et pärast ei tuleks probleeme ei teil ega minul. Nagu aru saan asub objekt liivamaardla alal. Kas kuskil liiva all ka geotekstiil paigaldatud? Kuidas on vundamendi ümbrus, ega seal kevadel/sügisel liialt märg pole?

Teavita reeglite rikkumisest

Korraldaja vastus: 09.05.2024 14:31

Tere!

Tänud täpsustamast, vastan hea meelega.

Objekt asub kohe liivamaardla ala kõrval ~10m, liivamaardlat ei kaevandata, ega ole ka plaanis kaevandama hakata. Tõin selle info välja, et oleks hoomatav, et seal pinnases on mitmeid meetreid liiva. Geotekstiili paigutatud ei ole. Krundi ümbrus täiesti kuiv nii kevadel kui sügisel.

Kui miskit veel täpsustamist vajab, küsige julgelt.

Teavita reeglite rikkumisest

Küsimus: private ID81962   09.05.2024 15:03
Mis kujul teostusjoonised oleks tarvis? Ja kas antud kohas vaja ka paigaldada radoonitõke?

Teavita reeglite rikkumisest

Korraldaja vastus: 09.05.2024 15:53

Teostusjoonised on vajalikud küttelahenduse müüjaga lahenduse kooskõlastamiseks. Lisaks on vajalik kogu dokumentatsioon, mis on vajalik kasutusloa taotlemiseks.
Radoonitõkke osas ei oska vastata.

Teavita reeglite rikkumisest

Lisa küsimus

Lisa küsimus

Minu pakkumine

Reeglid

Pakkumise kirjelduse väli on mõeldud pakkumise detailsemaks lahti kirjutamiseks. Pikema teksti mugavaks sisestamiseks klikkige kasti paremal ülaservas oleval ikoonil.
Pakkumist tehes on keelatud postitada enda kontaktandmeid (nimi, telefon, aadress jne). Me jälgime ja analüüsime pakkumisi, et vältida pettuseid ja reeglite rikkumisi.
Rikkumise puhul kasutajakonto blokeeritakse.

 

Vanemad teated:

Vaata kõiki

Sellel veebilehel kasutatakse küpsiseid. Kasutamist jätkates nõustute küpsiste kasutamisega.

Sulge
 
Minu pakkumine

Reeglid

Pakkumise kirjelduse väli on mõeldud pakkumise detailsemaks lahti kirjutamiseks. Pikema teksti mugavaks sisestamiseks klikkige kasti paremal ülaservas oleval ikoonil.
Pakkumist tehes on keelatud postitada enda kontaktandmeid (nimi, telefon, aadress jne). Me jälgime ja analüüsime pakkumisi, et vältida pettuseid ja reeglite rikkumisi.
Rikkumise puhul kasutajakonto blokeeritakse.