+ Lisa oma töö      

Otsid ehitajat "Siseviimistlustööd" valdkonnast?

Parima pakkumise ja teostaja leidmiseks lisa oma töö.

Eramaja sanitaarremont

ID 93550

419 vaatamist

Prindi

  • check Pakkumiste tegemine
    kuni 07.08.2024
  • check Võitja valik kuni
    14.08.2024
  • 3 Töö teostamine
    ja hinnang
Hanke lõpp: K, 7. august, 2024
Maakond: Harjumaa
Tööde lõpp: Kokkuleppel
Ehitusmaterjalid: Töö tellija poolt
Soovin pakkumisi: Summa kogu projektile

Töö sisu

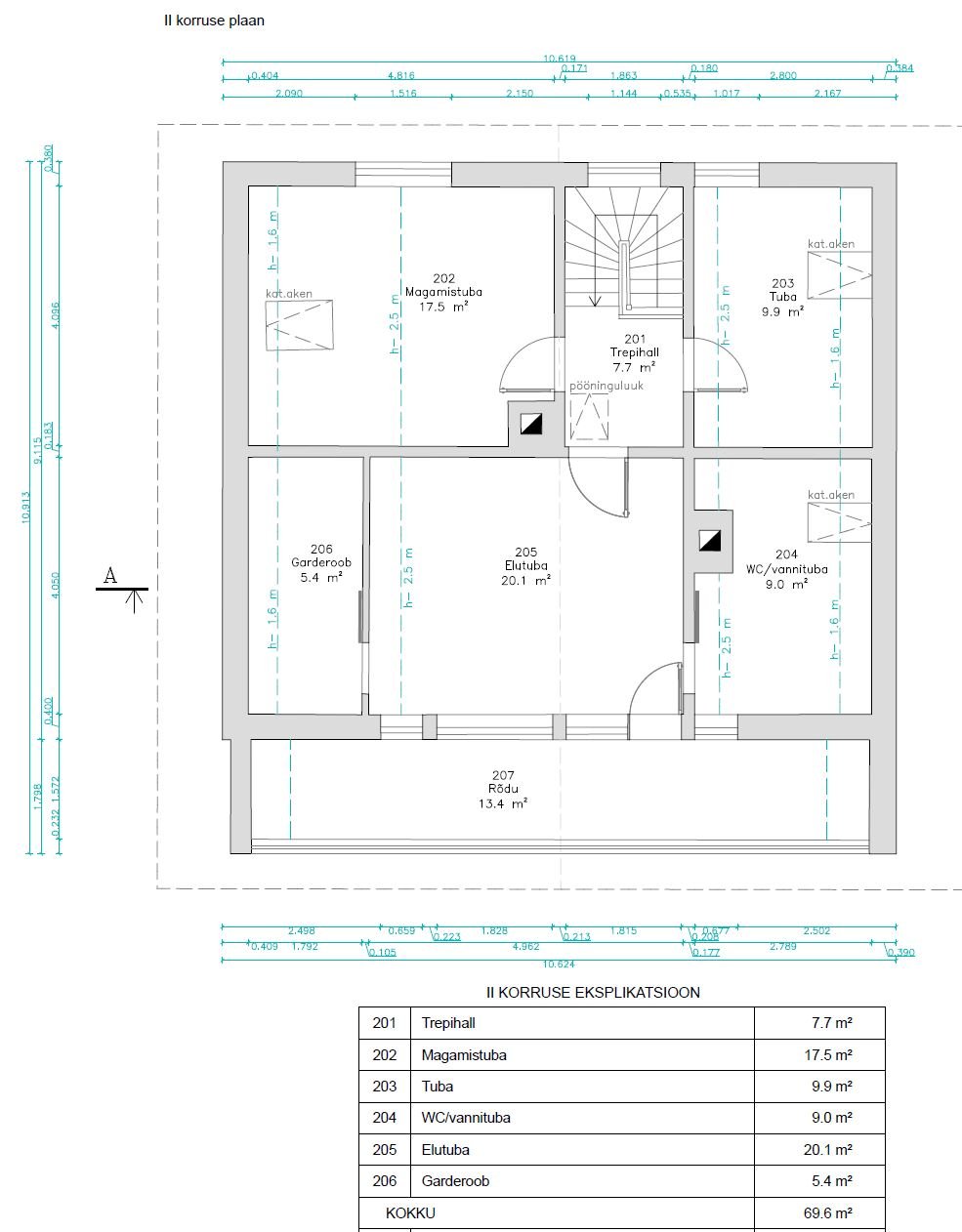
Esimesel korrusel - (Ruumides on põrandaküte):

Köök/elutuba + Trepihall - Eemaldada tapeet, pahteldada ja värvida seinad. Vahetada parkett/plaadid. Kööki lisada mõned elektripistikud, lisaks vedada elekter tulevikus paigaldatava köögi saare jaoks.
Esik - Eemaldada tapeet, pahteldada ja värvida seinad.
WC/Dushiruum - Vahetada plaadid põrandal ja seintes.

Teisel korrusel - Ruumides on seintel radiaatorid (va. vannituba):

Igas toas - vahetada ripplagi valge sileda kipslae vastu (arvestada vannitoa niiskusega).
Igas toas (va. vannituba) - Eemaldada tapeeditud seintest (pooled seinad) tapeet, pahteldada ja värvida kõik seinad. Vahetada parkett.
WC/vannituba - Vahetada plaadid põrandal ja seintes.

Trepp üle lihvida ja lakkida (vahetada tooni).
Vahetada kõikide renoveeritud tubade uksed.

Samuti vahetada kõik põrandaliistud ja teha muud vajalikud pisitööd, et lõpptulemus oleks terviklik.

Lisaks on vajalik kogu ehitusprahi utiliseerimine.

Hetkel pole materjale ostetud - võib neid ka töö tegija poolt pakkuda.
Kogu projekti läheneda mõistlikult, mõistliku eelarve nimel võib ideid muuta, ära jätta, lisada jne.

Töödega saaks alustada suve lõpus, huvituksin ka tööde kestvuse prognoosi osas.
Kiire töö korral oleks võimalik mööbel enne tubadest välja tõsta ja ise tööde ajaks välja kolida.

Pildid, video ja failid

Hanke korraldaja: eraisik ID80718

Pakkumised

Pakkumisi kokku: 2

Ettevõte Summa Käibemaks Lisatud Vestlus
Kasutaja ikoon ID60045
Pakkuja profiil Väike nool paremale
1 000€ KM lisandub KM lisandub 07.08.2024 Vestlus (1)

Pakkumise kirjeldus:

Tere!

Oleme ehitusettevõte, mis pakub kvaliteetseid terviklahendusi vastavalt tellija vajadustele. Meie teenuste hulka kuuluvad ettevalmistus, projekteerimine, ehitus, renoveerimine, siseviimistlus ja garantiiaegne teenindus.

Oleme huvitatud Teie pakutavast objektist ja spetsialiseerume renoveerimisele ning värskendustöödele. Alustada saame kohe p ... Rohkem

Kasutaja ikoon ID84208
Pakkuja profiil Väike nool paremale
420€ KM lisandub KM lisandub 07.08.2024 Vestlus (0)

Pakkumise kirjeldus:

Tere
Meiepoolne esialgne pakkumine vastavalt hankes kirjeldatule.
Pakkumine on natukene umbkaudne kuid rohkema suhtluse peale usun et saame summa paikka.
hind on arvestatud ühele r uut m e etrile.
Ennem töödega alustamist allkirjastatakse omavaheline leping ning pannakse paikka objekti valmimise aeg ning maksegraafik (etappide kauppa) Lisaküsimuste k ... Rohkem

Küsimused hanke korraldajale

Küsimus: private ID52153   25.07.2024 07:11
Tere, kas krundil on ka koht rendi konteineri jaoks vajadusel?

Teavita reeglite rikkumisest

Korraldaja vastus: 25.07.2024 09:07

Tere, jah, osa aiast on kaetud tänavakividega.

Teavita reeglite rikkumisest

Küsimus: private ID52153   29.07.2024 07:32
Kas teil on materjalide suhtes juba valikud tehtud? Millised plaadid , värvid , köögi mööbel ja tasapinnad jne.?

Teavita reeglite rikkumisest

Korraldaja vastus: 31.07.2024 12:46

Köögimööbel tuleb eraldi köökidele spetsialiseerunud ettevõttelt. See projekt on juba valmis ja ootab ruumide uuenduse järgi. Materjalide suhtes toonide peale on mõeldud, kindlaid plaate jne pole veel välja valitud. Materjalide suhtes lõplikud otsuseid teeks ilmselt ikkagi ehitaja poolseid soovitusi kuulates. Suurespildis on eesmärk lihtsalt kasutada modernesid materjale ja tuua ruumid tänapäeva.

Teavita reeglite rikkumisest

Küsimus: private ID52153   29.07.2024 07:34
Veel selline küsimus, et kas need toad mis on pildi peal mahatõmmatud , jäävad puutumatta ?

Teavita reeglite rikkumisest

Korraldaja vastus: 31.07.2024 12:47

Jah, need toad ei vaja uuendusi.

Teavita reeglite rikkumisest

Lisa küsimus

Lisa küsimus

Minu pakkumine

Reeglid

Pakkumise kirjelduse väli on mõeldud pakkumise detailsemaks lahti kirjutamiseks. Pikema teksti mugavaks sisestamiseks klikkige kasti paremal ülaservas oleval ikoonil.
Pakkumist tehes on keelatud postitada enda kontaktandmeid (nimi, telefon, aadress jne). Me jälgime ja analüüsime pakkumisi, et vältida pettuseid ja reeglite rikkumisi.
Rikkumise puhul kasutajakonto blokeeritakse.

 

Teisi töid samas valdkonnas

Valdkonnas "Siseviimistlustööd" on 24 aktiivset tööd

Korteri remont

Asukoht: Harjumaa, Muraste
Aega jäänud: 2p 4h
Tehtud pakkumisi: 16

Seinte värvimine

Asukoht: Harjumaa, Tallinn
Aega jäänud: 4h 12 min
Tehtud pakkumisi: 7

Vanemad teated:

Vaata kõiki

Sellel veebilehel kasutatakse küpsiseid. Kasutamist jätkates nõustute küpsiste kasutamisega.

Sulge
 
Minu pakkumine

Reeglid

Pakkumise kirjelduse väli on mõeldud pakkumise detailsemaks lahti kirjutamiseks. Pikema teksti mugavaks sisestamiseks klikkige kasti paremal ülaservas oleval ikoonil.
Pakkumist tehes on keelatud postitada enda kontaktandmeid (nimi, telefon, aadress jne). Me jälgime ja analüüsime pakkumisi, et vältida pettuseid ja reeglite rikkumisi.
Rikkumise puhul kasutajakonto blokeeritakse.