+ Lisa oma töö      

Otsid ehitajat "Betoonitööd" valdkonnast?

Parima pakkumise ja teostaja leidmiseks lisa oma töö.

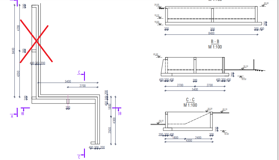
Betooni sein ja trepp

ID 93489

409 vaatamist

Prindi

  • check Pakkumiste tegemine
    kuni 28.03.2024
  • check Võitja valik kuni
    04.04.2024
  • 3 Töö teostamine
    ja hinnang
Hanke lõpp: N, 28. märts, 2024
Maakond: Harjumaa
Muu asula: Tiskre
Tööde lõpp: Kokkuleppel
Ehitusmaterjalid: Töö tellija poolt
Soovin pakkumisi: Summa kogu projektile

Pildid, video ja failid

Hanke korraldaja: eraisik ID68746

Pakkumised

Pakkumisi kokku: 5

Ettevõte Summa Käibemaks Lisatud Vestlus
Kasutaja ikoon ID60861
Pakkuja profiil Väike nool paremale
14 750€ KM lisandub KM lisandub 26.03.2024 Vestlus (1)

Pakkumise kirjeldus:

Tere.
Hind vastavalt Teie soovile.
Parimat
R.

Kasutaja ikoon ID50594
Pakkuja profiil Väike nool paremale
19 800€ KM lisandub KM lisandub 26.03.2024 Vestlus (4)

Pakkumise kirjeldus:

Tere,

Esialgne pakkumine. Seina kõrgust kahjuks ei näe. Ning olemasolevat olukorda on vaja oma silmaga näha.

Lgp. Taivo

Kasutaja ikoon ID52293
Pakkuja profiil Väike nool paremale
4 500€ Sisaldab KM Sisaldab KM 28.03.2024 Vestlus (5)

Pakkumise kirjeldus:

Tere
Juhul kui soovite meid valida hanke võitjaks peaks eelnevalt kokku leppima makse tingimustes
Tänud

Kasutaja ikoon ID74056
Pakkuja profiil Väike nool paremale
14 100€ KM lisandub KM lisandub 28.03.2024 Vestlus (0)
Kasutaja ikoon ID8633
Pakkuja profiil Väike nool paremale
14 800€ KM lisandub KM lisandub 28.03.2024 Vestlus (2)

Pakkumise kirjeldus:

raske saada aru mis ja palju vaja,silmaga vaja naha.

Küsimused hanke korraldajale

Hanke korraldajale ei ole veel küsimusi esitatud.

Lisa küsimus

Lisa küsimus

Minu pakkumine

Reeglid

Pakkumise kirjelduse väli on mõeldud pakkumise detailsemaks lahti kirjutamiseks. Pikema teksti mugavaks sisestamiseks klikkige kasti paremal ülaservas oleval ikoonil.
Pakkumist tehes on keelatud postitada enda kontaktandmeid (nimi, telefon, aadress jne). Me jälgime ja analüüsime pakkumisi, et vältida pettuseid ja reeglite rikkumisi.
Rikkumise puhul kasutajakonto blokeeritakse.

 

Teisi töid samas valdkonnas

Valdkonnas "Betoonitööd" on 5 aktiivset tööd

Betoonist platsi valamine väljas.

Asukoht: Harjumaa, Luige
Aega jäänud: 18h 51 min
Tehtud pakkumisi: 4

Betoonpõranda valu

Asukoht: Harjumaa, Jõelähtme
Aega jäänud: 2p 18h
Tehtud pakkumisi: 3

Vanemad teated:

Vaata kõiki

Sellel veebilehel kasutatakse küpsiseid. Kasutamist jätkates nõustute küpsiste kasutamisega.

Sulge
 
Minu pakkumine

Reeglid

Pakkumise kirjelduse väli on mõeldud pakkumise detailsemaks lahti kirjutamiseks. Pikema teksti mugavaks sisestamiseks klikkige kasti paremal ülaservas oleval ikoonil.
Pakkumist tehes on keelatud postitada enda kontaktandmeid (nimi, telefon, aadress jne). Me jälgime ja analüüsime pakkumisi, et vältida pettuseid ja reeglite rikkumisi.
Rikkumise puhul kasutajakonto blokeeritakse.