+ Lisa oma töö      

Otsid ehitajat "Lammutustööd" valdkonnast?

Parima pakkumise ja teostaja leidmiseks lisa oma töö.

Lammutustööd (korteri siseseinad ja põrand)

ID 93356

605 vaatamist

Prindi

  • check Pakkumiste tegemine
    kuni 25.03.2024
  • check Võitja valik kuni
    01.04.2024
  • 3 Töö teostamine
    ja hinnang
Hanke lõpp: E, 25. märts, 2024
Maakond: Harjumaa
Muu asula: Harku
Tööde lõpp: Kokkuleppel
Ehitusmaterjalid: Töö tellija poolt
Soovin pakkumisi: Summa kogu projektile

Töö sisu

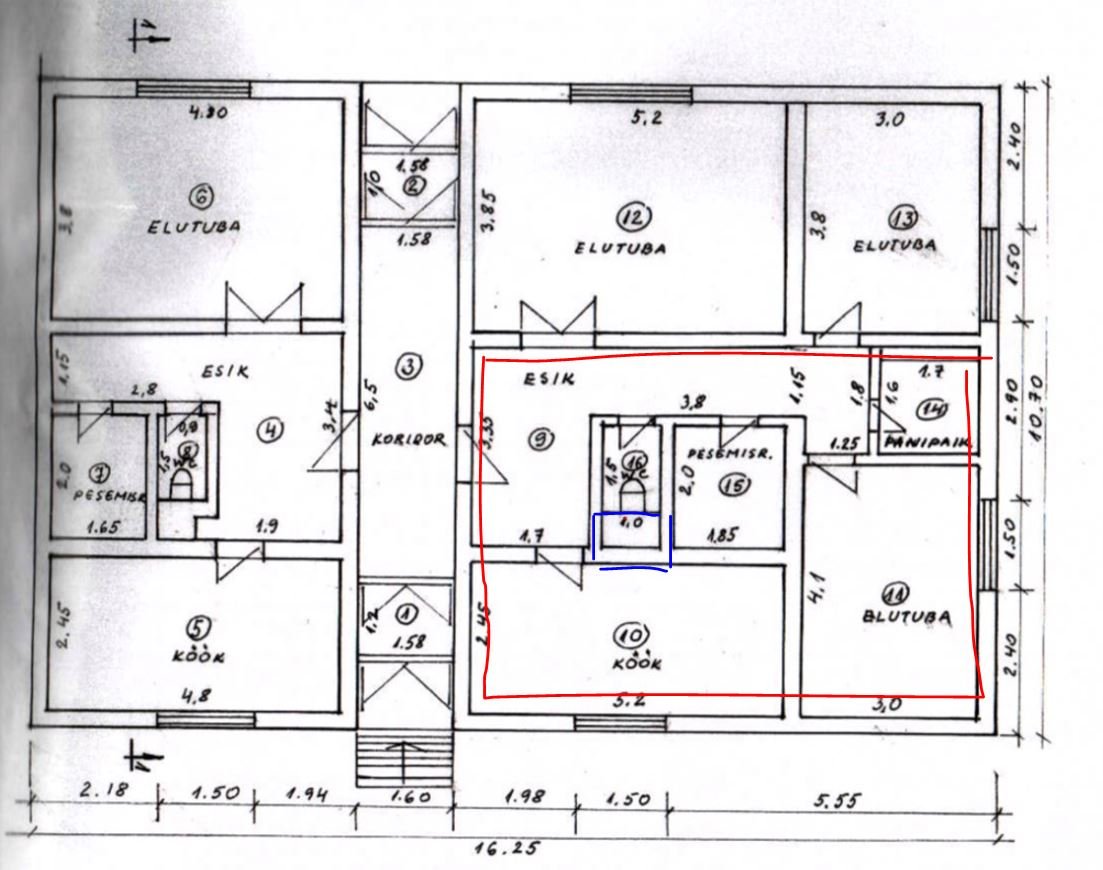
Vana nõuka aegse kortermaja siseseinad (joonisel punasega märgitud) lammutamine. Sinisega märgitud vent saht jääb alles. Seinad ehitatud arvatavasti silikaattellisest. Lisaks vaja punasega märgitud alal võtta ülesse põrand. Parkettpõrandad koos puitplaatplaatidest aluspõranda ja taladega, toetub betoonpõrandale. Kogu maja malmradikad ja soojaveetorustik demonteerida. Lisaks olemasolev mittevajalik mööbel ja sanruumid puhtaks koristada, kaasa arvataud laepealne kolikamber. Kõik jäätmed käsitsi visata maja ette tellitud konteineritesse, iga jäätmegrupp eraldi. Konteinerite vedu ja jäätmed ei pea sisalduma hinnas.

Pildid, video ja failid

Hanke korraldaja: ettevõte ID80635

Pakkumised

Pakkumisi kokku: 16

Ettevõte Summa Käibemaks Lisatud Vestlus
Kasutaja ikoon ID78757
Pakkuja profiil Väike nool paremale
750€ Sisaldab KM Sisaldab KM 22.03.2024 Vestlus (14)
Kasutaja ikoon ID73145
Pakkuja profiil Väike nool paremale
1 700€ Ei ole KMKR Ei ole KMKR 22.03.2024 Vestlus (0)

Pakkumise kirjeldus:

Saame alustada juba teisipäeval

Kasutaja ikoon ID80108
Pakkuja profiil Väike nool paremale
3 500€ Ei ole KMKR Ei ole KMKR 23.03.2024 Vestlus (0)
Kasutaja ikoon ID48431
Pakkuja profiil Väike nool paremale
550€ Sisaldab KM Sisaldab KM 23.03.2024 Vestlus (1)
Kasutaja ikoon ID22919
Pakkuja profiil Väike nool paremale
3 500€ KM lisandub KM lisandub 23.03.2024 Vestlus (0)
Kasutaja ikoon ID47893
Pakkuja profiil Väike nool paremale
1 100€ Sisaldab KM Sisaldab KM 23.03.2024 Vestlus (0)

Pakkumise kirjeldus:

Antud tööle meie poolne pakkumine.

Parimat soovides. Janek

Kasutaja ikoon ID73089
Pakkuja profiil Väike nool paremale
1 000€ Ei ole KMKR Ei ole KMKR 23.03.2024 Vestlus (0)

Pakkumise kirjeldus:

Tere. Hinnapakkumine sisaldab: lammutust ja koristamist

Kasutaja ikoon ID77758
Pakkuja profiil Väike nool paremale
2 700€ Ei ole KMKR Ei ole KMKR 25.03.2024 Vestlus (0)

Pakkumise kirjeldus:

Tere.
Töö - 2000
Konteinerid - 150 panek ja ära vedu .
Prügila hinnad - puit tasuta . Betoon - 12/t , ehitus prügi - 95 sulas kui arvega + 22käibimaks .

Kasutaja ikoon ID32325
Pakkuja profiil Väike nool paremale
2 555€ KM lisandub KM lisandub 25.03.2024 Vestlus (0)
Kasutaja ikoon ID73891
Pakkuja profiil Väike nool paremale
3 500€ Ei ole KMKR Ei ole KMKR 25.03.2024 Vestlus (0)

Pakkumise kirjeldus:

Tere!

Hind koostatud vastavalt hanke kirjeldusele!

Alustada saame ASAP.

Parimat!

Kasutaja ikoon ID65365
Pakkuja profiil Väike nool paremale
4 890€ Ei ole KMKR Ei ole KMKR 25.03.2024 Vestlus (0)
Kasutaja ikoon ID44127
Pakkuja profiil Väike nool paremale
3 500€ KM lisandub KM lisandub 25.03.2024 Vestlus (0)

Pakkumise kirjeldus:

Tere,

Hinnapakkumises kõik küsitud lammutustööd koos jäätmete äraveo ja utiliseerimisega.
Tööde tulemusena jääb nn mustkarp.

Kasutaja ikoon ID52293
Pakkuja profiil Väike nool paremale
2 500€ Sisaldab KM Sisaldab KM 25.03.2024 Vestlus (0)
Kasutaja ikoon ID79722
Pakkuja profiil Väike nool paremale
1 200€ Ei ole KMKR Ei ole KMKR 25.03.2024 Vestlus (0)
Kasutaja ikoon ID57475
Pakkuja profiil Väike nool paremale
900€ KM lisandub KM lisandub 25.03.2024 Vestlus (0)

Pakkumise kirjeldus:

Tere,


Meie pakkumine vastavalt hanke kirjeldusele.
Lammutamine+tellija poolt toodud konteinerisse utiliseerimine.
Lisaküsimustele vastan meeleldi!

Lp. Timo

Kasutaja ikoon ID56408
Pakkuja profiil Väike nool paremale
1 500€ Ei ole KMKR Ei ole KMKR 25.03.2024 Vestlus (0)

Pakkumise kirjeldus:

Tere,

Pakkumine Teie hankele

Lugupidamisega

Küsimused hanke korraldajale

Küsimus: private ID73145   22.03.2024 18:58
Mis korrus ?

Teavita reeglite rikkumisest

Korraldaja vastus: 22.03.2024 21:22

1 korrus,

Teavita reeglite rikkumisest

Küsimus: private ID75303   22.03.2024 21:20
Tere, mis on orienteeruv ajavahemik või lõpptähtaeg tööle?

Teavita reeglite rikkumisest

Korraldaja vastus: 22.03.2024 21:22

Ei ole konkreetset ajavahemikku ega tähtaega, alustada võiks lähiajal, nädala paari jooksul

Teavita reeglite rikkumisest

Lisa küsimus

Lisa küsimus

Minu pakkumine

Reeglid

Pakkumise kirjelduse väli on mõeldud pakkumise detailsemaks lahti kirjutamiseks. Pikema teksti mugavaks sisestamiseks klikkige kasti paremal ülaservas oleval ikoonil.
Pakkumist tehes on keelatud postitada enda kontaktandmeid (nimi, telefon, aadress jne). Me jälgime ja analüüsime pakkumisi, et vältida pettuseid ja reeglite rikkumisi.
Rikkumise puhul kasutajakonto blokeeritakse.

 

Teisi töid samas valdkonnas

Valdkonnas "Lammutustööd" on 6 aktiivset tööd

Suvila lammutamine

Asukoht: Raplamaa, Vilivere
Aega jäänud: 10h 49 min
Tehtud pakkumisi: 10

Katuse lammutamine

Asukoht: Harjumaa
Aega jäänud: 12p 10h
Tehtud pakkumisi: 7

Vanemad teated:

Vaata kõiki

Sellel veebilehel kasutatakse küpsiseid. Kasutamist jätkates nõustute küpsiste kasutamisega.

Sulge
 
Minu pakkumine

Reeglid

Pakkumise kirjelduse väli on mõeldud pakkumise detailsemaks lahti kirjutamiseks. Pikema teksti mugavaks sisestamiseks klikkige kasti paremal ülaservas oleval ikoonil.
Pakkumist tehes on keelatud postitada enda kontaktandmeid (nimi, telefon, aadress jne). Me jälgime ja analüüsime pakkumisi, et vältida pettuseid ja reeglite rikkumisi.
Rikkumise puhul kasutajakonto blokeeritakse.