+ Lisa oma töö      

Otsid ehitajat "Põrandatööd" valdkonnast?

Parima pakkumise ja teostaja leidmiseks lisa oma töö.

Eramu põranda osaline lammutamine, soojustusamine ja betoonitööd - Aegviidu

ID 93199

521 vaatamist

Prindi

  • check Pakkumiste tegemine
    kuni 02.04.2024
  • check Võitja valik kuni
    09.04.2024
  • 3 Töö teostamine
    ja hinnang
Hanke lõpp: T, 2. aprill, 2024
Maakond: Harjumaa
Muu asula: Aegviidu
Tööde lõpp: Kokkuleppel
Ehitusmaterjalid: Töö tellija poolt
Soovin pakkumisi: Summa kogu projektile

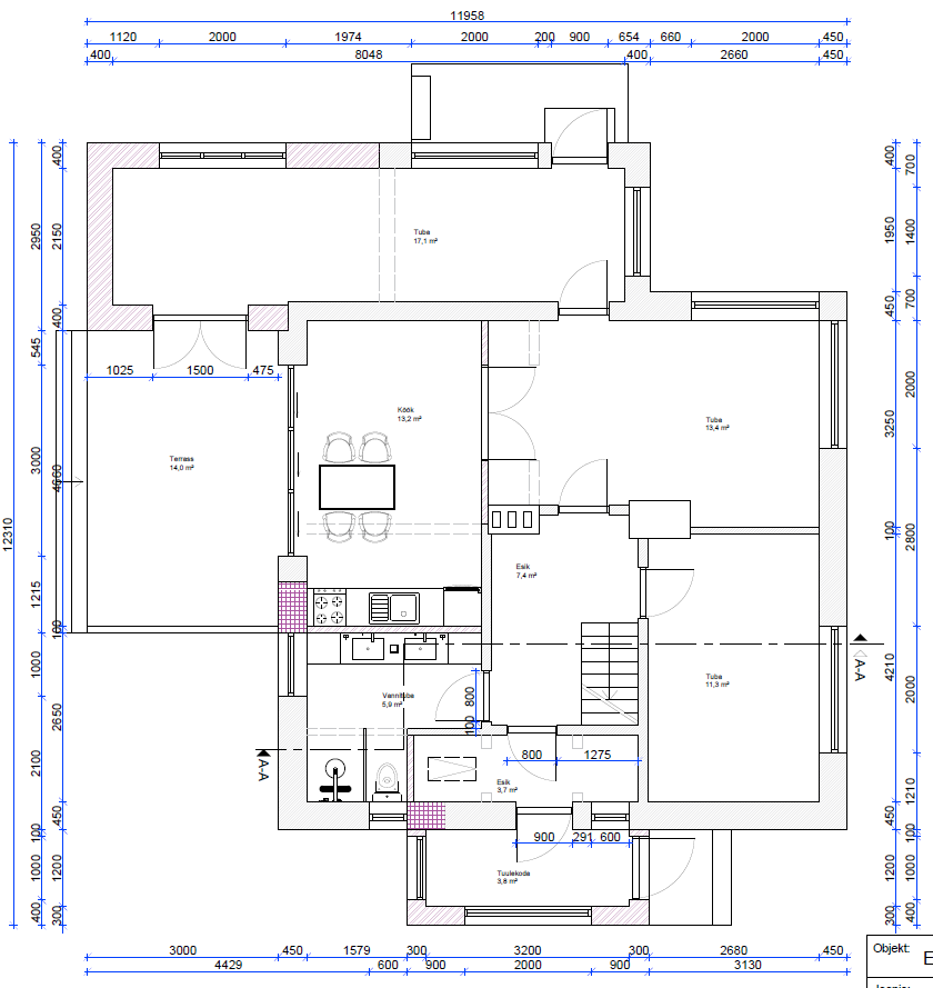
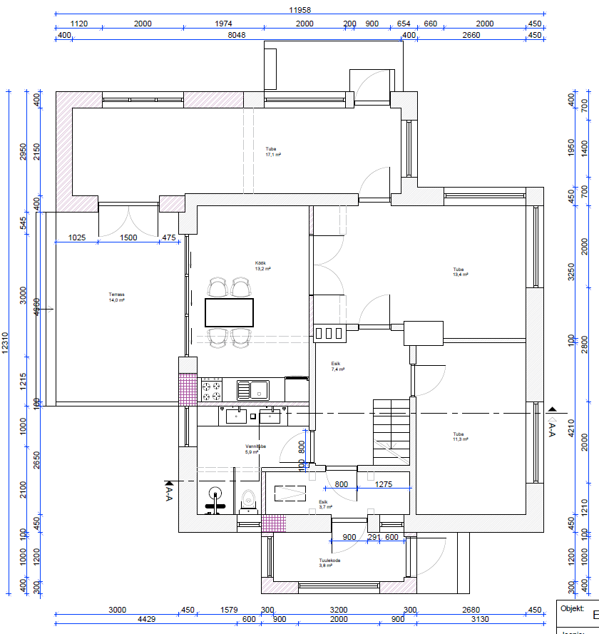
Töö sisu

Etapp 1 - vt. vana joonist (ilma mööblita):
1. Tuulekoja ja olemasoleva käimla põrand (betoon) lammutada, käimla kaev täita liivaga - põranda pindala kokku ~2,4 m2
2. Esiku põrand lammutada (puittalad, 4 cm tapiga põrandalaud, vineer, 10 cm saepuru ja must laudis) ja valmistada ette - 7,2 m2

Etapp 2 - vt. uut joonist (mööbliga):
~50 m2 põrandalt (köök, kaks tuba, esik, vana WC ja tuulekoda):
- eemaldada ~5 cm pinnast
- paigaldada ja tihendada,~30 cm liiva
- soojustada (20 cm EPS)
- katta betooniga, mille sisse paigaldada põrandakütte torud. Igas toas põrand tuleb eraldi plaadina.

Lisaks vannitoa põrand 6 m2, kus on all olemas betoon (keldri vahelagi) - 30 mm EPS + 8 cm betooni.

Töödele taotletakse Kredexi renoveerimistoetust, nii et tööde läbiviimise aeg ilmselt mitte enne aprilli lõppu kui uus taotluste voor avatakse aprillis nagu lubatakse.


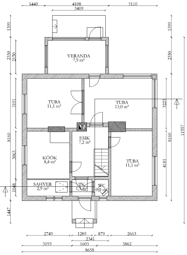
Lisaks eraldi tööna on vaja valada vundament veranda uue osa ja terrassi jaoks (uus joonis), ning valada seal ka põrand. Seda maksab täies ulatuses töö tellija ja seda on võimalik arutada eraldi, kuid tööd võib viia läbi ka ühe hooga.

Pildid, video ja failid

Hanke korraldaja: eraisik ID52245

Pakkumised

Pakkumisi kokku: 4

Ettevõte Summa Käibemaks Lisatud Vestlus
Kasutaja ikoon ID72357
Pakkuja profiil Väike nool paremale
6 750€ Ei ole KMKR Ei ole KMKR 21.03.2024 Vestlus (0)
Kasutaja ikoon ID78546
Pakkuja profiil Väike nool paremale
6 600€ KM lisandub KM lisandub 02.04.2024 Vestlus (0)

Pakkumise kirjeldus:

Etapp-1 ja Etapp2 tööd.Vundamendi pakkumise jaoks vaja ristlõige jooniseid.

Kasutaja ikoon ID52293
Pakkuja profiil Väike nool paremale
2 000€ Sisaldab KM Sisaldab KM 02.04.2024 Vestlus (0)
Kasutaja ikoon ID57475
Pakkuja profiil Väike nool paremale
4 800€ KM lisandub KM lisandub 02.04.2024 Vestlus (1)

Pakkumise kirjeldus:

Tere,


Meie pakkumine sisaldab:
Kändude juurimine ja koondamine ühte kohta, kui soovite et utiliseerime need lisandub 15€/ühe kännu kohta.
Töö saame ära teha hankes märgitud vahemikus.
Lisaküsimustele vastan meeleldi!

Lp.

Küsimused hanke korraldajale

Hanke korraldajale ei ole veel küsimusi esitatud.

Lisa küsimus

Lisa küsimus

Minu pakkumine

Reeglid

Pakkumise kirjelduse väli on mõeldud pakkumise detailsemaks lahti kirjutamiseks. Pikema teksti mugavaks sisestamiseks klikkige kasti paremal ülaservas oleval ikoonil.
Pakkumist tehes on keelatud postitada enda kontaktandmeid (nimi, telefon, aadress jne). Me jälgime ja analüüsime pakkumisi, et vältida pettuseid ja reeglite rikkumisi.
Rikkumise puhul kasutajakonto blokeeritakse.

 

Teisi töid samas valdkonnas

Valdkonnas "Põrandatööd" on 2 aktiivset tööd

Talumaja põrandate valamine/ehitus koos küttetorustiku paigaldusega

Asukoht: Raplamaa, Purila
Aega jäänud: 16p 20h
Tehtud pakkumisi: 2

Põrandakütte paigaldus ja põrandavalu (kips või betoon)

Asukoht: Saaremaa, Muhu vald
Aega jäänud: 20h 13 min
Tehtud pakkumisi: 1

Vanemad teated:

Vaata kõiki

Sellel veebilehel kasutatakse küpsiseid. Kasutamist jätkates nõustute küpsiste kasutamisega.

Sulge
 
Minu pakkumine

Reeglid

Pakkumise kirjelduse väli on mõeldud pakkumise detailsemaks lahti kirjutamiseks. Pikema teksti mugavaks sisestamiseks klikkige kasti paremal ülaservas oleval ikoonil.
Pakkumist tehes on keelatud postitada enda kontaktandmeid (nimi, telefon, aadress jne). Me jälgime ja analüüsime pakkumisi, et vältida pettuseid ja reeglite rikkumisi.
Rikkumise puhul kasutajakonto blokeeritakse.