+ Lisa oma töö      

Otsid ehitajat "Eramu ehitus" valdkonnast?

Parima pakkumise ja teostaja leidmiseks lisa oma töö.

Eramaja ehitus

ID 93179

1191 vaatamist

Prindi

  • check Pakkumiste tegemine
    kuni 18.04.2024
  • check Võitja valik kuni
    25.04.2024
  • 3 Töö teostamine
    ja hinnang
Hanke lõpp: N, 18. aprill, 2024
Maakond: Tartumaa
Linn: Elva
Tööde lõpp: Kokkuleppel
Ehitusmaterjalid: Töö tegija poolt
Soovin pakkumisi: Summa kogu projektile

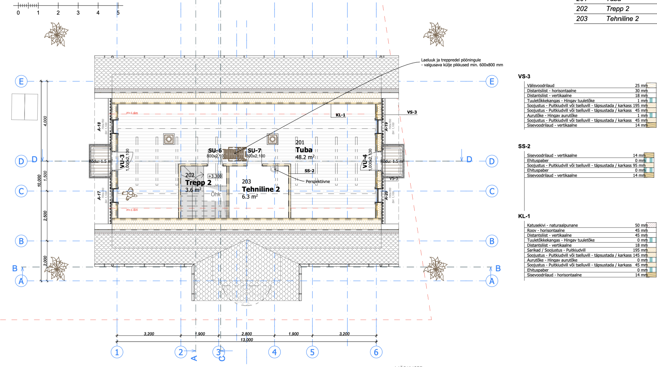
Töö sisu

Hetkel puitkonstruktsioonis projekteeritud maja ehitus kivikonstruktsioonis

- Välisseinte kandev osa plokkidest (pakutav toode täpsustada), siseviimistlus: krohv, välisviimistlus: laudis nii nagu projektis, välisseina u-arv: samaväärne projektis olevale.
Siseseinad plokkidest (pakutav toode täpsustada) või puit, viimistlus: krohv.
- Vahelagi eelistatavalt puit-taladel, võib kaaluda raudbetooni õõnespaneele - täpsustada.
- Vundament - soovitavalt plaatvundament nii nagu projektis, vajadusel võib olla ka lintvundament
- Põrand pinnasel - sama lahendus mis projektis
- Katuslagi - sama lahendus mis projektis

Valmidusaste:
Majakarp kinni, küte sees, torustikud ning kaablid-pistikud-lülitid veetud, siseviimistlus tegemata, täpsemalt:

1.Vundament (sokkel pealisviimistluseta), sh välistrepp (võib arvestada neljakandilisega)
2.Välisseinad, sh välisviimistlus, veranda, rõdud
3.Katus
4.Välisavatäited
5.Vaheseinad (viimistlemata)
6. Sisetrepp
7. Õhksoojuspump, põrandaküte
8. Põrand: (Põrandaplaadid – hinnaklass 10-14eur/m2; puitpõrand - puitparkett, mis ei ole MDF põhine (täpsustada) )
9. Vahelagi, 2. k põrand (siin võiks olla naturaalne laud, täpsutab)
10. Veevärgiga liitumise lahendus ja krundisisene veetorustik elumajja ning elamu sisene veetorustik (ei sisalda santehnikat) 
11. Elektriliitumine, krundisisene kaabeldus elamusse, hoonesisene kaabeldus sh. pistikud, lülitid jmt. va. valgustid (NB vundamendialune kõrvahoonesse minev elektritrassi osa tuleb ümber paigutada)

*Hinnad osade kaupa

* Võib pakkuda lisaks suuremat valmidusastet (terrass, köögimööbel, seinte siseviimistlus, santehnika, saun, vm).

Pildid, video ja failid

Hanke korraldaja: eraisik ID63548

Pakkumised

Pakkumisi kokku: 3

Ettevõte Summa Käibemaks Lisatud Vestlus
Kasutaja ikoon ID80581
Pakkuja profiil Väike nool paremale
217 585,1€ KM lisandub KM lisandub 16.04.2024 Vestlus (10)

Pakkumise kirjeldus:

Tere,

Hinnad tehtud ette antud andmete põhjal.
Kui peaksime hanke võitma, siis peale seda saab teha detailsed hinnad mille järgi juhenduda.
Kindlasti aitab hindade parnadamisele kaasa põhiprojektid ja sõlmed.
Hinna sees ehituslike dokumentide täitmine ja kaetud tööde aktide tegemine.
Millega saate hiljem minna taotlema kasutusluba.
Ärge unus ... Rohkem

Kasutaja ikoon ID49870
Pakkuja profiil Väike nool paremale
220 000€ KM lisandub KM lisandub 18.04.2024 Vestlus (4)

Pakkumise kirjeldus:

Kirjutan pakkumise lahti, aga mõned küsimused ennem.
Antud info põhjal ei oska täpset pakkumist teha.

Kasutaja ikoon ID79944
Pakkuja profiil Väike nool paremale
200 000€ Sisaldab KM Sisaldab KM 18.04.2024 Vestlus (1)

Pakkumise kirjeldus:

Tere. Hind sisaldab võtmed kätte plaatvundamenti koos kommunikatsioonidega, maja kivikarkassi sise- ja välisviimistlusega ning puitpalklagi. Vaheseinad kivist. Võtmed kätte katus. Sisetrepp ja õhksoojuspump. Kaablijaotus hoone sees. Koostatakse varjatud tööde aktid ja tehtud tööde aktid. Peale lepingu allkirjastamist ootame 30% summast seadmete ja ... Rohkem

Küsimused hanke korraldajale

Küsimus: private ID67766   20.03.2024 07:09
Tere .Võin teha pakkumise etappide kaupa. Kõigepealt vundament ja soojustus hüdro ja tagasitäide. Parimat soovides

Teavita reeglite rikkumisest

Korraldaja vastus: 23.03.2024 18:08

Tere Aitäh küsimuse eest. Nii võib ka, aga oleks parem, kui ka järgnevatest etappidest ettekujutuse saab.
Avatäited võib eraldi v välja jätta, neid on selle projekti puhul ilmselt keeruline antud teabe põhjal pakkuda.

Teavita reeglite rikkumisest

Küsimus: private ID80774   28.03.2024 08:37
Tere, kuna olen spetsialiseerunud sauna ehitusele siis teeksin pakkumise ainult saunale kui sobib?

Teavita reeglite rikkumisest

Korraldaja vastus: 11.04.2024 09:07

Tere Jah, võib teha ka sauna osale, eks siis vaatab.

Teavita reeglite rikkumisest

Küsimus: private ID80581   10.04.2024 14:04
Tere,

Väga sooviks pakkumist teile teha kuna meil lõpetamisel tüübilt samasugune maja.
Head ja vead on teada mida võiks projektis muuta või nõu anda muutmise kohta.
Kuna paljud pakkujad ootavad nende taga kes teevad selle suure mahulise töö ära (Teie soovite osade kaupa).
Ruutmeetri ehitushinda oskavad kõik kirjutada.

Teavita reeglite rikkumisest

Korraldaja vastus: 12.04.2024 10:34

Tere
Sarnase ehituse kogemus pakub muidugi huvi.
Ruutmeetri hind v. osade kaupa, jah, nii paraku on, arusaadav, et ruutmeetri hinda on kergem öelda ja praegusel juhul osade kaupa on keeruline. Kuidas saavutada olukord, et pakkuja jaoks on asi hallatav ja tellija jaoks mõistlik võrdlusvõimalus olemas, väga häid lahendusi ehk pole. Kas on abiks, kui küsimuste-vastuste abil mõne osa materjalid kas välistab või täpsustab?

Teavita reeglite rikkumisest

Küsimus: private ID65236   11.04.2024 20:40
Tervist! Võiks teha pakkumise välisvoodrile, rõdudele, katusele, tuulekastidele, akende, uste paigaldusele, puitvahelae ehitusele ja põrandakatete ja liistude paigaldusele. Materjalist ainult ei pakuks ferme, see joonis puudub.
Parimat!

Teavita reeglite rikkumisest

Korraldaja vastus:
Hanke korraldaja ei ole küsimusele veel vastanud

Küsimus: private ID80581   12.04.2024 11:11
Saite natuke valesti aru. Hinda etappide kaupa ei ole raske meil teha. Lihtsalt see keskond on nende inimeste kahjuks.
Terve maja hinna saab sisse lüüa, aga etappidena pean kirjelduse alla kirjutama mida teised pakkujad näevad.
Kui muidugi teha nii, et ma teen kogule majale pakkumise ära ja peale seda kirjutate privaatse kommentaari pakkumise taha ning sinna lisan teile etappide kaupa.

Teavita reeglite rikkumisest

Korraldaja vastus: 12.04.2024 12:17

Selge, teeme nii

Teavita reeglite rikkumisest

Lisa küsimus

Lisa küsimus

Minu pakkumine

Reeglid

Pakkumise kirjelduse väli on mõeldud pakkumise detailsemaks lahti kirjutamiseks. Pikema teksti mugavaks sisestamiseks klikkige kasti paremal ülaservas oleval ikoonil.
Pakkumist tehes on keelatud postitada enda kontaktandmeid (nimi, telefon, aadress jne). Me jälgime ja analüüsime pakkumisi, et vältida pettuseid ja reeglite rikkumisi.
Rikkumise puhul kasutajakonto blokeeritakse.

 

Teisi töid samas valdkonnas

Valdkonnas "Eramu ehitus" on 2 aktiivset tööd

Eramu ehitus

Asukoht: Viljandimaa, Viljandi
Aega jäänud: 7p 1h
Tehtud pakkumisi: 0

no-img Pilt puudub

Eramu ehitus. Karp kinni.

Asukoht: Lääne-Virumaa
Aega jäänud: 5p 1h
Tehtud pakkumisi: 0

Vanemad teated:

Vaata kõiki

Sellel veebilehel kasutatakse küpsiseid. Kasutamist jätkates nõustute küpsiste kasutamisega.

Sulge
 
Minu pakkumine

Reeglid

Pakkumise kirjelduse väli on mõeldud pakkumise detailsemaks lahti kirjutamiseks. Pikema teksti mugavaks sisestamiseks klikkige kasti paremal ülaservas oleval ikoonil.
Pakkumist tehes on keelatud postitada enda kontaktandmeid (nimi, telefon, aadress jne). Me jälgime ja analüüsime pakkumisi, et vältida pettuseid ja reeglite rikkumisi.
Rikkumise puhul kasutajakonto blokeeritakse.