+ Lisa oma töö      

Otsid ehitajat "Eramu ehitus" valdkonnast?

Parima pakkumise ja teostaja leidmiseks lisa oma töö.

Plaatvundament

ID 93044

799 vaatamist

Prindi

  • check Pakkumiste tegemine
    kuni 31.03.2024
  • check Võitja valik kuni
    07.04.2024
  • 3 Töö teostamine
    ja hinnang
Hanke lõpp: P, 31. märts, 2024
Maakond: Harjumaa
Muu asula: Muuga
Tööde lõpp: Kokkuleppel
Ehitusmaterjalid: Töö tegija poolt
Soovin pakkumisi: Summa kogu projektile

Töö sisu

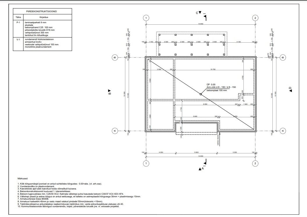
Plaatvundamendi ehitus elumajale. Vundament plaat projekti järgi (300 mm soojustus) kõikide kommunikatsioonidega selles ja lõpliku betoonpõrandani (betoonsiluriga). Pinnase tasandamine, reovee ärajuhtimine. Territooriumil on äravoolutoru.

Pildid, video ja failid

Hanke korraldaja: ettevõte ID56408

Pakkumised

Pakkumisi kokku: 8

Ettevõte Summa Käibemaks Lisatud Vestlus
Kasutaja ikoon ID50329
Pakkuja profiil Väike nool paremale
29 000€ KM lisandub KM lisandub 18.03.2024 Vestlus (1)
Kasutaja ikoon ID29437
Pakkuja profiil Väike nool paremale
32 000€ Sisaldab KM Sisaldab KM 19.03.2024 Vestlus (1)

Pakkumise kirjeldus:

Pakkumise hind vastavalt hanke kirjeldusele, sisaldab materjale ja tööd, samuti vk. ühendamist.

Kasutaja ikoon ID53401
Pakkuja profiil Väike nool paremale
29 500€ KM lisandub KM lisandub 20.03.2024 Vestlus (0)

Pakkumise kirjeldus:

Tere.
Meie pakkumine sisaldab:
1. Pinnasetööd- pinnase koorimine, geokangas ja liivapadi 50cm.
2. Vundamendi aluse vee ja kanalisatsiooni süsteemi ehitus. (vundamendi alt välja)
3. L plokkide paigaldus.
4. Põranda aluse soojustusplaadi paigaldus- EPS100- 300mm
5. Perimeetri horisontaalse soojustuse paigaldus- EPS120- 100mm
6. Tarbevee torude paig ... Rohkem

Kasutaja ikoon ID39222
Pakkuja profiil Väike nool paremale
27 000€ KM lisandub KM lisandub 21.03.2024 Vestlus (0)
Kasutaja ikoon ID50594
Pakkuja profiil Väike nool paremale
30 800€ KM lisandub KM lisandub 27.03.2024 Vestlus (0)

Pakkumise kirjeldus:

Tere,

Pakkumine vastavalt hanke kirjeldusele.

Lgp. Taivo

Kasutaja ikoon ID8633
Pakkuja profiil Väike nool paremale
30 000€ KM lisandub KM lisandub 31.03.2024 Vestlus (0)
Kasutaja ikoon ID35170
Pakkuja profiil Väike nool paremale
8 000€ KM lisandub KM lisandub 31.03.2024 Vestlus (2)

Pakkumise kirjeldus:

Tere.
Pakkumine sisaldab väljakaevet trassitöid ja kaabli paigaldust .
Samuti tagasitäidet kas liiva või pestud kiviliivaga penoaluse kõrguseni ning tihendamist.
Ei sisalda pinnase utiliseerimist see ilmselt kulub krundi täitmisel ära.
Tasumine etappide kaupa.

Kasutaja ikoon ID52293
Pakkuja profiil Väike nool paremale
18 000€ Sisaldab KM Sisaldab KM 31.03.2024 Vestlus (0)

Küsimused hanke korraldajale

Küsimus: private ID29722   17.03.2024 21:36
Tere . Kas VK ( väliskomunilatsionid ) juba paigaldadud ?

Parimat

Teavita reeglite rikkumisest

Korraldaja vastus: 17.03.2024 21:44

Tere,

Ei. On vaja ühendada. Umbes 7m vundamentist.

Teavita reeglite rikkumisest

Küsimus: private ID35170   24.03.2024 10:59
Tere.
Kas võib teha ka etapilise pakkumise st. väljakaeve trasside ehitus kaablite paigaldus ja tagasitäide killustik ja liiv penoaluse kõrguseni.

Teavita reeglite rikkumisest

Korraldaja vastus: 24.03.2024 11:32

Jah, sobib.

Teavita reeglite rikkumisest

Lisa küsimus

Lisa küsimus

Minu pakkumine

Reeglid

Pakkumise kirjelduse väli on mõeldud pakkumise detailsemaks lahti kirjutamiseks. Pikema teksti mugavaks sisestamiseks klikkige kasti paremal ülaservas oleval ikoonil.
Pakkumist tehes on keelatud postitada enda kontaktandmeid (nimi, telefon, aadress jne). Me jälgime ja analüüsime pakkumisi, et vältida pettuseid ja reeglite rikkumisi.
Rikkumise puhul kasutajakonto blokeeritakse.

 

Teisi töid samas valdkonnas

Valdkonnas "Eramu ehitus" on 2 aktiivset tööd

Eramu ehitus

Asukoht: Viljandimaa, Viljandi
Aega jäänud: 7p 1h
Tehtud pakkumisi: 0

no-img Pilt puudub

Eramu ehitus. Karp kinni.

Asukoht: Lääne-Virumaa
Aega jäänud: 5p 1h
Tehtud pakkumisi: 0

Vanemad teated:

Vaata kõiki

Sellel veebilehel kasutatakse küpsiseid. Kasutamist jätkates nõustute küpsiste kasutamisega.

Sulge
 
Minu pakkumine

Reeglid

Pakkumise kirjelduse väli on mõeldud pakkumise detailsemaks lahti kirjutamiseks. Pikema teksti mugavaks sisestamiseks klikkige kasti paremal ülaservas oleval ikoonil.
Pakkumist tehes on keelatud postitada enda kontaktandmeid (nimi, telefon, aadress jne). Me jälgime ja analüüsime pakkumisi, et vältida pettuseid ja reeglite rikkumisi.
Rikkumise puhul kasutajakonto blokeeritakse.