+ Lisa oma töö      

Otsid ehitajat "Vundamenditööd" valdkonnast?

Parima pakkumise ja teostaja leidmiseks lisa oma töö.

Plaatvundament (HARJUMAA)

ID 92864

1605 vaatamist

Prindi

  • check Pakkumiste tegemine
    kuni 21.03.2024
  • check Võitja valik kuni
    28.03.2024
  • 3 Töö teostamine
    ja hinnang
Hanke lõpp: N, 21. märts, 2024
Maakond: Harjumaa
Muu asula: Türisalu
Tööde lõpp: Kokkuleppel
Ehitusmaterjalid: Töö tegija poolt
Soovin pakkumisi: Summa kogu projektile

Töö sisu

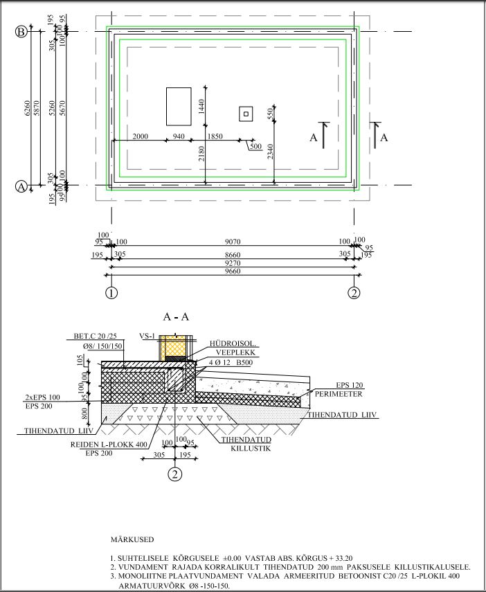
Sooviks hinnapakkumist plaatvundamendile (manuses) koos pinnasetööde ja vundamendi maha märkimisega. Lisaks põrandaküttetorustik/kanalisatsioon ja vesi tuleks vundamendi sisse. Tegu on ühekordse puitkarkass hoonega, millel on 44 kraadine viilkatus ja nö katusealune korrus läheb ka kasutusse (trepp).
WC ja kööginurk on ühes nurgas.
Teiseks küttekehaks lisaks vesipõrandaküttele on kamin.
Vundament peaks olema lõplikult valmis (sh soojustatud) ja töö dokumenteeritud.

Projektis on kirjas järgmine: hoone vundament on betoonist plaatvundament rajatud Reideni L-plokkidest EPS 200. Vundament on armeeritud betoon C20/25 plaatvundament.

Sooviks alustada nii kiirelt kui võimalik.

Võib pakkumise teha ka kommunikatsioonide tootmiseks majani (vesi, kanal ja elekter), ühendused kinnistu piiril. Vajadusel küsida lisa dokumentatsiooni otse.

Pildid, video ja failid

Hanke korraldaja: eraisik ID30075

Pakkumised

Pakkumisi kokku: 12

Ettevõte Summa Käibemaks Lisatud Vestlus
Kasutaja ikoon ID79832
Pakkuja profiil Väike nool paremale
14 000€ Sisaldab KM Sisaldab KM 15.03.2024 Vestlus (3)

Pakkumise kirjeldus:

Tere

Hind sisaldab:

1. Kaevamistööd
2. Elekter vesi kanal majani , eps , võrk, betoon
3. Töö
4. Vundamenti põhiprojekt
5. Järelevalve




Lugupidamisega

Kasutaja ikoon ID18214
Pakkuja profiil Väike nool paremale
10 000€ KM lisandub KM lisandub 15.03.2024 Vestlus (12)

Pakkumise kirjeldus:

Tere.
Ei lubatud x pakkumist läbi.
Lgp
Joel.

Kasutaja ikoon ID52471
Pakkuja profiil Väike nool paremale
12 500€ KM lisandub KM lisandub 15.03.2024 Vestlus (5)

Pakkumise kirjeldus:

täpsustame projekti järgi

Kasutaja ikoon ID50329
Pakkuja profiil Väike nool paremale
11 500€ KM lisandub KM lisandub 15.03.2024 Vestlus (2)
Kasutaja ikoon ID8633
Pakkuja profiil Väike nool paremale
11 800€ KM lisandub KM lisandub 17.03.2024 Vestlus (0)
Kasutaja ikoon ID33806
Pakkuja profiil Väike nool paremale
15 600€ KM lisandub KM lisandub 18.03.2024 Vestlus (0)

Pakkumise kirjeldus:

Tere,
Hinnapakkumine Vundamendi ehitusele. Täpsema hinnapakkumise tegemiseks oleks tarvis asendiplaani ning VK jooniseid, et arvestada eriosade maht.

Meeleldi teeksime teile hinnapakkumise ka ülejäänud majaosa ehitusele kuni võtmed kätte.

Meeldivale koostööle lootes

Kasutaja ikoon ID80164
Pakkuja profiil Väike nool paremale
12 000€ Sisaldab KM Sisaldab KM 20.03.2024 Vestlus (0)

Pakkumise kirjeldus:

pakkumine plaatvundamendile(+-10%), ei sisalda maatöid kuna ei tea palju vaja baasi lammutada ning tagasitäidet. Saame pakkuda lisaks vee ja kanali ühendamise.(koostööpartneriga) Ettemaks vaid materjalide enamike tarnimiseks. Oleme siinkandis palju toimetanud ja teame ühtteist siinsest olust.

Kasutaja ikoon ID60861
Pakkuja profiil Väike nool paremale
18 500€ KM lisandub KM lisandub 21.03.2024 Vestlus (0)

Pakkumise kirjeldus:

Tere
Hind ei sisalda kommunikatsiooni toomist majani.
Tasumine eriosades.
Parimat

Kasutaja ikoon ID78546
Pakkuja profiil Väike nool paremale
17 400€ KM lisandub KM lisandub 21.03.2024 Vestlus (0)

Pakkumise kirjeldus:

Kuna puuduvad kütte ja kanali projektid ,võib hind natuke muutuda.

Kasutaja ikoon ID8356
Pakkuja profiil Väike nool paremale
19 550€ KM lisandub KM lisandub 21.03.2024 Vestlus (0)

Pakkumise kirjeldus:

Hind koos välistrasside ehitamisega.

Kasutaja ikoon ID52293
Pakkuja profiil Väike nool paremale
13 000€ Sisaldab KM Sisaldab KM 21.03.2024 Vestlus (0)

Pakkumise kirjeldus:

Tere
Juhul kui soovite meid valida hanke võitjaks peaks eelnevalt kokku leppima makse tingimustes
Tänud

Kasutaja ikoon ID53401
Pakkuja profiil Väike nool paremale
12 500€ KM lisandub KM lisandub 21.03.2024 Vestlus (2)

Pakkumise kirjeldus:

Tere.
Pakkumine sisaldab

Hoone mahamärkimine
Pinnase koorimine (pinnas jääb objektile).
Vee -, kanalistasiooni- ja elektritrasside valmiduse ehitus
Geokanga paigaldus
Aluspinna ehitus (killustik/liiv)
L plokkide paigaldus
vundamendisisese kanalistasiooni ehitus. (110+50mm)
EPS soojustuse paigaldus (EPS 100- 300mm kandva seina alla EPS200)
Vund ... Rohkem

Küsimused hanke korraldajale

Küsimus: private ID18214   14.03.2024 09:48
Tere.
Veits vara veel aga saaksime teha teile pakkumise puidu osa +katus, seest kuni kipsi pinnani
Kui terassid siis ka nende peale.
Lgp
Joel.

Teavita reeglite rikkumisest

Korraldaja vastus: 14.03.2024 10:26

Tere, võib selles osas ka pakkumise teha, see järgmine etapp.

Teavita reeglite rikkumisest

Küsimus: private ID18214   14.03.2024 11:59
Selge.
Mis varjant teile sobib.
Kas lisate siia hankesse puuduoleva info mille järgi joonduda
Teete uue hanke koos seletus kirjaga.
teen siia x pakkumise saate pirvaatselt saata
andmed.
Lgp
Joel.

Teavita reeglite rikkumisest

Korraldaja vastus: 14.03.2024 14:04

Palun tehke x pakkumine ja saadan teile eelprojekti andmed.

Teavita reeglite rikkumisest

Küsimus: private ID52471   15.03.2024 07:54
Tere. Kogu pakkumise tegemise jaoks oleks vaja tervet asendiplaani koos kommunikatsioonidega. Parem, kui DWG. Kui sügaval on paekiht (kas peab seda hakkama lõhkuma)? Ja veel küsimusi.. Teen ka xx pakkumise? Kus asub?

Teavita reeglite rikkumisest

Korraldaja vastus: 15.03.2024 14:44

Asub Türisalu külas Harjumaa. Palun tehke pakkumine, siis jagan detalilsemat infot.

Teavita reeglite rikkumisest

Lisa küsimus

Lisa küsimus

Minu pakkumine

Reeglid

Pakkumise kirjelduse väli on mõeldud pakkumise detailsemaks lahti kirjutamiseks. Pikema teksti mugavaks sisestamiseks klikkige kasti paremal ülaservas oleval ikoonil.
Pakkumist tehes on keelatud postitada enda kontaktandmeid (nimi, telefon, aadress jne). Me jälgime ja analüüsime pakkumisi, et vältida pettuseid ja reeglite rikkumisi.
Rikkumise puhul kasutajakonto blokeeritakse.

 

Vanemad teated:

Vaata kõiki

Sellel veebilehel kasutatakse küpsiseid. Kasutamist jätkates nõustute küpsiste kasutamisega.

Sulge
 
Minu pakkumine

Reeglid

Pakkumise kirjelduse väli on mõeldud pakkumise detailsemaks lahti kirjutamiseks. Pikema teksti mugavaks sisestamiseks klikkige kasti paremal ülaservas oleval ikoonil.
Pakkumist tehes on keelatud postitada enda kontaktandmeid (nimi, telefon, aadress jne). Me jälgime ja analüüsime pakkumisi, et vältida pettuseid ja reeglite rikkumisi.
Rikkumise puhul kasutajakonto blokeeritakse.