+ Lisa oma töö      

Otsid ehitajat "Elektritööd" valdkonnast?

Parima pakkumise ja teostaja leidmiseks lisa oma töö.

Hange on lõppenud!

Võitjaks osutus kasutaja ID 41745

Korraldaja hinnang tehtud tööle

5.0
08.04.2024
Töökiirus: 12345
Kvaliteet: 12345
Hind: 12345

Super suhtumine ja kiire töö. Soovitan iga kell. - Mairo P.

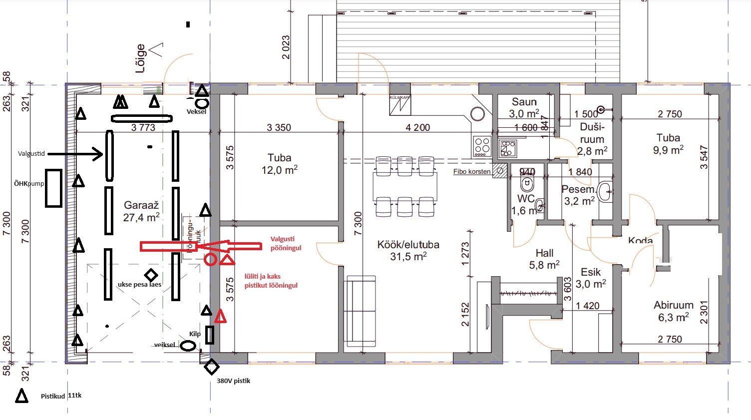
Elektriplaani koostamine juurdeehitusele kasutusloa jaoks

ID 92669

772 vaatamist

Prindi

  • check Pakkumiste tegemine
    kuni 14.03.2024
  • check Võitja valik kuni
    21.03.2024
  • 3 Töö teostamine
    ja hinnang
Hanke lõpp: N, 14. märts, 2024
Maakond: Harjumaa
Linn: Saue
Tööde algus: E, 18. märts, 2024 (Soovituslik)
Tööde lõpp: Kokkuleppel
Ehitusmaterjalid: Töö tellija poolt
Soovin pakkumisi: Summa kogu projektile

Töö sisu

Maja juurdeehitusele uue kasutusloa jaoks elektridokumentatsiooni koostamine ning mõõdistamine. Audit jms vajalikud toimingud samuti.

Pildid, video ja failid

Hanke korraldaja: eraisik ID77718

Pakkumised

Pakkumisi kokku: 4

Ettevõte Summa Käibemaks Lisatud Vestlus
Kasutaja ikoon ID41745
Pakkuja profiil Väike nool paremale
700€ Sisaldab KM Sisaldab KM 12.03.2024 Vestlus (6)

Pakkumise kirjeldus:

Pakkumine sisaldab mõõtmisi, auditit (nõutav kasut.loa samiseks),
skeemid.

Kasutaja ikoon ID44271
Pakkuja profiil Väike nool paremale
650€ KM lisandub KM lisandub 13.03.2024 Vestlus (2)
Kasutaja ikoon ID52246
Pakkuja profiil Väike nool paremale
600€ Ei ole KMKR Ei ole KMKR 14.03.2024 Vestlus (0)

Pakkumise kirjeldus:

Elektriaudit. Ei sisalda elektritöid.
Käibemaksu ei lisandu.

Kasutaja ikoon ID31451
Pakkuja profiil Väike nool paremale
1 000€ KM lisandub KM lisandub 14.03.2024 Vestlus (0)

Küsimused hanke korraldajale

Küsimus: private ID19451   14.03.2024 09:41
Tere, kas elekter tehtud või võtate alles plaani?

Teavita reeglite rikkumisest

Korraldaja vastus: 14.03.2024 16:08

Tere,
Elekter on juba valmis kõik.

Teavita reeglite rikkumisest

Küsimus: private ID19451   14.03.2024 22:16
Tere, Kas teile teostaja poolt ehitaja deklaratsioon väljastati? Seda oleks auditiks tarvis.

Teavita reeglite rikkumisest

Korraldaja vastus:
Hanke korraldaja ei ole küsimusele veel vastanud

Lisa küsimus

Lisa küsimus

Minu pakkumine

Reeglid

Pakkumise kirjelduse väli on mõeldud pakkumise detailsemaks lahti kirjutamiseks. Pikema teksti mugavaks sisestamiseks klikkige kasti paremal ülaservas oleval ikoonil.
Pakkumist tehes on keelatud postitada enda kontaktandmeid (nimi, telefon, aadress jne). Me jälgime ja analüüsime pakkumisi, et vältida pettuseid ja reeglite rikkumisi.
Rikkumise puhul kasutajakonto blokeeritakse.

 

Teisi töid samas valdkonnas

Valdkonnas "Elektritööd" on 5 aktiivset tööd

Vana talu elektrisüsteemi uuendamine (kilp, pistikud, välivalgustus, EV valmidus)

Asukoht: Raplamaa, Suurekivi
Aega jäänud: 1p 7h
Tehtud pakkumisi: 5

Kaablite vahetus paneelmaja korteris ja siseviimistlus

Asukoht: Harjumaa, Tallinn
Aega jäänud: 6p 7h
Tehtud pakkumisi: 4

Vanemad teated:

Vaata kõiki

Sellel veebilehel kasutatakse küpsiseid. Kasutamist jätkates nõustute küpsiste kasutamisega.

Sulge
 
Minu pakkumine

Reeglid

Pakkumise kirjelduse väli on mõeldud pakkumise detailsemaks lahti kirjutamiseks. Pikema teksti mugavaks sisestamiseks klikkige kasti paremal ülaservas oleval ikoonil.
Pakkumist tehes on keelatud postitada enda kontaktandmeid (nimi, telefon, aadress jne). Me jälgime ja analüüsime pakkumisi, et vältida pettuseid ja reeglite rikkumisi.
Rikkumise puhul kasutajakonto blokeeritakse.