+ Lisa oma töö      

Otsid ehitajat "Soojustustööd" valdkonnast?

Parima pakkumise ja teostaja leidmiseks lisa oma töö.

Hange on lõppenud!

Võitjaks osutus kasutaja ID 59528

Katuse ja pööningu otsaseinte soojustamine seestpoolt

ID 92544

1152 vaatamist

Prindi

  • check Pakkumiste tegemine
    kuni 24.03.2024
  • check Võitja valik kuni
    31.03.2024
  • 3 Töö teostamine
    ja hinnang
Hanke lõpp: P, 24. märts, 2024
Maakond: Harjumaa
Linn: Kehra
Tööde algus: E, 03. juuni, 2024 (Soovituslik)
Tööde lõpp: R, 21. juuni, 2024 (Soovituslik)
Ehitusmaterjalid: Töö tegija poolt
Soovin pakkumisi: Summa kogu projektile

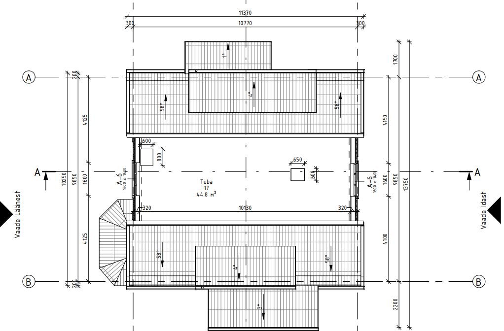
Töö sisu

Katuse ja pööningu otsaseinte seestpoolt soojustamine vastavalt nõuetele. Kredex rekonstrueerimistoetusele vastavate tingimustega(selle aasta vooru ei ole välja kuulutatud, kuid pakkumine peab sobima eelmisele voorule https://www.kredex.ee/et/teenused/vaikeelamute-rekonstrueerimistoetus-2022-2023-taotlused-kuni-30062023).
*Soojustatakse katus, katus- või pööningulagi soojusläbivusega U ≤ 0,20 (W/m2K)

Materjalide osas kindlat eelistust ei ole, v.a. soojustusele lisanduv voodrilaud.

Materjalid töövõtja poolt

Pildid, video ja failid

Hanke korraldaja: eraisik ID42924

Pakkumised

Pakkumisi kokku: 5

Ettevõte Summa Käibemaks Lisatud Vestlus
Kasutaja ikoon ID75087
Pakkuja profiil Väike nool paremale
4 000€ KM lisandub KM lisandub 13.03.2024 Vestlus (35)
Kasutaja ikoon ID50594
Pakkuja profiil Väike nool paremale
18 000€ KM lisandub KM lisandub 23.03.2024 Vestlus (4)

Pakkumise kirjeldus:

Tere,

Pakkumine vastavalt hanke kirjeldusele.

Lgp. Taivo

Kasutaja ikoon ID59528
Pakkuja profiil Väike nool paremale
15 000€ KM lisandub KM lisandub 24.03.2024 Vestlus (2)

Pakkumise kirjeldus:

Tere,

Pakkumine tehtud vastavalt Hankes kirjeldatud töödele. Täpsema hinnakalkulatsiooni saame saata vestluses.
Meie profiili alt näete meie poolt tehtud töid ja klientide poolt antud hinnanguid
Ettevōttel olemas MTR registreering!

Parimat,

Erik

Kasutaja ikoon ID80271
Pakkuja profiil Väike nool paremale
6 300€ KM lisandub KM lisandub 24.03.2024 Vestlus (0)

Pakkumise kirjeldus:

Kõik töö eest.
+- võimalik läheb midagi juurde töösse

Kasutaja ikoon ID53974
Pakkuja profiil Väike nool paremale
12 000€ KM lisandub KM lisandub 24.03.2024 Vestlus (0)

Pakkumise kirjeldus:

Tere
Pakkumine sisaldab nii materjali kui töö raha täpsema informatsiooni saamiseks kirjutage julgelt.
Ettemaks hõlmab materjalide ostmist
Tervitades
A

Küsimused hanke korraldajale

Küsimus: private ID80271   24.03.2024 10:36
Tere kas on vaja ainult soojustust panna

Teavita reeglite rikkumisest

Korraldaja vastus: 24.03.2024 10:40

Soojustus vastavalt nõuetele ja voodrilaud

Teavita reeglite rikkumisest

Küsimus: private ID80271   24.03.2024 10:41
Kui palju ruutmeetri on

Teavita reeglite rikkumisest

Korraldaja vastus: 24.03.2024 10:51

Ligikaudu 140m2 seina/katuslage

Teavita reeglite rikkumisest

Lisa küsimus

Lisa küsimus

Minu pakkumine

Reeglid

Pakkumise kirjelduse väli on mõeldud pakkumise detailsemaks lahti kirjutamiseks. Pikema teksti mugavaks sisestamiseks klikkige kasti paremal ülaservas oleval ikoonil.
Pakkumist tehes on keelatud postitada enda kontaktandmeid (nimi, telefon, aadress jne). Me jälgime ja analüüsime pakkumisi, et vältida pettuseid ja reeglite rikkumisi.
Rikkumise puhul kasutajakonto blokeeritakse.

 

Teisi töid samas valdkonnas

Valdkonnas "Soojustustööd" on 3 aktiivset tööd

Suvemaja soojustamine

Asukoht: Läänemaa
Aega jäänud: 8p 19h
Tehtud pakkumisi: 1

Suure toa soojustamine

Asukoht: Harjumaa, Saue
Aega jäänud: 11p 19h
Tehtud pakkumisi: 0

Vanemad teated:

Vaata kõiki

Sellel veebilehel kasutatakse küpsiseid. Kasutamist jätkates nõustute küpsiste kasutamisega.

Sulge
 
Minu pakkumine

Reeglid

Pakkumise kirjelduse väli on mõeldud pakkumise detailsemaks lahti kirjutamiseks. Pikema teksti mugavaks sisestamiseks klikkige kasti paremal ülaservas oleval ikoonil.
Pakkumist tehes on keelatud postitada enda kontaktandmeid (nimi, telefon, aadress jne). Me jälgime ja analüüsime pakkumisi, et vältida pettuseid ja reeglite rikkumisi.
Rikkumise puhul kasutajakonto blokeeritakse.