+ Lisa oma töö      

Otsid ehitajat "Üldehitus" valdkonnast?

Parima pakkumise ja teostaja leidmiseks lisa oma töö.

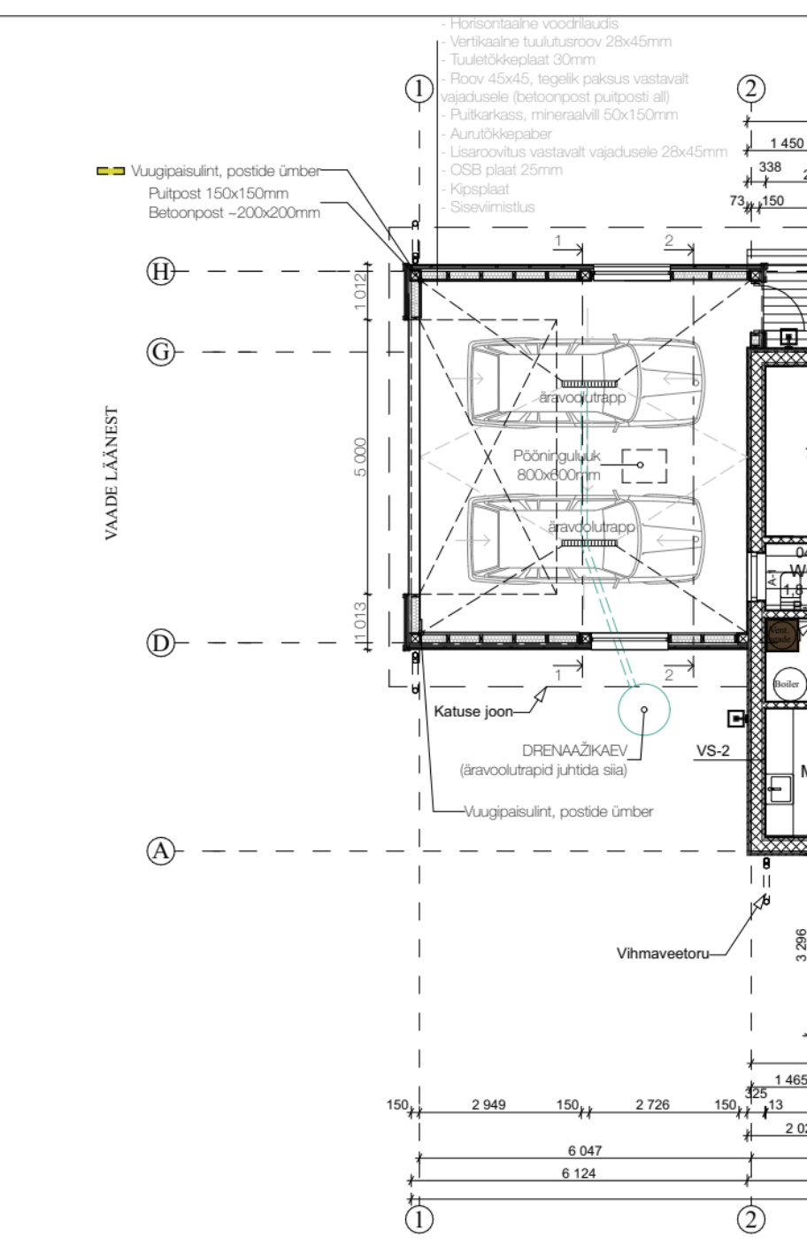
Auto varjualuse põrand

ID 92406

509 vaatamist

Prindi

  • check Pakkumiste tegemine
    kuni 07.04.2024
  • check Võitja valik kuni
    14.04.2024
  • 3 Töö teostamine
    ja hinnang
Hanke lõpp: P, 7. aprill, 2024
Maakond: Harjumaa
Muu asula: Vääna
Tööde algus: E, 01. aprill, 2024 (Soovituslik)
Tööde lõpp: E, 08. aprill, 2024 (Soovituslik)
Ehitusmaterjalid: Töö tellija poolt
Soovin pakkumisi: Summa kogu projektile

Töö sisu

Varjualuse põranda valamine eramule Harjumaal, Väänas. Töö sisaldab ettevalmistust, äravoolu ühendamist, valamist, viimistlemist.

Pildid, video ja failid

Hanke korraldaja: eraisik ID76111

Pakkumised

Pakkumisi kokku: 4

Ettevõte Summa Käibemaks Lisatud Vestlus
Kasutaja ikoon ID52293
Pakkuja profiil Väike nool paremale
7 000€ Sisaldab KM Sisaldab KM 08.03.2024 Vestlus (0)

Pakkumise kirjeldus:

Tere
Juhul kui soovite meid valida hanke võitjaks peaks eelnevalt kokku leppima makse tingimustes
Tänud

Kasutaja ikoon ID50594
Pakkuja profiil Väike nool paremale
14 800€ KM lisandub KM lisandub 05.04.2024 Vestlus (2)

Pakkumise kirjeldus:

Tere,

Pakkumine vastavalt hanke kirjeldusele.

Lgp. Taivo

Kasutaja ikoon ID79944
Pakkuja profiil Väike nool paremale
6 500€ Sisaldab KM Sisaldab KM 07.04.2024 Vestlus (0)

Pakkumise kirjeldus:

Tere. Kogu projekti jaoks, mille seinad on välja arvatud uksed ja väravad 13500 EUR, betoonplaadi jaoks 6500 EUR

Kasutaja ikoon ID75583
Pakkuja profiil Väike nool paremale
8 400€ KM lisandub KM lisandub 07.04.2024 Vestlus (0)

Pakkumise kirjeldus:

Tere,

Hinnapakkumine sisaldab kõiki töid, materjale ning nende transporti.

Töö teostamise aeg, garantii- ja maksetingimused kokkuleppel.
Lisaküsimuste korral palun alustada vestlust.

Küsimused hanke korraldajale

Hanke korraldajale ei ole veel küsimusi esitatud.

Lisa küsimus

Lisa küsimus

Minu pakkumine

Reeglid

Pakkumise kirjelduse väli on mõeldud pakkumise detailsemaks lahti kirjutamiseks. Pikema teksti mugavaks sisestamiseks klikkige kasti paremal ülaservas oleval ikoonil.
Pakkumist tehes on keelatud postitada enda kontaktandmeid (nimi, telefon, aadress jne). Me jälgime ja analüüsime pakkumisi, et vältida pettuseid ja reeglite rikkumisi.
Rikkumise puhul kasutajakonto blokeeritakse.

 

Teisi töid samas valdkonnas

Valdkonnas "Üldehitus" on 30 aktiivset tööd

Kuuri lammutus

Asukoht: Pärnumaa
Aega jäänud: 2p 17h
Tehtud pakkumisi: 6

Põrandakütte torustiku ja kollektori paigaldus.

Asukoht: Harjumaa, Kurkse
Aega jäänud: 15p 17h
Tehtud pakkumisi: 4

Vanemad teated:

Vaata kõiki

Sellel veebilehel kasutatakse küpsiseid. Kasutamist jätkates nõustute küpsiste kasutamisega.

Sulge
 
Minu pakkumine

Reeglid

Pakkumise kirjelduse väli on mõeldud pakkumise detailsemaks lahti kirjutamiseks. Pikema teksti mugavaks sisestamiseks klikkige kasti paremal ülaservas oleval ikoonil.
Pakkumist tehes on keelatud postitada enda kontaktandmeid (nimi, telefon, aadress jne). Me jälgime ja analüüsime pakkumisi, et vältida pettuseid ja reeglite rikkumisi.
Rikkumise puhul kasutajakonto blokeeritakse.