+ Lisa oma töö      

Otsid ehitajat "Siseviimistlustööd" valdkonnast?

Parima pakkumise ja teostaja leidmiseks lisa oma töö.

Korteri siseviimistlustööd

ID 92348

697 vaatamist

Prindi

  • check Pakkumiste tegemine
    kuni 15.03.2024
  • check Võitja valik kuni
    22.03.2024
  • 3 Töö teostamine
    ja hinnang
Hanke lõpp: R, 15. märts, 2024
Maakond: Harjumaa
Linn: Tallinn
Tööde algus: E, 11. märts, 2024 (Soovituslik)
Tööde lõpp: P, 31. märts, 2024 (Soovituslik)
Ehitusmaterjalid: Töö tellija poolt
Soovin pakkumisi: Summa kogu projektile

Töö sisu

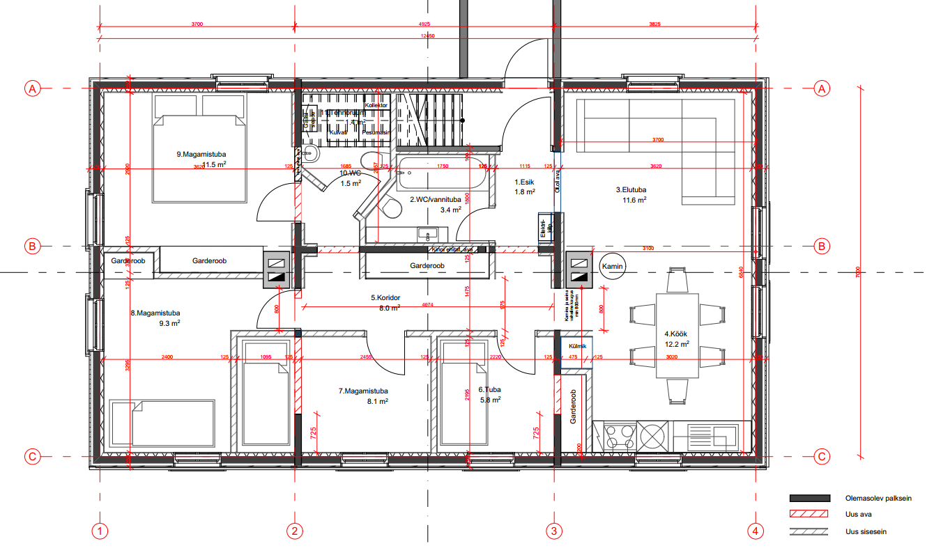
80 ruutmeetrise korteri lagede ja seinte siseviimistlustööd.(v.a. Vannituba) Kogu korteri ulatuses paigaldatud uued kipsplaadist laed ja seinad. (Mõned vaheseinad veel püstitamata)
Töö sisu:
Pahteldamine
Kruntimine
Värvimine

Ootame pakkumisi selles valdkonnas tegutsevatelt ettevõtetelt, kellel on antud valdkonnas kogemus ning teevad oma tööd korralikult.

Ootame pakkumisi kogu tehtavatele töödele koos materjaliga ning seda lõpp hinnaga. Erandina võib (aga ei pea) välja jätta värvi, arvestades erinevaid tootjaid, millest võib tuleneda suurem materjali hinna erinevus. Võib välja tuua ka eraldi materjali kui töö hinna.

Hankes osalejad võiksid välja tuua hinnangulise tööde teostamisele kuluva aja.
Ruumide suurused kajastuvad plaanil ning lagede kõrguseks on 2,5m.

Pildid, video ja failid

Hanke korraldaja: eraisik ID78667

Pakkumised

Pakkumisi kokku: 17

Ettevõte Summa Käibemaks Lisatud Vestlus
Kasutaja ikoon ID31957
Pakkuja profiil Väike nool paremale
7 515€ Sisaldab KM Sisaldab KM 08.03.2024 Vestlus (0)

Pakkumise kirjeldus:

Tere,

Pakkumine vastavalt hankes küsitule ning sisaldab tööd ja materjale. Lõppviimistlus värvid Caparol.

Lugupidamisega

Kasutaja ikoon ID52293
Pakkuja profiil Väike nool paremale
12 000€ Sisaldab KM Sisaldab KM 08.03.2024 Vestlus (0)

Pakkumise kirjeldus:

Tere
Juhul kui soovite meid valida hanke võitjaks peaks eelnevalt kokku leppima makse tingimustes
Tänud

Kasutaja ikoon ID67818
Pakkuja profiil Väike nool paremale
5 000€ Sisaldab KM Sisaldab KM 08.03.2024 Vestlus (0)
Kasutaja ikoon ID39222
Pakkuja profiil Väike nool paremale
4 200€ KM lisandub KM lisandub 08.03.2024 Vestlus (0)
Kasutaja ikoon ID77006
Pakkuja profiil Väike nool paremale
8 250€ Sisaldab KM Sisaldab KM 09.03.2024 Vestlus (0)

Pakkumise kirjeldus:

Tere, hinnapakkumine teie projektile. Hind on märgitud Teie poolt välja toodud vajalike tööde nimekirja juures (pahteldamine, värvimine, seinte ja lagede ehitus kipsplaadiga) Hind sisaldab kõiki selle töö materjale. Prügi äravedu objektilt. Töödele garantii 2 aastat Tänan.

Kasutaja ikoon ID69518
Pakkuja profiil Väike nool paremale
5 120,4€ KM lisandub KM lisandub 09.03.2024 Vestlus (0)

Pakkumise kirjeldus:

Tervist,

Võimalik tööde algus 14.03.
Töödele kuluv aeg umbkaudselt kolm nädalat.
Ettevõte spetsialiseerub maalri.- ja krohvimistöödele.

Hind sisaldab:
Lintide/nurkade paigaldamist, 2x pahteldust, kruntvärvi, paranduspahteldust, 2 kihti lõppvärvi.

Selle hinna sees on viimistlus seintele niiskuskindla värviga Nordsjö P6 (https://profe ... Rohkem

Kasutaja ikoon ID73705
Pakkuja profiil Väike nool paremale
8 430€ Sisaldab KM Sisaldab KM 09.03.2024 Vestlus (0)
Kasutaja ikoon ID75151
Pakkuja profiil Väike nool paremale
9 999€ Ei ole KMKR Ei ole KMKR 09.03.2024 Vestlus (0)

Pakkumise kirjeldus:

Teie poolt materjal, mis ütlen, mingi jamaga me tööd ei tee. Kui tuleb juurde nake, krohvimine jne, siis tuleb ka hind suurem.
Vabandust, et nii suhtun, kuid olen maalritööd teinud 20 a, ning mul maalrid, kes üle 30a teinud.
Mis klassi see töö peaks jääma?
Vb on lagi tasapinnast väljas jne.
Lugupidamisega
Mike

Kasutaja ikoon ID50594
Pakkuja profiil Väike nool paremale
9 000€ KM lisandub KM lisandub 09.03.2024 Vestlus (0)

Pakkumise kirjeldus:

Tere,

Pakkumine vastavalt hanke kirjeldusele. Hetkeline pakkumine arvestatud kõikide materjalidega 300m2 mahule.

Lgp. Taivo

Kasutaja ikoon ID44954
Pakkuja profiil Väike nool paremale
7 000€ KM lisandub KM lisandub 11.03.2024 Vestlus (0)

Pakkumise kirjeldus:

Tere!

Pakkumine tehtud ca. 300 m2= 23 eur/m2.
Vastavalt reaalsele mahule saab tasaarveldada.
Sisaldab kõiki materjale ja etappe kuni valmistulemuseni välja. Nagu meile antud tagasiside kinnitab garanteerime korraliku ning usaldusväärse teenuse.
Olemas pahtli- ja värviprits.
NB! Kui osutume hanke võitjaks palun sellest eelnevalt teada anda. Kõ ... Rohkem

Kasutaja ikoon ID73822
Pakkuja profiil Väike nool paremale
1 200€ KM lisandub KM lisandub 11.03.2024 Vestlus (0)

Pakkumise kirjeldus:

Pakkumine 80 rm lagede viimistlus. 2 x pahtel, 2 x peenpahtel, krunt, 2 x värv.

Kasutaja ikoon ID58844
Pakkuja profiil Väike nool paremale
6 910€ Ei ole KMKR Ei ole KMKR 13.03.2024 Vestlus (0)
Kasutaja ikoon ID63418
Pakkuja profiil Väike nool paremale
4 197€ KM lisandub KM lisandub 14.03.2024 Vestlus (0)

Pakkumise kirjeldus:

Tere.
Pakkumine on tehtud vastavalt hanke kirjeldusele.

Seinte (u 240m2) pahteldamine (lindid+nurgad+ lauspahtel), lihvimine, kruntimine, värvimine 2x
Lagede (80m2) pahteldamine (lindid+lauspahtel), lihvimine, kruntimine, värvimine 2x

Materjali kulu on orjendeeruvalt 1010€ (koos värvidega, ILMA TOONIMISETA.
Siro 2 lagedele ja Acrylate Matt sein ... Rohkem

Kasutaja ikoon ID65125
Pakkuja profiil Väike nool paremale
4 800€ Ikoon kell KM lisandub KM lisandub 14.03.2024 Vestlus (0)

Pakkumise kirjeldus:

Tere
Hinnapakkumine
Sisaldab Materjale
Vuugipahtel Kiilto J
Vuugi võrk
Lauspahteldus knauf fill and finish pahtliga
Kruntvärvi
Ning värvitoon kliendi valikul
Hinnapakkumine on koos materjalidega 16 ruut
Töö kvaliteetene ja kliendi rahulolu karanteeritud
Ruudud mõõdame kohapeal üle siis selgub täpsem hind.Tervitades Taavi

Kasutaja ikoon ID79882
Pakkuja profiil Väike nool paremale
4 500€ Ei ole KMKR Ei ole KMKR 15.03.2024 Vestlus (0)

Pakkumise kirjeldus:

Leping,kvaliteet,garantii 5aastat,ettemaksu ei soovi,km.ei lisandu.Värv Teie poolt

Kasutaja ikoon ID78911
Pakkuja profiil Väike nool paremale
7 000€ Ei ole KMKR Ei ole KMKR 15.03.2024 Vestlus (0)

Pakkumise kirjeldus:

Hinnapakkumine sisaldab tööd ja materjale.
Maksmine arvega, töödele garantii.
Põhivärvid hinna sees, soovi korral võib kasutada ka teie soovi järgi värve (hetkel arvestatud Bindo 7 seintele).

Kasutaja ikoon ID56408
Pakkuja profiil Väike nool paremale
500€ Ei ole KMKR Ei ole KMKR 15.03.2024 Vestlus (0)

Pakkumise kirjeldus:

Tere,

Pakkumine Teie hankele
Umbkaudne hind
16-. m2 tööraha

Lugupidamisega

Küsimused hanke korraldajale

Küsimus: private ID76974   09.03.2024 19:09
Tere, sooviks teada kas pahteldamine on vuugid ja kruvid või siis laospahtli soov?

Teavita reeglite rikkumisest

Korraldaja vastus:
Hanke korraldaja ei ole küsimusele veel vastanud

Küsimus: private ID55179   11.03.2024 20:02
Tere, millises linnaosas korter asub?

Teavita reeglite rikkumisest

Korraldaja vastus:
Hanke korraldaja ei ole küsimusele veel vastanud

Küsimus: private ID55179   11.03.2024 20:04
LIsaks küsimusele veel, et kas parkimine olemas maja juures?

Teavita reeglite rikkumisest

Korraldaja vastus:
Hanke korraldaja ei ole küsimusele veel vastanud

Lisa küsimus

Lisa küsimus

Minu pakkumine

Reeglid

Pakkumise kirjelduse väli on mõeldud pakkumise detailsemaks lahti kirjutamiseks. Pikema teksti mugavaks sisestamiseks klikkige kasti paremal ülaservas oleval ikoonil.
Pakkumist tehes on keelatud postitada enda kontaktandmeid (nimi, telefon, aadress jne). Me jälgime ja analüüsime pakkumisi, et vältida pettuseid ja reeglite rikkumisi.
Rikkumise puhul kasutajakonto blokeeritakse.

 

Teisi töid samas valdkonnas

Valdkonnas "Siseviimistlustööd" on 20 aktiivset tööd

Seinte pahteldus ja värvimine

Asukoht: Harjumaa, Türisalu
Aega jäänud: 2p 22h
Tehtud pakkumisi: 7

Korteri seinte ja lagede värvimine, osaline pahteldamine

Asukoht: Harjumaa, Tallinn
Aega jäänud: 22h 57 min
Tehtud pakkumisi: 4

Vanemad teated:

Vaata kõiki

Sellel veebilehel kasutatakse küpsiseid. Kasutamist jätkates nõustute küpsiste kasutamisega.

Sulge
 
Minu pakkumine

Reeglid

Pakkumise kirjelduse väli on mõeldud pakkumise detailsemaks lahti kirjutamiseks. Pikema teksti mugavaks sisestamiseks klikkige kasti paremal ülaservas oleval ikoonil.
Pakkumist tehes on keelatud postitada enda kontaktandmeid (nimi, telefon, aadress jne). Me jälgime ja analüüsime pakkumisi, et vältida pettuseid ja reeglite rikkumisi.
Rikkumise puhul kasutajakonto blokeeritakse.