+ Lisa oma töö      

Otsid ehitajat "Katusetööd" valdkonnast?

Parima pakkumise ja teostaja leidmiseks lisa oma töö.

Katusetööd ja korstnaotsade renoveerimine

ID 92174

663 vaatamist

Prindi

  • check Pakkumiste tegemine
    kuni 13.04.2024
  • check Võitja valik kuni
    20.04.2024
  • 3 Töö teostamine
    ja hinnang
Hanke lõpp: L, 13. aprill, 2024
Maakond: Harjumaa
Linn: Tallinn
Tööde lõpp: Kokkuleppel
Ehitusmaterjalid: Töö tellija poolt
Soovin pakkumisi: Summa kogu projektile

Töö sisu

Tere!

Korteriühistu otsib ehitajat järgmistele töödele:
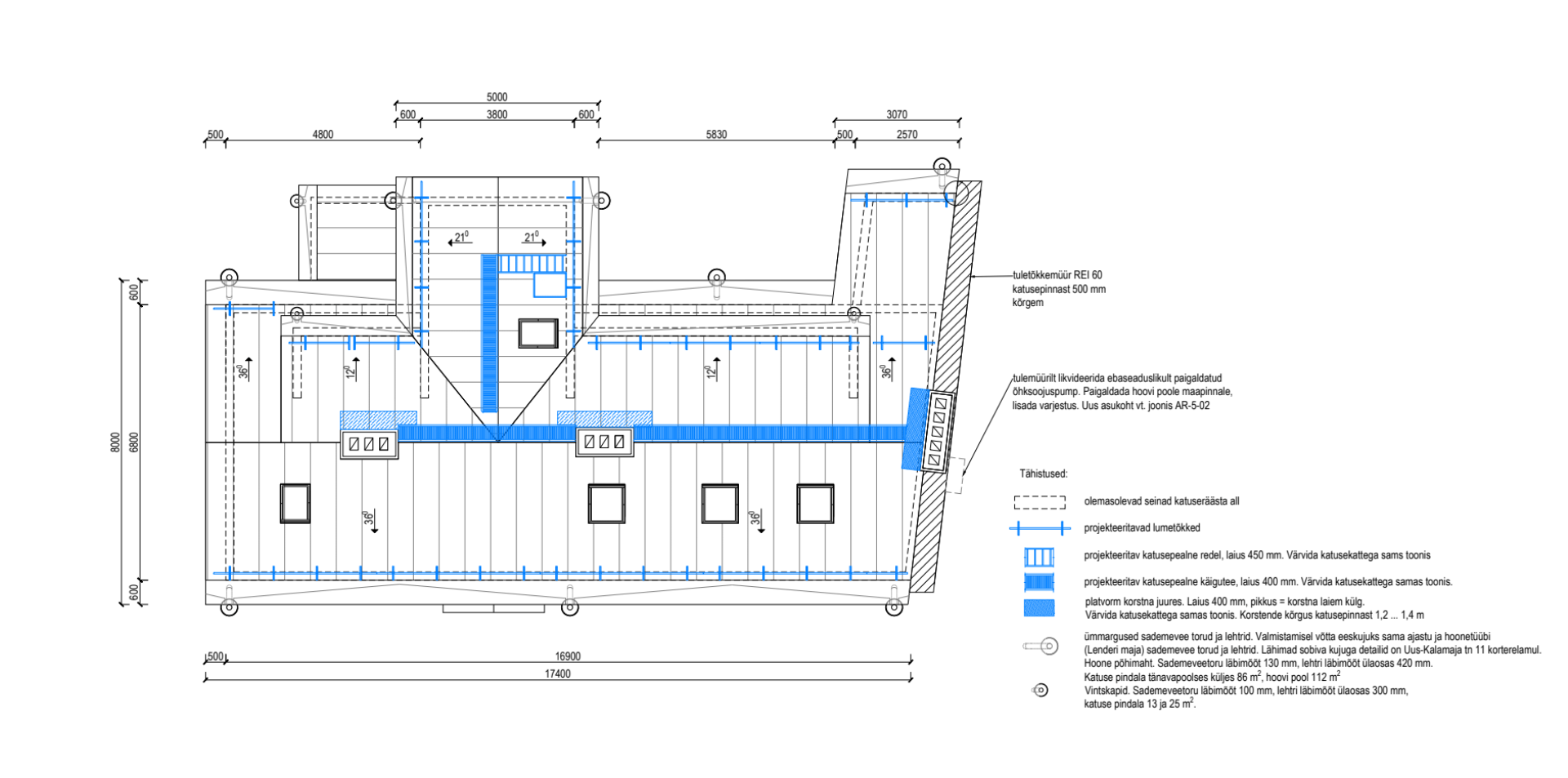
1) Korstnaotsade renoveerimine (3 tükki). Täpsemad juhised korstnapitsi joonisel.
2) 1 katuse parandustööd. Plekk on lahti tulnud korstna äärest (pildil märgitud oranžiga).
3) Katusele platvormid ja käiguteed. Täpsemad juhised katuse joonisel.

Kõik muud katuse tööd, mis on projektis mainitud hetkel ei tee.

Pildid, video ja failid

Hanke korraldaja: eraisik ID80204

Pakkumised

Pakkumisi kokku: 3

Ettevõte Summa Käibemaks Lisatud Vestlus
Kasutaja ikoon ID4386
Pakkuja profiil Väike nool paremale
14 000€ Sisaldab KM Sisaldab KM 16.03.2024 Vestlus (12)

Pakkumise kirjeldus:

Pakumine:
1. Tellingute ehitus katusele.
2. Olemas olevate korstnapitside lammutus 3tk.
3. Uuete pitsid 3tk ladumine kõrgusega katuset 1m korstnapitsi lõpetus nagu eskiisi all osa sirge. Lode punanetellis, puhasvuuk.
4. Korstnapitside krohvimine 3tk valgeks võrguga, betoonkrohv.
5. Korstnamütsid roostevaba materjalist 0,7mm kuju nagu joonisel (parem ... Rohkem

Kasutaja ikoon ID46583
Pakkuja profiil Väike nool paremale
1 000€ Ikoon kell KM lisandub KM lisandub 02.04.2024 Vestlus (5)

Pakkumise kirjeldus:

Teeme selle töö ära ca 5-6 päevaga, sõltub ilmast. Nagu aru saan kogu materjal ja tõstuk on töö tellija poolt. Kui kuulutate meid võitjateks, siis soovime hange.ee arve tasumist teie poolt või ettemaksuna. Kui küsimusi, meeleldi vastame. Ja kui hiljem tööd rohkem, siis juba kokkuleppel hind.

Kasutaja ikoon ID52293
Pakkuja profiil Väike nool paremale
1 500€ Sisaldab KM Sisaldab KM 13.04.2024 Vestlus (0)

Küsimused hanke korraldajale

Küsimus: private ID37493   18.03.2024 07:51
Tere, saan aru, et soovite ehitada pitsid 80 cm üle harja, paigaldada platvorm ja kinnitada plekid..
Materjal silikaat 250x85x120 mm.
Lgp.

Teavita reeglite rikkumisest

Korraldaja vastus: 31.03.2024 21:12

Tere!

Vabandust, et vastus on viibinud.
Sain vastuse, et jah materjal on silikaat antud suurusega. Hankes toimub muudatus, et loobume esialgu korstnapitside korrastamisest. Hankes soovime pakkumist:
- 1 katuse parandustööd. Plekk on lahti tulnud korstna äärest (pildil märgitud oranžiga).
- Katusele platvormid ja käiguteed. Täpsemad juhised katuse joonisel.

Teavita reeglite rikkumisest

Lisa küsimus

Lisa küsimus

Minu pakkumine

Reeglid

Pakkumise kirjelduse väli on mõeldud pakkumise detailsemaks lahti kirjutamiseks. Pikema teksti mugavaks sisestamiseks klikkige kasti paremal ülaservas oleval ikoonil.
Pakkumist tehes on keelatud postitada enda kontaktandmeid (nimi, telefon, aadress jne). Me jälgime ja analüüsime pakkumisi, et vältida pettuseid ja reeglite rikkumisi.
Rikkumise puhul kasutajakonto blokeeritakse.

 

Teisi töid samas valdkonnas

Valdkonnas "Katusetööd" on 9 aktiivset tööd

no-img Pilt puudub

Käidava katuse PVC 54m2

Asukoht: Harjumaa, Muraste
Aega jäänud: 4p 11h
Tehtud pakkumisi: 3

Garaaži katuse vahetamine

Asukoht: Harjumaa, Viimsi
Aega jäänud: 13p 11h
Tehtud pakkumisi: 2

Vanemad teated:

Vaata kõiki

Sellel veebilehel kasutatakse küpsiseid. Kasutamist jätkates nõustute küpsiste kasutamisega.

Sulge
 
Minu pakkumine

Reeglid

Pakkumise kirjelduse väli on mõeldud pakkumise detailsemaks lahti kirjutamiseks. Pikema teksti mugavaks sisestamiseks klikkige kasti paremal ülaservas oleval ikoonil.
Pakkumist tehes on keelatud postitada enda kontaktandmeid (nimi, telefon, aadress jne). Me jälgime ja analüüsime pakkumisi, et vältida pettuseid ja reeglite rikkumisi.
Rikkumise puhul kasutajakonto blokeeritakse.