+ Lisa oma töö      

Otsid ehitajat "Üldehitus" valdkonnast?

Parima pakkumise ja teostaja leidmiseks lisa oma töö.

Eramu ehitus

ID 91447

1685 vaatamist

Prindi

  • check Pakkumiste tegemine
    kuni 12.03.2024
  • check Võitja valik kuni
    19.03.2024
  • 3 Töö teostamine
    ja hinnang
Hanke lõpp: T, 12. märts, 2024
Maakond: Harjumaa
Linn: Tallinn
Tööde algus: L, 01. veebruar, 2025 (Soovituslik)
Tööde lõpp: E, 01. september, 2025 (Soovituslik)
Ehitusmaterjalid: Töö tegija poolt
Soovin pakkumisi: Summa kogu projektile

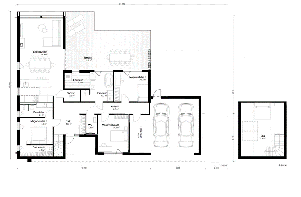
Töö sisu

Üksikelamu ehitamise hinnapakkumine:

Elamumaa 1012 m2
Ehitusalune pind 200 m2,
Suletud netopind 160-170m2 ( projekt koostamisel)
Hoone kõrgus 1,5-2 korrust,
Katusekalle 30-45 kraadi.
Liitumispunktid kinnistu piiril.

Pakkumus peaks sisaldama järgnevate tööde hinda:

Alused ja vundament
Fassaadielemendid ja katused
Torutööd
Elektritööd
Ventilatsioonitööd
Välis ja siseuksed + paigaldus
Kivikatus
Seinad + vaheseinad
küte + paigaldus (maasoojuspump)
Sisemised kipsitööd

Lisainfo:
● plaatvundament
● välisseinad kivi(fibo)
● siseseinad puitkarkassil
● viilkatuse materjal kivi, mis katab ka maja külgi, lamekatuse materjal rullmaterjal

Projekt on koostamisel, pildid on illustratiivsed, joonis küllaltki täpne
Küsimused igati teretulnud.

Pildid, video ja failid

Hanke korraldaja: eraisik ID36595

Pakkumised

Pakkumisi kokku: 10

Ettevõte Summa Käibemaks Lisatud Vestlus
Kasutaja ikoon ID79832
Pakkuja profiil Väike nool paremale
250 000€ KM lisandub KM lisandub 28.02.2024 Vestlus (1)

Pakkumise kirjeldus:

Tere

Hetkel pakkun 250000, parema pakkumise koostamisega On vaja teada kõik tellija soovid detailselt ja joonised. Põhi, eriosad, elektri. Projektidega tegeleme ka.

Lp

Kasutaja ikoon ID54411
Pakkuja profiil Väike nool paremale
280 000€ KM lisandub KM lisandub 28.02.2024 Vestlus (0)

Pakkumise kirjeldus:

Tere.Hetke pakkumine on 280000
Tetailsema pakkumise tegemiseks vajamme põhijooniseid ja detailjooniseid.
Lugupidamisega EM

Kasutaja ikoon ID70688
Pakkuja profiil Väike nool paremale
36 000€ KM lisandub KM lisandub 28.02.2024 Vestlus (0)

Pakkumise kirjeldus:

Tere!

Pakkumine projekijuhtimise meetodil ehitamiseks.

-kestvus 6 kuud 6000.-+km/ kuu
-allöövõtjate töö kordineerimine
-hinnas soojak
- kaheasmeline juhtimine-projekijuht,objekijuht
- selleks ajaks teeme MTR ehitusjuht tase 6 regisreeringu- see vajalik kasutusloa saamiseks

Osad üldehitustööd eeme omade meestega- eriosad ja aknad uksed va ... Rohkem

Kasutaja ikoon ID58894
Pakkuja profiil Väike nool paremale
240 000€ Ikoon kell KM lisandub KM lisandub 29.02.2024 Vestlus (0)

Pakkumise kirjeldus:

Tere päevast,

Minu hinnapakkumine on tehtud teiepoolt kirjeldatud projekti mahule ja ülesandele.

1. Elamute hind alates 1500-2200€ m2. Oleneb mida soovitakse võtmed kätte projekti ehk valge karp või must karp.
Erinevad detailid: kütte lahendused pump,põrandaküte kaminad,saunad, elektrilahendus, ventilatsioon, mugavus lahendused jne.
2.Tehtu ... Rohkem

Kasutaja ikoon ID79232
Pakkuja profiil Väike nool paremale
250 000€ Ikoon kell KM lisandub KM lisandub 03.03.2024 Vestlus (1)

Pakkumise kirjeldus:

M2 hinnad on 1800-1900 eur/m2+käibemaks, lihtsamate ja soodsamate materjalidega "võtmed kätte". Kuna antud juhul siseviimistlust ei ole küsitud siis m2 hind tuleb soodsam.

Tehtud töödele kehtib garantii 2 aastat.

Lp

Kasutaja ikoon ID8633
Pakkuja profiil Väike nool paremale
250 000€ KM lisandub KM lisandub 06.03.2024 Vestlus (0)

Pakkumise kirjeldus:

Täpsema hinna jaoks vaja teada palju asu.

Kasutaja ikoon ID39222
Pakkuja profiil Väike nool paremale
214 000€ KM lisandub KM lisandub 08.03.2024 Vestlus (0)
Kasutaja ikoon ID40585
Pakkuja profiil Väike nool paremale
232 000€ KM lisandub KM lisandub 12.03.2024 Vestlus (0)

Pakkumise kirjeldus:

Tere

Tegu on seniste praktikate baasilt koostatud esialgse pakkumisega. Peale kokkuleppe tegemist saame koostöös Tellijaga täpsustada detailse lähteülesande ja siis koos projekteerimis- ja eriosade partneritega juba nii üldehituse kui eriosade projekteerimise hinnad täpsustada. Eeldame, et see ei saa pakutud hinda muuta enam kui +/- 10...15 %. Hin ... Rohkem

Kasutaja ikoon ID31957
Pakkuja profiil Väike nool paremale
389 947€ KM lisandub KM lisandub 12.03.2024 Vestlus (0)

Pakkumise kirjeldus:

Tere,

Pakkumine olemasoleva info põhjal. Võtmed kätte kuni lõppviimistluseni

Lugupidamisega

Kasutaja ikoon ID52293
Pakkuja profiil Väike nool paremale
900 000€ Sisaldab KM Sisaldab KM 12.03.2024 Vestlus (0)

Pakkumise kirjeldus:

Tere
Juhul kui soovite meid valida hanke võitjaks peaks eelnevalt kokku leppima makse tingimustes
Tänud

Küsimused hanke korraldajale

Hanke korraldajale ei ole veel küsimusi esitatud.

Lisa küsimus

Lisa küsimus

Minu pakkumine

Reeglid

Pakkumise kirjelduse väli on mõeldud pakkumise detailsemaks lahti kirjutamiseks. Pikema teksti mugavaks sisestamiseks klikkige kasti paremal ülaservas oleval ikoonil.
Pakkumist tehes on keelatud postitada enda kontaktandmeid (nimi, telefon, aadress jne). Me jälgime ja analüüsime pakkumisi, et vältida pettuseid ja reeglite rikkumisi.
Rikkumise puhul kasutajakonto blokeeritakse.

 

Teisi töid samas valdkonnas

Valdkonnas "Üldehitus" on 27 aktiivset tööd

Terassi õlitamine, 13,7 ruutu

Asukoht: Harjumaa, Saue
Aega jäänud: 5p 13h
Tehtud pakkumisi: 5

Vanemad teated:

Vaata kõiki

Sellel veebilehel kasutatakse küpsiseid. Kasutamist jätkates nõustute küpsiste kasutamisega.

Sulge
 
Minu pakkumine

Reeglid

Pakkumise kirjelduse väli on mõeldud pakkumise detailsemaks lahti kirjutamiseks. Pikema teksti mugavaks sisestamiseks klikkige kasti paremal ülaservas oleval ikoonil.
Pakkumist tehes on keelatud postitada enda kontaktandmeid (nimi, telefon, aadress jne). Me jälgime ja analüüsime pakkumisi, et vältida pettuseid ja reeglite rikkumisi.
Rikkumise puhul kasutajakonto blokeeritakse.