+ Lisa oma töö      

Otsid ehitajat "Sanitaartehnilised tööd" valdkonnast?

Parima pakkumise ja teostaja leidmiseks lisa oma töö.

Eramaja küttesüsteemi ja veevarustuse-teemaline konsultatsioon, projekt ja väljaehitus - Aegviidu

ID 91187

650 vaatamist

Prindi

  • check Pakkumiste tegemine
    kuni 09.03.2024
  • check Võitja valik kuni
    16.03.2024
  • 3 Töö teostamine
    ja hinnang
Hanke lõpp: L, 9. märts, 2024
Maakond: Harjumaa
Muu asula: Aegviidu
Tööde algus: E, 25. märts, 2024 (Soovituslik)
Tööde lõpp: T, 30. aprill, 2024 (Soovituslik)
Ehitusmaterjalid: Töö tegija poolt
Soovin pakkumisi: Tüki- või ühikuhinda

Töö sisu

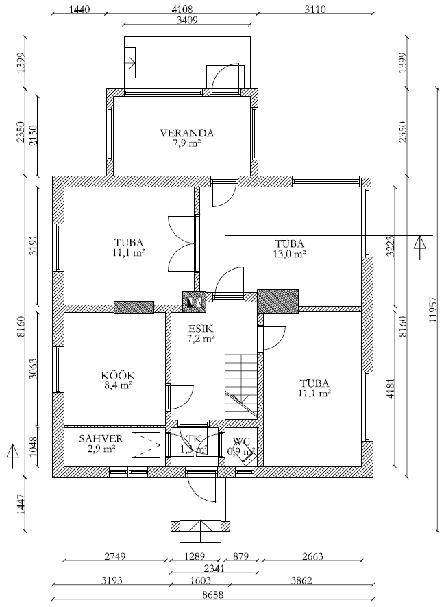
Aegviidus asuv ja hetkel renoveerimisjärgus maja vajab küttesüsteemi ja veevarustuse väljaehitamist. Eramu väike, kahekorruseline , elamispind ~120 m2, karbi välismõõtmed on 8,5x9 m, Majas tsentraalne veevarustus ja kanalisatsioon.
Reserv-soojusallikana tuleb kamin-ahi.

Konstruktsiooniks on puitkarkass, silikaatvoodriga väljast. Soojustuseks tuleb PUR-vaht, seintel 17,5 cm + seestpoolt güprokikarkassi vahele 5 cm villa, katusele 25 cm PUR-vahtu. Katus soojustatakse täiskõrgusel, k.a. ~1,6 m kõrge pööning - ehk maja peaks tulema soe, kuid küttesüsteem peab igal juhul tagama piisava küttevõimsuse ja tõsisema pakasega.
Maja renoveeritakse aastaringse elamise eesmärgil.

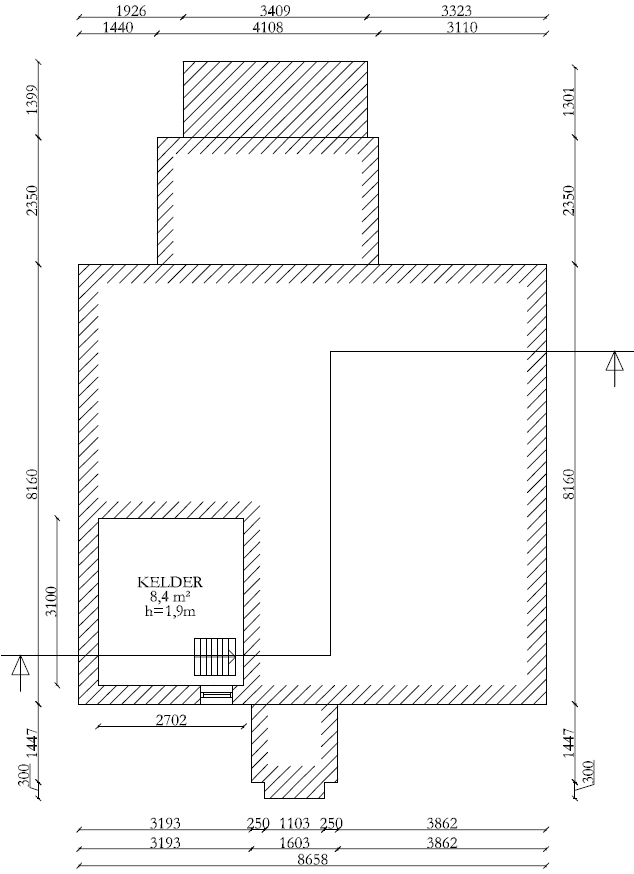
Põhi-kütteallikana plaanis õhk-vesi soojuspump. Küttesüsteemi agregaatide paigalduskohaks planeeritud väike, ~3x2,80x1,75 m mõõtmetega kelder (vt. joonis). Kui küttesüsteemi ehitaja on valmis hankima ka agregaadid, seda võiks arvestada hinnapakkumises ja lisainfos tuua nende hind eraldi välja: soojuspump, boiler ja kõik muud vajalikud seadmed.
Esimesel korrusel on plaanis põrandaküte, teisel ilmselt radiaatorid.
Vaja lisada ka torud hilisema veranda põrandakütte lisamiseks.

Hoone hetkeseis: lintvundament, seinad ja katus. Kogu soojustus, siseseinad ja põrandad eemaldatud. Põrandale paigaldatakse EPS, peale tuleb betoon - hetkel võib mõelda ja hiljem vedada mida ja kuhu vaja.

Projekti on vaja minimaalselt nõutud mahus hilisema kasutusloa saamiseks. Hetkel on väljastatud ehitusteatis, renoveerimisprojektis on küttesüsteem kirjeldatud väga üldiselt.

Sisse tuleb kindlasti arvestada esmane konsultatsioon, ilmselt väljasõiduga kohale (toon-viin), oma nägemuse tutvustamiseks ja kooskõlastamiseks. Enne santehniliste tööde teostamist peab teostama mõned üldehituslikud tööd, ning asjad ei tohi omavahel risti minna.
Kui pakkuja on valmis võtma enda peale ka põranda soojustust ja betoonitöid, lisage see pakkumisesse. Praeguse köögi põrandaks on betoon, ning sinna läheb peale 3 cm EPS ja betoonpõrand. Mujal 1. korruse ruumides ~20 cm liivapadi, 20 cm EPS-i ja siis betoonpõrand.

Kokkuvõtteks, hinnapakkumisel peavad olema:
1) 1. korruse küttesüsteemi väljaehitus (v.a. agregaadid) - põrandaküte betoonpõranda sees;
2) 2. korruse küttesüsteemi väljaehitus - ilmselt radiaatorid)
3) Veevarustuse ja kanalisatsiooni väljaehitus - 1. korrusel san.ruum, köök, väljavõte hoovi poolt; 2. korrus - vannituba (NB! Vannituba 2.k. plaanil kolib paremalt vasakule, ehk trepist üles tulles jääb otse!)
4) Kõik vajalikud materjalid ja kulutarvikud;
5) Võimalusel - kütteagregaadid: õhk-vesi soojuspump, 200 l boiler, tsirkulatsioonipumbad, veeuputuse alarm ja muu vajalik - NB! Keldri korrus 1,75 m!
6) Võimalusel - põrandate väljaehitus vastavalt eespool toodud kirjeldusele.

Maksab eraisik. Plaanis on küsida ka Kredexi väikeelamute energiatõhususe toetust, kui see ükskord lõpuks avatakse, seega pakkumine peab olema ametlik, pigem planeeritud nii, et "üllatusi" ja ootamatuid "maksusid" ei lisandu. Vajalikud lisatööd kooskõlastame eraldi.

Kui töö teostajal on ilusaid töid mida näidata, seda tasuks teha. Töö tellija kõige rohkem hindab kvaliteeti ja teostuse ilu ja on veendunud, et kõik õiged tehnilised lahendused on ka ilusad. Kvaliteetne peab töö olema igal juhul.

Pildid, video ja failid

Hanke korraldaja: eraisik ID52245

Pakkumised

Pakkumisi kokku: 1

Ettevõte Summa Käibemaks Lisatud Vestlus
Kasutaja ikoon ID53401
Pakkuja profiil Väike nool paremale
450€ KM lisandub KM lisandub 03.03.2024 Vestlus (0)

Pakkumise kirjeldus:

Tere
Lisan teie poolt kirjeldatud punktidele numbrid taha., kuid märgin siia juurde et tegu siiski suht pinnapealsete numbritega ja täpsema hinna saaks läbi rääkida peale objektiga tutvumist.
Märgin juurde , et võimalik tulla tutvuma hetkel meie poolt kapitaalselt renoveeritava eramuga, kus kõik teie poolt soovitud tööd, vägagi edukalt soorita ... Rohkem

Küsimused hanke korraldajale

Küsimus: private ID64993   25.02.2024 11:32
Tere meie firma tegeled ehitusega ja endal on PUR masin . kahjuks nendest joonistest on väga kehva välja arutada mahu aga umbes number oleks koos KM 13762 eur. Se on mõlema korrused valis seinad ja katuse kaldad.

Meie veel soovitame teile teha mõlematel korrustel soojad põrandad Kasutada Verme ja Warmset infrapunane kütted
Energia kuulu talvel tuleks teie maja kütte kohta 500KW. 25 aastad tehase garanti kerge holists ja vip tasemel juhtimine igas Ruumis. Pole vaja radiaatoreid , kollektoreid, pumba jaoks ruumi ja muid kraane tooruste vedamist ja tsirkulatsioon pumpa Meie pakutav süsteemi juba hinna ses on ka DEPRON alus matt laminadi alla 6mm paks mis on sama soe kui sein 375mm Hind koos paigaldusega 6208 euro km-ga. seal in programmeeritavad 9 termostaadi kui tahate WIFI-ga siis lisandub 450 euro.
Elektri kaabeldus kui tuleb vedada eraldi kilbist eraldi umbes 1000 euro se tähendab täesti ise seisvad sonid.
Lugupidamisega Juri

Teavita reeglite rikkumisest

Korraldaja vastus: 25.02.2024 15:57

Tere!

Soojustamine PUR vahuga on juba kokku lepitud. Sügisel enne külma tulekut ei jõudnud ära teha, nüüd kevadel tehakse ära.

Infrapuna-kütteallikad ei paku huvi oluliselt madalama võrreldes soojuspumbaga kasuteguri tõttu.

Aitäh!

Teavita reeglite rikkumisest

Lisa küsimus

Lisa küsimus

Minu pakkumine

Reeglid

Pakkumise kirjelduse väli on mõeldud pakkumise detailsemaks lahti kirjutamiseks. Pikema teksti mugavaks sisestamiseks klikkige kasti paremal ülaservas oleval ikoonil.
Pakkumist tehes on keelatud postitada enda kontaktandmeid (nimi, telefon, aadress jne). Me jälgime ja analüüsime pakkumisi, et vältida pettuseid ja reeglite rikkumisi.
Rikkumise puhul kasutajakonto blokeeritakse.

 

Teisi töid samas valdkonnas

Valdkonnas "Sanitaartehnilised tööd" on 2 aktiivset tööd

Vee- ja kanalisatsioonipüstikute vahetus

Asukoht: Harjumaa, Tallinn
Aega jäänud: 25p 8h
Tehtud pakkumisi: 3

Vannitoa dušinurga paigaldus ja veevõtu torude ümberehitus uue dušinurga ühendamiseks

Asukoht: Harjumaa, Salmistu
Aega jäänud: 7p 8h
Tehtud pakkumisi: 0

Vanemad teated:

Vaata kõiki

Sellel veebilehel kasutatakse küpsiseid. Kasutamist jätkates nõustute küpsiste kasutamisega.

Sulge
 
Minu pakkumine

Reeglid

Pakkumise kirjelduse väli on mõeldud pakkumise detailsemaks lahti kirjutamiseks. Pikema teksti mugavaks sisestamiseks klikkige kasti paremal ülaservas oleval ikoonil.
Pakkumist tehes on keelatud postitada enda kontaktandmeid (nimi, telefon, aadress jne). Me jälgime ja analüüsime pakkumisi, et vältida pettuseid ja reeglite rikkumisi.
Rikkumise puhul kasutajakonto blokeeritakse.