+ Lisa oma töö      

Otsid ehitajat "Vundamenditööd" valdkonnast?

Parima pakkumise ja teostaja leidmiseks lisa oma töö.

Vundamendi ehitus

ID 90775

1025 vaatamist

Prindi

  • check Pakkumiste tegemine
    kuni 22.02.2024
  • check Võitja valik kuni
    29.02.2024
  • 3 Töö teostamine
    ja hinnang
Hanke lõpp: N, 22. veebruar, 2024
Maakond: Harjumaa
Muu asula: Hüüru
Tööde algus: R, 01. märts, 2024 (Soovituslik)
Tööde lõpp: R, 31. mai, 2024 (Soovituslik)
Ehitusmaterjalid: Töö tegija poolt
Soovin pakkumisi: Summa kogu projektile

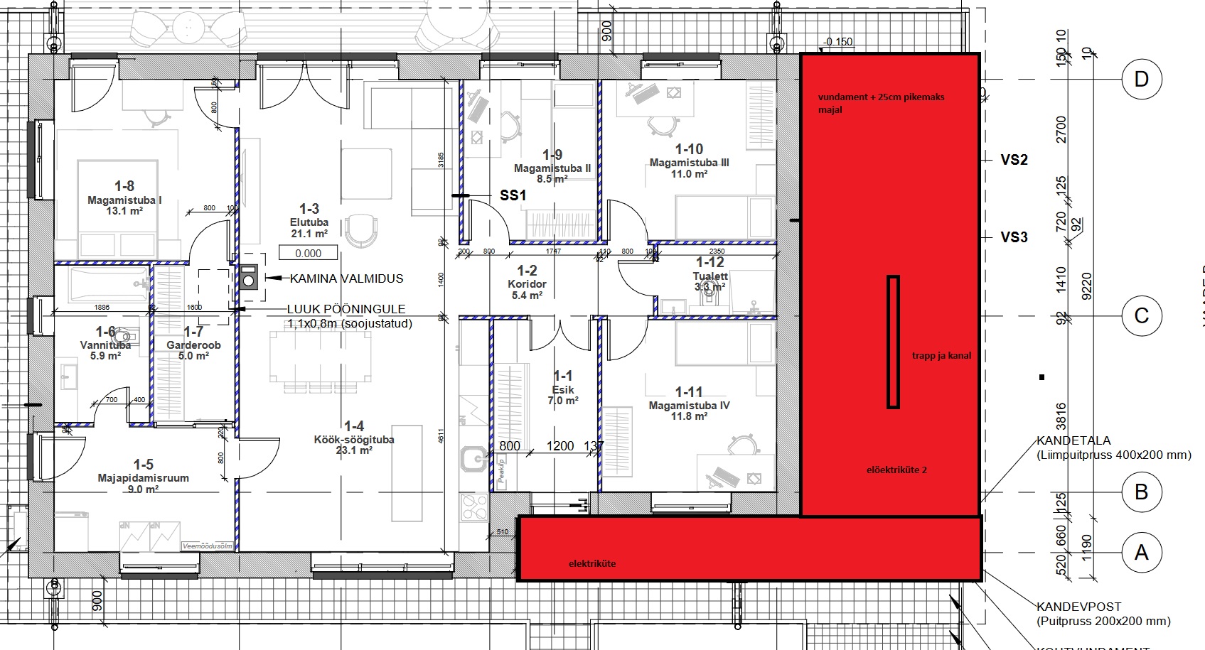
Töö sisu

195m2 suurune plaat vundment koos kommunikatsioonidega.

Töö peab sisaldama;
Mullla tõõd
Hoone maha märkimine
Hoone aluse täitmine kruusa, killu, liivaga
Hoone alused komunikatsioonid vesi, kanal
L ploki,penoplasti paigaldus kandvad seinad eps 200,põrand eps 100 300 mm külmakerge eps 120 100 mm
Armeering kandvad seinad 12 mm rangid 6 mm samm 300 mm võrk 8 mm 150x150 mm
Põranda kütte toru 20 mm
Betoneerimine c 25/30, lihvimine

Pildid, video ja failid

Hanke korraldaja: eraisik ID77718

Pakkumised

Pakkumisi kokku: 12

Ettevõte Summa Käibemaks Lisatud Vestlus
Kasutaja ikoon ID52293
Pakkuja profiil Väike nool paremale
20 000€ Sisaldab KM Sisaldab KM 19.02.2024 Vestlus (2)

Pakkumise kirjeldus:

Tere
Juhul kui soovite meid valida hanke võitjaks peaks eelnevalt kokku leppima makse tingimustes
Tänud

Kasutaja ikoon ID53401
Pakkuja profiil Väike nool paremale
35 500€ KM lisandub KM lisandub 20.02.2024 Vestlus (0)

Pakkumise kirjeldus:

Tere.
Pakkumine sisaldab

Hoone mahamärkimine
Pinnase koorimine (pinnas jääb objektile).
Vee -, kanalistasiooni- ja elektritrasside valmiduse ehitus
Geokanga paigaldus
Aluspinna ehitus (killustik/liiv)
L plokkide paigaldus
vundamendisisese kanalistasiooni ehitus. (110+50mm)
EPS soojustuse paigaldus (EPS 100- 300mm kandva seina alla EPS200)
Vun ... Rohkem

Kasutaja ikoon ID33806
Pakkuja profiil Väike nool paremale
47 698€ KM lisandub KM lisandub 20.02.2024 Vestlus (0)

Pakkumise kirjeldus:

Tere hinnapakkumine küsitule:
47698 eurot + km
Hinnapakkumine sisaldab soovitud töid ning vajalikke materjale. Lisaks ka hange.ee teenustasu (5%).

Hinnapakkumine võib muutuda kui on selge mis pinnasega tegu.

Tervisi

Kasutaja ikoon ID50329
Pakkuja profiil Väike nool paremale
33 500€ KM lisandub KM lisandub 20.02.2024 Vestlus (0)
Kasutaja ikoon ID68545
Pakkuja profiil Väike nool paremale
29 250€ KM lisandub KM lisandub 20.02.2024 Vestlus (0)

Pakkumise kirjeldus:

pakkumises sisaldub kõik materjalid ja tööraha.
ettemaks materjalide hankimiseks mille tingimused lepime eelnevalt kokku.
Parimat.
Siim.

Kasutaja ikoon ID77435
Pakkuja profiil Väike nool paremale
46 000€ KM lisandub KM lisandub 20.02.2024 Vestlus (0)
Kasutaja ikoon ID61081
Pakkuja profiil Väike nool paremale
21 500€ KM lisandub KM lisandub 21.02.2024 Vestlus (0)

Pakkumise kirjeldus:

Tere.

Hinnapakkumine antud tööle vastavalt töösisu kirjeldusele.
Kanali, vee ja Elektri viin liitumiskohani.

Kasutaja ikoon ID59528
Pakkuja profiil Väike nool paremale
30 000€ KM lisandub KM lisandub 22.02.2024 Vestlus (0)

Pakkumise kirjeldus:

Tere,

Pakkumine tehtud vastavalt Hankes kirjeldatud töödele. Täpsema hinnakalkulatsiooni saame saata vestluses.
Meie profiili alt näete meie poolt tehtud töid ja klientide poolt antud hinnanguid
Ettevōttel olemas MTR registreering!

Parimat,

Erik

Kasutaja ikoon ID8633
Pakkuja profiil Väike nool paremale
31 500€ KM lisandub KM lisandub 22.02.2024 Vestlus (0)
Kasutaja ikoon ID8356
Pakkuja profiil Väike nool paremale
33 800€ KM lisandub KM lisandub 22.02.2024 Vestlus (0)

Pakkumise kirjeldus:

Hinnas elamu vundamendi ehitamine koos põrandaaluste torustike ja veetrassi ning kanalisatsioonitrassi ehitamisega.

Kasutaja ikoon ID79175
Pakkuja profiil Väike nool paremale
28 500€ KM lisandub KM lisandub 22.02.2024 Vestlus (0)

Pakkumise kirjeldus:

Pakkumine vastavalt kirjeldusele

Kasutaja ikoon ID50594
Pakkuja profiil Väike nool paremale
52 800€ KM lisandub KM lisandub 22.02.2024 Vestlus (0)

Pakkumise kirjeldus:

Tere,

Esialgne pakkumine vastavalt hanke kirjeldusele.

Lgp. Taivo

Küsimused hanke korraldajale

Küsimus: private ID9125   20.02.2024 06:51
Tervist. Kas oleks võimalik lisada asendiplaan ja seletuskiri?

Teavita reeglite rikkumisest

Korraldaja vastus: 20.02.2024 11:01

Tere
Asendiplaan lisatud. Seletuskirjas vundamendi kohta ei leidnud infot.

Teavita reeglite rikkumisest

Küsimus: private ID74140   20.02.2024 07:20
Tere.

Kas võib pakkuda ainult kommunikatsioone? Küte,vesi,kanal.

Ette tänades

Teavita reeglite rikkumisest

Korraldaja vastus: 20.02.2024 14:39

Tere

Sooviks täis lahendust ühelt pakkujalt.

Parimat

Mairo

Teavita reeglite rikkumisest

Lisa küsimus

Lisa küsimus

Minu pakkumine

Reeglid

Pakkumise kirjelduse väli on mõeldud pakkumise detailsemaks lahti kirjutamiseks. Pikema teksti mugavaks sisestamiseks klikkige kasti paremal ülaservas oleval ikoonil.
Pakkumist tehes on keelatud postitada enda kontaktandmeid (nimi, telefon, aadress jne). Me jälgime ja analüüsime pakkumisi, et vältida pettuseid ja reeglite rikkumisi.
Rikkumise puhul kasutajakonto blokeeritakse.

 

Vanemad teated:

Vaata kõiki

Sellel veebilehel kasutatakse küpsiseid. Kasutamist jätkates nõustute küpsiste kasutamisega.

Sulge
 
Minu pakkumine

Reeglid

Pakkumise kirjelduse väli on mõeldud pakkumise detailsemaks lahti kirjutamiseks. Pikema teksti mugavaks sisestamiseks klikkige kasti paremal ülaservas oleval ikoonil.
Pakkumist tehes on keelatud postitada enda kontaktandmeid (nimi, telefon, aadress jne). Me jälgime ja analüüsime pakkumisi, et vältida pettuseid ja reeglite rikkumisi.
Rikkumise puhul kasutajakonto blokeeritakse.