+ Lisa oma töö      

Otsid ehitajat "Üldehitus" valdkonnast?

Parima pakkumise ja teostaja leidmiseks lisa oma töö.

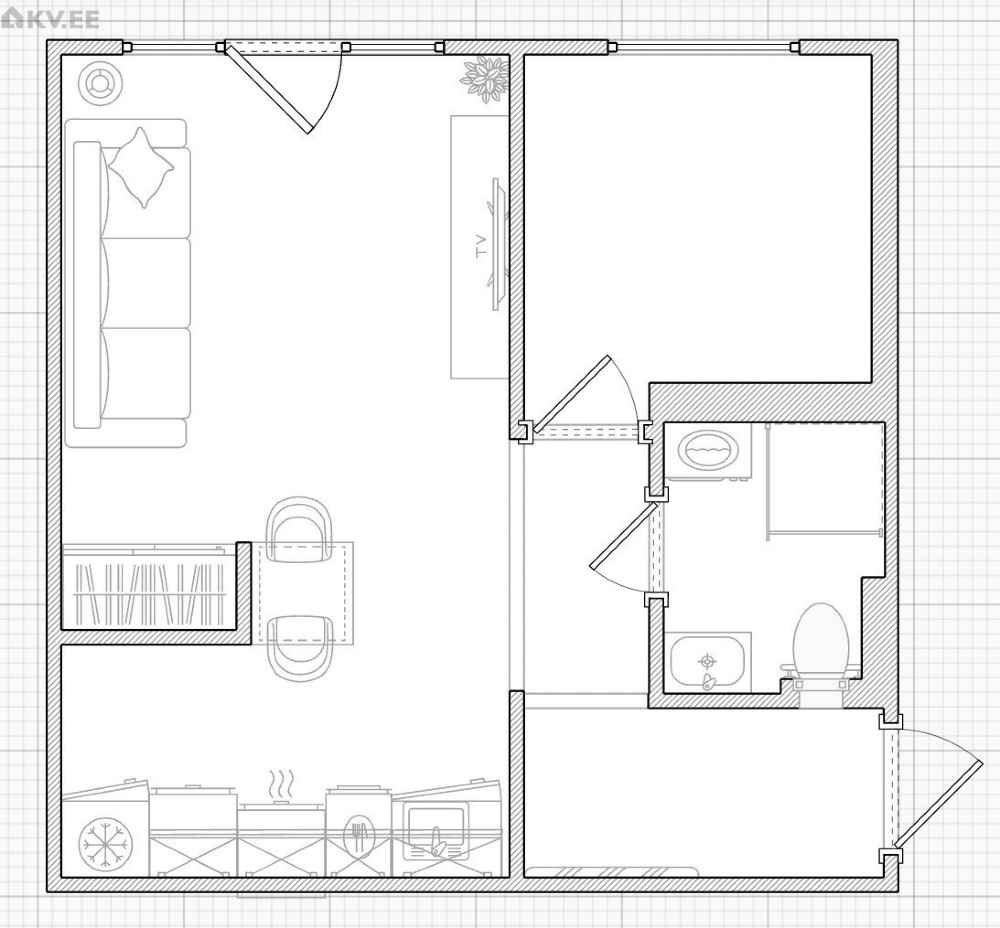
1-toaline korter 2-toaliseks

ID 90751

744 vaatamist

Prindi

  • check Pakkumiste tegemine
    kuni 22.02.2024
  • check Võitja valik kuni
    29.02.2024
  • 3 Töö teostamine
    ja hinnang
Hanke lõpp: N, 22. veebruar, 2024
Maakond: Harjumaa
Linn: Tallinn
Tööde algus: P, 31. märts, 2024 (Soovituslik)
Tööde lõpp: R, 31. mai, 2024 (Soovituslik)
Ehitusmaterjalid: Töö tellija poolt
Soovin pakkumisi: Summa kogu projektile

Töö sisu

Plaan on Mustamäel asuvas paneelmajas 30 ruutmeetrine ühetoaline korter ehitada ümber kahetoaliseks. Ümberhitusega tekiks korteri praegusesse kööki uus pisike magamistuba ning korteri suur tuba saab ümber tehtud köök-elutoaks.

Seega on korteris vaja teha:

- lammutustöid (mõningal määral)
- tuua torustik ja ventilatsioon köögist suurde tuppa
- tuua elekter uute valgusallikate jaoks kindlatesse kohtadesse
- Pahteldada ja värvida seinad ning lagi kohtades, kus on lammutusest tulenevalt seda tarvis teha.
- vahetada korteris uksed; (välis, Wc)

LISAKS - vannituba täielikult renoveerida. Olemasolevad plaadid eemaldada ning plaatida põrand ja seinad.

Tarvis on, et korteril oleks ka projekt, mis kajastaks neid töid. Samuti peaks töödel olema garantii.

Palun hinnapakkumisi, mis kajastab nende tööde ligikaudset maksumust koos materjalikuluga.

Korter asub 2. korrusel.

Tööde alugusaeg on muudetav.

Pildid, video ja failid

Hanke korraldaja: eraisik ID79876

Pakkumised

Pakkumisi kokku: 5

Ettevõte Summa Käibemaks Lisatud Vestlus
Kasutaja ikoon ID77006
Pakkuja profiil Väike nool paremale
6 600€ Sisaldab KM Sisaldab KM 20.02.2024 Vestlus (4)

Pakkumise kirjeldus:

Tere päevast. Hind kujuneb lähtuvalt tööde mahust, materjalide ostmisest, nende obekti viimisest ja jäätmeveost. Saame alustada lähiajal. Kui teil on lisaküsimusi, ärge kartke küsida. Aitäh

Kasutaja ikoon ID70688
Pakkuja profiil Väike nool paremale
10 500€ Ikoon kell KM lisandub KM lisandub 20.02.2024 Vestlus (0)

Pakkumise kirjeldus:

Tere!

Pakkumine:

-vesi elutuppa
-kanal elutuppa
Kokku 3500.-+km
-vaniitoa lammutus
-uued plaadid
-jäämete utiil
Kokku: 7000.-

Kokku: 10500.-

Lisandub:

-maalriööd 23,7+km/m2
-elekritööd 1500.-+km
- põrand ?????
-uste vahetus 290.-+km/tk ilma ... Rohkem

Kasutaja ikoon ID68615
Pakkuja profiil Väike nool paremale
350€ Ei ole KMKR Ei ole KMKR 22.02.2024 Vestlus (0)

Pakkumise kirjeldus:

Hinnapakkumine ainult projektile.
Hinna sees on:
1) korteri rekonstrueerimise projekt: tiitelleht, sisukord, seletuskiri, joonised (asukohaskeem, plaanid, vajalikud konstruktiivsed lõiked, sõlmed)
2) Ehitisregistrisse kandmine ja sealt tulenevad toimingud kuni ehitusteatise kooskõlastamist koos märkuste lahendamisega.


Parimat!
Diplomeeritud ehit ... Rohkem

Kasutaja ikoon ID79175
Pakkuja profiil Väike nool paremale
9 500€ KM lisandub KM lisandub 22.02.2024 Vestlus (0)

Pakkumise kirjeldus:

Pakkumine vastavalt kirjeldusele

Kasutaja ikoon ID50594
Pakkuja profiil Väike nool paremale
16 800€ KM lisandub KM lisandub 22.02.2024 Vestlus (0)

Pakkumise kirjeldus:

Tere,

Esialgne pakkumine. Kui objektiga lähemalt tutvutud. Saab koostada täpse pakkumise.

Lgp. Taivo

Küsimused hanke korraldajale

Küsimus: private ID47452   19.02.2024 18:47
Tere. Alustuseks uurin kas KÜ poolt on luba saadud. Plaani järgi tundub päris mahukas ettevõtmine olevat mitte vee pealevooluga vaid rohkem äravooluga. Äravool köögist koridori põrandat päris palju tõstab, kas sellega olete arvestanud.

Teavita reeglite rikkumisest

Korraldaja vastus:
Hanke korraldaja ei ole küsimusele veel vastanud

Lisa küsimus

Lisa küsimus

Minu pakkumine

Reeglid

Pakkumise kirjelduse väli on mõeldud pakkumise detailsemaks lahti kirjutamiseks. Pikema teksti mugavaks sisestamiseks klikkige kasti paremal ülaservas oleval ikoonil.
Pakkumist tehes on keelatud postitada enda kontaktandmeid (nimi, telefon, aadress jne). Me jälgime ja analüüsime pakkumisi, et vältida pettuseid ja reeglite rikkumisi.
Rikkumise puhul kasutajakonto blokeeritakse.

 

Teisi töid samas valdkonnas

Valdkonnas "Üldehitus" on 31 aktiivset tööd

Maja värvimine

Asukoht: Harjumaa, Saue
Aega jäänud: 2p 1h
Tehtud pakkumisi: 6

Terassi õlitamine, 13,7 ruutu

Asukoht: Harjumaa, Saue
Aega jäänud: 5p 1h
Tehtud pakkumisi: 5

Vanemad teated:

Vaata kõiki

Sellel veebilehel kasutatakse küpsiseid. Kasutamist jätkates nõustute küpsiste kasutamisega.

Sulge
 
Minu pakkumine

Reeglid

Pakkumise kirjelduse väli on mõeldud pakkumise detailsemaks lahti kirjutamiseks. Pikema teksti mugavaks sisestamiseks klikkige kasti paremal ülaservas oleval ikoonil.
Pakkumist tehes on keelatud postitada enda kontaktandmeid (nimi, telefon, aadress jne). Me jälgime ja analüüsime pakkumisi, et vältida pettuseid ja reeglite rikkumisi.
Rikkumise puhul kasutajakonto blokeeritakse.