+ Lisa oma töö      

Otsid ehitajat "Üldehitus" valdkonnast?

Parima pakkumise ja teostaja leidmiseks lisa oma töö.

Hange on lõppenud!

Võitjaks osutus kasutaja ID 76714

Eramu ehitusprojekt

ID 90734

748 vaatamist

Prindi

  • check Pakkumiste tegemine
    kuni 04.03.2024
  • check Võitja valik kuni
    11.03.2024
  • 3 Töö teostamine
    ja hinnang
Hanke lõpp: E, 4. märts, 2024
Maakond: Harjumaa
Linn: Tallinn
Tööde algus: N, 14. märts, 2024 (Soovituslik)
Tööde lõpp: L, 01. juuni, 2024 (Soovituslik)
Ehitusmaterjalid: Töö tellija poolt
Soovin pakkumisi: Summa kogu projektile

Töö sisu

EELPROJEKT
Pakutava töö sisu
Arhidektuurne eelprojekt.
Asendiplaan eelprojekti mahus
Konstruktiivne osa lahendatud seletuskirja ehitusloa väljastamiseks vajavas mahus.
Vee-ja kanalisatsiooni põhiprojekt.
Elektri välisvõrgud põhiprojekti mahus.
Teed ja platsid eelprojekti mahus.
Energiamärgis.
Radooni uuring.
Dendroloogia.
Geodeesia.

PÕHIPROJEKT
Pakutava töö sisu
Arhidektuurne põhiprojekt
Asendiplaan eelprojekti mahus
Konstruktiivne osa põhiprojekti mahus.
Hoone sisene küte, ventilatsioon ja jahutus põhiprojekti mahus.
Soojusvarustus (kütte allikas) maaküte/õhk-vesiküte põhiprojekti mahus.
Hoone sisene vee ja kanalisatsiooni põhiprojekt.
Hoone sisene elektriprojekt, ei sisalda tarkmaja lahendust
Teed ja platsid põhiprojekt.
Maastiku arhitektuur põhiprojekti mahus.
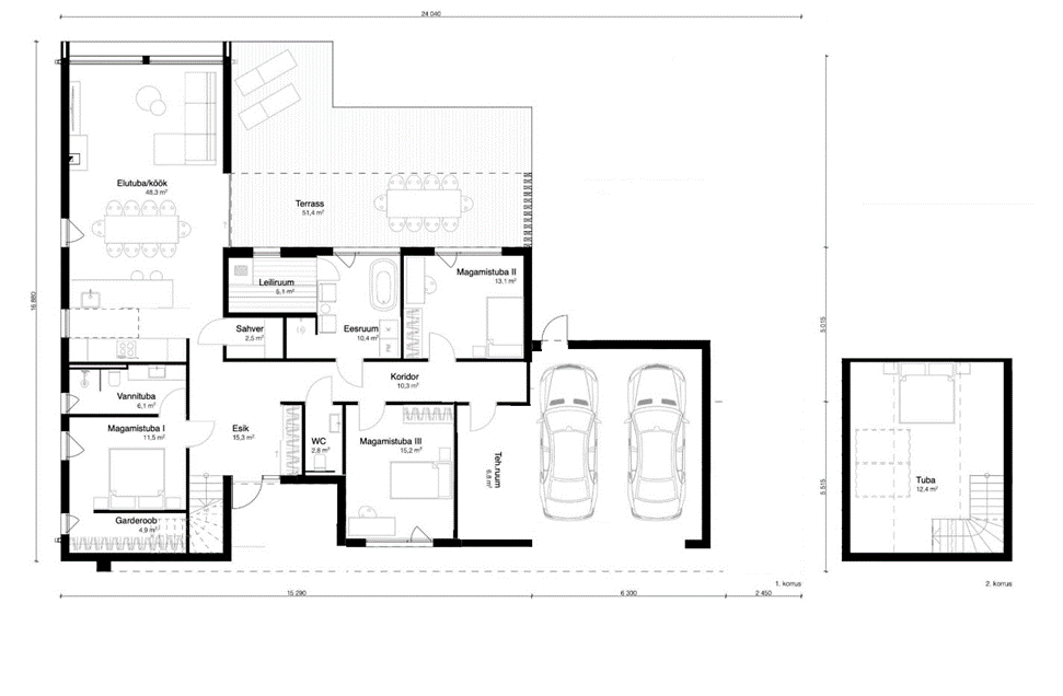
Eramu suurus ca 200m2

Pildid, video ja failid

Hanke korraldaja: eraisik ID36595

Pakkumised

Pakkumisi kokku: 1

Ettevõte Summa Käibemaks Lisatud Vestlus
Kasutaja ikoon ID76714
Pakkuja profiil Väike nool paremale
28 500€ KM lisandub KM lisandub 26.02.2024 Vestlus (0)

Pakkumise kirjeldus:

Arvestatud ühekordse hoone mahuga vastavalt Tellija poolsele kirjeldusele ja krundi asukohale. (Eskiisplaan ja katastri nr).

Tööde teostamine vastavalt lepingule. Tööde graafik lepitakse eraldi kokku.
Ehitusloa taotlemine ~juuni 2024, põhiprojekt august 2024.
Akteerimine vastavalt teostatud töödele sh:
25% ettemaks enne tööde algust,
25% eel ... Rohkem

Küsimused hanke korraldajale

Küsimus: private ID76714   20.02.2024 15:57
Kolm kuud kõikide projektide jaoks on veidi optimistlik.
Kas sobib juuni 2024 eelprojekt valmis ehitusloa taotlemiseks? Põhiprojekti tähtaeg vastavalt lepingutele, kuna seonduvaid osasid omavahel on palju siis realistlik on suve teiseks pooleks see valmis.
Kas ehitusloa taotlemine peab olema arvestatud pakkumuses või ei ole tarvis?

Kas Tellijal on ehk arusaam ja visioon hoone lähteülesandest - mahud, arhitektuurne ilme, ruumiplaneering, korruselisus?
Kas on olemas krunt, mis on selle katastri nr? Kas on olemas projekteerimistingimused ja või detailplaneering?
Mis põhjusel on dendroloogia vajalik?

Teavita reeglite rikkumisest

Korraldaja vastus: 21.02.2024 09:30

Tõepoolest, pisut optimistlikult sai tööde teostamine märgitud, ehk projekti võib teostada suve teises pooles. Ehitusloa taotlemine peab olema arvestadud pakkumises.
Tellijal on arusaam ja visioon hoone lähteülesandest. Krunt on valitud(78406:611:0180), detailplaneeringut menetletud pole. Dendroloogiline hinnang on tavaliselt vajalik detailplaneeringute või ehitusprojektide koostamise koosseisus.

Teavita reeglite rikkumisest

Küsimus: private ID78618   21.02.2024 19:55
Tere.
Täpsustage palun katastritunnust. Avaldatud tunnusega nt ehr-ist ei leia.
Kas projekteerimistingimused on olemas või tuleb taotleda?

Teavita reeglite rikkumisest

Korraldaja vastus: 22.02.2024 11:03

Tere,

Vabandan näpuka pärast, kadastritunnus on siiski 78406:611:5180. Lisaks täpsustan juurde, et detailplaneering on küll tehtud aga ilmselt aegunud ja lisaks on vaja taotleda uued projekteerimistingimused.

Teavita reeglite rikkumisest

Lisa küsimus

Lisa küsimus

Minu pakkumine

Reeglid

Pakkumise kirjelduse väli on mõeldud pakkumise detailsemaks lahti kirjutamiseks. Pikema teksti mugavaks sisestamiseks klikkige kasti paremal ülaservas oleval ikoonil.
Pakkumist tehes on keelatud postitada enda kontaktandmeid (nimi, telefon, aadress jne). Me jälgime ja analüüsime pakkumisi, et vältida pettuseid ja reeglite rikkumisi.
Rikkumise puhul kasutajakonto blokeeritakse.

 

Teisi töid samas valdkonnas

Valdkonnas "Üldehitus" on 41 aktiivset tööd

Maja värvimine

Asukoht: Harjumaa, Saue
Aega jäänud: 1h 45 min
Tehtud pakkumisi: 19

Vaja võtta üles 11jm 40cm laiuselt teekivi. Kaevata 40cm sügavune kraav elektrikaabli paigalduseks.

Asukoht: Harjumaa, Tallinn
Aega jäänud: 1h 45 min
Tehtud pakkumisi: 7

Vanemad teated:

Vaata kõiki

Sellel veebilehel kasutatakse küpsiseid. Kasutamist jätkates nõustute küpsiste kasutamisega.

Sulge
 
Minu pakkumine

Reeglid

Pakkumise kirjelduse väli on mõeldud pakkumise detailsemaks lahti kirjutamiseks. Pikema teksti mugavaks sisestamiseks klikkige kasti paremal ülaservas oleval ikoonil.
Pakkumist tehes on keelatud postitada enda kontaktandmeid (nimi, telefon, aadress jne). Me jälgime ja analüüsime pakkumisi, et vältida pettuseid ja reeglite rikkumisi.
Rikkumise puhul kasutajakonto blokeeritakse.