+ Lisa oma töö      

Otsid ehitajat "Üldehitus" valdkonnast?

Parima pakkumise ja teostaja leidmiseks lisa oma töö.

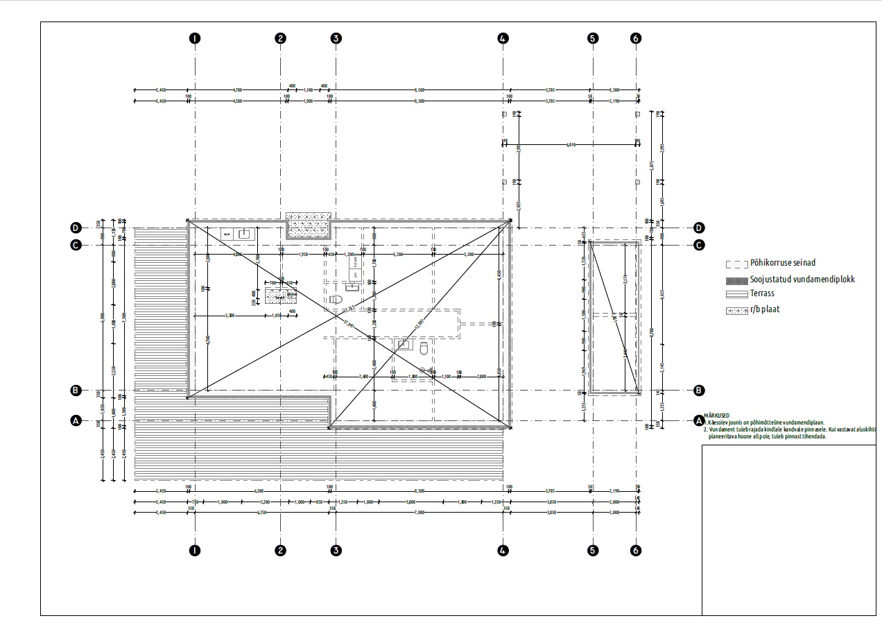
Plaatvundament

ID 90710

960 vaatamist

Prindi

  • check Pakkumiste tegemine
    kuni 04.03.2024
  • check Võitja valik kuni
    11.03.2024
  • 3 Töö teostamine
    ja hinnang
Hanke lõpp: E, 4. märts, 2024
Maakond: Võrumaa
Linn: Võru
Tööde algus: E, 15. aprill, 2024 (Soovituslik)
Tööde lõpp: K, 15. mai, 2024 (Soovituslik)
Ehitusmaterjalid: Töö tegija poolt
Soovin pakkumisi: Summa kogu projektile

Töö sisu

Plaatvundament, mis rajatakse kasutades vahtpolüstüroolist Lplokk
vundamendi servasid, mis laotakse tasandatud liiva alusele. Plaatvundamendi
alune laotakse täis 280mm paksuselt EPS200 soojustusplaate ja kaetakse kilega. Selle peale valatakse 120mm C25/30 raudbetoonist põrand, mille sees on armatuurvõrk ja põrandakütte torud. Välisseinte ja toetavate siseseinte alla valada paksemad taldmikud plaatvundamendi sisse. Pinnas rajada nii, et vihmaveed oleks juhitud hoonest eemale.

Pinnas on kooritud.

Pildid, video ja failid

Hanke korraldaja: eraisik ID79867

Pakkumised

Pakkumisi kokku: 4

Ettevõte Summa Käibemaks Lisatud Vestlus
Kasutaja ikoon ID65880
Pakkuja profiil Väike nool paremale
28 865,4€ KM lisandub KM lisandub 19.02.2024 Vestlus (0)

Pakkumise kirjeldus:

Hind on tehtud põhimõttelise vundamendiplaani järgi.
Hind sisaldab materjal + töö k.a eriosad.
Hinnas ka tööde dokumentatsioon. (kaetud tööde aktid)

Kasutaja ikoon ID79499
Pakkuja profiil Väike nool paremale
21 859€ KM lisandub KM lisandub 19.02.2024 Vestlus (0)

Pakkumise kirjeldus:

Hind sisaldab materjali ja töö raha.
Töö aeg hinnanguliselt 1-2 nädalat.

Kõike head!

Kasutaja ikoon ID57450
Pakkuja profiil Väike nool paremale
26 400€ KM lisandub KM lisandub 20.02.2024 Vestlus (0)

Pakkumise kirjeldus:

Pakkumine vastavalt lähteülesandele. Hinna sobides võtke ühendust, tuleme läbi ning koostame detailse pakkumise.
Edukat hanget!

Kasutaja ikoon ID61081
Pakkuja profiil Väike nool paremale
16 800€ KM lisandub KM lisandub 25.02.2024 Vestlus (0)

Pakkumise kirjeldus:

Tere.

Hinnapakkumine vastavalt töö sisu kirjeldusele.

Küsimused hanke korraldajale

Küsimus: private ID61081   19.02.2024 22:19
Tere.

Kas oleks võimalik vundamendi joonis PDF-ina üles laadida?
Halb mõõte lugeda pildilt.

Teavita reeglite rikkumisest

Korraldaja vastus:
Hanke korraldaja ei ole küsimusele veel vastanud

Lisa küsimus

Lisa küsimus

Minu pakkumine

Reeglid

Pakkumise kirjelduse väli on mõeldud pakkumise detailsemaks lahti kirjutamiseks. Pikema teksti mugavaks sisestamiseks klikkige kasti paremal ülaservas oleval ikoonil.
Pakkumist tehes on keelatud postitada enda kontaktandmeid (nimi, telefon, aadress jne). Me jälgime ja analüüsime pakkumisi, et vältida pettuseid ja reeglite rikkumisi.
Rikkumise puhul kasutajakonto blokeeritakse.

 

Teisi töid samas valdkonnas

Valdkonnas "Üldehitus" on 30 aktiivset tööd

Kuuri lammutus

Asukoht: Pärnumaa
Aega jäänud: 2p 17h
Tehtud pakkumisi: 6

Põrandakütte torustiku ja kollektori paigaldus.

Asukoht: Harjumaa, Kurkse
Aega jäänud: 15p 17h
Tehtud pakkumisi: 4

Vanemad teated:

Vaata kõiki

Sellel veebilehel kasutatakse küpsiseid. Kasutamist jätkates nõustute küpsiste kasutamisega.

Sulge
 
Minu pakkumine

Reeglid

Pakkumise kirjelduse väli on mõeldud pakkumise detailsemaks lahti kirjutamiseks. Pikema teksti mugavaks sisestamiseks klikkige kasti paremal ülaservas oleval ikoonil.
Pakkumist tehes on keelatud postitada enda kontaktandmeid (nimi, telefon, aadress jne). Me jälgime ja analüüsime pakkumisi, et vältida pettuseid ja reeglite rikkumisi.
Rikkumise puhul kasutajakonto blokeeritakse.