+ Lisa oma töö      

Otsid ehitajat "Küttesüsteemid" valdkonnast?

Parima pakkumise ja teostaja leidmiseks lisa oma töö.

Pelletkamina küttesüsteemi projekteerimine

ID 90610

536 vaatamist

Prindi

  • check Pakkumiste tegemine
    kuni 02.03.2024
  • check Võitja valik kuni
    09.03.2024
  • 3 Töö teostamine
    ja hinnang
Hanke lõpp: L, 2. märts, 2024
Maakond: Pärnumaa
Muu asula: Metsaääre
Tööde algus: L, 17. veebruar, 2024 (Soovituslik)
Tööde lõpp: P, 31. märts, 2024 (Soovituslik)
Ehitusmaterjalid: Töö tellija poolt
Soovin pakkumisi: Summa kogu projektile

Töö sisu

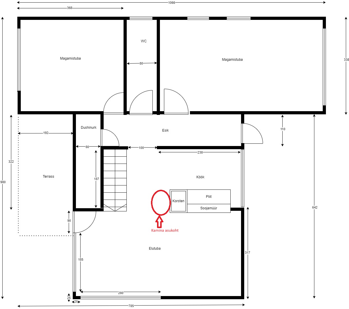
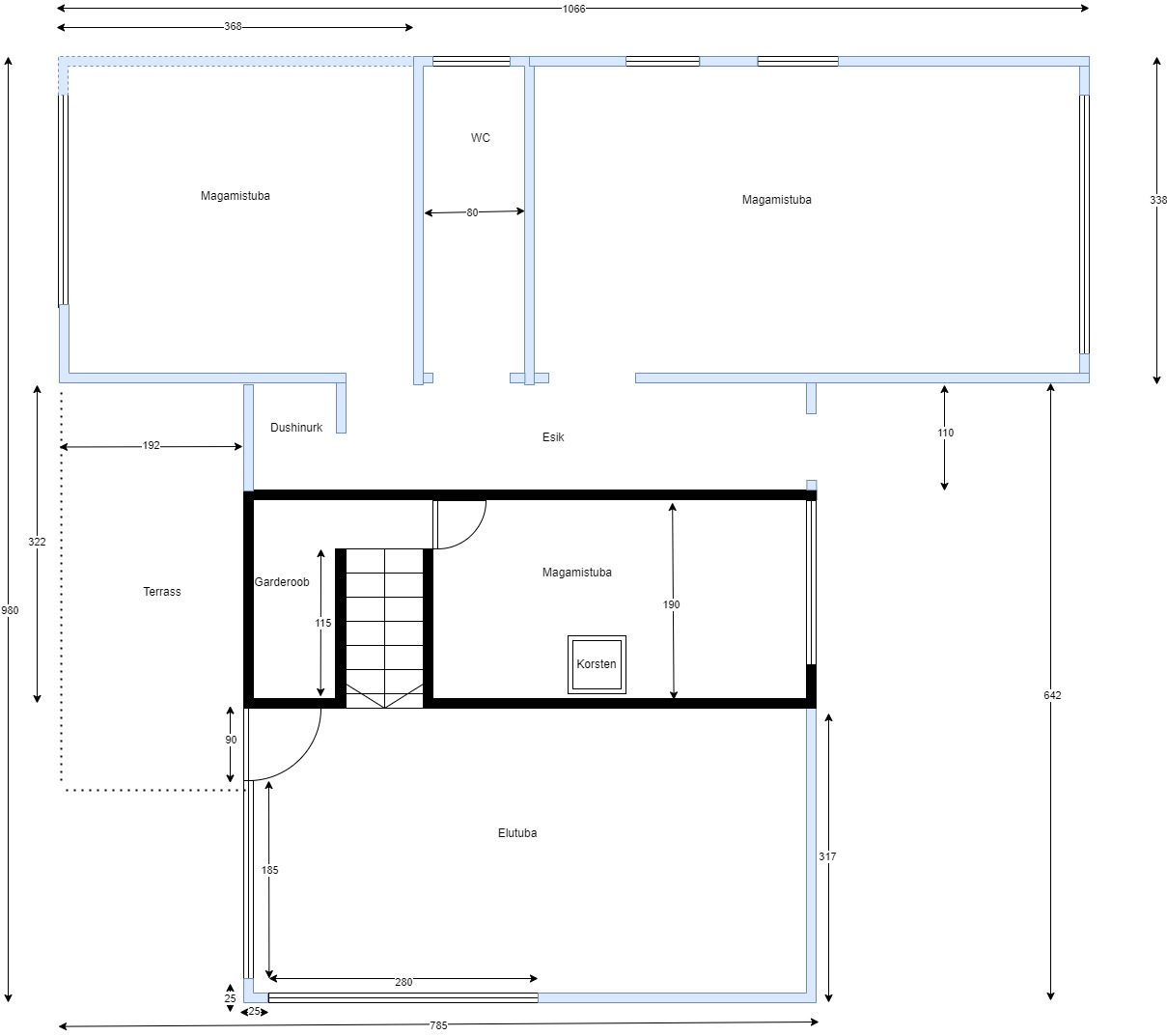
Eramajale tuleb teha pelletkamina küttesüsteemi projekteerimine ja koostada projekt ehitusregistrisse esitamiseks (esitajaks tellija). Majas eluruume ca 64 m2. Kütet ei ole vaja dushiruumi ja esikusse . maja 2-korruseline (II korrusel tuba 6 m2). Maja hetkel soojustamata ja katus vahetamata. Kamina asukoht köögi ja elutoa vahel (endine kamina asukoht). Korstnasse mahub max d 80 cm metallkorsten.

Pildid, video ja failid

Hanke korraldaja: eraisik ID79831

Pakkumised

Pakkumisi kokku: 0

Küsimused hanke korraldajale

Küsimus: private ID4386   17.02.2024 20:14
Tere. Milline kamina mudel ? Kas saate lisada hetke olukorrast pilte ? Kas korstnalõõri hülss paigaldatud ?

Teavita reeglite rikkumisest

Korraldaja vastus: 18.02.2024 13:52

Tere. kindlat mudelit pol eveel välja valinud, kuid midagi sellist https://patmar.ee/pood/kodu-ja-sisustus/kute-ja-elekter/kaminad-ahjud-katlad-ja-pliidid/pelletikaminad/veesargiga-pelletikamin-rittium-hydro-punane-14kw/ (võimalikult kõrge kasuteguriga). Mis olukorrast pilte vaja on? Tegmist ei ole uue majaga. Hülsse ei ole veel paigaldatud.

Teavita reeglite rikkumisest

Küsimus: private ID64660   18.02.2024 13:34
Õhk-vesi oleks muretum ?

Teavita reeglite rikkumisest

Korraldaja vastus: 18.02.2024 13:46

Aitäh info eest!

Teavita reeglite rikkumisest

Küsimus: private ID64660   22.02.2024 21:19
Loobun. See ei ole hea plaan selle kaminaga. Tulemus on frustreeruv.

Teavita reeglite rikkumisest

Korraldaja vastus: 23.02.2024 10:42

Tere. Kuidas sellest aru saada - tulemus on frustreeruv?

Teavita reeglite rikkumisest

Küsimus: private ID64660   23.02.2024 23:03
Olen vahetanud paar kaminat millegi muu vastu. Ma ei tee seda tööd ainult tulu saamise eesmärgil. Tehtu peab töötama korralikult ja muidugi mugavalt. Kamin kõlbaks kuhu iganes mujale aga elamist sellega kütta…… See ei ole valikute küsimus. Sa lihtsalt ei kujuta seda ette endale hästi. Mul on pakkuda pelleti katel. Välja näeb nagu kapp. Ma päris sedasi ei saa enda tööd käest ära anda. Kogemust eramajade keskküttega 30 aastat.

Teavita reeglite rikkumisest

Korraldaja vastus: 25.02.2024 10:07

Tänan vastuse eest. Oken kaalunud erinevaid variante, kuid hetkel on pelletkamin neist parim. Tean kaasnevsid riske.

Teavita reeglite rikkumisest

Lisa küsimus

Lisa küsimus

Minu pakkumine

Reeglid

Pakkumise kirjelduse väli on mõeldud pakkumise detailsemaks lahti kirjutamiseks. Pikema teksti mugavaks sisestamiseks klikkige kasti paremal ülaservas oleval ikoonil.
Pakkumist tehes on keelatud postitada enda kontaktandmeid (nimi, telefon, aadress jne). Me jälgime ja analüüsime pakkumisi, et vältida pettuseid ja reeglite rikkumisi.
Rikkumise puhul kasutajakonto blokeeritakse.

 

Teisi töid samas valdkonnas

Valdkonnas "Küttesüsteemid" on 2 aktiivset tööd

no-img Pilt puudub

Küttesüsteemi püstakute vahetus ja radiaatoritega ühendamine

Asukoht: Järvamaa, Paide
Aega jäänud: 3p 15h
Tehtud pakkumisi: 2

Cooper&Hunter Consol Inverter 18

Asukoht: Harjumaa, Tallinn
Aega jäänud: 15h 52 min
Tehtud pakkumisi: 1

Vanemad teated:

Vaata kõiki

Sellel veebilehel kasutatakse küpsiseid. Kasutamist jätkates nõustute küpsiste kasutamisega.

Sulge
 
Minu pakkumine

Reeglid

Pakkumise kirjelduse väli on mõeldud pakkumise detailsemaks lahti kirjutamiseks. Pikema teksti mugavaks sisestamiseks klikkige kasti paremal ülaservas oleval ikoonil.
Pakkumist tehes on keelatud postitada enda kontaktandmeid (nimi, telefon, aadress jne). Me jälgime ja analüüsime pakkumisi, et vältida pettuseid ja reeglite rikkumisi.
Rikkumise puhul kasutajakonto blokeeritakse.