+ Lisa oma töö      

Otsid ehitajat "Betoonitööd" valdkonnast?

Parima pakkumise ja teostaja leidmiseks lisa oma töö.

Betoonpõranda valamine

ID 90304

807 vaatamist

Prindi

  • check Pakkumiste tegemine
    kuni 27.02.2024
  • check Võitja valik kuni
    05.03.2024
  • 3 Töö teostamine
    ja hinnang
Hanke lõpp: T, 27. veebruar, 2024
Maakond: Harjumaa
Linn: Tallinn
Tööde algus: E, 04. märts, 2024 (Soovituslik)
Tööde lõpp: P, 10. märts, 2024 (Soovituslik)
Ehitusmaterjalid: Töö tegija poolt
Soovin pakkumisi: Summa kogu projektile

Töö sisu

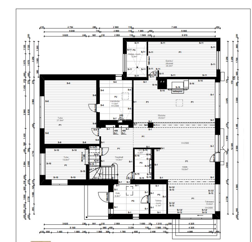
Vaja valada 186m2 siseruumi põrandale 10cm kihi betooni C25/30. Betoon pakkuja poolt. Ruum köetav õhk-õhksoojuspumpadega. Maja kõik mittekandvad seinad on lammutatud.

Tellija valmistab ette tööfrondi: paigaldab killustiku, XPSi, kile, armatuuri, põrandaküttetorustiku, paisumislindi.

Pakkuja valab ja silub (rihib, kopterdab jne) betoonpõranda selliselt, et saaks ilma lihvimata paigaldada põrandakattematerjali.

Objekti asukoht tupiktänava lõpus Tallinnas, betooniauto saab tulla majast u 10m kaugusele.

Pildid, video ja failid

Hanke korraldaja: eraisik ID76287

Pakkumised

Pakkumisi kokku: 9

Ettevõte Summa Käibemaks Lisatud Vestlus
Kasutaja ikoon ID52293
Pakkuja profiil Väike nool paremale
20 000€ Sisaldab KM Sisaldab KM 13.02.2024 Vestlus (0)

Pakkumise kirjeldus:

Tere
Juhul kui soovite meid valida hanke võitjaks peaks eelnevalt kokku leppima makse tingimustes
Tänud

Kasutaja ikoon ID72008
Pakkuja profiil Väike nool paremale
5 100€ Ei ole KMKR Ei ole KMKR 14.02.2024 Vestlus (0)
Kasutaja ikoon ID33806
Pakkuja profiil Väike nool paremale
5 580€ KM lisandub KM lisandub 15.02.2024 Vestlus (0)

Pakkumise kirjeldus:

Hinnapakkumie põrandavalule,
R/b betoonplaat c25/30, Betotop 2 pinnakõvenduskiht puistena, lõigatud vuukidega 186 m2 - 5580 eurot + KM

Tervisi

Kasutaja ikoon ID75583
Pakkuja profiil Väike nool paremale
4 200€ KM lisandub KM lisandub 15.02.2024 Vestlus (0)

Pakkumise kirjeldus:

Tere,

Hinnapakkumine 186m2 siseruumi betoneerimine:
19m3 betoonimark C25/30 XC1.
Mahukahanemisvuukide lõikamine märjalt.
Garantii.

Lugupidamisega,
Kren

Kasutaja ikoon ID8633
Pakkuja profiil Väike nool paremale
3 900€ KM lisandub KM lisandub 15.02.2024 Vestlus (0)
Kasutaja ikoon ID78209
Pakkuja profiil Väike nool paremale
1 488€ KM lisandub KM lisandub 16.02.2024 Vestlus (5)
Kasutaja ikoon ID33354
Pakkuja profiil Väike nool paremale
3 650€ KM lisandub KM lisandub 27.02.2024 Vestlus (0)

Pakkumise kirjeldus:

Pakkumine sisaldab 19m3 betooni, valamist ja lihvimist.

Kasutaja ikoon ID31957
Pakkuja profiil Väike nool paremale
6 100€ Sisaldab KM Sisaldab KM 27.02.2024 Vestlus (0)

Pakkumise kirjeldus:

Tere,

Pakkumine vastavalt hankes küsitule.

Lugupidamisega

Kasutaja ikoon ID68473
Pakkuja profiil Väike nool paremale
3 500€ Ikoon kell KM lisandub KM lisandub 27.02.2024 Vestlus (0)

Pakkumise kirjeldus:

Tere

Pakkumine sisaldab betoonpõranda valamist ja lihvimist.
Pakkumine sisaldab 19m3 betooni , c25/30,xc1, täitematerjal kuni 16mm( ehk tavaline põranda betoon).
Kuna betoon maksumus kogu ehitusest on 70 % siis soovime ettemaksu, ettemaks on arve alusel kuhu on kõik täpselt välja kirjutatud mis objekti ja betooni ettemaksuga on tegemist !

Pari ... Rohkem

Küsimused hanke korraldajale

Küsimus: private ID38042   17.02.2024 20:02
Tere renniga valada ei saa siis? Vaja pumi tellida? Vaheseinu siis pole, üks pind kõik.

Teavita reeglite rikkumisest

Korraldaja vastus: 19.02.2024 11:32

Tere!

Saab ka renniga.

Ainult üks, tagumine ruum garaaz/jõusaal/majapidamisruum on sisuliselt seintega eraldatud. Mõned üksikud kandvad seinad on ka teistes ruumides. Seega suures pildis on tegemist ühe ruumiga.

Teavita reeglite rikkumisest

Lisa küsimus

Lisa küsimus

Minu pakkumine

Reeglid

Pakkumise kirjelduse väli on mõeldud pakkumise detailsemaks lahti kirjutamiseks. Pikema teksti mugavaks sisestamiseks klikkige kasti paremal ülaservas oleval ikoonil.
Pakkumist tehes on keelatud postitada enda kontaktandmeid (nimi, telefon, aadress jne). Me jälgime ja analüüsime pakkumisi, et vältida pettuseid ja reeglite rikkumisi.
Rikkumise puhul kasutajakonto blokeeritakse.

 

Teisi töid samas valdkonnas

Valdkonnas "Betoonitööd" on 5 aktiivset tööd

Betoonist platsi valamine väljas.

Asukoht: Harjumaa, Luige
Aega jäänud: 17h 20 min
Tehtud pakkumisi: 4

Betoonpõranda valu

Asukoht: Harjumaa, Jõelähtme
Aega jäänud: 2p 17h
Tehtud pakkumisi: 3

Vanemad teated:

Vaata kõiki

Sellel veebilehel kasutatakse küpsiseid. Kasutamist jätkates nõustute küpsiste kasutamisega.

Sulge
 
Minu pakkumine

Reeglid

Pakkumise kirjelduse väli on mõeldud pakkumise detailsemaks lahti kirjutamiseks. Pikema teksti mugavaks sisestamiseks klikkige kasti paremal ülaservas oleval ikoonil.
Pakkumist tehes on keelatud postitada enda kontaktandmeid (nimi, telefon, aadress jne). Me jälgime ja analüüsime pakkumisi, et vältida pettuseid ja reeglite rikkumisi.
Rikkumise puhul kasutajakonto blokeeritakse.