+ Lisa oma töö      

Otsid ehitajat "Ventilatsioonitööd" valdkonnast?

Parima pakkumise ja teostaja leidmiseks lisa oma töö.

Ventilatsiooni ehitus

ID 90093

853 vaatamist

Prindi

  • check Pakkumiste tegemine
    kuni 12.03.2024
  • check Võitja valik kuni
    19.03.2024
  • 3 Töö teostamine
    ja hinnang
Hanke lõpp: T, 12. märts, 2024
Maakond: Tartumaa
Linn: Tartu
Tööde algus: R, 01. märts, 2024 (Soovituslik)
Tööde lõpp: P, 30. juuni, 2024 (Soovituslik)
Ehitusmaterjalid: Töö tegija poolt
Soovin pakkumisi: Summa kogu projektile

Töö sisu

Renoveeritavas, kuid osaliselt kasutuses hoones vaja välja ehitada soojustagastusega ventilatsioon.

Hoone on püstpalgist, 1. ja 2. korruse vahelaed kust on vaja mõned avad puurida (või saagida) on konstruktsiooniga (alt üles) (mõnes ruumis kipsiga lagi) - Krohv - laudis - õhuvahe - laudis - liiv/lubi/savi - puitprussid/kivivill - laud/puitkiudplaat (viimased 2 kihti on teise korruse põranda rihtimiseks ja mürasummutuseks.

Hoone 2. korrus on väljaehitamisel, pööningul (soojustatud) kuhu ventseade on plaanitud, on olemas OSB põrand.
Katuse ehitamise ajal tehtud 125mm väljaviske toru läbiviik - suurim mida 51 kraadi kaldega eterniitkatusele oli saada valmistootena. Projekti järgi on see liiga väike ja on vaja suuremaks teha.
Sissetõmbe jaoks on soojustamise ja fassaadi tööde ajast olemas 160mm toru, sinna on vaja lisada üleminek ja rest.

125mm läbiviigud läbi soojustuse, hoone teise osa (saun, eesruum, panipaik) külma pööningu poole olemas.

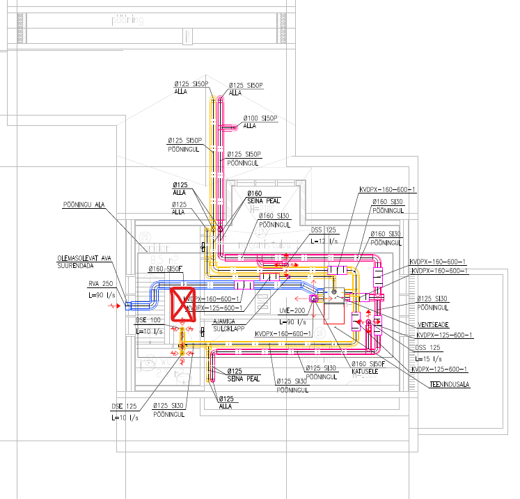
Pööningu ligipääsu asukoha muutumise tõttu ventilatsiooni agregaadi soovituslik asukoht oleks nüüd erinevalt projekti joonistest teisel pool korstent. Uus soovitud asukoht on märgitud ühele pildile.

Hankele lisatud pildina projekti järgne ventilatsiooni materjalide nimekiri, joonised (ka kütteprojekti osa - selle välja ehitamine tuleb eraldi hankena) ja projekeerija soovitusliku ventilatsiooniseadme info.

Pakkumise juurde võiks märkida, millist seadet kasutaksite. Meie poolt oluline on, et seade võiks olla ka võimalikult vaikne.

Pildid, video ja failid

Hanke korraldaja: eraisik ID52671

Pakkumised

Pakkumisi kokku: 3

Ettevõte Summa Käibemaks Lisatud Vestlus
Kasutaja ikoon ID51879
Pakkuja profiil Väike nool paremale
10 557€ KM lisandub KM lisandub 12.02.2024 Vestlus (0)

Pakkumise kirjeldus:

Ventilatsiooniseade
Save vsr 400+juhtpult save light.
2783+km
Ventilatsioonimaterjalid,isolatsioonimaterjalid,abimaterjalid,kinnitusvahendid, vastavalt spetsile.
3899+km
Paigaldustööd,isolatsioonitööd,puurimine,transport
3500+km
Mõõdistamine/seadistamine 375+km.
Seade+materjalid ettemaks 100%.

Pakkumine ei sisalda elektritöid kilbist sead ... Rohkem

Kasutaja ikoon ID77941
Pakkuja profiil Väike nool paremale
9 830€ KM lisandub KM lisandub 09.03.2024 Vestlus (0)

Pakkumise kirjeldus:

Ventseade Komfovent R400H 2000.00+km
Ventmaterjalid, abimaterjalid 2900.00+km
Isolatsioon 1460.00+km
Paigaldustööd 3200.00+km
Mõõdistus, häälestus,käivitus 270.00+km

Kasutaja ikoon ID74916
Pakkuja profiil Väike nool paremale
9 140€ Ei ole KMKR Ei ole KMKR 12.03.2024 Vestlus (0)

Pakkumise kirjeldus:

Tere

Pakkumine sisaldab soojustagastusega ja vaikset ventilatsiooniseadet, torustiku ehitust koos täieliku isoleerimisega, teostusjooniseid, mõõdistamist ja seadistamist. Kasutatud on kandilisi summuteid seadme ees.

Parimat

Küsimused hanke korraldajale

Hanke korraldajale ei ole veel küsimusi esitatud.

Lisa küsimus

Lisa küsimus

Minu pakkumine

Reeglid

Pakkumise kirjelduse väli on mõeldud pakkumise detailsemaks lahti kirjutamiseks. Pikema teksti mugavaks sisestamiseks klikkige kasti paremal ülaservas oleval ikoonil.
Pakkumist tehes on keelatud postitada enda kontaktandmeid (nimi, telefon, aadress jne). Me jälgime ja analüüsime pakkumisi, et vältida pettuseid ja reeglite rikkumisi.
Rikkumise puhul kasutajakonto blokeeritakse.

 

Vanemad teated:

Vaata kõiki

Sellel veebilehel kasutatakse küpsiseid. Kasutamist jätkates nõustute küpsiste kasutamisega.

Sulge
 
Minu pakkumine

Reeglid

Pakkumise kirjelduse väli on mõeldud pakkumise detailsemaks lahti kirjutamiseks. Pikema teksti mugavaks sisestamiseks klikkige kasti paremal ülaservas oleval ikoonil.
Pakkumist tehes on keelatud postitada enda kontaktandmeid (nimi, telefon, aadress jne). Me jälgime ja analüüsime pakkumisi, et vältida pettuseid ja reeglite rikkumisi.
Rikkumise puhul kasutajakonto blokeeritakse.