+ Lisa oma töö      

Otsid ehitajat "Üldehitus" valdkonnast?

Parima pakkumise ja teostaja leidmiseks lisa oma töö.

Hange on lõppenud!

Võitjaks osutus kasutaja ID 61081

Plaatvundament

ID 89999

1891 vaatamist

Prindi

  • check Pakkumiste tegemine
    kuni 28.02.2024
  • check Võitja valik kuni
    06.03.2024
  • 3 Töö teostamine
    ja hinnang
Hanke lõpp: K, 28. veebruar, 2024
Maakond: Harjumaa
Muu asula: Kuusalu
Tööde algus: E, 01. aprill, 2024 (Soovituslik)
Tööde lõpp: K, 01. mai, 2024 (Soovituslik)
Ehitusmaterjalid: Töö tellija poolt
Soovin pakkumisi: Summa kogu projektile

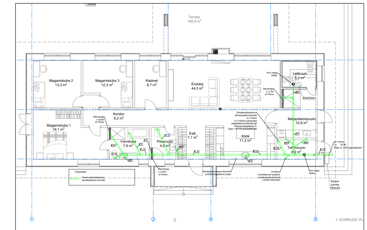
Töö sisu

Otsin plaatvundamndi tegijat. Arhitekti poolt joonistaud sõlmed manuses. Ei oota,et ehitaja täpselt selle projekti järgi teeb võib pakkuda välja omapoolse lahenduse. Müürid Baurock500

Pildid, video ja failid

Hanke korraldaja: eraisik ID76896

Pakkumised

Pakkumisi kokku: 10

Ettevõte Summa Käibemaks Lisatud Vestlus
Kasutaja ikoon ID79499
Pakkuja profiil Väike nool paremale
29 000€ KM lisandub KM lisandub 14.02.2024 Vestlus (3)

Pakkumise kirjeldus:

Pakkumine sisaldab plaatvundamendi maha märkimisest kuni betooni viimistlemiseni.
Nii öelda täiskomplekt lahendus.

Kasutaja ikoon ID33806
Pakkuja profiil Väike nool paremale
44 735€ KM lisandub KM lisandub 15.02.2024 Vestlus (0)

Pakkumise kirjeldus:

Tere Hinnapakkumine Eramu plaatundamendile:
Maht 194,5 m2

Projekteerit järgi kahekihiline plaatvundament 44735 eurot + km

100mm plaadiga ühekihiline plaatvundament 38900 +km

Oleme valmis aitama nii nõu kui ka jõuga. Täpsema ja detailsema pakkumise koostamiseks oleks vaja dwg jooniseid.
Aitame ka projekteerimise ja kasutusloa hankimisega nin ... Rohkem

Kasutaja ikoon ID50329
Pakkuja profiil Väike nool paremale
35 500€ KM lisandub KM lisandub 15.02.2024 Vestlus (0)
Kasutaja ikoon ID77207
Pakkuja profiil Väike nool paremale
35 000€ Sisaldab KM Sisaldab KM 16.02.2024 Vestlus (0)

Pakkumise kirjeldus:

pakkumine kogu projektile

Kasutaja ikoon ID72008
Pakkuja profiil Väike nool paremale
36 700€ Ikoon kell KM lisandub KM lisandub 17.02.2024 Vestlus (0)

Pakkumise kirjeldus:

Hind töö+materjal . Kahekihiline plaatvundament.

Kasutaja ikoon ID61081
Pakkuja profiil Väike nool paremale
22 500€ KM lisandub KM lisandub 21.02.2024 Vestlus (13)

Pakkumise kirjeldus:

Tere.

Hinnapakkumine antud tööle koos materjalidega.

Kasutaja ikoon ID8356
Pakkuja profiil Väike nool paremale
57 860€ KM lisandub KM lisandub 28.02.2024 Vestlus (0)

Pakkumise kirjeldus:

Vundamendi ehitamise hind koos materjalide ja põrandaaluste ning põrandasiseste torustikega.

Kasutaja ikoon ID8633
Pakkuja profiil Väike nool paremale
29 500€ KM lisandub KM lisandub 28.02.2024 Vestlus (0)
Kasutaja ikoon ID52293
Pakkuja profiil Väike nool paremale
28 000€ Sisaldab KM Sisaldab KM 28.02.2024 Vestlus (0)

Pakkumise kirjeldus:

Tere
Juhul kui soovite meid valida hanke võitjaks peaks eelnevalt kokku leppima makse tingimustes
Tänud

Kasutaja ikoon ID50594
Pakkuja profiil Väike nool paremale
58 000€ KM lisandub KM lisandub 28.02.2024 Vestlus (0)

Pakkumise kirjeldus:

Tere,

Hinnapakkumine vastavalt hanke kirjeldusele.

Detailsem pakkumine on võimalik koostada eelarvestuses.

Lgp. Taivo

Küsimused hanke korraldajale

Küsimus: private ID31957   15.02.2024 16:17
Tere,

Vaatan et haneks pakkumised olemas, kuid ei leia lisatud failide alt armeerimisskeemi kandvate seinade kohta?
Kas see on ehitaja lahendada?

Lugupidamisega

Teavita reeglite rikkumisest

Korraldaja vastus: 18.02.2024 22:26

Tere. Armeerimiskeem kandavate seinade kohta puudub. Pigem arvestada,et see on vundamendi ehitaja lahendada.

Teavita reeglite rikkumisest

Küsimus: private ID72008   18.02.2024 16:54
Tere.

Lugesin uuesti,et materjalid töö tellija poolt ? Kas soovite ainult töö hinda ?

Teavita reeglite rikkumisest

Korraldaja vastus: 18.02.2024 22:21

Tere. Õige tähelepanek,märkasin ka seda alles nüüd. Olen siiski eelkõige huvitatud koos materjaliga pakkumistest.

Teavita reeglite rikkumisest

Küsimus: private ID72008   18.02.2024 22:24
Selge.

Meie poolt siis tehtud töö+materjal pakkumine.

Teavita reeglite rikkumisest

Korraldaja vastus:
Hanke korraldaja ei ole küsimusele veel vastanud

Küsimus: private ID78546   28.02.2024 10:37
Oluline! Kui ehitaja ei järgi kinnitatud ehitusprojekti,ei ole seaduslikku alust nõuda viimaselt karantiid ning kindlustus ei maksa pennigi.Vastuvõtmiseks peavad olema kaetud tööde aktid ning loomulikult vastama ehitusprojektile.Võite olla kindel,et kui jätate armatuuri hulga ja paigaldusviisi ehitaja otsustada,saate,,peksa,,.

Teavita reeglite rikkumisest

Korraldaja vastus:
Hanke korraldaja ei ole küsimusele veel vastanud

Lisa küsimus

Lisa küsimus

Minu pakkumine

Reeglid

Pakkumise kirjelduse väli on mõeldud pakkumise detailsemaks lahti kirjutamiseks. Pikema teksti mugavaks sisestamiseks klikkige kasti paremal ülaservas oleval ikoonil.
Pakkumist tehes on keelatud postitada enda kontaktandmeid (nimi, telefon, aadress jne). Me jälgime ja analüüsime pakkumisi, et vältida pettuseid ja reeglite rikkumisi.
Rikkumise puhul kasutajakonto blokeeritakse.

 

Teisi töid samas valdkonnas

Valdkonnas "Üldehitus" on 31 aktiivset tööd

Maja värvimine

Asukoht: Harjumaa, Saue
Aega jäänud: 2p 4h
Tehtud pakkumisi: 6

Terassi õlitamine, 13,7 ruutu

Asukoht: Harjumaa, Saue
Aega jäänud: 5p 4h
Tehtud pakkumisi: 5

Vanemad teated:

Vaata kõiki

Sellel veebilehel kasutatakse küpsiseid. Kasutamist jätkates nõustute küpsiste kasutamisega.

Sulge
 
Minu pakkumine

Reeglid

Pakkumise kirjelduse väli on mõeldud pakkumise detailsemaks lahti kirjutamiseks. Pikema teksti mugavaks sisestamiseks klikkige kasti paremal ülaservas oleval ikoonil.
Pakkumist tehes on keelatud postitada enda kontaktandmeid (nimi, telefon, aadress jne). Me jälgime ja analüüsime pakkumisi, et vältida pettuseid ja reeglite rikkumisi.
Rikkumise puhul kasutajakonto blokeeritakse.