+ Lisa oma töö      

Otsid ehitajat "Üldehitus" valdkonnast?

Parima pakkumise ja teostaja leidmiseks lisa oma töö.

Eramu keldri põranda süvendamine ja vundamendi juurde valamine

ID 89855

750 vaatamist

Prindi

  • check Pakkumiste tegemine
    kuni 09.03.2024
  • check Võitja valik kuni
    16.03.2024
  • 3 Töö teostamine
    ja hinnang
Hanke lõpp: L, 9. märts, 2024
Maakond: Tartumaa
Linn: Tartu
Tööde algus: L, 20. aprill, 2024 (Soovituslik)
Tööde lõpp: R, 31. mai, 2024 (Soovituslik)
Ehitusmaterjalid: Töö tegija poolt
Soovin pakkumisi: Summa kogu projektile

Töö sisu

Eramu keldri lae kõrgus hetkel ca 2m ning muldpõrand vundamendi alumise äärega tasa. Vaja süvendada 50 cm et saaks normaalne elamispinna nõuetele vastava laekõrguse.

Et süvendamine ei mõjutaks vundamenti on vajalik vundamendi juurde valamine, laiendamine.
Põrandale kile 5cm peno ja 8cm fiiberbetooni või armeering+betoon, olen avatud spetsialisti pakutavale lahendusele.
Lisaks on vaja paigaldada põrandakütte torustik ja kanalisatsioonitrapid.

Kelder on enamjaolt tühi.
Keldris on vaja osaliselt välja lõhkuda vana betoonpõrand ja teisaldada üleliigne pinnast.

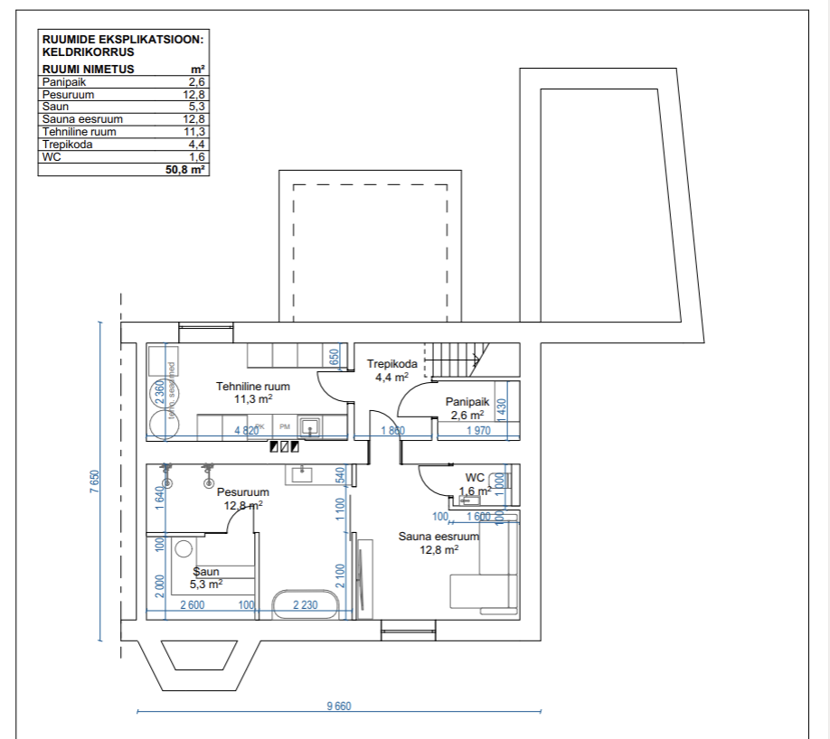
Lisatud põrandaplaani joonis ja pildid keldrist
Töödega saab alustada aprill-mai 2024
Objektiga võimalik tulla tutvuma.

Pildid, video ja failid

Hanke korraldaja: eraisik ID74061

Pakkumised

Pakkumisi kokku: 2

Ettevõte Summa Käibemaks Lisatud Vestlus
Kasutaja ikoon ID57450
Pakkuja profiil Väike nool paremale
38 000€ KM lisandub KM lisandub 10.02.2024 Vestlus (0)

Pakkumise kirjeldus:

Sisaldab: Vundamendi etapilist lahtikaevet seestpoolt, saalungite rajamist, vundamendi etapilist betoneerimist koos sarrustamisega, põrandapinna piikamist, põrandapinna langetamist puhtale kõrgusele 2.40(lõplikust betoonpinnast), pinnase väljavedu, kinnise pooriga PUR paigaldust põrandale, küttetrassi ning armatuuri paigaldust, põranda betoneerimist+ ... Rohkem

Kasutaja ikoon ID67766
Pakkuja profiil Väike nool paremale
6 800€ Ei ole KMKR Ei ole KMKR 26.02.2024 Vestlus (0)

Pakkumise kirjeldus:

Hind sisaldab vundamendi toestus ja soojustus töid ja selleks vajaliku ehitusmaterjali hinda .Hind võib muutuda kuna täpsemad kogused saab välja arvestada kui oleme objektiga tutvunud .Parimat soovides

Küsimused hanke korraldajale

Küsimus: private ID70355   09.02.2024 23:31
Tere kas valada tuleb vundamendile tugi seest poolt ?

Teavita reeglite rikkumisest

Korraldaja vastus: 10.02.2024 07:35

Pigem väljast.

Teavita reeglite rikkumisest

Küsimus: private ID70355   10.02.2024 14:33
*Terve perimeeter valada ?
* Valu, hüdrotada ja soojustustada?
* Pilte väljas mis olukord on

Teavita reeglite rikkumisest

Korraldaja vastus: 12.02.2024 09:19

Tere,

Terve perimeeter tuleb valda jah.
Täpselt nii valada, hüdro ja soojustus

Teavita reeglite rikkumisest

Küsimus: private ID67766   24.02.2024 15:25
Tere, Võin tehe pakkumise ,esimese etapina välis perimeetri lahti kaevamine ,lisa betoonivalu vana vundamendi toestamiseks. soojustus 100 EPS ja perimeetri soojustus .lõpuks tagasi täide. Parimat soovides

Teavita reeglite rikkumisest

Korraldaja vastus: 26.02.2024 08:13

Jään ootama pakkumist

Teavita reeglite rikkumisest

Lisa küsimus

Lisa küsimus

Minu pakkumine

Reeglid

Pakkumise kirjelduse väli on mõeldud pakkumise detailsemaks lahti kirjutamiseks. Pikema teksti mugavaks sisestamiseks klikkige kasti paremal ülaservas oleval ikoonil.
Pakkumist tehes on keelatud postitada enda kontaktandmeid (nimi, telefon, aadress jne). Me jälgime ja analüüsime pakkumisi, et vältida pettuseid ja reeglite rikkumisi.
Rikkumise puhul kasutajakonto blokeeritakse.

 

Teisi töid samas valdkonnas

Valdkonnas "Üldehitus" on 30 aktiivset tööd

Kuuri lammutus

Asukoht: Pärnumaa
Aega jäänud: 2p 18h
Tehtud pakkumisi: 6

Põrandakütte torustiku ja kollektori paigaldus.

Asukoht: Harjumaa, Kurkse
Aega jäänud: 15p 18h
Tehtud pakkumisi: 4

Vanemad teated:

Vaata kõiki

Sellel veebilehel kasutatakse küpsiseid. Kasutamist jätkates nõustute küpsiste kasutamisega.

Sulge
 
Minu pakkumine

Reeglid

Pakkumise kirjelduse väli on mõeldud pakkumise detailsemaks lahti kirjutamiseks. Pikema teksti mugavaks sisestamiseks klikkige kasti paremal ülaservas oleval ikoonil.
Pakkumist tehes on keelatud postitada enda kontaktandmeid (nimi, telefon, aadress jne). Me jälgime ja analüüsime pakkumisi, et vältida pettuseid ja reeglite rikkumisi.
Rikkumise puhul kasutajakonto blokeeritakse.