+ Lisa oma töö      

Otsid ehitajat "Üldehitus" valdkonnast?

Parima pakkumise ja teostaja leidmiseks lisa oma töö.

Vundamendi ehitus

ID 89785

591 vaatamist

Prindi

  • check Pakkumiste tegemine
    kuni 09.02.2024
  • check Võitja valik kuni
    16.02.2024
  • 3 Töö teostamine
    ja hinnang
Hanke lõpp: R, 9. veebruar, 2024
Maakond: Valgamaa
Linn: Otepää
Tööde algus: E, 04. märts, 2024 (Soovituslik)
Tööde lõpp: P, 24. märts, 2024 (Soovituslik)
Ehitusmaterjalid: Töö tegija poolt
Soovin pakkumisi: Summa kogu projektile

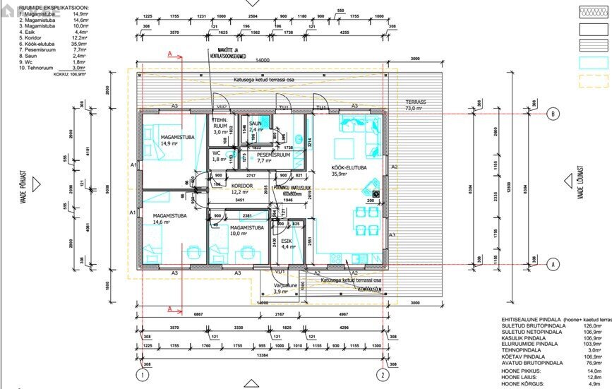
Töö sisu

Eramaja vundamendi ehitus koos torustikega.

Pildid, video ja failid

Hanke korraldaja: eraisik ID79383

Pakkumised

Pakkumisi kokku: 4

Ettevõte Summa Käibemaks Lisatud Vestlus
Kasutaja ikoon ID58894
Pakkuja profiil Väike nool paremale
38 000€ Sisaldab KM Sisaldab KM 06.02.2024 Vestlus (0)

Pakkumise kirjeldus:

Tere päevast,

Minu hinnapakkumine on tehtud teiepoolt kirjeldatud tööde mahule ja projekti ülesandele.

1. Projekti koostamisel saab sammuti abistada, ehitusloast kuni kasutusloani.
2. Saab pakkuda võtmed kätte projekti ehk valge karp.
3. Pakkumine sisaldab kaevamised, plaatvundamenti, soojustus, küttetorud, kanal, vesi, väline krohvimine, ehi ... Rohkem

Kasutaja ikoon ID57450
Pakkuja profiil Väike nool paremale
28 700€ KM lisandub KM lisandub 07.02.2024 Vestlus (0)

Pakkumise kirjeldus:

Hind vastavalt lähteülesandele. Sobivusel võtke ühendust, tuleme läbi ja koostame detailse pakkumise.
Edukat hanget!

Kasutaja ikoon ID61081
Pakkuja profiil Väike nool paremale
22 680€ KM lisandub KM lisandub 07.02.2024 Vestlus (0)

Pakkumise kirjeldus:

Tere.

Hinnapakkumine plaatvundamendi töödele koos materjalidega. 126m2

Kasutaja ikoon ID67766
Pakkuja profiil Väike nool paremale
22 000€ Ei ole KMKR Ei ole KMKR 09.02.2024 Vestlus (0)

Pakkumise kirjeldus:

Hind sisaldab ehitusmaterjali hinda ja tööraha. Hind võib muutuda ,kuna täpsem materjali hind selgub tööde käigus .Parimat soovides

Küsimused hanke korraldajale

Küsimus: private ID61081   06.02.2024 15:21
Tere.

Palun lisage lõige.

Teavita reeglite rikkumisest

Korraldaja vastus: 06.02.2024 17:10

Tere.

Täna mul pole võimalik lõiget saata.
Tehke ligikaudne hind.

Teavita reeglite rikkumisest

Küsimus: private ID67766   06.02.2024 19:08
Tere ,Kas tegu on plaatvundamendi või lintvundamendiga .Parimat soovides

Teavita reeglite rikkumisest

Korraldaja vastus: 07.02.2024 08:25

Tere. Plaatvundament.

Teavita reeglite rikkumisest

Lisa küsimus

Lisa küsimus

Minu pakkumine

Reeglid

Pakkumise kirjelduse väli on mõeldud pakkumise detailsemaks lahti kirjutamiseks. Pikema teksti mugavaks sisestamiseks klikkige kasti paremal ülaservas oleval ikoonil.
Pakkumist tehes on keelatud postitada enda kontaktandmeid (nimi, telefon, aadress jne). Me jälgime ja analüüsime pakkumisi, et vältida pettuseid ja reeglite rikkumisi.
Rikkumise puhul kasutajakonto blokeeritakse.

 

Teisi töid samas valdkonnas

Valdkonnas "Üldehitus" on 30 aktiivset tööd

Kuuri lammutus

Asukoht: Pärnumaa
Aega jäänud: 2p 18h
Tehtud pakkumisi: 6

Põrandakütte torustiku ja kollektori paigaldus.

Asukoht: Harjumaa, Kurkse
Aega jäänud: 15p 18h
Tehtud pakkumisi: 4

Vanemad teated:

Vaata kõiki

Sellel veebilehel kasutatakse küpsiseid. Kasutamist jätkates nõustute küpsiste kasutamisega.

Sulge
 
Minu pakkumine

Reeglid

Pakkumise kirjelduse väli on mõeldud pakkumise detailsemaks lahti kirjutamiseks. Pikema teksti mugavaks sisestamiseks klikkige kasti paremal ülaservas oleval ikoonil.
Pakkumist tehes on keelatud postitada enda kontaktandmeid (nimi, telefon, aadress jne). Me jälgime ja analüüsime pakkumisi, et vältida pettuseid ja reeglite rikkumisi.
Rikkumise puhul kasutajakonto blokeeritakse.