+ Lisa oma töö      

Otsid ehitajat "Üldehitus" valdkonnast?

Parima pakkumise ja teostaja leidmiseks lisa oma töö.

lint- ja plaatvundament

ID 89732

1368 vaatamist

Prindi

  • check Pakkumiste tegemine
    kuni 05.03.2024
  • check Võitja valik kuni
    12.03.2024
  • 3 Töö teostamine
    ja hinnang
Hanke lõpp: T, 5. märts, 2024
Maakond: Harjumaa
Muu asula: Nahkjala
Tööde algus: E, 15. aprill, 2024 (Soovituslik)
Tööde lõpp: R, 24. mai, 2024 (Soovituslik)
Ehitusmaterjalid: Töö tegija poolt
Soovin pakkumisi: Tüki- või ühikuhinda

Töö sisu

Tere
Soovin pakkumisi kahele vundamendile:
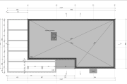
1. lintvundament elumajale ca 140m2, pluss terrass ca 57 m2 (joonised lisas)
2. plaatvundament abihoonele 143 m2
Asukoht Nahkjala küla, Lääne-Harju vald. Tööde teostamise aeg; aprill-mai

Pildid, video ja failid

Hanke korraldaja: eraisik ID73103

Pakkumised

Pakkumisi kokku: 10

Ettevõte Summa Käibemaks Lisatud Vestlus
Kasutaja ikoon ID79499
Pakkuja profiil Väike nool paremale
39 000€ KM lisandub KM lisandub 05.02.2024 Vestlus (9)

Pakkumise kirjeldus:

Teen pakkumise ilma täitematerjalideta.

Pakkumine sisaldab tööd koos materjalidega.

Oleme betooni töödele sptetsalisseerunud ettevõte.

Kasutaja ikoon ID72190
Pakkuja profiil Väike nool paremale
44 000€ KM lisandub KM lisandub 07.02.2024 Vestlus (10)

Pakkumise kirjeldus:

Hinna sees:
Killustiku tihendamine, sisetäitmine, betoonpõranda valamine küttetorudega, drenaaž, hüdroisolatsioon, liiva välimine täitmine

Kasutaja ikoon ID72008
Pakkuja profiil Väike nool paremale
41 580€ KM lisandub KM lisandub 11.02.2024 Vestlus (8)
Kasutaja ikoon ID59528
Pakkuja profiil Väike nool paremale
38 000€ KM lisandub KM lisandub 05.03.2024 Vestlus (0)

Pakkumise kirjeldus:

Tere,

Pakkumine tehtud vastavalt Hankes kirjeldatud töödele. Täpsema hinnakalkulatsiooni saame saata vestluses.
Meie profiili alt näete meie poolt tehtud töid ja klientide poolt antud hinnanguid
Ettevōttel olemas MTR registreering!

Parimat,

Erik

Kasutaja ikoon ID8356
Pakkuja profiil Väike nool paremale
55 420€ KM lisandub KM lisandub 05.03.2024 Vestlus (0)

Pakkumise kirjeldus:

Kahe vundamendi hind kokku vastavalt saadud projektile. Hinnas sisalduvad ka põrandaalused veetorud, kanalisatsioon ja kaablikõri. Tasumine osade kaupa vastavalt kvaliteetselt teostatud töödele.

Kasutaja ikoon ID77435
Pakkuja profiil Väike nool paremale
46 000€ KM lisandub KM lisandub 05.03.2024 Vestlus (0)
Kasutaja ikoon ID52293
Pakkuja profiil Väike nool paremale
50 000€ Sisaldab KM Sisaldab KM 05.03.2024 Vestlus (0)

Pakkumise kirjeldus:

Tere
Juhul kui soovite meid valida hanke võitjaks peaks eelnevalt kokku leppima makse tingimustes
Tänud

Kasutaja ikoon ID23896
Pakkuja profiil Väike nool paremale
44 500€ KM lisandub KM lisandub 05.03.2024 Vestlus (0)

Pakkumise kirjeldus:

Tere
nende piltide alusel väga raske teha pakkumist, võtame teiega ühendust ja teeme täpse pakkumise.

Kasutaja ikoon ID8633
Pakkuja profiil Väike nool paremale
39 500€ KM lisandub KM lisandub 05.03.2024 Vestlus (0)

Pakkumise kirjeldus:

Tere,umbkaudne pakkumine,vaja natukene rohkem info ja naha olukorda.

Kasutaja ikoon ID80164
Pakkuja profiil Väike nool paremale
14€ Sisaldab KM Sisaldab KM 05.03.2024 Vestlus (0)

Pakkumise kirjeldus:

plaatvundamendi pakkumine vaid siin koos 400mm kõrguselementidega, eisisalda betoonivalu. Sisaldab peale kopatasandamist ja tihendamist alates: lõpptasandamine, soklielemendid, 300mm paksune penokiht, armeering, radoonikile, veetorustik tarbevesi ning kanal. Ei sisalda põrandaküttetoru ega betoneerimistööd. Teisele vundamendile võiksin ka pakkumise te ... Rohkem

Küsimused hanke korraldajale

Küsimus: private ID72190   05.02.2024 07:26
Tere!
Kas ettevalmistused on tehtud?
näiteks: kas vesi ja kanalisatsioon on paigaldatud? Kas süvend on kaevatud? killustik paigas?
Või see kõik ka on vaja teha?

Teavita reeglite rikkumisest

Korraldaja vastus: 05.02.2024 20:24

Tere
Süvend kaevatud, killustik, vesi, kanal, kommunikatsioonid vaja paigaldada.

Teavita reeglite rikkumisest

Küsimus: private ID72190   05.02.2024 23:04
Kas teil on projekt dwg formaatis?

Teavita reeglite rikkumisest

Korraldaja vastus: 06.02.2024 18:20

Vundamendi projekt dwg's lisatud failidele.

Teavita reeglite rikkumisest

Lisa küsimus

Lisa küsimus

Minu pakkumine

Reeglid

Pakkumise kirjelduse väli on mõeldud pakkumise detailsemaks lahti kirjutamiseks. Pikema teksti mugavaks sisestamiseks klikkige kasti paremal ülaservas oleval ikoonil.
Pakkumist tehes on keelatud postitada enda kontaktandmeid (nimi, telefon, aadress jne). Me jälgime ja analüüsime pakkumisi, et vältida pettuseid ja reeglite rikkumisi.
Rikkumise puhul kasutajakonto blokeeritakse.

 

Teisi töid samas valdkonnas

Valdkonnas "Üldehitus" on 30 aktiivset tööd

Kuuri lammutus

Asukoht: Pärnumaa
Aega jäänud: 2p 17h
Tehtud pakkumisi: 6

Põrandakütte torustiku ja kollektori paigaldus.

Asukoht: Harjumaa, Kurkse
Aega jäänud: 15p 17h
Tehtud pakkumisi: 4

Vanemad teated:

Vaata kõiki

Sellel veebilehel kasutatakse küpsiseid. Kasutamist jätkates nõustute küpsiste kasutamisega.

Sulge
 
Minu pakkumine

Reeglid

Pakkumise kirjelduse väli on mõeldud pakkumise detailsemaks lahti kirjutamiseks. Pikema teksti mugavaks sisestamiseks klikkige kasti paremal ülaservas oleval ikoonil.
Pakkumist tehes on keelatud postitada enda kontaktandmeid (nimi, telefon, aadress jne). Me jälgime ja analüüsime pakkumisi, et vältida pettuseid ja reeglite rikkumisi.
Rikkumise puhul kasutajakonto blokeeritakse.