+ Lisa oma töö      

Otsid ehitajat "Maalritööd" valdkonnast?

Parima pakkumise ja teostaja leidmiseks lisa oma töö.

Eramajas seinte ja lagede pahteldamine ning värvimine

ID 89504

968 vaatamist

Prindi

  • check Pakkumiste tegemine
    kuni 09.02.2024
  • check Võitja valik kuni
    16.02.2024
  • 3 Töö teostamine
    ja hinnang
Hanke lõpp: R, 9. veebruar, 2024
Maakond: Harjumaa
Linn: Tallinn
Tööde algus: E, 19. veebruar, 2024 (Soovituslik)
Tööde lõpp: P, 10. märts, 2024 (Soovituslik)
Ehitusmaterjalid: Töö tellija poolt
Soovin pakkumisi: Summa kogu projektile

Töö sisu

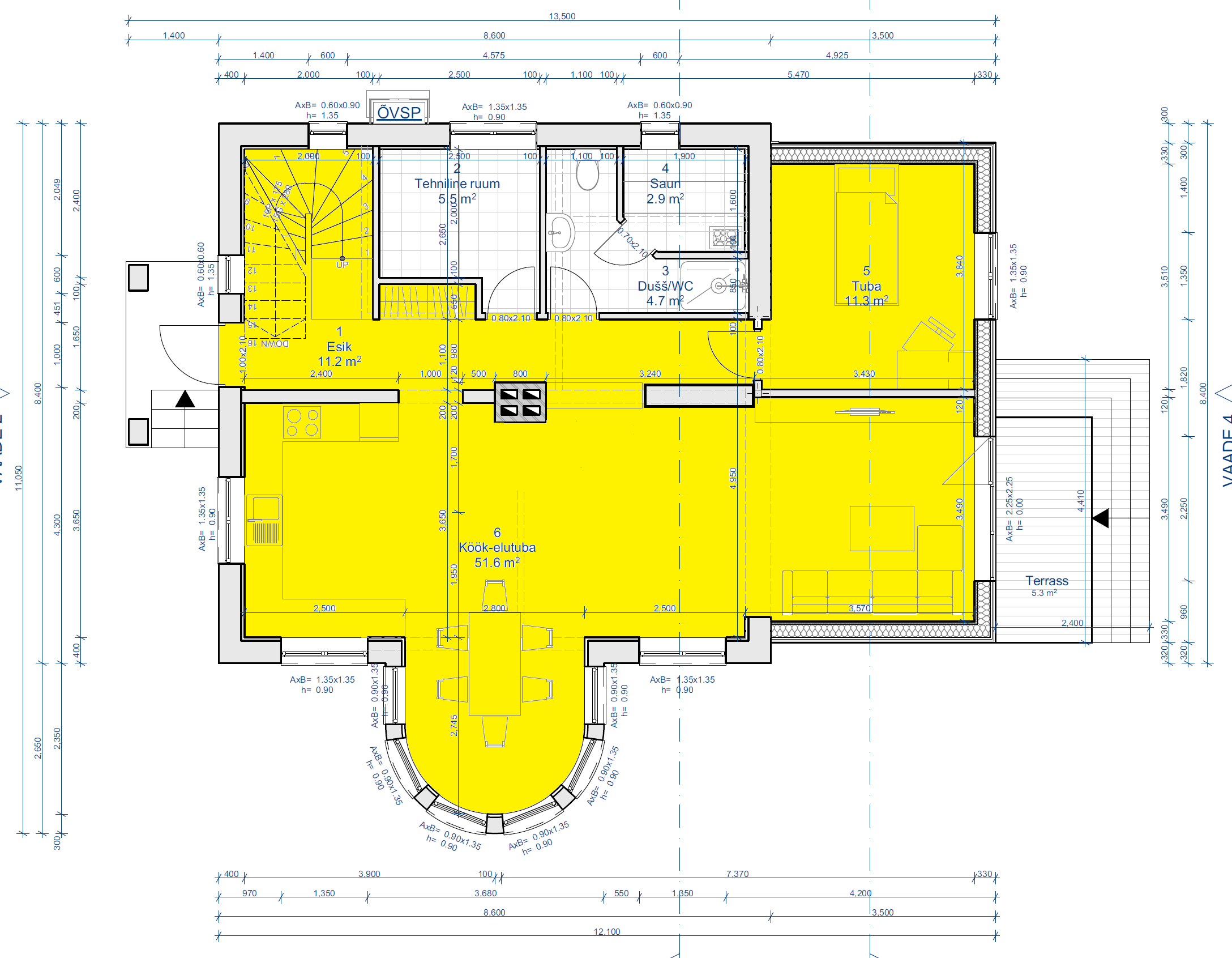
Joonisel kollasega märgitud siseruumide seinte ja lagede täispahteldamine ning 2x värvimine.
Midagi eriskummalist ei ole, Kõik vuugivahed ning sisenurgad paberiga ning tugevama pahtliga teha. Välisnurgad nagu ikka alumiiniumprofiil liistuga.
Kõik seinad ja laed kipsist.
Põranda ja lae kõrgus 2,8m.
Kohapeal võib täpsemad m2 üle mõõta, kuna on aknaid ja avasid ning jooniselt ei pruugi õigeid m2 kokku saada.

Pildid, video ja failid

Hanke korraldaja: eraisik ID32404

Pakkumised

Pakkumisi kokku: 14

Ettevõte Summa Käibemaks Lisatud Vestlus
Kasutaja ikoon ID70928
Pakkuja profiil Väike nool paremale
4 600€ KM lisandub KM lisandub 27.01.2024 Vestlus (0)

Pakkumise kirjeldus:

Tere

Vuugilindi ja alumiinium- tugevdusnurkkade liimimine, vuugi pahteldus, seinte ja lagede lauspahteldus, lihvimine, krunttimine ja pinna värvimine 2 korda.
Laevärv vivacolor ceiling 3, Seinavärv vivacolor wall4 teie valitud toonil.
M2 hind on 23€ + KM. Hind sisaldab tööd ja kõiki materjale.
Töödega saaks alustada veebruari lõpus.
Praeg ... Rohkem

Kasutaja ikoon ID72830
Pakkuja profiil Väike nool paremale
190€ Sisaldab KM Sisaldab KM 27.01.2024 Vestlus (0)
Kasutaja ikoon ID73462
Pakkuja profiil Väike nool paremale
4 000€ Ei ole KMKR Ei ole KMKR 27.01.2024 Vestlus (3)

Pakkumise kirjeldus:

Tere,

Pakkumine koos materjaliga,

Seina ja lae viimistlus 20€ m2

Aknapõsed 12€ jm

Nurgad 15€ tk

Pakkumises, vuugid, lauspahteldus, krunt ja 2x

Krundime ja lae värvime pritsiga siis jääb lagi väga ilusa tekstuuriga. Lihvime tolmuvabalt festooli lihvijaga.

Töökestvus umbes 2 nädalat.

Parimat
E.

Kasutaja ikoon ID72794
Pakkuja profiil Väike nool paremale
1 234€ KM lisandub KM lisandub 27.01.2024 Vestlus (3)

Pakkumise kirjeldus:

Tere

Esitan omapoolse pakkumise töödele.
Hinnaks 13.- m2, tööde kogumaht selgub kohapeal mõõtes. Tööde kinnitamiseks ettemaks 40% ja teine osa tasutakse pärast tööde üleandmist/vastuvõtmist.
Arve väljastamisel lisandub summale käibemaks.

Pakkumine sisaldab:
-Vajalikud katmised
-Vuugilindi ja nurkade paigaldus
-Pahteldamine
-Lihv
... Rohkem

Kasutaja ikoon ID56019
Pakkuja profiil Väike nool paremale
3 000€ Ei ole KMKR Ei ole KMKR 27.01.2024 Vestlus (2)

Pakkumise kirjeldus:

Tere.
Teeme pakkumise teie poolt soovitud töödele.
Hinnas seinte ja lagede lauspahteldus, krunt ja 2x värv.
Tööde võimalik teostamise aeg alates veebruari tesisest nädalast.
Tööde eest tasumine arvete alusel kahes osas.
Lepingu sõlmimisel 25% ning tööde valmimisel/vastuvõtmisel 75%

Hind on arvestatud umbkaudsete rm järgi ja täpsemal ... Rohkem

Kasutaja ikoon ID78355
Pakkuja profiil Väike nool paremale
4 500€ Ei ole KMKR Ei ole KMKR 28.01.2024 Vestlus (0)

Pakkumise kirjeldus:

Tere!

Teeme hea meelega Teie pakutud töö ära. Meil on meeskonnas mitu maalrit, kes Teid meeleldi aitavad!

Pakkumine sisaldab:

Kliendi vajaduste väljaselgitamine
Objekti ettevalmistamine (katmine ja teipimine)
Vuugilintide ja nurkade paigaldus
Pahteldamine ja lihvimine
Kruntimine ja akrüülimine
Värvimine 2x
Meie poolne kvaliteedikontroll ... Rohkem

Kasutaja ikoon ID58844
Pakkuja profiil Väike nool paremale
5 340€ Ei ole KMKR Ei ole KMKR 29.01.2024 Vestlus (0)
Kasutaja ikoon ID24091
Pakkuja profiil Väike nool paremale
5 000€ KM lisandub KM lisandub 29.01.2024 Vestlus (0)
Kasutaja ikoon ID26429
Pakkuja profiil Väike nool paremale
4 200€ KM lisandub KM lisandub 29.01.2024 Vestlus (2)

Pakkumise kirjeldus:

Tere
hind esitatuad kogu projekti maksumusele.
Hõlmab peale seinte ja lagede viimistluse ka akna- uksepalede viimistlust, nurkade paigaldust ja akrüülimist.
Vajaminevad materjalid võime ka ise tuua kohale vastavalt tellija soovile.
Kogemus antud tööde väga pikaajaline.
Tööde anname garantii.
Orienteeruv tööde teostamise aeg 1-1,5 kuud. Sõlt ... Rohkem

Kasutaja ikoon ID79480
Pakkuja profiil Väike nool paremale
1 234€ Sisaldab KM Sisaldab KM 31.01.2024 Vestlus (0)

Pakkumise kirjeldus:

Tere,

14m2.

Parimat,
Birgit

Kasutaja ikoon ID72970
Pakkuja profiil Väike nool paremale
4 900€ Sisaldab KM Sisaldab KM 04.02.2024 Vestlus (0)
Kasutaja ikoon ID42866
Pakkuja profiil Väike nool paremale
2 500€ Ei ole KMKR Ei ole KMKR 09.02.2024 Vestlus (0)

Pakkumise kirjeldus:

Hinnale KM ei lisandu. Hind koos materialidega 3100.
Alustada saab kohe. Tööaeg 2 nadalat.

Kasutaja ikoon ID44917
Pakkuja profiil Väike nool paremale
4 000€ Ei ole KMKR Ei ole KMKR 09.02.2024 Vestlus (0)

Pakkumise kirjeldus:

Pakkumine tehtud 250m2 maalritööle, nagu hankes mainitud täpsemad m2 mõõdetakse objektil üle ja vastavalt muudetakse pakkumist.

Kasutaja ikoon ID56408
Pakkuja profiil Väike nool paremale
500€ Ei ole KMKR Ei ole KMKR 09.02.2024 Vestlus (0)

Pakkumise kirjeldus:

Tere,

Pakkumine Teie hankele
Umbkaudne hind.
Pahteldamine, lihvimine, värvimine 2x - 15.-m2
Paled 10.- jm
Materjal tellija poolt.

Lugupidamisega

Küsimused hanke korraldajale

Küsimus: private ID52293   26.01.2024 22:08
Tere
Tahaks ikka m2

Teavita reeglite rikkumisest

Korraldaja vastus: 27.01.2024 21:13

Joonis mõõtmetega ning lae kõrgus olemas. Vajate abi korrutamisel?

Teavita reeglite rikkumisest

Küsimus: private ID77552   27.01.2024 12:08
Добрый день. Невозможно сделать предложение, незная какой обьем стен. Нужно тогда просить предложение за квадратный метр.

Teavita reeglite rikkumisest

Korraldaja vastus: 27.01.2024 21:13

.

Teavita reeglite rikkumisest

Küsimus: private ID45063   27.01.2024 14:39
Tere!
Missuguseid pahtleid tellija kasutab?
Kas värvitoonid on A või C põhja peal?
Kas põrandaliistud tulevad?
Kas seinavärv läheb laeni välja või jääb valge porte?
Tänan!

Teavita reeglite rikkumisest

Korraldaja vastus: 27.01.2024 21:17

Tere,
Sobivad materjalid, millega maaler on harjunud tegelema.
Värvitoonid selguvad hiljem, ei tohiks omada tähtsust kui värvida on vaja nagunii 2x.
Põrandaliistud tulevad, sellega ei tegele maaler.
Seinavärv ei lähe laeni, jääb valge porte.

Teavita reeglite rikkumisest

Küsimus: private ID54871   07.02.2024 19:47
Tere, ehk oleks võimalik lisada veel mõne pildi trepihallist ja kaares seinaga toa osast.

Teavita reeglite rikkumisest

Korraldaja vastus: 08.02.2024 09:22

Tegelikult trepihalli ei lase hetkel pahteldada ja värvida. Muidu rikutakse ära kui teisel korrusel ehitus käib ning liigutakse seda kaudu.
Kaares seinaga tuba on üleni kipsi all, mis on kaarjalt paigaldatud.

Teavita reeglite rikkumisest

Lisa küsimus

Lisa küsimus

Minu pakkumine

Reeglid

Pakkumise kirjelduse väli on mõeldud pakkumise detailsemaks lahti kirjutamiseks. Pikema teksti mugavaks sisestamiseks klikkige kasti paremal ülaservas oleval ikoonil.
Pakkumist tehes on keelatud postitada enda kontaktandmeid (nimi, telefon, aadress jne). Me jälgime ja analüüsime pakkumisi, et vältida pettuseid ja reeglite rikkumisi.
Rikkumise puhul kasutajakonto blokeeritakse.

 

Vanemad teated:

Vaata kõiki

Sellel veebilehel kasutatakse küpsiseid. Kasutamist jätkates nõustute küpsiste kasutamisega.

Sulge
 
Minu pakkumine

Reeglid

Pakkumise kirjelduse väli on mõeldud pakkumise detailsemaks lahti kirjutamiseks. Pikema teksti mugavaks sisestamiseks klikkige kasti paremal ülaservas oleval ikoonil.
Pakkumist tehes on keelatud postitada enda kontaktandmeid (nimi, telefon, aadress jne). Me jälgime ja analüüsime pakkumisi, et vältida pettuseid ja reeglite rikkumisi.
Rikkumise puhul kasutajakonto blokeeritakse.