+ Lisa oma töö      

Otsid ehitajat "Üldehitus" valdkonnast?

Parima pakkumise ja teostaja leidmiseks lisa oma töö.

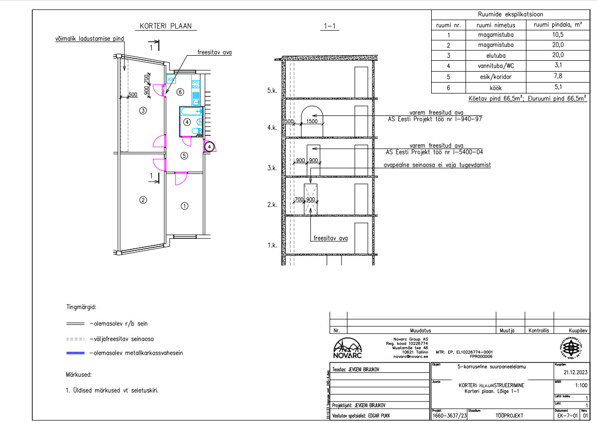
Ukseava lõikamine betoonseina

ID 89390

782 vaatamist

Prindi

  • check Pakkumiste tegemine
    kuni 24.01.2024
  • check Võitja valik kuni
    31.01.2024
  • 3 Töö teostamine
    ja hinnang
Hanke lõpp: K, 24. jaanuar, 2024
Maakond: Harjumaa
Linn: Tallinn
Tööde algus: E, 29. jaanuar, 2024 (Soovituslik)
Tööde lõpp: E, 29. jaanuar, 2024 (Soovituslik)
Ehitusmaterjalid: Töö tellija poolt
Soovin pakkumisi: Summa kogu projektile

Töö sisu

1.Enne ava freesimist kindlaks teha elektrijuhtmete asukohad freesitavas seinas. Läbilõigatavad juhtmed vooluvõrgust lahti ühendada.
2.Ava lõikamisel tuleb kasutada vibratsioonivaba tehnoloogiat (teemantsaagimine) ja minimeerida naaberkorteritesse ja koridori kanduvat müra ja tolmu. Freesimistöid võib teostada ehitusettevõte mis omab vastavat registreeringut Majandustegevuse Registris.
3. Väljafreesitavad seinaosad tuleb freesida mitte suuremate kui ~50x50cm tükkidena. Tükid koheselt välja vedada või ajutiselt ladustada võimalikult seina äärde plaanil näidatud piirkonda, mitte üle 2 tüki üksteise peale.
4. Ehitusobjektil tagada ehituse käigus tekkivate jäätmete liigiti kogumine ja üle andmine vastavat jäätmekäitlusluba omavale vedajale.

Tööülesanne on järgmine:
Lõigata ukseava Tallinnas, Mustamäel. Korteris köögi ja elutoa vahelisse betoonseina.
Betoonitükid ära viia (2. korrus) ja utiliseerida
Ava mõõdud:
Kõrgus: 2100mm
Laius: 900mm
Betooni paksus: 135mm

Projekt olemas, Ehitusteatis on kantud Ehitisregistrisse. Võib ehitada vastavalt ehitusprojektile. Olmeas Tallinna Linnaplaneerimise Ameti väljastatud luba.

Pildid, video ja failid

Hanke korraldaja: eraisik ID78988

Pakkumised

Pakkumisi kokku: 3

Ettevõte Summa Käibemaks Lisatud Vestlus
Kasutaja ikoon ID77775
Pakkuja profiil Väike nool paremale
520€ Sisaldab KM Sisaldab KM 22.01.2024 Vestlus (3)

Pakkumise kirjeldus:

Hind pakutud tööle.
Saame alustada kohe kui teile sobib.

Kasutaja ikoon ID70306
Pakkuja profiil Väike nool paremale
1 100€ Sisaldab KM Sisaldab KM 22.01.2024 Vestlus (0)

Pakkumise kirjeldus:

sisaldab lõikust ja utiliseerimist.Töö kiire ja korralik.

Kasutaja ikoon ID70252
Pakkuja profiil Väike nool paremale
800€ KM lisandub KM lisandub 23.01.2024 Vestlus (0)

Pakkumise kirjeldus:

Tere.
Hind sisaldab ukseava sisselõikamist ja utiliseerimist.
Tööaeg 1 päev.
Tegeleme igapäevaselt selliste töödega ja tagame kiire ja kvaliteetse tulemuse.
Tehtud tööde piltide alt näete analoogseid töid.

Parimat,Rasmus.

Küsimused hanke korraldajale

Küsimus: private ID46684   23.01.2024 08:24
Kas korteris käib üldremont või elatakse sees ja vaja katta kiledega?

Teavita reeglite rikkumisest

Korraldaja vastus: 23.01.2024 10:23

Korteris käib remont ja elatakse sees. Kilega saame ise katta.

Teavita reeglite rikkumisest

Lisa küsimus

Lisa küsimus

Minu pakkumine

Reeglid

Pakkumise kirjelduse väli on mõeldud pakkumise detailsemaks lahti kirjutamiseks. Pikema teksti mugavaks sisestamiseks klikkige kasti paremal ülaservas oleval ikoonil.
Pakkumist tehes on keelatud postitada enda kontaktandmeid (nimi, telefon, aadress jne). Me jälgime ja analüüsime pakkumisi, et vältida pettuseid ja reeglite rikkumisi.
Rikkumise puhul kasutajakonto blokeeritakse.

 

Teisi töid samas valdkonnas

Valdkonnas "Üldehitus" on 36 aktiivset tööd

Kuuri lammutus

Asukoht: Harjumaa, Kangru
Aega jäänud: 2p 11h
Tehtud pakkumisi: 9

Terrass ehitus3×2m aiamaja ette ja kõrvale

Asukoht: Harjumaa, Keila-Joa
Aega jäänud: 11h 37 min
Tehtud pakkumisi: 5

Vanemad teated:

Vaata kõiki

Sellel veebilehel kasutatakse küpsiseid. Kasutamist jätkates nõustute küpsiste kasutamisega.

Sulge
 
Minu pakkumine

Reeglid

Pakkumise kirjelduse väli on mõeldud pakkumise detailsemaks lahti kirjutamiseks. Pikema teksti mugavaks sisestamiseks klikkige kasti paremal ülaservas oleval ikoonil.
Pakkumist tehes on keelatud postitada enda kontaktandmeid (nimi, telefon, aadress jne). Me jälgime ja analüüsime pakkumisi, et vältida pettuseid ja reeglite rikkumisi.
Rikkumise puhul kasutajakonto blokeeritakse.