+ Lisa oma töö      

Otsid ehitajat "Plaatimistööd" valdkonnast?

Parima pakkumise ja teostaja leidmiseks lisa oma töö.

Plaaditööd

ID 89321

567 vaatamist

Prindi

  • check Pakkumiste tegemine
    kuni 25.01.2024
  • check Võitja valik kuni
    01.02.2024
  • 3 Töö teostamine
    ja hinnang
Hanke lõpp: N, 25. jaanuar, 2024
Maakond: Harjumaa
Muu asula: Hüüru
Tööde algus: L, 27. jaanuar, 2024 (Soovituslik)
Tööde lõpp: P, 11. veebruar, 2024 (Soovituslik)
Ehitusmaterjalid: Töö tegija poolt
Soovin pakkumisi: Tüki- või ühikuhinda

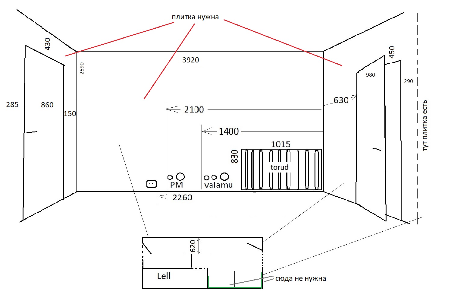
Töö sisu

Tere,
Meil on vaja teha platimistöid.
2 WC-t + köök
1.
3 seina, värvitud: 6,87+ 3,96 + 6,87 r.m. = 17,7 m2
põrand 4.01 m2 , vanade plaatide eemaldamine põrandalt ja uute paigaldamine.
Kokku 21,71 m2.

2.
Ainult seinad, värvitud, kokku umbes 15 m2

3.
Seina paneel köögis 700x3000 mm , nüüd sein on värvitud.

Objekt asub Hüürus, Saue vald.
Palun anda hinda iga osa kohta eraldi.
Plaadid ostame ise. ülejäänud materjalid on teie.

Pildid, video ja failid

Hanke korraldaja: eraisik ID79196

Pakkumised

Pakkumisi kokku: 11

Ettevõte Summa Käibemaks Lisatud Vestlus
Kasutaja ikoon ID48936
Pakkuja profiil Väike nool paremale
3 500€ Ei ole KMKR Ei ole KMKR 18.01.2024 Vestlus (0)

Pakkumise kirjeldus:

Tere
Pakkumine tehtud vastavalt hankes olevale kirjeldusele.
Head

Kasutaja ikoon ID52293
Pakkuja profiil Väike nool paremale
3 000€ Sisaldab KM Sisaldab KM 18.01.2024 Vestlus (0)

Pakkumise kirjeldus:

Tere
Juhul kui soovite meid valida hanke võitjaks peaks eelnevalt kokku leppima makse tingimustes
Tänud

Kasutaja ikoon ID77106
Pakkuja profiil Väike nool paremale
1 600€ Ei ole KMKR Ei ole KMKR 18.01.2024 Vestlus (0)

Pakkumise kirjeldus:

Tahaks rääkida telijaga,olemas mittu küsimused

Kasutaja ikoon ID32172
Pakkuja profiil Väike nool paremale
3 500€ Sisaldab KM Sisaldab KM 19.01.2024 Vestlus (0)

Pakkumise kirjeldus:

Tere,
Pakkumine vastavalt hankes kirjeldatule.

Kasutaja ikoon ID49185
Pakkuja profiil Väike nool paremale
3 000€ Sisaldab KM Sisaldab KM 19.01.2024 Vestlus (0)
Kasutaja ikoon ID72885
Pakkuja profiil Väike nool paremale
2 750€ Ei ole KMKR Ei ole KMKR 21.01.2024 Vestlus (0)
Kasutaja ikoon ID36489
Pakkuja profiil Väike nool paremale
1 100€ KM lisandub KM lisandub 22.01.2024 Vestlus (0)
Kasutaja ikoon ID79298
Pakkuja profiil Väike nool paremale
12 000€ KM lisandub KM lisandub 23.01.2024 Vestlus (0)
Kasutaja ikoon ID33951
Pakkuja profiil Väike nool paremale
1 600€ KM lisandub KM lisandub 24.01.2024 Vestlus (0)
Kasutaja ikoon ID56408
Pakkuja profiil Väike nool paremale
1 000€ Ei ole KMKR Ei ole KMKR 25.01.2024 Vestlus (0)

Pakkumise kirjeldus:

Tere,

Pakkumine Teie hankele
Pakkun mikrotsementi paigaldamist 85.- m2 koos materjaliga.
Ootan küsimusi vestluses.

Lugupidamisega

Kasutaja ikoon ID69091
Pakkuja profiil Väike nool paremale
1 050€ Ei ole KMKR Ei ole KMKR 25.01.2024 Vestlus (0)

Pakkumise kirjeldus:

Tere
Hind tööle milles siis vanade plaatide eemaldus + aluspinna uus hüdro ja uute plaatide paigaldus ja sellega kõik kaasnevad tööd. Minu poolt võimalik ka, et toon segud ja plaatimiseks kõik vajaliku ja pärast saab tšeki alusel ära klaarida.
Töö aaks ette võtta esimesel võimaluse!
Räägitav ka vanade plaatide utiliseerimine. Kui on küsi ... Rohkem

Küsimused hanke korraldajale

Hanke korraldajale ei ole veel küsimusi esitatud.

Lisa küsimus

Lisa küsimus

Minu pakkumine

Reeglid

Pakkumise kirjelduse väli on mõeldud pakkumise detailsemaks lahti kirjutamiseks. Pikema teksti mugavaks sisestamiseks klikkige kasti paremal ülaservas oleval ikoonil.
Pakkumist tehes on keelatud postitada enda kontaktandmeid (nimi, telefon, aadress jne). Me jälgime ja analüüsime pakkumisi, et vältida pettuseid ja reeglite rikkumisi.
Rikkumise puhul kasutajakonto blokeeritakse.

 

Teisi töid samas valdkonnas

Valdkonnas "Plaatimistööd" on 2 aktiivset tööd

Trepikoja plaatimine

Asukoht: Tartumaa, Ülenurme
Aega jäänud: 4p 21h
Tehtud pakkumisi: 2

Pesuruumi plaatimine 12.6 m2

Asukoht: Tartumaa, Teedla
Aega jäänud: 1p 21h
Tehtud pakkumisi: 0

Vanemad teated:

Vaata kõiki

Sellel veebilehel kasutatakse küpsiseid. Kasutamist jätkates nõustute küpsiste kasutamisega.

Sulge
 
Minu pakkumine

Reeglid

Pakkumise kirjelduse väli on mõeldud pakkumise detailsemaks lahti kirjutamiseks. Pikema teksti mugavaks sisestamiseks klikkige kasti paremal ülaservas oleval ikoonil.
Pakkumist tehes on keelatud postitada enda kontaktandmeid (nimi, telefon, aadress jne). Me jälgime ja analüüsime pakkumisi, et vältida pettuseid ja reeglite rikkumisi.
Rikkumise puhul kasutajakonto blokeeritakse.