+ Lisa oma töö      

Otsid ehitajat "Üldehitus" valdkonnast?

Parima pakkumise ja teostaja leidmiseks lisa oma töö.

Hange on lõppenud!

Võitjaks osutus kasutaja ID 61081

Korraldaja hinnang tehtud tööle

5.0
06.05.2024
Töökiirus: 12345
Kvaliteet: 12345
Hind: 12345

Töö kiire ja rahul tulemusega - Ain R.

Näita pilte (2) Peida pildid

Enne:

Pärast:

  • 434899108_449124204269399_5884851968442342337_n.jpg
  • 435631996_1601178124065689_1889458165479320663_n.jpg

Garaaži ehitamine

ID 89301

2709 vaatamist

Prindi

  • check Pakkumiste tegemine
    kuni 16.02.2024
  • check Võitja valik kuni
    23.02.2024
  • 3 Töö teostamine
    ja hinnang
Hanke lõpp: R, 16. veebruar, 2024
Maakond: Pärnumaa
Tööde algus: K, 01. mai, 2024 (Soovituslik)
Tööde lõpp: P, 30. juuni, 2024 (Soovituslik)
Ehitusmaterjalid: Töö tellija poolt
Soovin pakkumisi: Summa kogu projektile

Töö sisu

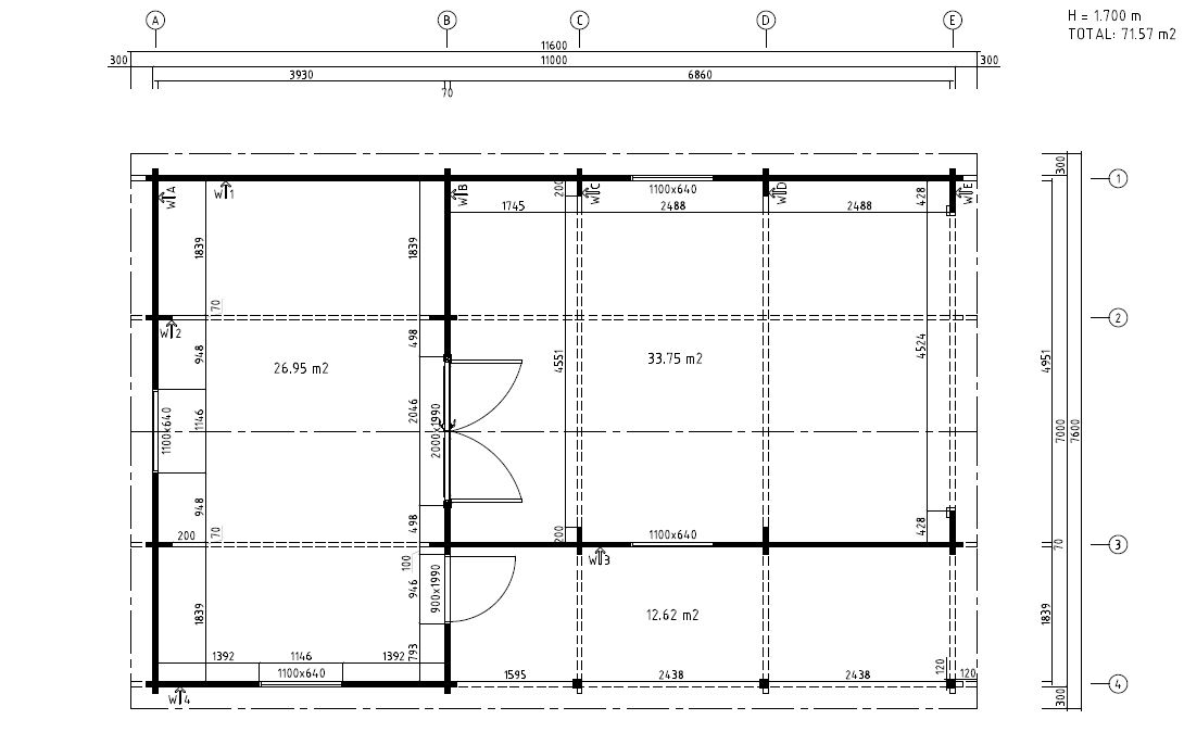
Garaaži ehitamine, katus tuleb lainelise kiudplaadiga ehk "eterniit"

Pildid, video ja failid

Hanke korraldaja: eraisik ID32398

Pakkumised

Pakkumisi kokku: 11

Ettevõte Summa Käibemaks Lisatud Vestlus
Kasutaja ikoon ID78749
Pakkuja profiil Väike nool paremale
23 000€ Sisaldab KM Sisaldab KM 18.01.2024 Vestlus (0)
Kasutaja ikoon ID57790
Pakkuja profiil Väike nool paremale
6 200€ Sisaldab KM Sisaldab KM 18.01.2024 Vestlus (5)

Pakkumise kirjeldus:

Garaazhi puitosa püstitus ja eterniitkatuse paigaldus tellija materjalidega.

Kasutaja ikoon ID71474
Pakkuja profiil Väike nool paremale
1 264€ Sisaldab KM Sisaldab KM 19.01.2024 Vestlus (0)

Pakkumise kirjeldus:

Tere

Pakkumine sisaldab hankes näidatud garaaži ehitust koos katuse paigaldusega. Soovi korral lisatasu eest ka töötlemine puidukaitsevahendiga / värvimine.

Kogemustega töömees ja tulemus alati kvaliteetne.

Parimatega
Mihkel

Kasutaja ikoon ID37803
Pakkuja profiil Väike nool paremale
3 500€ KM lisandub KM lisandub 25.01.2024 Vestlus (0)

Pakkumise kirjeldus:

Pakkumine sisaldab garaaži puitosa ehitust ja katuse paigaldust

Kasutaja ikoon ID61081
Pakkuja profiil Väike nool paremale
3 200€ KM lisandub KM lisandub 03.02.2024 Vestlus (7)

Pakkumise kirjeldus:

Tere.

Hinnapakkumine vastavalt töö sisule.

Kasutaja ikoon ID58894
Pakkuja profiil Väike nool paremale
5 800€ Sisaldab KM Sisaldab KM 03.02.2024 Vestlus (0)

Pakkumise kirjeldus:

Tere päevast,

Minu hinnapakkumine on tehtud teiepoolt kirjeldatud tööde mahule ja projekti ülesandele.

1. Puitmaja paigaldus koos katuse materjaliga.
2. Värvimine viimistlus.
3. Saab teostada võtmed kätte projekte koos lisatöödega.

Kui teil on tekkinud minu pakkumisega seoses küsimusi siis vastan teile meeleldi.
Teie olete maja peremee ... Rohkem

Kasutaja ikoon ID65365
Pakkuja profiil Väike nool paremale
3 890€ Sisaldab KM Sisaldab KM 05.02.2024 Vestlus (0)
Kasutaja ikoon ID58217
Pakkuja profiil Väike nool paremale
4 300€ Sisaldab KM Sisaldab KM 11.02.2024 Vestlus (0)

Pakkumise kirjeldus:

Tere!

Pakkumine koostatud tehases toodetud garaaži paigalduse töödele ilma materjalideta.

Lugupidamisega,
S

Kasutaja ikoon ID27299
Pakkuja profiil Väike nool paremale
3 400€ Ei ole KMKR Ei ole KMKR 16.02.2024 Vestlus (0)

Pakkumise kirjeldus:

Tere.
Hind ainult tööle. Kogu materjal ja kinnitusvahendid, ning transport objektile tellijalt. Materjaliks siis 45x95x4200 prussid 34 tk + samapalju tuulutus latti. Aluskatet ca kaks rulli. Edasisega suurem probleem. Mina seda kiudplaati ei paneks. Praktika näitab selle eluiga väga lühikesena.

Kasutaja ikoon ID60028
Pakkuja profiil Väike nool paremale
3 480€ Ei ole KMKR Ei ole KMKR 16.02.2024 Vestlus (0)

Pakkumise kirjeldus:

Tere, pakkumine küsitud tööle,
Lugupidamisega, Andrus

Kasutaja ikoon ID50594
Pakkuja profiil Väike nool paremale
9 800€ KM lisandub KM lisandub 16.02.2024 Vestlus (0)

Pakkumise kirjeldus:

Tere,

Pakkumine vastavalt hanke kirjeldusele.

Lgp. Taivo

Küsimused hanke korraldajale

Küsimus: private ID27299   17.01.2024 22:15
Tere!
Mis tehase toode on?

Teavita reeglite rikkumisest

Korraldaja vastus: 20.01.2024 15:18

Astel

Teavita reeglite rikkumisest

Küsimus: private ID76534   18.01.2024 07:24
Tervist!

Kas majale vundament on ennem paigaldust tehtud või tuleb vundamendi teostamine töötegija poolt? Milline vundamendi lahenduse garaazile paika olete pannud?

Parimat

Teavita reeglite rikkumisest

Korraldaja vastus: 18.01.2024 10:18

Tere
Vundament on tehtud, kevadeks jäi põrandavalu vaid. See töö on eraldi hankes

Teavita reeglite rikkumisest

Küsimus: private ID58848   13.02.2024 12:39
Tere,

Palun täpsustada: Vundament tehtud, kevadeks jääb põrandavalu? Kas tegu on lintvundamendiga ja kevadel valatakse seest täis? Kas see tehakse enne garaazi ehituse algust?

Kas hange on ainult garaaži kokku panemisele koos katusega või lisanduvad ka muud tööd?
Räästakasti ehitus, vihmavee süsteem. Akende uste paigaldus?
Kuna tegemist on nö tehases toodetud valmis asjaga, siis kas materjalid on juba objektil või kui ei siis tuleks jälgida ladustamise järjekorda, et mitte hulluks hiljem lapata neid pakke.

Teavita reeglite rikkumisest

Korraldaja vastus: 13.02.2024 21:58

Loomulikult enne garaazi ehitamist tehakse valutööd.Katuse kohta on kirjutatud ja kõik näha joonistes mis tuleb teha. Ainult mida joonistes pole on garaazi peauks ja vihmavee rennid ja torud...

Teavita reeglite rikkumisest

Küsimus: private ID58848   14.02.2024 14:55
Kas katusele tuleb ka aluskate (oleks mõistlik), roovitus? Mis mõõduga tuleb eterniit? Kui kaugel Pärnust?

Teavita reeglite rikkumisest

Korraldaja vastus: 14.02.2024 20:11

Ehitada katust võib ehk tõesti erinevalt, kuid minu garaazi katus tehakse ehitusnõuete kohaselt.

Teavita reeglite rikkumisest

Lisa küsimus

Lisa küsimus

Minu pakkumine

Reeglid

Pakkumise kirjelduse väli on mõeldud pakkumise detailsemaks lahti kirjutamiseks. Pikema teksti mugavaks sisestamiseks klikkige kasti paremal ülaservas oleval ikoonil.
Pakkumist tehes on keelatud postitada enda kontaktandmeid (nimi, telefon, aadress jne). Me jälgime ja analüüsime pakkumisi, et vältida pettuseid ja reeglite rikkumisi.
Rikkumise puhul kasutajakonto blokeeritakse.

 

Teisi töid samas valdkonnas

Valdkonnas "Üldehitus" on 27 aktiivset tööd

Terassi õlitamine, 13,7 ruutu

Asukoht: Harjumaa, Saue
Aega jäänud: 5p 20h
Tehtud pakkumisi: 4

Eramaja ehitus

Asukoht: Harjumaa, Suurupi
Aega jäänud: 4p 20h
Tehtud pakkumisi: 4

Vanemad teated:

Vaata kõiki

Sellel veebilehel kasutatakse küpsiseid. Kasutamist jätkates nõustute küpsiste kasutamisega.

Sulge
 
Minu pakkumine

Reeglid

Pakkumise kirjelduse väli on mõeldud pakkumise detailsemaks lahti kirjutamiseks. Pikema teksti mugavaks sisestamiseks klikkige kasti paremal ülaservas oleval ikoonil.
Pakkumist tehes on keelatud postitada enda kontaktandmeid (nimi, telefon, aadress jne). Me jälgime ja analüüsime pakkumisi, et vältida pettuseid ja reeglite rikkumisi.
Rikkumise puhul kasutajakonto blokeeritakse.