+ Lisa oma töö      

Otsid ehitajat "Siseviimistlustööd" valdkonnast?

Parima pakkumise ja teostaja leidmiseks lisa oma töö.

Vannitoa remont

ID 89007

670 vaatamist

Prindi

  • check Pakkumiste tegemine
    kuni 11.01.2024
  • check Võitja valik kuni
    18.01.2024
  • 3 Töö teostamine
    ja hinnang
Hanke lõpp: N, 11. jaanuar, 2024
Maakond: Tartumaa
Tööde algus: K, 10. jaanuar, 2024 (Soovituslik)
Tööde lõpp: K, 24. jaanuar, 2024 (Soovituslik)
Ehitusmaterjalid: Töö tegija poolt
Soovin pakkumisi: Summa kogu projektile

Töö sisu

Üldinfo:
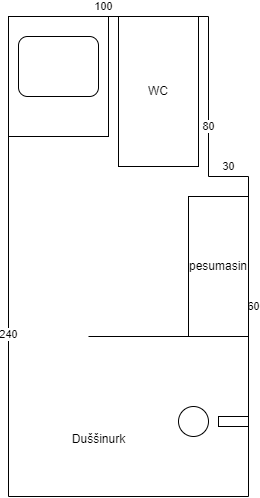
soov teha vannitoas remonti. Vannituba on juba kokkuehitatud wc-ga. Soov paigladada seinale kinnitatav wc-pott, kraanikausi asukoht muuta, põrandaküte lisada, uus duššinurk, plaatimine. Duššinurgaks on sein - arvan, et põrandat tuleks äkki tõsta natukene, et soovitud kalle saada

Vannitoa remont. Mõõdud ~130x240 cm, kõrgus 220cm. Vannituppa on toodud elekter(põrandaküte, pesumasin jms)
Korter asub 5dal korrusel. Majas pole lifti.

Tekkinud ehitusprahi tuleks utiliseerida.
Omalt poolt on olemas järgnevad materjalid:
* põranda- ja seinaplaadid
* kraanikauss
* wc-pott
* segisti ja duššinurk

Pildid, video ja failid

Hanke korraldaja: eraisik ID63169

Pakkumised

Pakkumisi kokku: 10

Ettevõte Summa Käibemaks Lisatud Vestlus
Kasutaja ikoon ID76526
Pakkuja profiil Väike nool paremale
6 400€ Ei ole KMKR Ei ole KMKR 05.01.2024 Vestlus (0)

Pakkumise kirjeldus:

Tere
Pakkumine kirjeldatud töödele ja vajalikele lisamaterjalidele.

Parimat.

Kasutaja ikoon ID78749
Pakkuja profiil Väike nool paremale
8 500€ Sisaldab KM Sisaldab KM 05.01.2024 Vestlus (0)
Kasutaja ikoon ID57450
Pakkuja profiil Väike nool paremale
5 900€ KM lisandub KM lisandub 05.01.2024 Vestlus (0)

Pakkumise kirjeldus:

Hind vastavalt lähteülesandele.
Sobivusel võtke ühendust, tuleme läbi ning koostame detailse pakkumise.
Edukat hanget!

Kasutaja ikoon ID63801
Pakkuja profiil Väike nool paremale
6 200€ KM lisandub KM lisandub 05.01.2024 Vestlus (0)

Pakkumise kirjeldus:

Tegemist on töörahaga ja seal sees on ka üldehitusmaterjalid
arvega lisandub ka KM.

Kasutaja ikoon ID27299
Pakkuja profiil Väike nool paremale
2 900€ Ei ole KMKR Ei ole KMKR 06.01.2024 Vestlus (0)
Kasutaja ikoon ID74103
Pakkuja profiil Väike nool paremale
6 500€ KM lisandub KM lisandub 06.01.2024 Vestlus (0)

Pakkumise kirjeldus:

Hind sisaldab hankes mainitud töid ning puuduvaid materjale.

Kasutaja ikoon ID68782
Pakkuja profiil Väike nool paremale
6 000€ Sisaldab KM Sisaldab KM 07.01.2024 Vestlus (0)
Kasutaja ikoon ID77359
Pakkuja profiil Väike nool paremale
1 800€ Sisaldab KM Sisaldab KM 07.01.2024 Vestlus (0)
Kasutaja ikoon ID77777
Pakkuja profiil Väike nool paremale
6 000€ Ei ole KMKR Ei ole KMKR 08.01.2024 Vestlus (0)
Kasutaja ikoon ID70453
Pakkuja profiil Väike nool paremale
4 500€ Sisaldab KM Sisaldab KM 10.01.2024 Vestlus (0)

Küsimused hanke korraldajale

Küsimus: private ID77777   07.01.2024 14:30
Tere kas hetkeolukorrast saaks pilti? Lage ei ole vaja teha?

Teavita reeglite rikkumisest

Korraldaja vastus: 07.01.2024 17:31

Tere,

lisasin pildid.
Lagi võiks ikka tehtud olla.. vähemalt selline lahendus nagu hetkel on: mingid paneelid liistude peal. Lae kohta ei ole mul lihtsalt mingeid nõudmisi

Teavita reeglite rikkumisest

Lisa küsimus

Lisa küsimus

Minu pakkumine

Reeglid

Pakkumise kirjelduse väli on mõeldud pakkumise detailsemaks lahti kirjutamiseks. Pikema teksti mugavaks sisestamiseks klikkige kasti paremal ülaservas oleval ikoonil.
Pakkumist tehes on keelatud postitada enda kontaktandmeid (nimi, telefon, aadress jne). Me jälgime ja analüüsime pakkumisi, et vältida pettuseid ja reeglite rikkumisi.
Rikkumise puhul kasutajakonto blokeeritakse.

 

Teisi töid samas valdkonnas

Valdkonnas "Siseviimistlustööd" on 23 aktiivset tööd

Seinte värvimine

Asukoht: Harjumaa, Tallinn
Aega jäänud: 2h 56 min
Tehtud pakkumisi: 7

Seinte pahteldus ja värvimine

Asukoht: Harjumaa, Türisalu
Aega jäänud: 3p 2h
Tehtud pakkumisi: 7

Vanemad teated:

Vaata kõiki

Sellel veebilehel kasutatakse küpsiseid. Kasutamist jätkates nõustute küpsiste kasutamisega.

Sulge
 
Minu pakkumine

Reeglid

Pakkumise kirjelduse väli on mõeldud pakkumise detailsemaks lahti kirjutamiseks. Pikema teksti mugavaks sisestamiseks klikkige kasti paremal ülaservas oleval ikoonil.
Pakkumist tehes on keelatud postitada enda kontaktandmeid (nimi, telefon, aadress jne). Me jälgime ja analüüsime pakkumisi, et vältida pettuseid ja reeglite rikkumisi.
Rikkumise puhul kasutajakonto blokeeritakse.