+ Lisa oma töö      

Otsid ehitajat "Üldehitus" valdkonnast?

Parima pakkumise ja teostaja leidmiseks lisa oma töö.

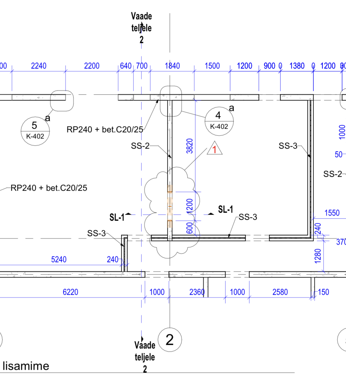
Ukseava kandvasse seina

ID 88951

781 vaatamist

Prindi

  • check Pakkumiste tegemine
    kuni 05.01.2024
  • check Võitja valik kuni
    12.01.2024
  • 3 Töö teostamine
    ja hinnang
Hanke lõpp: R, 5. jaanuar, 2024
Maakond: Tartumaa
Linn: Tartu
Tööde algus: E, 08. jaanuar, 2024 (Soovituslik)
Tööde lõpp: K, 10. jaanuar, 2024 (Soovituslik)
Ehitusmaterjalid: Töö tellija poolt
Soovin pakkumisi: Summa kogu projektile

Pildid, video ja failid

Hanke korraldaja: eraisik ID78890

Pakkumised

Pakkumisi kokku: 4

Ettevõte Summa Käibemaks Lisatud Vestlus
Kasutaja ikoon ID57450
Pakkuja profiil Väike nool paremale
4 700€ KM lisandub KM lisandub 04.01.2024 Vestlus (0)

Pakkumise kirjeldus:

Hind vastavalt lähteülesandele.
Sobivuse korral võtke ühendust, tuleme läbi ja koostame detailse pakkumise.
Edukat hanget!

Kasutaja ikoon ID70252
Pakkuja profiil Väike nool paremale
1 950€ KM lisandub KM lisandub 04.01.2024 Vestlus (0)

Pakkumise kirjeldus:

Tere.

Pakkumine sisaldab;
Põrandate ja teiste ruumide kinnikatmist.
Terastalasid ja kõiki kinnitusvahendeid.
Terastalade ettevalmistust.
Ava sisselõikamist ja utiliseerimist.
Betoneerimistöid.
Hind ei sisalda viimistlustöid.
Küsimuste korral võite võtta ühendust,minu kontaktid on avatud ja sealt näete ka tehtud tööde pilte.


Parimat ... Rohkem

Kasutaja ikoon ID73206
Pakkuja profiil Väike nool paremale
2 400€ KM lisandub KM lisandub 04.01.2024 Vestlus (0)

Pakkumise kirjeldus:

Tere

Hind sisaldab
1. Ava lõikamist koos betoneerimisega
2. Kinnikatmist ,et kaitsta ruume vee ja tolmu eest
3. Prahi utiliseerimist
4. Võrgu paigaldust ,et saaks krohvida
5. Hind ei sisalda viimistlust

Parimat!

Kasutaja ikoon ID38400
Pakkuja profiil Väike nool paremale
2 700€ Sisaldab KM Sisaldab KM 05.01.2024 Vestlus (1)

Pakkumise kirjeldus:

Tere,

hankes nimetatud tööde teostamine. Küsimuste korral võtke julgesti vestlusaknas ühendust. Võimalik, et saame ka natuke odavamalt selle töö tehtud. Oleme Tartu ettevõte, saame Teile hea hinna teha.

Mainin ka igaksjuhuks ära, et seda tööd ei ole õigesti tehes võimalik 2 päevaga teha. Toestamine ja esialgsete lõigete tegemine, talad ... Rohkem

Küsimused hanke korraldajale

Küsimus: private ID78092   02.01.2024 21:22
Tere

Kas tegu on columbia kivi seinaga? Kas sein on ka betoneeritud/täis valatud?

Lugupidamisega
Margus

Teavita reeglite rikkumisest

Korraldaja vastus: 03.01.2024 07:54

Tere!

Jaa, meie teada peaks ka just nii olema.

Parimate soovidega,
Kerttu

Teavita reeglite rikkumisest

Küsimus: private ID70252   03.01.2024 14:18
Tere.

Kas objekt on ehitusjärgus?
Mitmes korrus?


Lugupidamisega,
Rasmus.

Teavita reeglite rikkumisest

Korraldaja vastus: 03.01.2024 14:35

Maja valmis 2017 aastal. Majal on 3 korrust+ kelder. Korterid mida ühendada soovime on maja 1 korrusel.

Parimat,
Kerttu

Teavita reeglite rikkumisest

Küsimus: private ID70252   03.01.2024 15:12
Ehk siis tuleks kinni katta põrandad ja ruumid kuhu tolm ja vesi minna ei tohiks?



Lugupidamisega,
Rasmus.

Teavita reeglite rikkumisest

Korraldaja vastus: 03.01.2024 15:17

Tõenäoliselt küll.

Parimat,
Kerttu

Teavita reeglite rikkumisest

Küsimus: private ID55689   04.01.2024 09:15
Kas mitte kahe U -raua asemel mida tuleb poltida ja keevitada , paigaldada nn. topelt T raud ? kas projekteerija sellise võimaluse välistas ? Saan aru ,et projekteerijal olid kindlasti selle lahenduse projekteerimisel veenvad argumendid aga lihtsalt infoks küsiks , kas nn. topelt T raud olnuks ka alternatiiviks?

Teavita reeglite rikkumisest

Korraldaja vastus:
Hanke korraldaja ei ole küsimusele veel vastanud

Küsimus: private ID55689   04.01.2024 09:16
Lisan veel eelmisele postitusele,et sed rauda nimetatakse ka H rauaks.

Teavita reeglite rikkumisest

Korraldaja vastus: 04.01.2024 09:32

Tere!

Saan aru, et olete teemaga kursis ja omate kogemusi. Ma ise pole pädev sellele vastama. Arvan, et kui tööde teostaja seda ka vajalikuks peab, saab projekteerijaga konsulteerida. Projektimuudatuse on koostanud sama inimene, kes on selle maja algselt projekteerinud.

Parimat,
Kerttu

Teavita reeglite rikkumisest

Lisa küsimus

Lisa küsimus

Minu pakkumine

Reeglid

Pakkumise kirjelduse väli on mõeldud pakkumise detailsemaks lahti kirjutamiseks. Pikema teksti mugavaks sisestamiseks klikkige kasti paremal ülaservas oleval ikoonil.
Pakkumist tehes on keelatud postitada enda kontaktandmeid (nimi, telefon, aadress jne). Me jälgime ja analüüsime pakkumisi, et vältida pettuseid ja reeglite rikkumisi.
Rikkumise puhul kasutajakonto blokeeritakse.

 

Teisi töid samas valdkonnas

Valdkonnas "Üldehitus" on 30 aktiivset tööd

Kuuri lammutus

Asukoht: Pärnumaa
Aega jäänud: 2p 19h
Tehtud pakkumisi: 6

Põrandakütte torustiku ja kollektori paigaldus.

Asukoht: Harjumaa, Kurkse
Aega jäänud: 15p 19h
Tehtud pakkumisi: 4

Vanemad teated:

Vaata kõiki

Sellel veebilehel kasutatakse küpsiseid. Kasutamist jätkates nõustute küpsiste kasutamisega.

Sulge
 
Minu pakkumine

Reeglid

Pakkumise kirjelduse väli on mõeldud pakkumise detailsemaks lahti kirjutamiseks. Pikema teksti mugavaks sisestamiseks klikkige kasti paremal ülaservas oleval ikoonil.
Pakkumist tehes on keelatud postitada enda kontaktandmeid (nimi, telefon, aadress jne). Me jälgime ja analüüsime pakkumisi, et vältida pettuseid ja reeglite rikkumisi.
Rikkumise puhul kasutajakonto blokeeritakse.