+ Lisa oma töö      

Otsid ehitajat "Üldehitus" valdkonnast?

Parima pakkumise ja teostaja leidmiseks lisa oma töö.

Köögi ümberehitus elutuppa

ID 88904

1256 vaatamist

Prindi

  • check Pakkumiste tegemine
    kuni 11.01.2024
  • check Võitja valik kuni
    18.01.2024
  • 3 Töö teostamine
    ja hinnang
Hanke lõpp: N, 11. jaanuar, 2024
Maakond: Harjumaa
Linn: Tallinn
Tööde algus: E, 15. jaanuar, 2024 (Soovituslik)
Tööde lõpp: N, 15. veebruar, 2024 (Soovituslik)
Ehitusmaterjalid: Töö tegija poolt
Soovin pakkumisi: Summa kogu projektile

Töö sisu

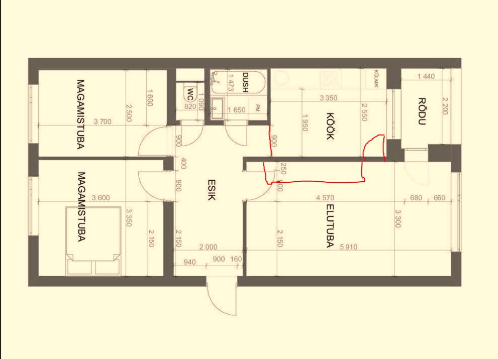
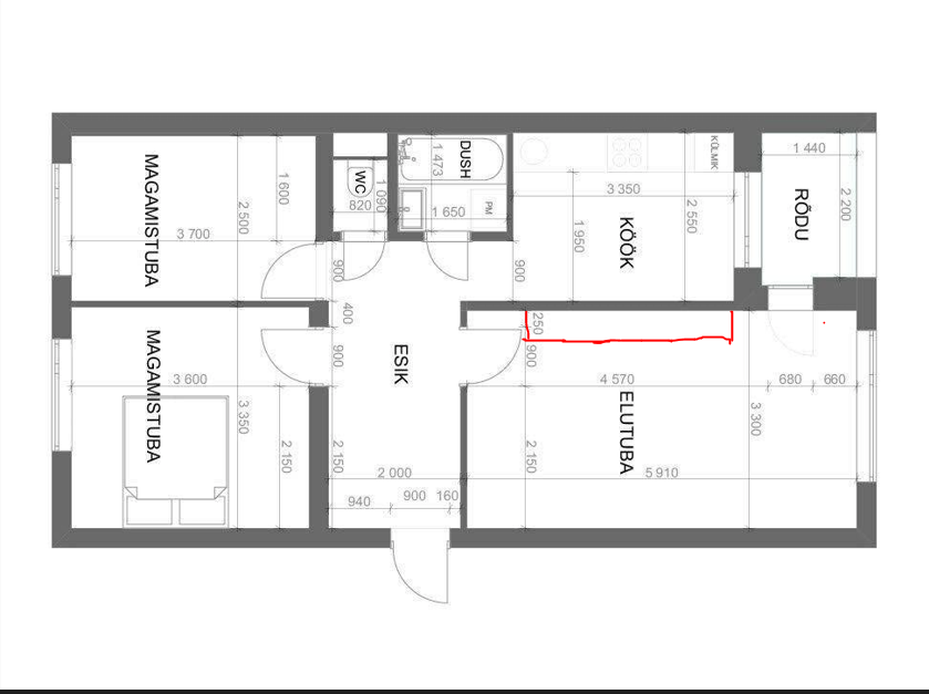
Soov 3-toalises korteris teha köögist tuba ja köök tuua elutuppa.
Korter asub esimesel korrusel ja soov oleks ühistu nõusolekul äravoolutorud vedada keldri kaudu. Ühistu nõusolekut on vaja, kuid enne oleks vaja teada, kui suur töö see on ja kui paljusid see torude vedamine keldrist mõjutab. See on esmane soov köögi ümber tõstmiseks. Ehk on kogemusi kellegi.
Vajalikud tööd:
Ümberplaneeringu projekt, kui vajalik
Torutööd - äravool ja veetorud elutuppa
Kui vaja elektritööd - elektril kasutatavatele köögiseadmetele ( ahi, pliit, külmkapp, nõudepesumasin)
Köögiseadmete ühendamine - nõudepesumasin, ahi, pliit, vesi
Köögi seina taastamine peale köögimööbli ja torude eemaldamist.
Plaanil märgitud punasega soovitud köögi uus asukoht.

Pildid, video ja failid

Hanke korraldaja: eraisik ID78836

Pakkumised

Pakkumisi kokku: 5

Ettevõte Summa Käibemaks Lisatud Vestlus
Kasutaja ikoon ID64032
Pakkuja profiil Väike nool paremale
5 000€ KM lisandub KM lisandub 28.12.2023 Vestlus (5)

Pakkumise kirjeldus:

Tere,

Tegelik hind selgub peale objektiga tutvumist.

On võimalik vedada keldri kaudu, kuid selleks on vaja näha keldrit ja äravoolu püstakut, ning mis võimalused seal on.
Ehitusregistrile peate küll ise teatise tegema, et Teil üks tuba juures.
Kust kaudu Teil oli plaanis veetorud kööki saada?
Lisaküsimustele vastan meeleldi.

Parimate ... Rohkem

Kasutaja ikoon ID73564
Pakkuja profiil Väike nool paremale
8 000€ Sisaldab KM Sisaldab KM 31.12.2023 Vestlus (0)
Kasutaja ikoon ID58382
Pakkuja profiil Väike nool paremale
3 800€ Sisaldab KM Sisaldab KM 02.01.2024 Vestlus (0)

Pakkumise kirjeldus:

Tere. Lisan hinnangulise maksumuse koos materjalidega. Täpsema mahu saab kui oleme käinud kohapeal. Võite vaadata meie tagasisides ka sarnastele töödele hinnangud antud. Asja teeb teie puhul lihtsamaks esimene korrus.Küll aga peaks teadma köögikubu ühenduste vedamisi ja elektri detailsemalt üle vaatama. Saame alustada teile sobival ajal. Praegu tee ... Rohkem

Kasutaja ikoon ID68615
Pakkuja profiil Väike nool paremale
320€ Ei ole KMKR Ei ole KMKR 03.01.2024 Vestlus (2)

Pakkumise kirjeldus:

Tere!

Hinna sees on:
1) korteri rekonstrueerimise projekt: tiitelleht, sisukord, seletuskiri, joonised (asukohaskeem, plaanid, vajalikud konstruktiivsed lõiked, sõlmed)
2) Ehitusregistrisse kandmine ja sealt tulenevad toimingud kuni ehitusteatise kooskõlastamist koos märkuste lahendamisega.


Parimat!
Diplomeeritud ehitusinsener tase 7.

Kasutaja ikoon ID70952
Pakkuja profiil Väike nool paremale
1 500€ Sisaldab KM Sisaldab KM 04.01.2024 Vestlus (2)

Küsimused hanke korraldajale

Küsimus: private ID10919   28.12.2023 18:40
Tere. Kas teil plaanis ka vana põrand ülessse võtta? Ja kui on , siis palju seda tõsta võimalik? Ja kui soovite läbi keldri uue toru viia, siis ühistult oleks enne luba vaja. Muidu see projekti tegemine mõtetu ja lihtsalt raha kulu.Lgp.

Teavita reeglite rikkumisest

Korraldaja vastus: 29.12.2023 10:02

Tere!

Põrandat üles võtta ei plaani.
Teine võimalus on köögiukse ava kinni ehitada ja torud vannitoa kaudu vedada? Ja uus ukse ava teha elutoa ja köögi seina.

Teavita reeglite rikkumisest

Küsimus: private ID10919   02.01.2024 18:10
Tere. Paar küsimust veel. Kuidas on lood keldriga? Ega seal all pole keldribokse või veetorusd ega elektri kilpi? Kuidas Teil endil? Kas on paigaldatud juba uued juhtmed või vanad? Ja kas kilp koridoris? Ja kui juhuslikult uus ukseava tuleb siis kuhu see plaanitud? Lgp.

Teavita reeglite rikkumisest

Korraldaja vastus: 04.01.2024 09:23

Tere!

Keldris on korterite keldriboksid. Mingid torud seal on, ei tea millie omad, kas keskküte või äravool.
Elektrikip on korteris esikus. Korter on renoveeritd 2018.
Ukseava plaani lisasin fotode alla.

Teavita reeglite rikkumisest

Küsimus: private ID10919   09.01.2024 16:20
Tere. Kuidas on lood Teil naabritega? Kui keldris keldriboksid. Siis kas boks all kuulub Teile või kellegile teisele? Siis vaja ka nende nõusolekut. Ja kui nüüd korteris ava muutus , siis kindlasti projekti vaja. Ja kus asub Teil korteris elektrikilp? Kui vaja uued juhtmed vedada? Lgp.

Teavita reeglite rikkumisest

Korraldaja vastus:
Hanke korraldaja ei ole küsimusele veel vastanud

Lisa küsimus

Lisa küsimus

Minu pakkumine

Reeglid

Pakkumise kirjelduse väli on mõeldud pakkumise detailsemaks lahti kirjutamiseks. Pikema teksti mugavaks sisestamiseks klikkige kasti paremal ülaservas oleval ikoonil.
Pakkumist tehes on keelatud postitada enda kontaktandmeid (nimi, telefon, aadress jne). Me jälgime ja analüüsime pakkumisi, et vältida pettuseid ja reeglite rikkumisi.
Rikkumise puhul kasutajakonto blokeeritakse.

 

Teisi töid samas valdkonnas

Valdkonnas "Üldehitus" on 27 aktiivset tööd

Terassi õlitamine, 13,7 ruutu

Asukoht: Harjumaa, Saue
Aega jäänud: 5p 17h
Tehtud pakkumisi: 4

Eramaja ehitus

Asukoht: Harjumaa, Suurupi
Aega jäänud: 4p 17h
Tehtud pakkumisi: 4

Vanemad teated:

Vaata kõiki

Sellel veebilehel kasutatakse küpsiseid. Kasutamist jätkates nõustute küpsiste kasutamisega.

Sulge
 
Minu pakkumine

Reeglid

Pakkumise kirjelduse väli on mõeldud pakkumise detailsemaks lahti kirjutamiseks. Pikema teksti mugavaks sisestamiseks klikkige kasti paremal ülaservas oleval ikoonil.
Pakkumist tehes on keelatud postitada enda kontaktandmeid (nimi, telefon, aadress jne). Me jälgime ja analüüsime pakkumisi, et vältida pettuseid ja reeglite rikkumisi.
Rikkumise puhul kasutajakonto blokeeritakse.