+ Lisa oma töö      

Otsid ehitajat "Eramu ehitus" valdkonnast?

Parima pakkumise ja teostaja leidmiseks lisa oma töö.

Eramu ehitus

ID 88618

2863 vaatamist

Prindi

  • check Pakkumiste tegemine
    kuni 07.01.2024
  • check Võitja valik kuni
    14.01.2024
  • 3 Töö teostamine
    ja hinnang
Hanke lõpp: P, 7. jaanuar, 2024
Maakond: Läänemaa
Muu asula: Lääne-Nigula
Tööde algus: R, 01. märts, 2024 (Soovituslik)
Tööde lõpp: T, 30. aprill, 2024 (Soovituslik)
Ehitusmaterjalid: Töö tegija poolt
Soovin pakkumisi: Summa kogu projektile

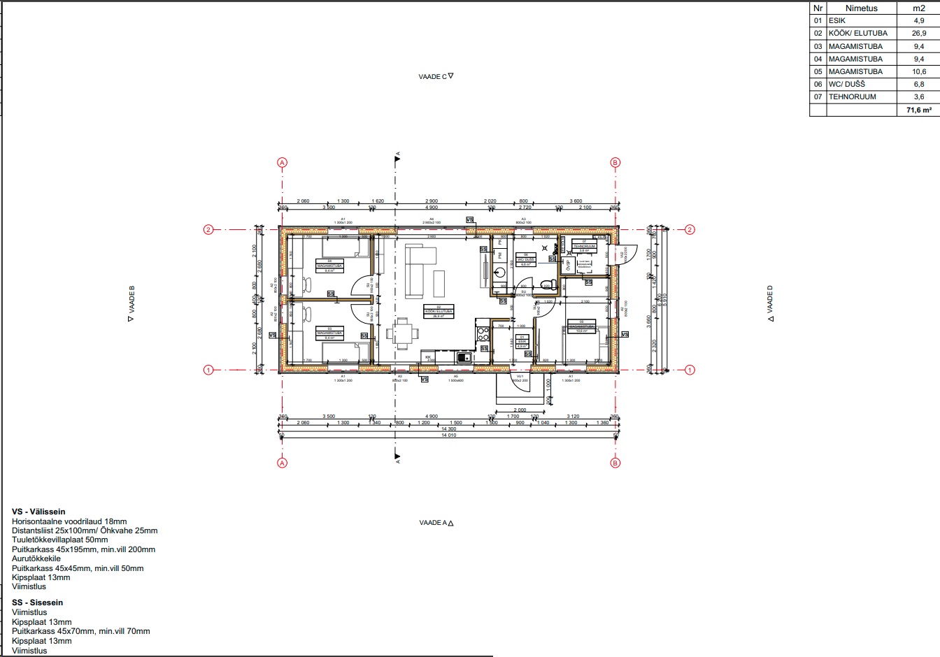
Töö sisu

Soov on alustada eramu ehitust 2024 kevad. Hetkel ei ole midagi veel tehtud peale projekti ja on ka olemas ehitusluba.

Praegune eelarve on 70 000€.
Soovin selle summa eest saada nii palju kui võimalik majast valmis. Palun tooge pakkumises täpselt välja, mis selle summaga tehtud saaks.

Pakkumises palun tuua välja iga etapi maksumus ja võib ka teha eraldi pakkumise näiteks ainult vundamendi kohta.

Pildid, video ja failid

Hanke korraldaja: eraisik ID62749

Pakkumised

Pakkumisi kokku: 7

Ettevõte Summa Käibemaks Lisatud Vestlus
Kasutaja ikoon ID50329
Pakkuja profiil Väike nool paremale
15 600€ KM lisandub KM lisandub 10.12.2023 Vestlus (0)
Kasutaja ikoon ID33806
Pakkuja profiil Väike nool paremale
75 566,2€ KM lisandub KM lisandub 11.12.2023 Vestlus (0)

Pakkumise kirjeldus:

Tere
Esitan hinnapakkumise.
Vundament koos põrandasisese kütte- ja kanalisatsioonitorustikuga - 18588,468 eurot
Välisseinad (kogu VS konstruktsioon) - 14757,86 eurot
Katus, fermid ja katuslagi ( kogu KL kontsruktsioon)- 20812,64 eurot
Siseseinad (kogu SS konstruktsioon) - 4684,19 eurot
Veetrass liitumispunktis hooneni- 1340 eurot
Kanalistatsioonitr ... Rohkem

Kasutaja ikoon ID53061
Pakkuja profiil Väike nool paremale
65 200€ KM lisandub KM lisandub 25.12.2023 Vestlus (0)

Pakkumise kirjeldus:

Tere.
Vundamendi plaat (eemaldada pinnas, täitepadi, kommunikatsioonid, 200mm soojustus, betoon. = 13 200 € + 4 400€ seadmed ja transport.
Seinte ja katuse karkass on 150mm puit, kattes maja seinad praadpaneelidega, mantli, kile ja katusele metalliga.=19700€+1600€ transport.
Fassaadiliist, vooder, soojustus, seest kile ja tuulekast. = 12400+ 1 ... Rohkem

Kasutaja ikoon ID34075
Pakkuja profiil Väike nool paremale
10 175€ KM lisandub KM lisandub 06.01.2024 Vestlus (0)

Pakkumise kirjeldus:

Pakutud hind hoone mahamärkimisele, väliskommunikatsioonidele(el, reovesi(ka 10m³ mahuti plastkaanega), vesi, hoone aluse väljakaeve, põrandaalused kommunikatsioonid, tihendatud killustiku/ liiva alus.
Võimalik edasise huvi korral pakun ka järgmiste etappide orient hinnad:
1. Plaatvundament koos põrandasiseste kommunikatsioonidega- 12 555
2. Seina ... Rohkem

Kasutaja ikoon ID59528
Pakkuja profiil Väike nool paremale
69 000€ KM lisandub KM lisandub 07.01.2024 Vestlus (0)

Pakkumise kirjeldus:

Tere,

Pakkumine tehtud vastavalt Hankes kirjeldatud töödele. Täpsema hinnakalkulatsiooni saame saata vestluses. Hind on tehtud väljast valmis ehk musta majakarbi ehitusele. Sisetööd pole hinnas

Meie profiili alt näete meie poolt tehtud töid ja klientide poolt antud hinnanguid
Ettevōttel olemas MTR registreering!

Parimat,

Erik

Kasutaja ikoon ID70017
Pakkuja profiil Väike nool paremale
70 000€ KM lisandub KM lisandub 07.01.2024 Vestlus (0)

Pakkumise kirjeldus:

Tere!
70000 eest saaks
Vundament + kinninekarp.

Täpse pakkumise teeme teiepoolse huvi korral.
Vstructure oy meeskond

Kasutaja ikoon ID50594
Pakkuja profiil Väike nool paremale
70 000€ KM lisandub KM lisandub 07.01.2024 Vestlus (0)

Pakkumise kirjeldus:

Tere,

Pakkumine vastavalt hanke kirjeldusele.
Huvi korral saab koostada täpse pakkumise.

Lgp. Taivo

Küsimused hanke korraldajale

Küsimus: private ID73104   09.12.2023 10:40
Tere,
Kui kaugel on vundamendist kommunikatsioonid?
Kas on olemas eri lahenduste projektid (elekter, kanal,. vesi)?
Mis materjalist katus?
Lugupidamisega,
Aivo

Teavita reeglite rikkumisest

Korraldaja vastus: 09.12.2023 11:38

Tere

Vesi: Kinnistul olevast puurkaevust. Puurkaev asub vundamendist (kui arvestada, et ühendus on tehnoruumist) umbes 20 meetrit.
Kanalisatsioon: Plaanitav 10m3 mahuti. Mahuti asuuks vundamendist (kui arvestada, et ühendus on tehnoruumist) umbes 15.5 meetrit.
Elekterikilp kinnistul asub vundamendist (kui arvestada, et ühendus on tehnoruumist) umbes 22 meetrit.

Erilahenduste projektid puuduvad.

Katus on plekk, klassik profiil.

Lugupidamisega

Teavita reeglite rikkumisest

Küsimus: private ID73104   09.12.2023 12:35
Aitäh vastuste eest.

Küsimus seoses reovee mahuti kohta:
Kas mahuti olemas?
Kui ei siis kas mahuti pakkumine peab sisalduma hinnapakkumises?
Kas olemas valla luba mahuti paigaldamiseks? Mis tingimused valla poolt mahutile?

Teavita reeglite rikkumisest

Korraldaja vastus: 09.12.2023 12:43

Mahutit ei ole. Jah, palun lisada see pakkumisse koos mahuti mudeli ja hinnaga.
Ehitusloa taotluses oli välja toodud, et paigaldame 10m3 mahuti ja asukoht sai lisatud asendiplaanile. Vald ei esitanud pretensioone ja majale väljastati ehitusluba.

Teavita reeglite rikkumisest

Küsimus: private ID50329   10.12.2023 11:12
Добрый день, я вам отправил предложение на фундаментную плиту,

Teavita reeglite rikkumisest

Korraldaja vastus: 11.12.2023 08:56

Selge, tänan.

Teavita reeglite rikkumisest

Küsimus: private ID53061   25.12.2023 10:49
Tere. Saatsin Teile hinnapakkumise keskmiste materjalide kohta, kõik tööd peale siseviimistluse. Edu ehitusel!

Teavita reeglite rikkumisest

Korraldaja vastus: 26.12.2023 10:44

Tänud.

Teavita reeglite rikkumisest

Lisa küsimus

Lisa küsimus

Minu pakkumine

Reeglid

Pakkumise kirjelduse väli on mõeldud pakkumise detailsemaks lahti kirjutamiseks. Pikema teksti mugavaks sisestamiseks klikkige kasti paremal ülaservas oleval ikoonil.
Pakkumist tehes on keelatud postitada enda kontaktandmeid (nimi, telefon, aadress jne). Me jälgime ja analüüsime pakkumisi, et vältida pettuseid ja reeglite rikkumisi.
Rikkumise puhul kasutajakonto blokeeritakse.

 

Teisi töid samas valdkonnas

Valdkonnas "Eramu ehitus" on 2 aktiivset tööd

Eramu ehitus

Asukoht: Viljandimaa, Viljandi
Aega jäänud: 7p 1h
Tehtud pakkumisi: 0

no-img Pilt puudub

Eramu ehitus. Karp kinni.

Asukoht: Lääne-Virumaa
Aega jäänud: 5p 1h
Tehtud pakkumisi: 0

Vanemad teated:

Vaata kõiki

Sellel veebilehel kasutatakse küpsiseid. Kasutamist jätkates nõustute küpsiste kasutamisega.

Sulge
 
Minu pakkumine

Reeglid

Pakkumise kirjelduse väli on mõeldud pakkumise detailsemaks lahti kirjutamiseks. Pikema teksti mugavaks sisestamiseks klikkige kasti paremal ülaservas oleval ikoonil.
Pakkumist tehes on keelatud postitada enda kontaktandmeid (nimi, telefon, aadress jne). Me jälgime ja analüüsime pakkumisi, et vältida pettuseid ja reeglite rikkumisi.
Rikkumise puhul kasutajakonto blokeeritakse.