+ Lisa oma töö      

Otsid ehitajat "Küttesüsteemid" valdkonnast?

Parima pakkumise ja teostaja leidmiseks lisa oma töö.

Kortermaja keskkütte projekteerimine

ID 88580

523 vaatamist

Prindi

  • check Pakkumiste tegemine
    kuni 13.12.2023
  • check Võitja valik kuni
    20.12.2023
  • 3 Töö teostamine
    ja hinnang
Hanke lõpp: K, 13. detsember, 2023
Maakond: Harjumaa
Linn: Tallinn
Tööde algus: E, 01. jaanuar, 2024 (Soovituslik)
Tööde lõpp: N, 01. veebruar, 2024 (Soovituslik)
Ehitusmaterjalid: Töö tellija poolt
Soovin pakkumisi: Summa kogu projektile

Töö sisu

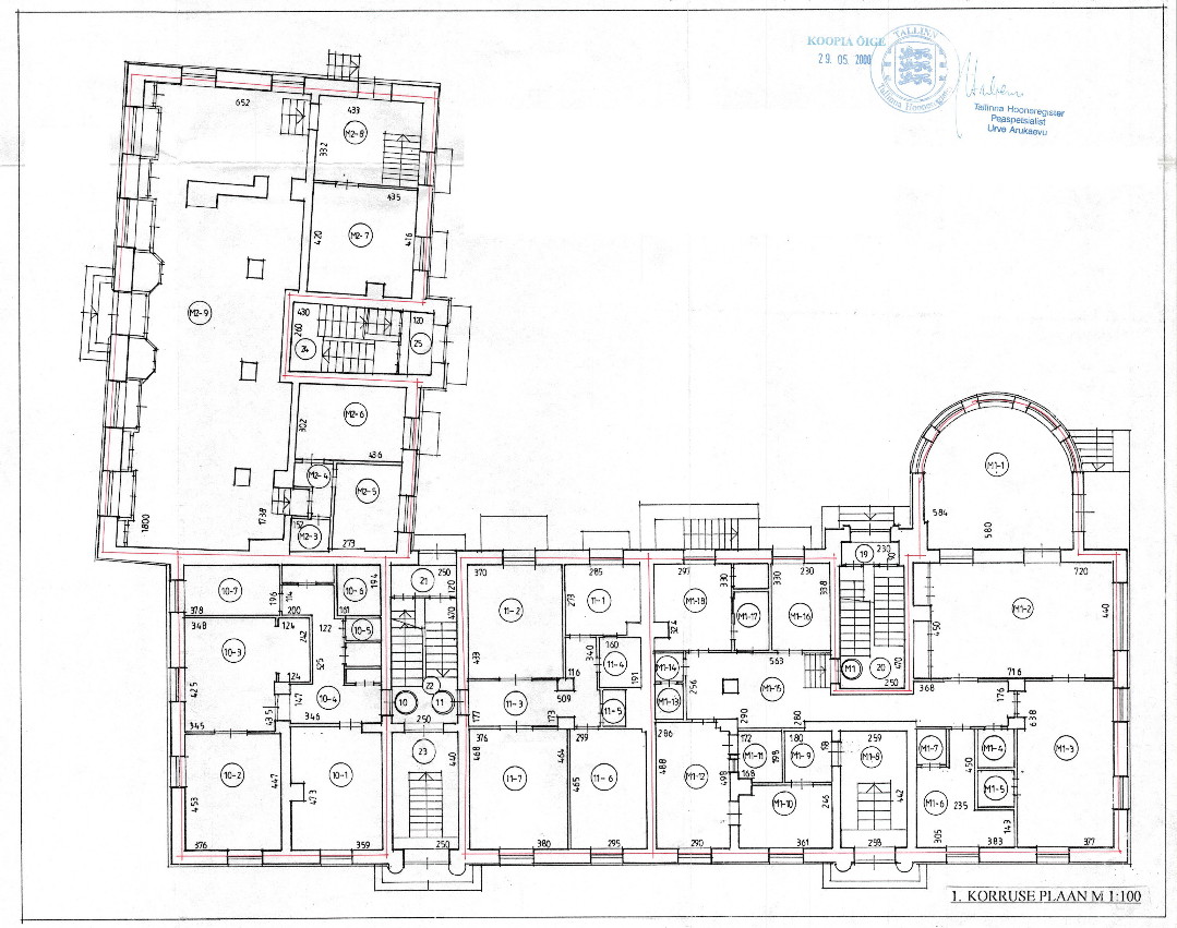
KÜ planeerib keskküttesüsteemi vahetamist ja küsib pakkumist projekti koostamiseks.
Staliniaegne maja, 4 korrust, 3 trepikoda, 32 korterit, täiskelder, tühi pööning.
Põhiprojekti staadiumis. Küttesüsteem, soojussõlm (ainult küte).

Pildid, video ja failid

Hanke korraldaja: korteriühistu ID78616

Pakkumised

Pakkumisi kokku: 3

Ettevõte Summa Käibemaks Lisatud Vestlus
Kasutaja ikoon ID41204
Pakkuja profiil Väike nool paremale
4 760€ KM lisandub KM lisandub 07.12.2023 Vestlus (0)

Pakkumise kirjeldus:

Hea meelega pakume küttesüsteemi rekonstrueerimise projekteerimistööd.

Kasutaja ikoon ID59132
Pakkuja profiil Väike nool paremale
4 600€ KM lisandub KM lisandub 10.12.2023 Vestlus (0)

Pakkumise kirjeldus:

Radiaatorkütte põhiprojekt koos uue soojasõlme projekteerimisega. Hind sisaldab küte plaanid, skeemid, spetsi, seletuskirja ning digiallkirja 7 tase ja olemasolevate jooniste digiteerimine nende hilisemaks kasutamiseks küttesüsteemi projekteerimisel. Tähtaeg ca 1 kuu.

Kasutaja ikoon ID76553
Pakkuja profiil Väike nool paremale
4 400€ KM lisandub KM lisandub 13.12.2023 Vestlus (0)

Küsimused hanke korraldajale

Küsimus: private ID76553   07.12.2023 17:11
Tere!

Kas soovitakse kogu hoonele radiaatorite ja uute küttetorude projekti (lisaks soojasõlme projekteerimisele)?

Teavita reeglite rikkumisest

Korraldaja vastus: 07.12.2023 17:18

Jahh.

Teavita reeglite rikkumisest

Lisa küsimus

Lisa küsimus

Minu pakkumine

Reeglid

Pakkumise kirjelduse väli on mõeldud pakkumise detailsemaks lahti kirjutamiseks. Pikema teksti mugavaks sisestamiseks klikkige kasti paremal ülaservas oleval ikoonil.
Pakkumist tehes on keelatud postitada enda kontaktandmeid (nimi, telefon, aadress jne). Me jälgime ja analüüsime pakkumisi, et vältida pettuseid ja reeglite rikkumisi.
Rikkumise puhul kasutajakonto blokeeritakse.

 

Teisi töid samas valdkonnas

Valdkonnas "Küttesüsteemid" on 2 aktiivset tööd

no-img Pilt puudub

Küttesüsteemi püstakute vahetus ja radiaatoritega ühendamine

Asukoht: Järvamaa, Paide
Aega jäänud: 3p 11h
Tehtud pakkumisi: 2

Cooper&Hunter Consol Inverter 18

Asukoht: Harjumaa, Tallinn
Aega jäänud: 11h 5 min
Tehtud pakkumisi: 1

Vanemad teated:

Vaata kõiki

Sellel veebilehel kasutatakse küpsiseid. Kasutamist jätkates nõustute küpsiste kasutamisega.

Sulge
 
Minu pakkumine

Reeglid

Pakkumise kirjelduse väli on mõeldud pakkumise detailsemaks lahti kirjutamiseks. Pikema teksti mugavaks sisestamiseks klikkige kasti paremal ülaservas oleval ikoonil.
Pakkumist tehes on keelatud postitada enda kontaktandmeid (nimi, telefon, aadress jne). Me jälgime ja analüüsime pakkumisi, et vältida pettuseid ja reeglite rikkumisi.
Rikkumise puhul kasutajakonto blokeeritakse.