+ Lisa oma töö      

Otsid ehitajat "Ventilatsioonitööd" valdkonnast?

Parima pakkumise ja teostaja leidmiseks lisa oma töö.

Hange on lõppenud!

Võitjaks osutus kasutaja ID 57475

Korraldaja hinnang tehtud tööle

4.7
23.12.2023
Töökiirus: 12345
Kvaliteet: 12345
Hind: 12345

Töö ilusti tehtud. Minu muudatussoovidega saadi ka ilusti hakkama. - Mart T.

Ventilatsioon san ruumidesse

ID 88479

711 vaatamist

Prindi

  • check Pakkumiste tegemine
    kuni 03.12.2023
  • check Võitja valik kuni
    10.12.2023
  • 3 Töö teostamine
    ja hinnang
Hanke lõpp: P, 3. detsember, 2023
Maakond: Harjumaa
Linn: Tallinn
Tööde algus: E, 04. detsember, 2023 (Soovituslik)
Tööde lõpp: P, 10. detsember, 2023 (Soovituslik)
Ehitusmaterjalid: Töö tegija poolt
Soovin pakkumisi: Summa kogu projektile

Töö sisu

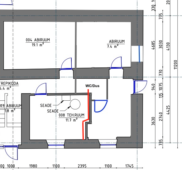
Vaja kahe kotteri san ruumidesse ehitada ventilatsioon. Mõlemad korterid asuvad samas majas.
Korter 1. Vaja maja välisseina (puitkarkass) teha 125 auk ning paigaldada ventilatsioonitoru ja ventilaator, mis tagaks san ruumist niiskuse äraviimise.
Plaan lisas.

Korter 2. Korter asub soklikorrusel. Vannitoa seina sisse tuleb teha 125mm auk, sealt ventitoru läbi tuua katlaruumi. Katlaruumis mööda seina viia ventilatsioonitoru maja välisseinani. Välisseina vaja teha teemantpuuriga auk, et õhk sealt välja juhtida. Siseseinad on silikatsiittellisest ja välissein on 40cm paekivi (+10 cm peno + krohv).
Pildid ja plaani lisas.

Viimistlus peab jääma korralik ja viisakas.

Pildid, video ja failid

Hanke korraldaja: eraisik ID37948

Pakkumised

Pakkumisi kokku: 2

Ettevõte Summa Käibemaks Lisatud Vestlus
Kasutaja ikoon ID62796
Pakkuja profiil Väike nool paremale
530€ Ei ole KMKR Ei ole KMKR 01.12.2023 Vestlus (0)

Pakkumise kirjeldus:

Tere!


Soovitud vent aukude tegemine ja toru vedamine.


Lgp.
Riivo

Kasutaja ikoon ID57475
Pakkuja profiil Väike nool paremale
450€ KM lisandub KM lisandub 03.12.2023 Vestlus (0)

Pakkumise kirjeldus:

Tere,


Arvega tasudes töö eest lisandub hinnale km .

Lp. Timo

Küsimused hanke korraldajale

Hanke korraldajale ei ole veel küsimusi esitatud.

Lisa küsimus

Lisa küsimus

Minu pakkumine

Reeglid

Pakkumise kirjelduse väli on mõeldud pakkumise detailsemaks lahti kirjutamiseks. Pikema teksti mugavaks sisestamiseks klikkige kasti paremal ülaservas oleval ikoonil.
Pakkumist tehes on keelatud postitada enda kontaktandmeid (nimi, telefon, aadress jne). Me jälgime ja analüüsime pakkumisi, et vältida pettuseid ja reeglite rikkumisi.
Rikkumise puhul kasutajakonto blokeeritakse.

 

Teisi töid samas valdkonnas

Valdkonnas "Ventilatsioonitööd" on 3 aktiivset tööd

Eramaja ventilatsioonitööd

Asukoht: Tartumaa, Soinaste
Aega jäänud: 6p 1h
Tehtud pakkumisi: 1

no-img Pilt puudub

Ventilatsiooni paigaldamine

Asukoht: Tartumaa, Tartu
Aega jäänud: 3p 1h
Tehtud pakkumisi: 0

Vanemad teated:

Vaata kõiki

Sellel veebilehel kasutatakse küpsiseid. Kasutamist jätkates nõustute küpsiste kasutamisega.

Sulge
 
Minu pakkumine

Reeglid

Pakkumise kirjelduse väli on mõeldud pakkumise detailsemaks lahti kirjutamiseks. Pikema teksti mugavaks sisestamiseks klikkige kasti paremal ülaservas oleval ikoonil.
Pakkumist tehes on keelatud postitada enda kontaktandmeid (nimi, telefon, aadress jne). Me jälgime ja analüüsime pakkumisi, et vältida pettuseid ja reeglite rikkumisi.
Rikkumise puhul kasutajakonto blokeeritakse.