+ Lisa oma töö      

Otsid ehitajat "Vundamenditööd" valdkonnast?

Parima pakkumise ja teostaja leidmiseks lisa oma töö.

Plaatvundamendi ehitus + pinnase ettevalmistavad tööd

ID 88344

862 vaatamist

Prindi

  • check Pakkumiste tegemine
    kuni 07.12.2023
  • check Võitja valik kuni
    14.12.2023
  • 3 Töö teostamine
    ja hinnang
Hanke lõpp: N, 7. detsember, 2023
Maakond: Pärnumaa
Muu asula: Rooglaiu
Tööde algus: E, 01. aprill, 2024 (Soovituslik)
Tööde lõpp: L, 01. juuni, 2024 (Soovituslik)
Ehitusmaterjalid: Töö tellija poolt
Soovin pakkumisi: Summa kogu projektile

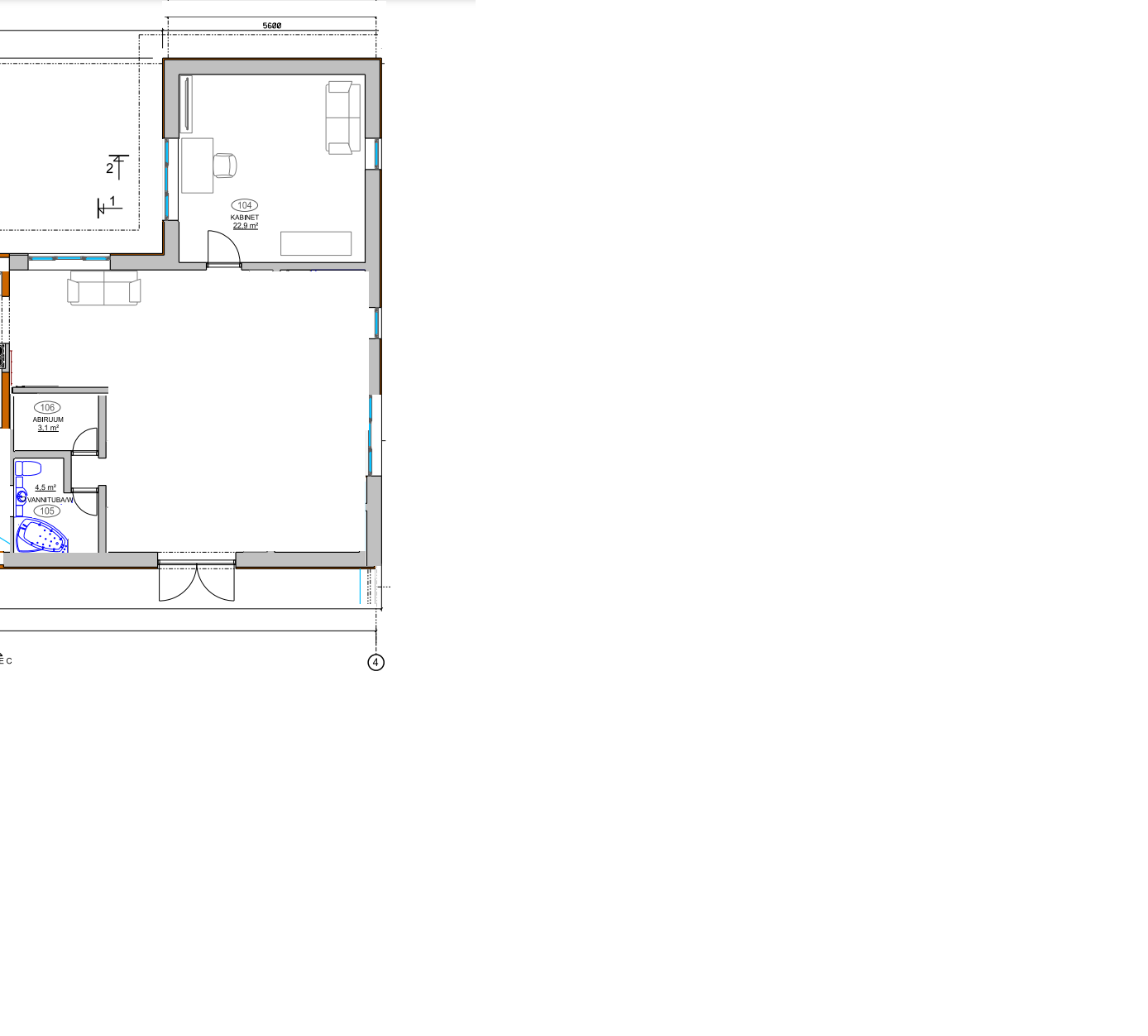
Töö sisu

Vajalik teostada pinnase ettevalmistavad tööd ja plaatvundamendi valamine.
Põrandasse paigaldada lisaks küttetorustik ning elektrikaabeldus.
Vundamendi pindala 80m2.

Täpsustav info:
projekteeritud plaatvundament:
homogeense osa soojajuhtivus U=0,25 W/m2K
armeeritud betoon, sees põrandakütte torustik 100 mm
polüetüleenkile
vahtpolüstereenplaat XPS Finnfoam FL-300 200 mm
killustikalus 200 mm
täitepinnas tihendatakse max 300 mm kihtide kaupa tihedusaste D3 95%
Põrandad pinnasel märgades ruumides põranda kalle trapi suunas i> 0,01

Pildid, video ja failid

Hanke korraldaja: eraisik ID78181

Pakkumised

Pakkumisi kokku: 4

Ettevõte Summa Käibemaks Lisatud Vestlus
Kasutaja ikoon ID78486
Pakkuja profiil Väike nool paremale
18 500€ KM lisandub KM lisandub 29.11.2023 Vestlus (0)

Pakkumise kirjeldus:

Hinna sees kõik materjal ja tööd kuni põranda lihvimiseni välja

Kasutaja ikoon ID66447
Pakkuja profiil Väike nool paremale
4 750€ Ei ole KMKR Ei ole KMKR 04.12.2023 Vestlus (3)

Pakkumise kirjeldus:

Tere!
Hind kogu tööle
Ettemaksu muidu ei soovi, aga hange.ee
% tahab kohe tasumist
Juba varem kõrbenud sellega
Küsi lisa sõnumites

Edukat hanget

Kasutaja ikoon ID78072
Pakkuja profiil Väike nool paremale
31 000€ KM lisandub KM lisandub 07.12.2023 Vestlus (0)

Pakkumise kirjeldus:

Hinnas tööd koos materjaliga vastavalt hankes toodud kirjeldusele.

Kasutaja ikoon ID50594
Pakkuja profiil Väike nool paremale
30 000€ KM lisandub KM lisandub 07.12.2023 Vestlus (0)

Pakkumise kirjeldus:

Tere,

Pakkumine vastavalt hanke kirjeldusele.
Pakkumine materjalidega.

Lgp. Taivo

Küsimused hanke korraldajale

Küsimus: private ID61081   23.11.2023 21:03
Palun lisage projekt

Teavita reeglite rikkumisest

Korraldaja vastus: 24.11.2023 09:38

Projekt lisatud. Need ei ole kõige täpsemad, kuna oleme vahepeal projekti muutnud, aga loodame, et annab mingi ülevaate.

Teavita reeglite rikkumisest

Lisa küsimus

Lisa küsimus

Minu pakkumine

Reeglid

Pakkumise kirjelduse väli on mõeldud pakkumise detailsemaks lahti kirjutamiseks. Pikema teksti mugavaks sisestamiseks klikkige kasti paremal ülaservas oleval ikoonil.
Pakkumist tehes on keelatud postitada enda kontaktandmeid (nimi, telefon, aadress jne). Me jälgime ja analüüsime pakkumisi, et vältida pettuseid ja reeglite rikkumisi.
Rikkumise puhul kasutajakonto blokeeritakse.

 

Vanemad teated:

Vaata kõiki

Sellel veebilehel kasutatakse küpsiseid. Kasutamist jätkates nõustute küpsiste kasutamisega.

Sulge
 
Minu pakkumine

Reeglid

Pakkumise kirjelduse väli on mõeldud pakkumise detailsemaks lahti kirjutamiseks. Pikema teksti mugavaks sisestamiseks klikkige kasti paremal ülaservas oleval ikoonil.
Pakkumist tehes on keelatud postitada enda kontaktandmeid (nimi, telefon, aadress jne). Me jälgime ja analüüsime pakkumisi, et vältida pettuseid ja reeglite rikkumisi.
Rikkumise puhul kasutajakonto blokeeritakse.